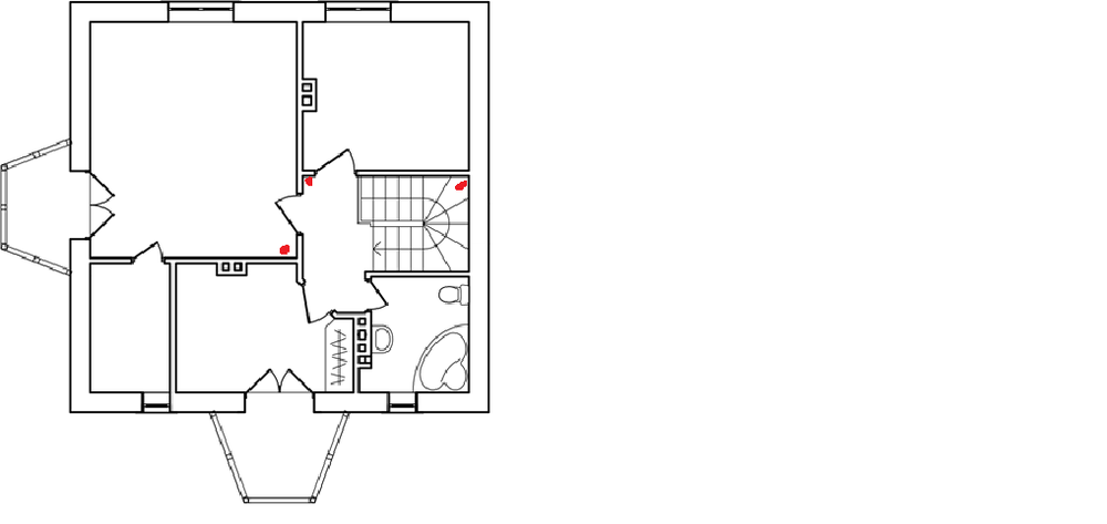
vadimka13 Опубліковано: 5 серпня 2014 Поділитись Опубліковано: 5 серпня 2014 День добрый уважаемые!! Итак: работнички очень хотят начать штукатурку на 2ом этаже (она же мансарда), електрика, ТВ и инет есть. Хотелось бы закинуть провода под датчики движения пока рассматриваем только 2 этаж, с первым будем думать потом. Задача: думал ставить какие-то (если есть) универсальные датчики, типа движения и разбития окна, не знаю. Систему хотелось бы простенькую, но универсальную. Кабеля витуха, его в достатке, можно не экономить, ведутся на первый этаж комнатка справа от входа, она же котельня и в ней щит силовой и будет слаботочный. Просьба потыкать красниньким куды их тут выводить, надо-ли вести к окнам или достаточно в углах?? Во вложении изобразил как это вижу я!! Поправьте плиз Посилання на коментар Поділитися на інших сайтах More sharing options...
Diver Опубліковано: 6 серпня 2014 Поділитись Опубліковано: 6 серпня 2014 Кабеля витуха, его в достатке, капец.. выбросите свой кабель в ... 100 раз в этом разделе обсуждалось куда как и чем вести к датчикам линии.. читайте темы здесь в форуме, почему сложно поискать и прочитать. Посилання на коментар Поділитися на інших сайтах More sharing options...
vadimka13 Опубліковано: 6 серпня 2014 Автор Поділитись Опубліковано: 6 серпня 2014 Я этого ждал! Спасибо читал уже придумал, если кому-то будет интересно выложу! Посилання на коментар Поділитися на інших сайтах More sharing options...
Diver Опубліковано: 6 серпня 2014 Поділитись Опубліковано: 6 серпня 2014 уже придумал, если кому-то будет интересно только не подумайте другим витую пару на сигналку советовать, кабель после штукатурки сменить не смогут, и будут вспоминать "добрым словом". Посилання на коментар Поділитися на інших сайтах More sharing options...
Шарманщик Опубліковано: 6 серпня 2014 Поділитись Опубліковано: 6 серпня 2014 капец.. выбросите свой кабель в ... 100 раз в этом разделе обсуждалось куда как и чем вести к датчикам линии.. читайте темы здесь в форуме, почему сложно поискать и прочитать. При всём уважении, мой друг, но уже надоело всем опровергать Ваш бред!!! Хватит дурить людям головы, если даёте советы, то давайте правильные - потому как это бред, что компьютерная витуха не подходит для сигнализации опровергнут всеми спецами форума и не раз. Постыдились бы приглашать читать профильные темы - там именно Вам все говорят "фэ" и именно за Ваш нигилизм в отношении витухи.... Я сей кабель использую для сигнализации, видеоконтроля и собственно СКС аж!!! с 1993 года.... ни одного нарекания, ни одной проблемы... Скажите пожалуйста, сколько годочков Вам исполнилось в 1993 от Р. Х. ? Посилання на коментар Поділитися на інших сайтах More sharing options...
unreal1975 Опубліковано: 6 серпня 2014 Поділитись Опубліковано: 6 серпня 2014 При всём уважении, мой друг, но уже надоело всем опровергать Ваш бред!!! Хватит дурить людям головы, если даёте советы, то давайте правильные - потому как это бред, что компьютерная витуха не подходит для сигнализации опровергнут всеми спецами форума и не раз. Постыдились бы приглашать читать профильные темы - там именно Вам все говорят "фэ" и именно за Ваш нигилизм в отношении витухи.... Я сей кабель использую для сигнализации, видеоконтроля и собственно СКС аж!!! с 1993 года.... ни одного нарекания, ни одной проблемы... Скажите пожалуйста, сколько годочков Вам исполнилось в 1993 от Р. Х. ? Не соглашусь, можно и ПВСом раскидать. Если есть кабеля, предназначенные под сигнализацию, почему их не применять? существенный недостаток витухи в том, что она одножильная, при зажиме в клеммник часто незаметно надламывается, на большом обьекте выльется в значительную потерю времени на поиски Зы, не знаю кто по чем закупает, но витуха значительно дороже шестерки-четверки в закупке Посилання на коментар Поділитися на інших сайтах More sharing options...
vadimka13 Опубліковано: 7 серпня 2014 Автор Поділитись Опубліковано: 7 серпня 2014 Та втом вот все и дело, что кабеля витухи осталось в достатке обрезков всяческих!! и даже если допустить что что-то там слегка надломится то там вродь как запас есть, тем более если быть уверенным что это Купрум!! То что витуху нельзя я от Дайвера ждал, так как форум прошерстил. Но я ждал практического совета, а не указания места куда я его должен засунуть или выбросить!! При всем уважении, но если вы спец то дайте совет по существу. Извините обидеть никого не хотел. Но есть люди которым я доверяю, консультировался у них то все единогласно сказали что витуху МОНА. Если бы все покупал с 0, то естесно брал бы уже то что книжка пишет!! Всем спасибо))) Миру всем!!! Посилання на коментар Поділитися на інших сайтах More sharing options...
Firetuf Опубліковано: 7 серпня 2014 Поділитись Опубліковано: 7 серпня 2014 Если есть кабеля, предназначенные под сигнализацию, почему их не применять? И очень даже правильно. Так почему же тогда не применяются специально разработанные сигнализационные кабели для систем безопасности, а также рекомендованные всеми "флагманами" в производстве централей кабели типа n x n x 0,8? Я уже приводил и выдержки из паспортов централей, и выкопировки из EN-54, и указания с описаниями от кабельных производителей. А все равно, для некоторых, лучше палёной китаезы типа Wn x 0,22 не существует. Отдельно хочу заметить, что для шлейфов систем безопасности, как раз то и рекомендуют именно кабели с медной монопроволокой! Покажите мне, пожалуйста,разрешение на применение "Signalkabel und Brandmeldekabel" в соответсвтии с DIN VDE 0815 DIN VDE 0815 , с многожилкой, алюминиевой, да еще и 0,22 мм.кв.! ВЫСТАВЛЯЮСЬ!!! p.s.: есть специально разработанные кабели, правда в большей степени для промышленной автоматики, с многопроволочными жилами, но!!! Эти кабели, как правило, 2-го класса гибкости (семипроволочные и только медные), сечение не менее 0,5 мм.кв., скрутка жил и все остальные ТТХ в соответствии вышеуказанному стандарту. p.p.s: Применение в шлейфах ситсем безопасности Data-кабелей типа FTP вполне допускаю. При условии, что напряжение 12В, сопротивление шлейфа не более 100 Ом, и конечно же, это не касается СПЗ. p.p.p.s: Каждый, кто хочет прямо сейчас проверить свой "правильный" W6x0,22 на предмет качества, берет обыкновенную зажигалку и обжигает тонкие "медные" проволочки. Для справки, медь плавится при температуре около 1080 С. Посилання на коментар Поділитися на інших сайтах More sharing options...
Vladimir75 Опубліковано: 7 серпня 2014 Поділитись Опубліковано: 7 серпня 2014 Согласен, если есть витая, можно и ей. К примеру Лунь 9 Т - клавиатура или расширитель при длине аларм кабеля больше 5 м. не работает. Требование производителя - витая пара. Моножилка неудобна при работе на колодках ППК и датчиков часто ламаеться при зажиме и дальнейшей эксплуатации, тут конечно многожилка пока вне конкуренции. Посилання на коментар Поділитися на інших сайтах More sharing options...
Firetuf Опубліковано: 7 серпня 2014 Поділитись Опубліковано: 7 серпня 2014 Vladimir75 - в дань уважения к ОК, определенного правда периода, готов Вам презентовать, по себестоимости, моножильный кабель (если речь о пару десятков метров - пожалуйста, приезжайте и берите просто так). Когда поработаете им, тогда и скажете - ломается он или нет? Это все утопия. Добавлю и по витой паре, а конретно если уже и выражаться то по кабелю 5-е категории, так как любой сигнальный кабель тоже обязательно витой. Например применение 5-е в цифровом видео, где питание по РоЕ. И что? Питание адресного датчика это что-то из космоса? Для общего развития - 5-е категория может быть и многопроволочная. Посилання на коментар Поділитися на інших сайтах More sharing options...
Vladimir75 Опубліковано: 7 серпня 2014 Поділитись Опубліковано: 7 серпня 2014 На 20 метрах статистки не получиться, давайте в дань уважения к ОК (в каком интересно хоть периоде?) хотя бы фтпшку с тросом бухточку 300метровую. Посилання на коментар Поділитися на інших сайтах More sharing options...
Diver Опубліковано: 7 серпня 2014 Поділитись Опубліковано: 7 серпня 2014 и даже если допустить что что-то там слегка надломится то там вродь как запас есть, При всём уважении, мой друг, но уже надоело всем опровергать Ваш бред!!! знаете, я вам так скажу, если вы по всем правилам стараетесь делать, то нужно паять скрутки и т.д.. витую паять практически нельзя, там изоляция с жил моментально слазит, это ее еще один нехилый недостаток, изоляция не выдерживает повышенную тепературу, особенно это на моножиле видно. посему делаю вывод что вы не паяете как полагается все соединения, если так, то бракоделием занимаетесь... Добавлено через 4 минуты конечно многожилка пока вне конкуренции. и тоже желательно облудить... Посилання на коментар Поділитися на інших сайтах More sharing options...
Firetuf Опубліковано: 8 серпня 2014 Поділитись Опубліковано: 8 серпня 2014 (змінено) На 20 метрах статистки не получиться, давайте в дань уважения к ОК (в каком интересно хоть периоде?) хотя бы фтпшку с тросом бухточку 300метровую. для кроссового дела, много не нужно кабеля. А вот для шлейфов могу предложить 6-ку в экране и без, с жилой 0,8мм (надеюсь не сочтут это за рекламу ). По Data-кабелям я не специализируюсь, могу предложить только 5-ю категорию для СПЗ (огнестойкую). Пишу публично, этот меседж касается всех, кто желает проверить и убедиться качестве и удобстве работы с кабелем 0,8 мм. Какой период ОК, спрашиваете? Конечно, своя рубашка ближе к телу :-D. Но я думаю, что и без єтой пословицы, лучший период это первый, до 2001 года. Змінено 8 серпня 2014 користувачем Firetuf Посилання на коментар Поділитися на інших сайтах More sharing options...
Vladimir75 Опубліковано: 8 серпня 2014 Поділитись Опубліковано: 8 серпня 2014 для кроссового дела, много не нужно кабеля. А вот для шлейфов могу предложить 6-ку в экране и без, с жилой 0,8мм (надеюсь не сочтут это за рекламу ). По Data-кабелям я не специализируюсь, могу предложить только 5-ю категорию для СПЗ (огнестойкую). Пишу публично, этот меседж касается всех, кто желает проверить и убедиться качестве и удобстве работы с кабелем 0,8 мм. Какой период ОК, спрашиваете? Конечно, своя рубашка ближе к телу :-D. Но я думаю, что и без єтой пословицы, лучший период это первый, до 2001 года. Вот блин как раз сегодня был нужен кабель (уже купил по курсу б/н 14,6 за доллар , куда катиться гривна) Спасибо, буду обращаться если что. Период до 2001 не застал (как раз в 2001 поступил на работу в Ленинградский ВДСО) Посилання на коментар Поділитися на інших сайтах More sharing options...
Firetuf Опубліковано: 11 серпня 2014 Поділитись Опубліковано: 11 серпня 2014 Вот блин как раз сегодня был нужен кабель (уже купил по курсу б/н 14,6 за доллар , куда катиться гривна) Спасибо, буду обращаться если что. Период до 2001 не застал (как раз в 2001 поступил на работу в Ленинградский ВДСО) offtop: курс по 14,6 - ??? А чего не 20? Не 100? Конечно, проблемы есть, и о них мы все знаем, но зачем народ дурить? Такого курса, официально нет. Это не к Вам, Vladimir75, это к неродивым продаванам. А по ЛВДСО - столько кадров в высшее руководство охранной службы и бизнеса, сколько выдал этот отдел, наверное никто уже не выдаст. Посилання на коментар Поділитися на інших сайтах More sharing options...
Vladimir75 Опубліковано: 15 серпня 2014 Поділитись Опубліковано: 15 серпня 2014 Сориентируйте в ценах, сколько стоит подключить одну точку сигнализаций. В районе 100 грн. / датчик , но это уже на проложенный по стене кабель. Посилання на коментар Поділитися на інших сайтах More sharing options...
Друже Бобер Опубліковано: 19 серпня 2014 Поділитись Опубліковано: 19 серпня 2014 Firetuf Ну если Вас не устраивает цена и курс,то не покупайте.Поверьте что безнальный курс всегда был выше где-то около одной гривны в нашей сфере. Добавлено через 2 минуты В районе 100 грн. / датчик , но это уже на проложенный по стене кабель. Действительно где-то так. Но если проводки даже нет,но ее просто ложить,то цена обсуждается. Но в который раз повторюсь что цена завит от конкретного объекта,степени готовности его самого, заказчика и т.д... Посилання на коментар Поділитися на інших сайтах More sharing options...
Firetuf Опубліковано: 20 серпня 2014 Поділитись Опубліковано: 20 серпня 2014 Firetuf Ну если Вас не устраивает цена и курс,то не покупайте.Поверьте что безнальный курс всегда был выше где-то около одной гривны в нашей сфере.Друже Бобер, да речь то не о конечной цене - продавец имеет полное право устанавливать любую цену, а о брехне с курсом, которая сеет панику. Почему в "этой сфере" б/н курс выше на 1 грн. чем нал? - так это у перепродавцов, а не у импортеров, то есть у первых рук. И здесь не бывает "наша/не наша" сфера. Финансовые операции одинаковы для всех. А вот куда и на что идет эта 1 грн. - это другая история. Посилання на коментар Поділитися на інших сайтах More sharing options...
jack-zp Опубліковано: 21 серпня 2014 Поділитись Опубліковано: 21 серпня 2014 Захотелось выразить свое мнение. В прибыли нет ничего плохого. Не нужно стесняться и называть цену со своей прибылью. От меньшей цены в у.е. и завышенного курса клиентов больше не станет, имхо только меньше) Для продаж лучше назвать низкий курс и более высокую цену... и не линитесь пересчитывать думая что проще поменять несколько цифр в курсе, уважайте друг друга. 1 Посилання на коментар Поділитися на інших сайтах More sharing options...
Рекомендовані повідомлення
Створіть акаунт або увійдіть у нього для коментування
Ви маєте бути користувачем, щоб залишити коментар
Створити акаунт
Зареєструйтеся для отримання акаунта. Це просто!
Зареєструвати акаунтУвійти
Вже зареєстровані? Увійдіть тут.
Увійти зараз