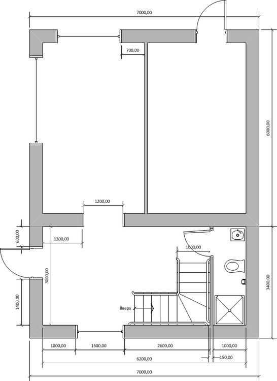
Oleksiy78 Опубліковано: 15 листопада 2014 Поділитись Опубліковано: 15 листопада 2014 итак уважаемые друзья, имеем дом и пристраеваемую в данный момент пристройку. на эскизах - первый и второй этажи. пока не разрешимая проблема для меня - лестница. делать буду сам, поэтому планирую деревянную. пока в наличии только наружные стены. как её сюда всунуть между с/у и комнатой (это на 2-ом этаже)? хотелось-бы сделать как на рис3 и рис 4. но пока не хватает опыта прикинуть поместится ли туда лестница, можно ли будет по ней комфортно подняться/спуститься для пенсионеров? вот собственно и вопрос: возможно ли туда поставить лестницу? высота потолка 2,8 м. сколько места останется на втором этаже между лестницей и стеной впереди? если же лестница в этом месте не поместится - как удобнее расположить её? винтовая или угловая? я в растеряности... Посилання на коментар Поділитися на інших сайтах More sharing options...
Offroad Опубліковано: 15 листопада 2014 Поділитись Опубліковано: 15 листопада 2014 Ви хоч дайте розміри по проєму - а то навіть їх нема. На око місця замало для комфортного підйому/спуску. По ширині коридору 2 поверху - чим вужчий, тим краще (для сходів). ІМХО я проти гвинтових - незручно Посилання на коментар Поділитися на інших сайтах More sharing options...
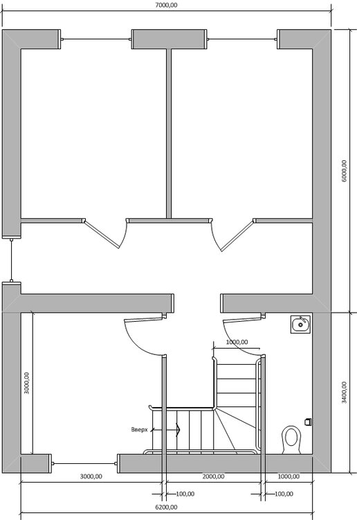
Oleksiy78 Опубліковано: 15 листопада 2014 Автор Поділитись Опубліковано: 15 листопада 2014 чітких розмірів на другому поверсі поки що нема. на данний момент зведені тільки зовнішні стіни. кімнату хотілося б зробити хоча б 3х3 метри. с/у буде шириною 1,2 метри і на першому і на другому поверсі... Посилання на коментар Поділитися на інших сайтах More sharing options...
arsenalstroy Опубліковано: 16 листопада 2014 Поділитись Опубліковано: 16 листопада 2014 Однозначно в первом варианте реальней лестницу втулить Посилання на коментар Поділитися на інших сайтах More sharing options...
Oleksiy78 Опубліковано: 16 листопада 2014 Автор Поділитись Опубліковано: 16 листопада 2014 Однозначно в первом варианте реальней лестницу втулить Я тоже хочу поставить так как нарисовано. но, мне нужно понимать поместится ли она в этом месте? Будет ли удобно подниматься при размере проема поперек второго этажа в 1,5 метра. Смогу ли я ее там развернуть? Не хватает мне опыта в строительстве лестниц... Посилання на коментар Поділитися на інших сайтах More sharing options...
GP_YUROK Опубліковано: 16 листопада 2014 Поділитись Опубліковано: 16 листопада 2014 Взяв розмір вашої стіни 3000 та висоту 2800 і розклав три варіанти сходинок. Взагалі комфортні сходи це 300 на 170-180-190. Але нажаль не влазить Прикріпив креслення з розмірами. Ще не забувайте що вам потрібно влаштувати площадку з верху та в середині. Треба думати ще. Щось придумаємо. Посилання на коментар Поділитися на інших сайтах More sharing options...
GP_YUROK Опубліковано: 16 листопада 2014 Поділитись Опубліковано: 16 листопада 2014 Але якщо почати робити з вікна (наче вікно) то можемо влізти. Може Посилання на коментар Поділитися на інших сайтах More sharing options...
GP_YUROK Опубліковано: 16 листопада 2014 Поділитись Опубліковано: 16 листопада 2014 На швидкоруч. Може допоможе. Якщо погратися розмірами то можемо влізти. Стяжка вже є? Порахували висоту покриття підлоги? Посилання на коментар Поділитися на інших сайтах More sharing options...
arsenalstroy Опубліковано: 16 листопада 2014 Поділитись Опубліковано: 16 листопада 2014 Влезет и не самый страшный проем Посилання на коментар Поділитися на інших сайтах More sharing options...
Oleksiy78 Опубліковано: 17 листопада 2014 Автор Поділитись Опубліковано: 17 листопада 2014 Влезет и не самый страшный проем да страшен не только проём, но и угол подъёма и остаток места на "площадке" второго этажа... Посилання на коментар Поділитися на інших сайтах More sharing options...
arsenalstroy Опубліковано: 17 листопада 2014 Поділитись Опубліковано: 17 листопада 2014 да страшен не проём, а угол подъёма... И на двух метра можно выйти на идеальный угол Посилання на коментар Поділитися на інших сайтах More sharing options...
Oleksiy78 Опубліковано: 17 листопада 2014 Автор Поділитись Опубліковано: 17 листопада 2014 а если сделать высоту ступеньки 20 см, глубину 27 см, нависание верхней ступеньки 3 см? буду рисовать... в какой программе удобно просчитывать/рисовать такие проблемные участки? Посилання на коментар Поділитися на інших сайтах More sharing options...
arsenalstroy Опубліковано: 17 листопада 2014 Поділитись Опубліковано: 17 листопада 2014 www.zhitov.ru/ поиграйтесь) Посилання на коментар Поділитися на інших сайтах More sharing options...
Oleksiy78 Опубліковано: 17 листопада 2014 Автор Поділитись Опубліковано: 17 листопада 2014 получается вот так: высота ступеньки - 200 мм. глубина - 270 мм. выступ края ступени - 30 мм. (чорные прямоугольники это окна) короткие ступеньки - это которые будут поворотными... Посилання на коментар Поділитися на інших сайтах More sharing options...
arsenalstroy Опубліковано: 17 листопада 2014 Поділитись Опубліковано: 17 листопада 2014 Вот, вроде как и бегать по ней можно Посилання на коментар Поділитися на інших сайтах More sharing options...
Oleksiy78 Опубліковано: 17 листопада 2014 Автор Поділитись Опубліковано: 17 листопада 2014 ну, я и малой ещё побегаем)) а тёща с тестем... хотелось бы что бы им удобно было... хватит ли 2 м между ступенькой и потолком? (в том месте где окно прямо на ступеньке "стоит"...) Посилання на коментар Поділитися на інших сайтах More sharing options...
Oleksiy78 Опубліковано: 17 листопада 2014 Автор Поділитись Опубліковано: 17 листопада 2014 а если сделать 4 поворотных ступени? удобнее по ним подниматься? Посилання на коментар Поділитися на інших сайтах More sharing options...
arsenalstroy Опубліковано: 18 листопада 2014 Поділитись Опубліковано: 18 листопада 2014 а если сделать 4 поворотных ступени? удобнее по ним подниматься? не совсем, либо 4 ступени забежные - удобный подъем, 3 забежные - не удобный подъем. Тут вам решать для кого лестницу делаете, для сына и себя или для тещеи с тестем Посилання на коментар Поділитися на інших сайтах More sharing options...
Oleksiy78 Опубліковано: 18 листопада 2014 Автор Поділитись Опубліковано: 18 листопада 2014 Ну, я таки о поворотных говорил... Или это одно и тоже? Посилання на коментар Поділитися на інших сайтах More sharing options...
arsenalstroy Опубліковано: 18 листопада 2014 Поділитись Опубліковано: 18 листопада 2014 одно и тоже Посилання на коментар Поділитися на інших сайтах More sharing options...
xserk Опубліковано: 19 листопада 2014 Поділитись Опубліковано: 19 листопада 2014 "Высота потолка" несколько не корректная величина.. нужно мерять высоту от "нуля" 1го этажа до "нуля" второго этажа, и отдельно толщину перекрытия для уровня головы. я вот прикинул минимально удобоходимую.. высота ступеней 18,7 см . Взял высоту подъема 300см и толщину перекрытия 20 см. Уровень головы 185 см.. Шаг 65 см. Посилання на коментар Поділитися на інших сайтах More sharing options...
Oleksiy78 Опубліковано: 29 грудня 2014 Автор Поділитись Опубліковано: 29 грудня 2014 а в какой программе делали? Посилання на коментар Поділитися на інших сайтах More sharing options...
xserk Опубліковано: 29 грудня 2014 Поділитись Опубліковано: 29 грудня 2014 а в какой программе делали? Compass Staircase-Software Programs 9 Посилання на коментар Поділитися на інших сайтах More sharing options...
blin09 Опубліковано: 30 грудня 2014 Поділитись Опубліковано: 30 грудня 2014 высота ступеней 18,7 см . Взял высоту подъема 300см и толщину перекрытия 20 см. Уровень головы 185 см.. Шаг 65 см. А можно детальные размеры? Как-то не выходит высота 320см, на рис. 15 ступеней, при высоте 18,7см это как раз высота 280,5 см. Посилання на коментар Поділитися на інших сайтах More sharing options...
xserk Опубліковано: 30 грудня 2014 Поділитись Опубліковано: 30 грудня 2014 А можно детальные размеры? Как-то не выходит высота 320см, на рис. 15 ступеней, при высоте 18,7см это как раз высота 280,5 см. внимательней нужно быть. высота подъема взята 300 см. не 320.. и лестница фактически на 16 ступеней , последний шаг это выход на уровень пола. Посилання на коментар Поділитися на інших сайтах More sharing options...
Рекомендовані повідомлення
Створіть акаунт або увійдіть у нього для коментування
Ви маєте бути користувачем, щоб залишити коментар
Створити акаунт
Зареєструйтеся для отримання акаунта. Це просто!
Зареєструвати акаунтУвійти
Вже зареєстровані? Увійдіть тут.
Увійти зараз