dragonuaix Опубліковано: 29 грудня 2014 Поділитись Опубліковано: 29 грудня 2014 (змінено) Добрый день! Планирую строиться, но проблема в том что место куда можно "втиснуть" домик, очень маленький, реально можно втиснуть 9*10 метров постройку плюс маленькая веранда. Усугубляется тем, что домик будет на две семьи с раздельными входами (строиться будем вскладчину ). Соответственно самое простое решение - разделить дом перегородкой пополам и зеркально нарисовать комнаты. Так как готового проекта под такие условия найти нереально - рисую эскизы сам. Дом будет каркасным, толщину стен планирию: внешние - сайдинг + 20мм osb + 200*50мм брус + 12.5мм гипсокартон внутренние несущие - 12.5мм гипсокартон + 100*50мм брус внутренние ненесущие - 12.5мм гипсокартон + 100мм алюминиевый профиль. фундамент - ленточный из ж/б, т.к. высоко стоят грунтовые воды (сваи в таком случае "провалятся") 1 этаж - прихожая+гостиная+кухня+санузел (и то же зеркально на вторую семью). Высота потолка 2.7м. 2 этаж - две комнаты на одну семью и три комнаты на вторую семью (понимаю, что во втором случае комнаты получаются крошечными и неудобными, но планируем из расчета комната на каждого из двух ребенков плюс комната родителей, поэтому именно 3 - обязательно) + санузлы соответственно. Высота потолка 2.6м. чердак будет маленький и нежилой - планируем использовать как небольшой склад ненужного, плюс там будет стоять рекуператор. Опыта у меня в строительстве нет, поэтому прошу покритиковать эскизы (во вложении). Змінено 29 грудня 2014 користувачем dragonuaix Посилання на коментар Поділитися на інших сайтах More sharing options...
OlegArh Опубліковано: 29 грудня 2014 Поділитись Опубліковано: 29 грудня 2014 домик, очень маленький...9*10 метров...на две семьи с раздельными входами...готового проекта под такие условия найти нереальноИщите таунхаусы. В этом размере вариантов хоть и не много, но есть. Посилання на коментар Поділитися на інших сайтах More sharing options...
dragonuaix Опубліковано: 4 січня 2015 Автор Поділитись Опубліковано: 4 січня 2015 Погуглил, единственное что нашел с похожими внешними размерами это (ссылка устарела) (планировка на две семьи), но в найденном варианте нет санузла на втором этаже и как для меня не очень удобно что совмещены кухня и гостиная. Все остальные найденные таунхаусы раза в полтора-два шире чем то что у меня планируется. Может, кто подскажет, можно ли в таких размерах как-то оптимальнее нарисовать комнаты второго этажа? Сам уже крутил по-всякому, пока вижу единственным вариантом тот который нарисовал. Посилання на коментар Поділитися на інших сайтах More sharing options...
Evgenij_S Опубліковано: 12 січня 2015 Поділитись Опубліковано: 12 січня 2015 proekty.ua/ru/proekty/townhouse/100-200/a-188/ Подходящий для Вас проект, а если убрать эркер в гостиной, то как раз выходите на необходимую ширину. Посилання на коментар Поділитися на інших сайтах More sharing options...
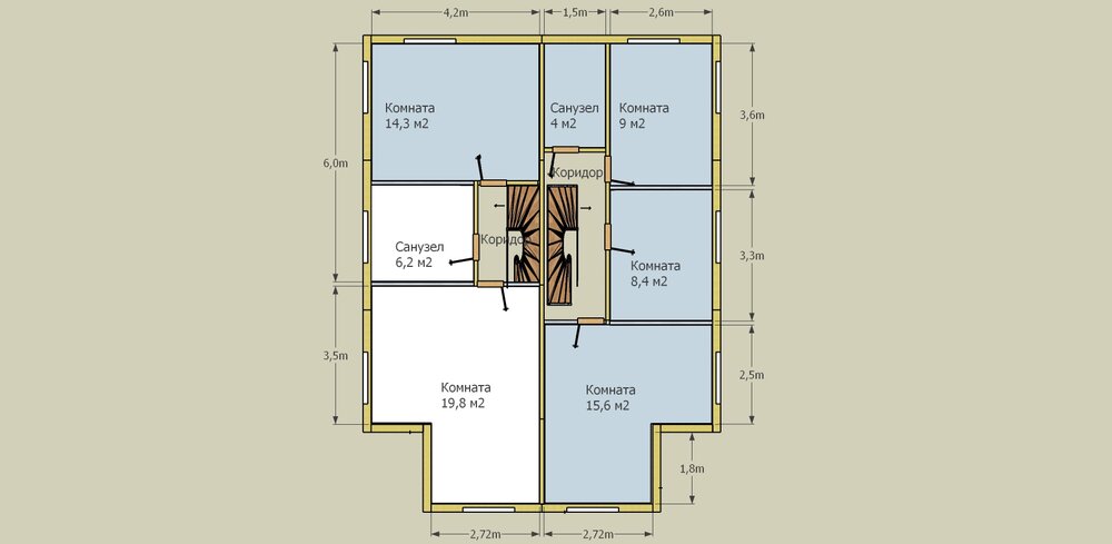
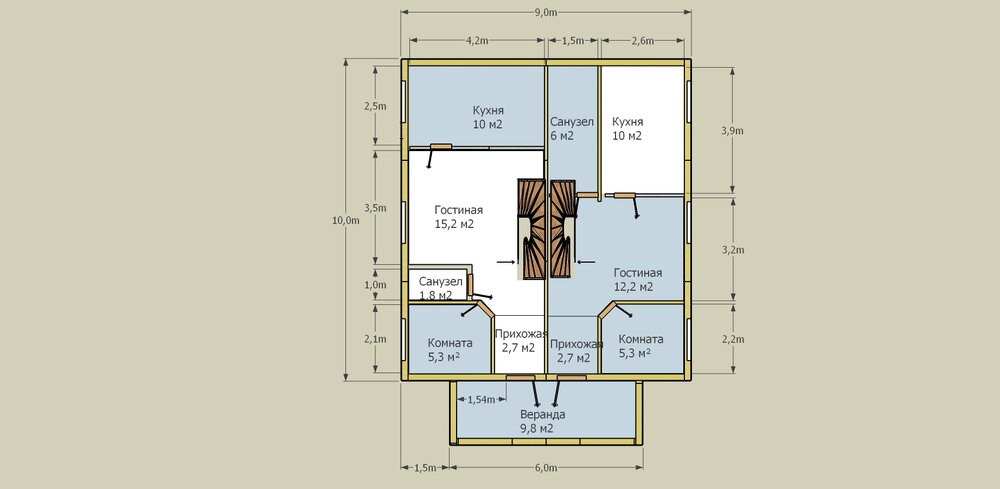
dragonuaix Опубліковано: 16 січня 2015 Автор Поділитись Опубліковано: 16 січня 2015 proekty.ua/ru/proekty/townhouse/100-200/a-188/ Подходящий для Вас проект, а если убрать эркер в гостиной, то как раз выходите на необходимую ширину. На необходимую ширину не выходим, т.к. в проекте по ссылке ширина 5.8м, а у меня ширина 4.1м. И открытая кухня объединенная с гостиной - крайне неудобно (не понимаю, почему во многих проектах кухня совмещенная с гостиной - веяние моды, что ли?), при готовке чего-либо все запахи будут по этажу витать. Но пару интересных идей почерпнул - лестница с забежными ступенями сэкономит немного места, расположение ванной тоже позволяет оптимизировать место. Перерисовал эскизы соответственно вышенаписанному, прошу теперь покритиковать. Посилання на коментар Поділитися на інших сайтах More sharing options...
Evgenij_S Опубліковано: 16 січня 2015 Поділитись Опубліковано: 16 січня 2015 Перерисовал эскизы соответственно вышенаписанному, прошу теперь покритиковать. в левой части дома, где гостиная 15 м2 - 1 эт более практичен. И я быотказался от комнатки в 5,3 м2 эли в ней нет острой необходимости. Посилання на коментар Поділитися на інших сайтах More sharing options...
Kysil Опубліковано: 16 січня 2015 Поділитись Опубліковано: 16 січня 2015 И я быотказался от комнатки в 5,3 м2 эли в ней нет острой необходимости. Чого це? Нормальна вийде комірчина для різного мотлоху. Посилання на коментар Поділитися на інших сайтах More sharing options...
Evgenij_S Опубліковано: 16 січня 2015 Поділитись Опубліковано: 16 січня 2015 ну разве что как кладовка... Посилання на коментар Поділитися на інших сайтах More sharing options...
dragonuaix Опубліковано: 16 січня 2015 Автор Поділитись Опубліковано: 16 січня 2015 в левой части дома, где гостиная 15 м2 - 1 эт более практичен. Это да, но если такую же планировку левой части 1 эт скопировать на правую часть - то санузлы первого и второго этажа в правой части дома окажутся сильно разнесены, прийдется думать как тянуть канализац. трубы. А изменить планировку 2 эт правой части дома, так чтобы там поместился санузел плюс три комнаты, и чтобы санузлы были друг над другом - пока что не представляю как. И я быотказался от комнатки в 5,3 м2 эли в ней нет острой необходимости. Эту комнатку мы рассматриваем как вариант рабочего места/кабинета (поставить там стол и стул, и уединиться с компьютером/швейной машинкой/итд) Но, в принципе, можно отказаться. Посилання на коментар Поділитися на інших сайтах More sharing options...
Докторица Опубліковано: 20 січня 2015 Поділитись Опубліковано: 20 січня 2015 Добрый день! Опыта у меня в строительстве нет, поэтому прошу покритиковать эскизы (во вложении). Как расположен Ваш дом на участке? Размеры участка? Нельзя ли входы сделать на стороне, которая 10 м.? Просчитайте правильно лестницу, она займёт больше места, чем на вашем эскизе. я так понимаю, верандой Вы называете , то, что со стороны входных дверей. Зачем она там нужна? Делайте её застеклённой, и будет Вам предбанник. Сконцентрируйте кухню и сан. узлы ( вент. каналы, подвод воды, канализацию) рядом. :roll: Посилання на коментар Поділитися на інших сайтах More sharing options...
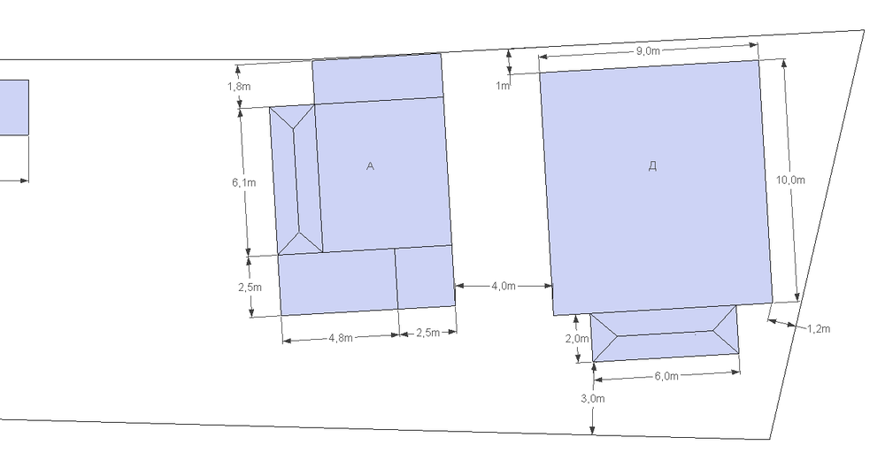
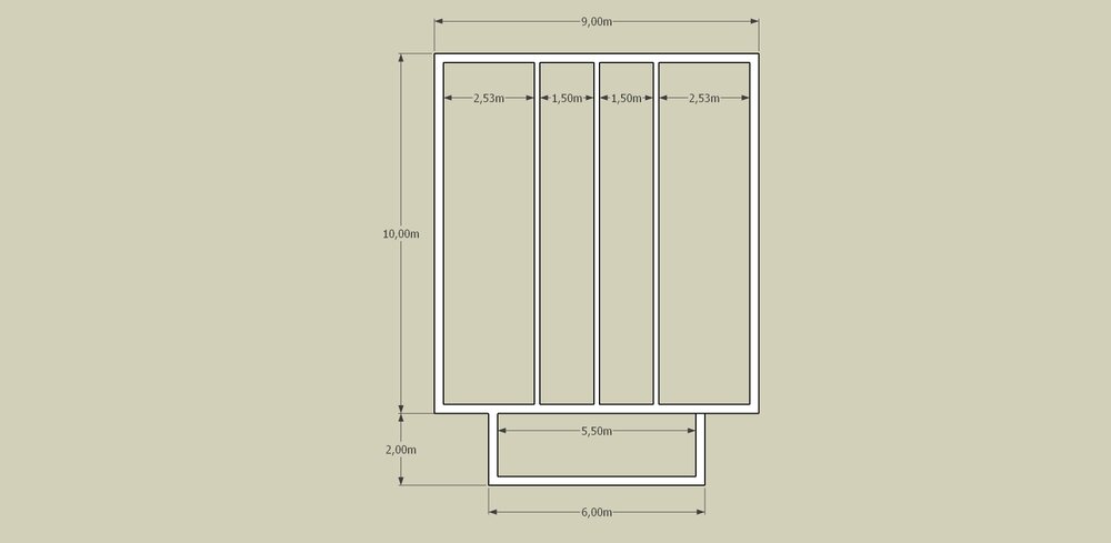
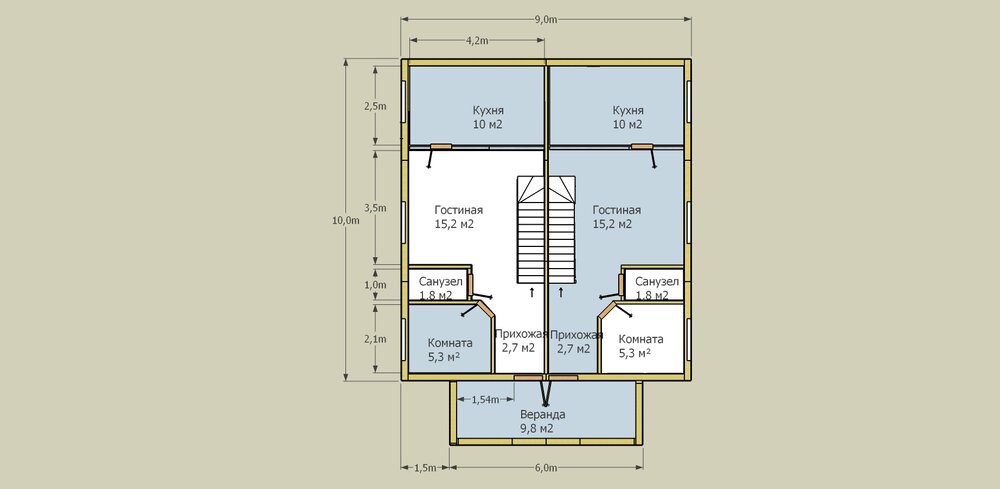
dragonuaix Опубліковано: 23 січня 2015 Автор Поділитись Опубліковано: 23 січня 2015 (змінено) Как расположен Ваш дом на участке? Размеры участка? Нельзя ли входы сделать на стороне, которая 10 м.? Примерно нарисовал часть участка где планируем строиться; дом "А" - тот в котором сейчас живем, "времянка", дом "Д" - тот который планируем построить. Участок очень узкий и длинный, но в других местах участка дом разместить не получится. Входы но стороне 10 м делать неудобно (много причин, долго перечислять). Просчитайте правильно лестницу, она займёт больше места, чем на вашем эскизе. Посчитал правильно, перерисовал. Не вижу, чтобы больше места занимала. я так понимаю, верандой Вы называете , то, что со стороны входных дверей. Зачем она там нужна? Делайте её застеклённой, и будет Вам предбанник. Тут все в деньги упирается. Сразу делать веранду застекленной - по деньгам не потянем, но в перспективе (через 3-5 лет после постройки) будет застекленная. Сконцентрируйте кухню и сан. узлы ( вент. каналы, подвод воды, канализацию) рядом. :roll: Эх, знать бы как это сделать красиво )) Вот на первых рисунках кухни и санузлы сконцентрированы рядом, но все комнаты стоят неоптимально. На последних рисунках кухни и санузлы разнесены, но комнаты смотрятся красивее. Имхо канализация все равно будет проходить под полом - поэтому некритично; трубы подвода воды можно пустить вдоль стен и закрыть гипсокартоном, а вент.каналы кухни и санузла в любом случае будут отдельными. Санузлы на первом и втором этаже перекрываются, тут проблем с трубами быть не должно. В общем, постарался рекомендации учесть насколько можно и перерисовал еще раз (во вложении). Змінено 23 січня 2015 користувачем dragonuaix Посилання на коментар Поділитися на інших сайтах More sharing options...
Рекомендовані повідомлення
Створіть акаунт або увійдіть у нього для коментування
Ви маєте бути користувачем, щоб залишити коментар
Створити акаунт
Зареєструйтеся для отримання акаунта. Це просто!
Зареєструвати акаунтУвійти
Вже зареєстровані? Увійдіть тут.
Увійти зараз