evgesh Опубліковано: 4 січня 2015 Поділитись Опубліковано: 4 січня 2015 Доброго времени суток! Подскажите, как правильно перекрыть пролет вокруг дымохода во внутренней несущей стене. Стена прерывается дымоходом. Есть плиты как раз нужной длины 3,7 м. Но насколько я понимаю без монолита (или теривы) не обойтись. Вот набросал схемки. Внутренняя несущая стена 38 см, материал могу использовать кирпич полнотелый красный (1,5 кирп), или газоблок 375 плюс Армопояс. Но там где центральный дымоход стена ложиться в 1\2 кирпича., в связи с этим армпопояс утончается. 1. Могу ли я с одной стороны дымохода (центрального) одну часть монолита заменить на плиту перекрытия пустотную 2ПК? Т.е. достаточно ли ей такого опирания на стену в пол кирпича с армопоясом 12см шириной. (на схеме это часть монолита под дымоходом) 2. На каком оптимальном расстоянии, необходимом для монолита, укладывать плиты (т.е. какое минимальное расстояние от дымохода до плиты необходимо сразу запланировать)? (на схеме красные вопросики). 3 Аналогичный вопрос как №2, если использовать терриву, какое расстояние между дымоходом и плитами (слева и справа от дымохода) оставлять для балок терривы? 3 Подскажите или дайте ссылки в целом как правильно в данном случае сделать монолит,я думаю толщиной 12 см., и обыграть проем вокруг дымохода. Двутавром? или как? Заранее спс. Прошу тапками сильно не кидать. Посилання на коментар Поділитися на інших сайтах More sharing options...
Drosselbeere Опубліковано: 4 січня 2015 Поділитись Опубліковано: 4 січня 2015 Пару вопросов, будете ли гильзовать дымоход и для чего вент каналы?. укладывал бы сборные плиты, а с монолитом не связывался. Посилання на коментар Поділитися на інших сайтах More sharing options...
evgesh Опубліковано: 4 січня 2015 Автор Поділитись Опубліковано: 4 січня 2015 Пару вопросов, будете ли гильзовать дымоход и для чего вент каналы?. укладывал бы сборные плиты, а с монолитом не связывался. Дымовой канал только под каминную топку 12 квт, выход 200 см. Дымовой канал ложу 27 на 13 планирую гильзовать керамикой (если деньги позволят:D). Два вентканал в один заходи короб от вытяжки с кухни, другой канал кухни (по проекту так). Сборные плиты это какие? пустотки 2ПК? Я сначала думал вот так (картинка), но сказали что плиты опирать на дымоход нельзя, да и толщина увеличивается дымохода. (один вент канал убрал) Посилання на коментар Поділитися на інших сайтах More sharing options...
Drosselbeere Опубліковано: 4 січня 2015 Поділитись Опубліковано: 4 січня 2015 если дымоход гильзуеться, то в чем проблема опирания плит перекрытия, стены 380 вполне достаточно для опирания плит перекрытия. выложите план с проекта, я посмотрю на возможность раскладки Посилання на коментар Поділитися на інших сайтах More sharing options...
evgesh Опубліковано: 4 січня 2015 Автор Поділитись Опубліковано: 4 січня 2015 если дымоход гильзуеться, то в чем проблема опирания плит перекрытия, стены 380 вполне достаточно для опирания плит перекрытия. выложите план с проекта, я посмотрю на возможность раскладки Печники против связи дымохода со стеной, даже если гильзовать, и говорят что опирать плиту на дымоход нельзя. 380 это слева и справа от дымохода. А дымоход разрывает стену и армопояс, т.е за дымоходом стена из 380 см переходит в полкирпича, дальше опять 380 см. Думал другие ваританты (картинки), но печники говорят, что так нельзя (опирать плиты на дымоход) Посилання на коментар Поділитися на інших сайтах More sharing options...
Drosselbeere Опубліковано: 4 січня 2015 Поділитись Опубліковано: 4 січня 2015 картинка отвратительная, размеры не читаются но печники говорят, что так нельзя (опирать плиты на дымоход) так может печники вам и перекрытие сделают? Посилання на коментар Поділитися на інших сайтах More sharing options...
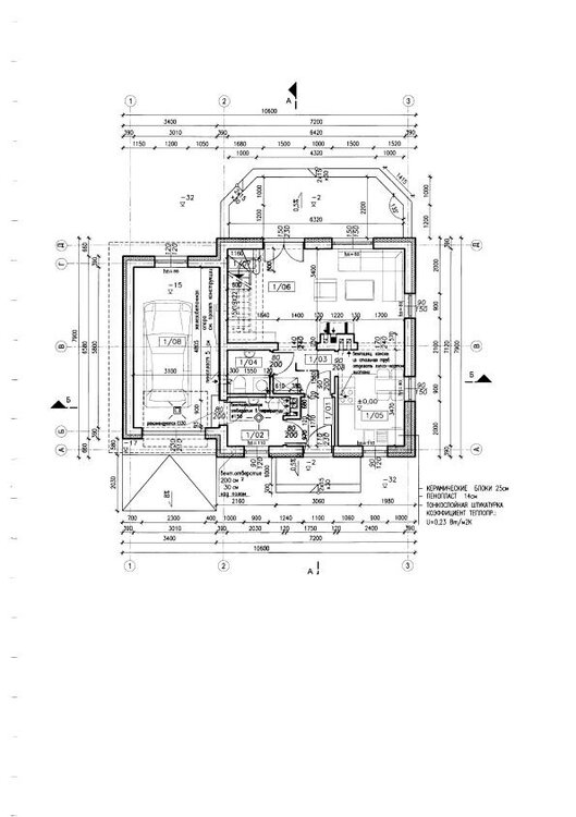
evgesh Опубліковано: 4 січня 2015 Автор Поділитись Опубліковано: 4 січня 2015 картинка отвратительная, размеры не читаются Внутренняя стена по центру, по проекту 250 (я увеличил до 380), габариты дома 7900 на 7200. Стена наружная 250 керамблок +140 утеплитель (итого 390 по проекту). У меня наружная стена из 375 ГБ. Какие размеры не видно, буду дополнять. так может печники вам и перекрытие сделают? Вы хотите сказать что они не правы? Посилання на коментар Поділитися на інших сайтах More sharing options...
Рекомендовані повідомлення
Створіть акаунт або увійдіть у нього для коментування
Ви маєте бути користувачем, щоб залишити коментар
Створити акаунт
Зареєструйтеся для отримання акаунта. Це просто!
Зареєструвати акаунтУвійти
Вже зареєстровані? Увійдіть тут.
Увійти зараз