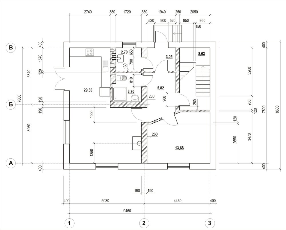
voltik.kiev.ua Опубліковано: 17 липня 2015 Поділитись Опубліковано: 17 липня 2015 Добрый день. Сейчас на стадии штукатурки и хочу заложить провода под датчики движения. Куда сдавать на охрану пока не решил, но провода хочу вывести. Кто в курсе, ткните пожалуйста на плане куда вывести "хвосты". Заранее спасибо. Посилання на коментар Поділитися на інших сайтах More sharing options...
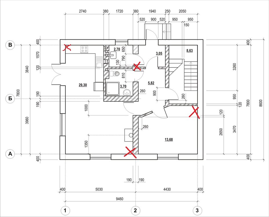
voltik.kiev.ua Опубліковано: 17 липня 2015 Автор Поділитись Опубліковано: 17 липня 2015 Мои мысли на эту тему на плане ниже, покритикуйте плииз. Посилання на коментар Поділитися на інших сайтах More sharing options...
bezpekactv Опубліковано: 20 липня 2015 Поділитись Опубліковано: 20 липня 2015 Провод под смк на дверь. Датчики движения на двери должни смотреть и на окна. Клава и под централь 220, висота тажа. 1 Посилання на коментар Поділитися на інших сайтах More sharing options...
Друже Бобер Опубліковано: 21 липня 2015 Поділитись Опубліковано: 21 липня 2015 Прежде чем что-то куда-то выводить,определитесь с дизайном,мебелью,светильниками и т.д А так же проверьте уровень сигнала GSM в том месте где у Вас будет висеть централь.Если минимум,то ищите другое место. 1 Посилання на коментар Поділитися на інших сайтах More sharing options...
veetall Опубліковано: 22 липня 2015 Поділитись Опубліковано: 22 липня 2015 Добрый день. Сейчас на стадии штукатурки и хочу заложить провода под датчики движения. Куда сдавать на охрану пока не решил, но провода хочу вывести. Кто в курсе, ткните пожалуйста на плане куда вывести "хвосты". Заранее спасибо. выводи сигнальный кабель типа такого (ссылка устарела) но это кабель биметал...если нужна медь... то там на сайте должен быть и медный кабель... но при монтаже внутри помещения разницы в работе не почувствуете 1 Посилання на коментар Поділитися на інших сайтах More sharing options...
voltik.kiev.ua Опубліковано: 22 липня 2015 Автор Поділитись Опубліковано: 22 липня 2015 Датчики движения на двери должни смотреть и на окна. Расшифруйте пожалуйста, я планировал датчики движения по углам (на схеме в моем втором сообщении красные крестики)? Посилання на коментар Поділитися на інших сайтах More sharing options...
Vladimir75 Опубліковано: 23 липня 2015 Поділитись Опубліковано: 23 липня 2015 (змінено) Расшифруйте пожалуйста, я планировал датчики движения по углам (на схеме в моем втором сообщении красные крестики)? Датчики желательно направлять в сторону оконного проема. Датчик возле кухонной поверхности лучше перенести. Змінено 23 липня 2015 користувачем Vladimir75 и Посилання на коментар Поділитися на інших сайтах More sharing options...
Firetuf Опубліковано: 24 липня 2015 Поділитись Опубліковано: 24 липня 2015 выводи сигнальный кабель типа такого (ссылка устарела) но это кабель биметал...если нужна медь... то там на сайте должен быть и медный кабель... но при монтаже внутри помещения разницы в работе не почувствуете 1. В системах охранно-пожарной сигнализации, разрешены к применению кабели ТОЛЬКО с медными проводниками! 2. Применять кабель экранированный или неэкранированный - это уже сугубо определяется специалистом по месту. Экранированный - более надежный. 3. Выбор сечения жилы определяется также специалистом. Рекомендованный диаметр медного проводника - не менее 0,5 мм. Европейские нормы прописывают 0,8 мм. Посилання на коментар Поділитися на інших сайтах More sharing options...
Samakat Опубліковано: 24 липня 2015 Поділитись Опубліковано: 24 липня 2015 Нормы действительно гласят - 0,5 - 0,8мм. Только вряд ли эти нормативы пересматривались с года этак 75 или когда они там были придуманы. По факту же кабель с сечением 0,75 очень проблематично подключать в клеммы датчика движения или пр. Во первых они банально с трудом помещаются в клеммы,а во вторых всю коммутацию очень сложно будет спрятать с корпус датчика. Посилання на коментар Поділитися на інших сайтах More sharing options...
Firetuf Опубліковано: 25 липня 2015 Поділитись Опубліковано: 25 липня 2015 Нормы действительно гласят - 0,5 - 0,8мм. Только вряд ли эти нормативы пересматривались с года этак 75 или когда они там были придуманы. По факту же кабель с сечением 0,75 очень проблематично подключать в клеммы датчика движения или пр. Во первых они банально с трудом помещаются в клеммы,а во вторых всю коммутацию очень сложно будет спрятать с корпус датчика. Вот только не надо.... Конституция Америки не пересматривается с самого начала и что? Устарела? Нормы и Правила не дураками писана, просто не для дураков - это другое дело. Нужна подготовка, то есть надлежащее образование, чтобы понимать "физику процесса", как говорил мой декан. По кабелю - А я и не советую, да и нормативка тоже, везде применять например 0,75 мм.кв. для шлейфов ОПС. Там где это требуется - может и больше быть. Например адреска, где четко прописано максимально-допустимое сопроотивление шлейфа, или например периметралка. Почему я всегда и говорю - это удел решать специалисту. Что касается квартиры/офиса - все европейские централи "заточены" под 0,8 мм - 2,5 мм, но диаметра, не квадратов. И именно под монопроволоку. В таких помещениях необходимости в больших сечениях нет. Кстати, рассияне, в своем Своде указывают сечение не менее 0,5мм. И докУмент не какого-то прошлого столетия, а именно недавняя редакция. Или EN-54 который, для всех развитых стран обязательный, что - устаревший? Да нет, просто мы такие. Умеем оправдать люминявые кабеля, бодяженный бензин, сою вместо мяса, и т.д.....А потом еще и возмущаемся, чего же все так у нас хреново? 1 Посилання на коментар Поділитися на інших сайтах More sharing options...
Друже Бобер Опубліковано: 25 липня 2015 Поділитись Опубліковано: 25 липня 2015 Про нормы...Да,их нужно соблюдать.Но очент много этих "норм" написано под конкретный кабель,конкретного производителя.) И про "медность" в т.ч.) А про пожарку лучше не начинайте ....) Посилання на коментар Поділитися на інших сайтах More sharing options...
Firetuf Опубліковано: 25 липня 2015 Поділитись Опубліковано: 25 липня 2015 Про нормы...Да,их нужно соблюдать.Но очент много этих "норм" написано под конкретный кабель,конкретного производителя.) И про "медность" в т.ч.) А про пожарку лучше не начинайте ....) Назовите мне хоть одну норму, которая написана под "биметалл"? Назовите мне хоть один пункт EN-54 под конкретного производителя? А про пожарку не понял... Посилання на коментар Поділитися на інших сайтах More sharing options...
Друже Бобер Опубліковано: 27 липня 2015 Поділитись Опубліковано: 27 липня 2015 Я вас попрошу,не пугайте людей!)Народ начитавшись инета чуть ли не на "на зуб" пробывает кабеля.)Все хорошо,только медь для охранных систем.Не переживайте так. 1 Посилання на коментар Поділитися на інших сайтах More sharing options...
Samakat Опубліковано: 27 липня 2015 Поділитись Опубліковано: 27 липня 2015 А потом еще и возмущаемся, чего же все так у нас хреново? Не знаю,кто там возмущается и у кого где хреново... У меня все отлично. Тот кто любит жить по бумажке - пусть живет по бумажке и кладет провода на ОПС в 2,5 квадрата! А я закладывал и буду закладывать 0,22 МЕДЬ. Про биметал никто не говорит.Конечно медь и только медь! И никаких проблем на протяжении 10 лет с использованием сечения в 0,22 не наблюдалось и не будет наблюдаться! Система работает,результат есть,гарантия на работоспособность системы у заказчика есть.Все довольны и у всех всё отлично! Посилання на коментар Поділитися на інших сайтах More sharing options...
Firetuf Опубліковано: 28 липня 2015 Поділитись Опубліковано: 28 липня 2015 Я вас попрошу,не пугайте людей!)Народ начитавшись инета чуть ли не на "на зуб" пробывает кабеля.)Все хорошо,только медь для охранных систем.Не переживайте так. а что, после того, как народ начал проверять кабеля, паганенько "фуфел" стал впариваться? Мне, кстати, пререживать то сейчас уже нечего - не мне на ложняки ездить и обслугу не посылать! Добавлено через 3 минуты Не знаю,кто там возмущается и у кого где хреново... У меня все отлично. Тот кто любит жить по бумажке - пусть живет по бумажке и кладет провода на ОПС в 2,5 квадрата! А я закладывал и буду закладывать 0,22 МЕДЬ. Про биметал никто не говорит.Конечно медь и только медь! И никаких проблем на протяжении 10 лет с использованием сечения в 0,22 не наблюдалось и не будет наблюдаться! Система работает,результат есть,гарантия на работоспособность системы у заказчика есть.Все довольны и у всех всё отлично! а кто же против 0,22 мм.кв. меди? Внимательно читайте посты. Да будет известно Вам, эти 0,22 мм.кв - это и есть те минимаольно рекомендуемые 0,5 мм диаметра. А что касается живущих по бумажке и применяющие 2,5 мм.кв. - искренне и Вам желаю, столкнуться с иерархической адресной системой, с шлейфами по несколько км и по несколько сотен датчиков, да периметр построить в несколько км. Посилання на коментар Поділитися на інших сайтах More sharing options...
Друже Бобер Опубліковано: 28 липня 2015 Поділитись Опубліковано: 28 липня 2015 Я искренне вам благодарен за все Вами выше сказанное.Я и Вы хоть знаем о чем. Вы спросите у кого угодно тут что такое "адресная",и вам без Гугла никто не ответит.Повторюсь,я "за медь"! И пожалуйста выбирайте выражения.Я очень давного перестал экономить на кабеле 2-3 доллара на 100 метрах.Это я проходил очень давно... Посилання на коментар Поділитися на інших сайтах More sharing options...
Firetuf Опубліковано: 28 липня 2015 Поділитись Опубліковано: 28 липня 2015 И пожалуйста выбирайте выражения.сорри, я понял о чем, но сказанное мною было никак не в Ваш адрес (вы что, продаван кабеля - нет), но вот с "биметаллами" я действительно "завожусь" и выражений уже не выбираю . Удачи. Посилання на коментар Поділитися на інших сайтах More sharing options...
vbb Опубліковано: 28 липня 2015 Поділитись Опубліковано: 28 липня 2015 Датчики желательно направлять в сторону оконного проема. Если окна выходят на улицу, зимой возможны ложные тревоги от проезжающих машин Посилання на коментар Поділитися на інших сайтах More sharing options...
Рекомендовані повідомлення
Створіть акаунт або увійдіть у нього для коментування
Ви маєте бути користувачем, щоб залишити коментар
Створити акаунт
Зареєструйтеся для отримання акаунта. Це просто!
Зареєструвати акаунтУвійти
Вже зареєстровані? Увійдіть тут.
Увійти зараз