ZRF Опубліковано: 11 серпня 2015 Поділитись Опубліковано: 11 серпня 2015 Уважаемые форумчане, собрался устанавливать мп. окна но возник ряд вопросов на которые получаю слишком разную информацию от дилеров и монтажников (которые в основной своей массе, в нашей провинции скажем так - не вполне профессионалы). Хотелось бы узнать Ваше мнение и получить совет. 1. Профиль, мне предлагают вместо Рехау Евро 70 установить ЕвроСол70, говоря о аналогичных его характеристиках при меньшей цене. Вместе с этим может купить Бриллиант Дизайн - что это даст кроме внешнего вида? 2. Стеклопакет выбор между - 4-6-4-6-4и, 4-12-4-8-4и, 4и-12-4-8-4и, 4-10-4-10-4и 3. Фурнитура - GU, MAKO, Siegenia Titan AF, AXOR K-3 Comfort line, Siegenia Favorit. Все ставят GU (80%)или Аксор (20%), я начитавшись интернета подумываю о Siegenia Titan AF. 4. Доп. фурнитура - практически ничего из перечисленного не заказывают, вопрос стоит ли напрягаться - пошаговое проветривание, ручка HOPPE, ответка микрощелевое Siegenia, ручка HOPPE (Secustic), микролифт роликовый Siegenia , ручка оконная Siegenia/ MAKO/GU 5. Монтаж - самый больной вопрос, у нас установка окна - это процесс впихивания его в проем, крепление анкерами и заливка по периметру самой дешевой пеной. Доплачивать за фирменную пену, если да, то выбор между Ceresit TS52, SomaFix или Soudal. Использовать паро и влагоизоляционную ленту или не переплачивать, а если покупать то Greente Q, llBruk (это те, что есть на заводе по произв. окон). Может у кого-то есть ссылка на инструкцию по подобному монтажу? 6. Подоконники - у Danke есть альтернативе по цене и с лучшим качеством? 7. Армировка - стандартно 1,4мм., доплачивать за 2мм или на стандартных окнах это лишнее? Прошу прощения за такие обьемные и возможно уже обговоренные вопросы, но возможно кто-то из знающих выделит минутку для обьяснения. P.S. И да особенного выбора между производителями и монтажниками в моем регионе нет, а такой вариант Рехау и пр. является у нас самым качественным из возможных и доступных по цене. 1 Посилання на коментар Поділитися на інших сайтах More sharing options...
ViknaStar Опубліковано: 11 серпня 2015 Поділитись Опубліковано: 11 серпня 2015 (змінено) 1) Из предложенных вариантов, рекомендовал бы остановить свой выбор на rehau brillant, который в отличии от euro 70 и ecosol имеет толщину лицевой стенки 3 мм. и относится к профилям класса А. 2) Если Вы проживаете в регионе, который согласно ДБН В.2.6-31:2006 относится к первой климатической зоне, то не один из предложенных вариантов стеклопектов не будет соответствовать требованиям ДБН В.2.6-31:2006 (сопротивление теплопередачи оконной конструкции не менее 0,75) Рассмотрите вариант со стеклопакетом 4-14Ar-4-14Ar-4i или с двумя низкоэмиссионными стеклами 4i-14Ar-4-14Ar-4i 3) Выбирайте любую европейскую фурнитуру (Siegenia, Maco, WINKHAUS, Gu, Roto). Лично мы работаем с фурнитурой Siegenia серия Titan AF в целом очень добротная, надежная и удобная в эксплуатации фурнитура; 4) Из предложенных опций всегда по умолчанию ставим: микролифт, блокиратор ошибочного открывания, щелевое проветривание, ручка HOPPE (Secustic) – все эти опции не дорого стоят, но продлевают жизнь фурнитуре и улучшают комфорт использования оконной конструкции; 5) К номеру один отнес бы даже не пену, а количество точек крепления и качество самого крепежа, который подбираются в зависимости от типа стены (если интересно готов в личку скинуть необходимые схемы). Пену Soudal – неплохой выбор, сами ее используем! По поводу лент тут выбор за Вами, но все же желательно их использовать! 6) Посмотрите в сторону немецких подоконников Werzalit или Moller, хотя Данке тоже вполне пристойный вариант; 7) Если профиль будет белый то в большинстве случаев достаточно армировки 1,5 мм; если ламинированный (цветной) то необходимо использовать метал толщиной 1,75-2 мм; Змінено 11 серпня 2015 користувачем ViknaStar 2 Посилання на коментар Поділитися на інших сайтах More sharing options...
Алік Опубліковано: 11 серпня 2015 Поділитись Опубліковано: 11 серпня 2015 Дополню по подоконникам: у Рехау тоже есть весьма качественные. Посилання на коментар Поділитися на інших сайтах More sharing options...
djdinamid Опубліковано: 30 вересня 2015 Поділитись Опубліковано: 30 вересня 2015 7) Если профиль будет белый то в большинстве случаев достаточно армировки 1,5 мм; если ламинированный (цветной) то необходимо использовать метал толщиной 1,75-2 мм; Можете описать поподробней почему? Посилання на коментар Поділитися на інших сайтах More sharing options...
ViknaStar Опубліковано: 30 вересня 2015 Поділитись Опубліковано: 30 вересня 2015 Можете описать поподробней почему? 1) Такие требования записаны в папке переработчика профильных систем; 2) Требования толщины армирования 1,5 мм прописаны в ДСТУ Б В.2.6-15-2011. Блоки віконні та дверні полівінілхлоридні Загальні технічні умови 3) В большинстве случаев армирования сечением квадрат толщиной 1,5 можно устанавливать в импоста и не опасаться ветровых нагрузок (но все равно лучше считать данную нагрузку и знать наверняка; 4) Цветные профиля нагреваются больше чем белый и соответственно коэффициент линейного расширения у них больше, что бы это компенсировать нужно устанавливать армирование большой толщины. Посилання на коментар Поділитися на інших сайтах More sharing options...
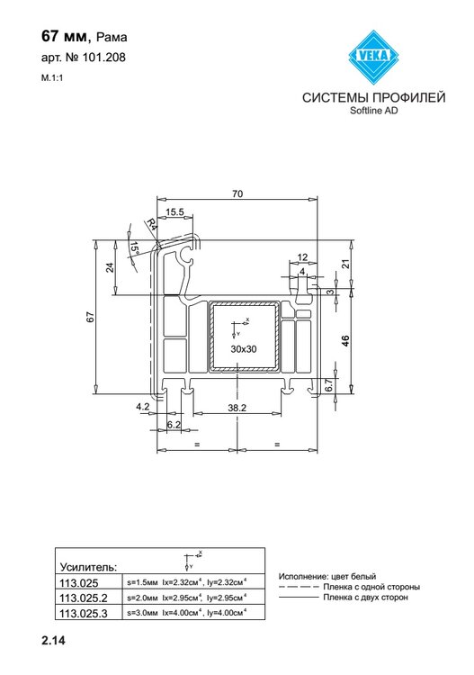
kusfu Опубліковано: 7 листопада 2015 Поділитись Опубліковано: 7 листопада 2015 1) Профиль MegaLine 500, фурнитура Siegenia Favorit, стеклопакет 4/18Ar/4/12Ar/4i теплая дистанция 2) профиль Veka softline AD70, фурнитура UNI-JET, стеклопакет 4-10-4-10-4і теплая дистанция Что лучше выбрать или добавить, какое окно будет "теплее"? В первом варианте стеклопакета не слишком ли большая дистанция между стеклами? Смущает что в 1го профиля толщина 1,4мм, читал что нужно 1,5мм для белого профиля и 1,75 для цветного, верно? Посилання на коментар Поділитися на інших сайтах More sharing options...
ViknaStar Опубліковано: 7 листопада 2015 Поділитись Опубліковано: 7 листопада 2015 Я бы рекомендовал второй вариант, по нескольким причинам: 1) Veka это профиль класса А с толщиной внешней стенки 3 мм, армирование в раме и импосте используется квадратного сечения, профиль MegaLine 500 этим похвастаться не сможет. 2) Во втором варианте стеклопакет лучше увеличить до 40 мм и добавить газ аргон; (4-14Ar-4-14Ar-4i + теплая дистанция) по цене это будет не очень дорого но оптимально по теплоизоляции; Если производитель не сможет изготовить данный пакет (например, нет у него необходимого штапика), тогда рассмотрите вариант 4i-10Ar-4-10Ar-4i + теплая дистанция; 3) Ну и последние, обратите внимание на самого производителя окон (переработчика) и его монтажников, так как любое хорошее окно можно испортить кривыми руками монтажников или сборщиков P.S. По поводу армирования Вы абсолютно правы, для белого профиля нужно использовать армирование толщиной 1,5 мм, согласно ДСТУ Б В.2.6-15-2011, и это мы еще не рассматриваем вариант, когда конструкции устанавливаются на высотных этажах и на них оказывает воздействия ветровая нагрузка, тогда может 1,5 мм быть мало, необходимо производить специальные расчеты... Посилання на коментар Поділитися на інших сайтах More sharing options...
kusfu Опубліковано: 7 листопада 2015 Поділитись Опубліковано: 7 листопада 2015 я бы с удовольствием выбрал второй вариант, но во первых у них нету возможности закачать аргон и консультант говорит что 2 энерго стекла не можно ставить, так как одно из них может лопнуть (обозначается стекло у них как "4к") А что если в первом варианте поменять профиль на (ссылка устарела) 500 Plus ? там уже идет квадратное армирование, толщина наружной стенки 3 мм, окна будут ставить в частный дом из газоблока Посилання на коментар Поділитися на інших сайтах More sharing options...
ViknaStar Опубліковано: 7 листопада 2015 Поділитись Опубліковано: 7 листопада 2015 1) Консультант не совсем прав, не большая вероятность возникновения у среднего стекла термошока есть, но она устраняется путем зачистки кромки стекла, установки просветленных стекол или закалки. Таки пакеты мы и наши коллеги ставим тысячами и говорить о массовых случаях разрушения стекла не приходиться 2) 4К скорее всего иметься ввиду стекло с твердым напылением, которые по своим характеристика (удержание тепла) уступает стеклам с мягким напылением 4i 3) Если других вариантов нет, то рассматривайте Mega Line 500 Plus, по фурнитуре тогда рассмотрите серию Titan AF от Siegenia, оно покомфортнее будет + у нее большее возможностей по противовзломности; По стеклопакетам рекомендации прежние. 4) Обязательно уточните у менеджера какой крепеж будут использовать монтажники при монтаже в газоблок а также проконтролируйте что бы количество точек крепления соответствовало нормам. 1 Посилання на коментар Поділитися на інших сайтах More sharing options...
Алік Опубліковано: 7 листопада 2015 Поділитись Опубліковано: 7 листопада 2015 Использование К-стекла вместо И-стекла косвенно указывает на низкий технологический уровень производства. Армирование не обязательно должно быть "квадратным", оно просто должно соответствовать рекомендациям разработчика и эксплуатационным нагрузкам. Посилання на коментар Поділитися на інших сайтах More sharing options...
ViknaStar Опубліковано: 7 листопада 2015 Поділитись Опубліковано: 7 листопада 2015 Армирование не обязательно должно быть "квадратным", оно просто должно соответствовать рекомендациям разработчика и эксплуатационным нагрузкам. Необязательно, но крайне желательно! ИМХО Посилання на коментар Поділитися на інших сайтах More sharing options...
Алік Опубліковано: 7 листопада 2015 Поділитись Опубліковано: 7 листопада 2015 Кому? Маркетологам? Использует же Века даже Г-подобное там, где ему место, но об этом громко не заявляет просто.. Посилання на коментар Поділитися на інших сайтах More sharing options...
ViknaStar Опубліковано: 7 листопада 2015 Поділитись Опубліковано: 7 листопада 2015 При прочих равных замкнутое армирование по своим показателям будет опережать п-образное или г-образное армирование. Просто сравните моменты инерции (при равной толщине)… Мы с Вами уже спорили по этому поводу в итоге каждый остался при своем мнении, есть смысл продолжать? Посилання на коментар Поділитися на інших сайтах More sharing options...
Алік Опубліковано: 7 листопада 2015 Поділитись Опубліковано: 7 листопада 2015 Ну, П-шка может иметь два загиба, т.е. двойные стенки, а также при прочих равных гораздо круче Г-шки. Это называется стратегия несуществующих (ненужных) преимуществ у маркетологов. Посилання на коментар Поділитися на інших сайтах More sharing options...
ViknaStar Опубліковано: 7 листопада 2015 Поділитись Опубліковано: 7 листопада 2015 Если у п два загиба и вместе загиба она будет иметь допустим толщину 3 мм, то она все равно будет проигрывать квадрату толщиной 3 мм., вот и вся арифметика, а еще подумайте о том что делать когда в уже установленные окна клиент захотел добавить функцию противовзломности (а у нас такие клиенты были), куда противовзломные ответки крутить будите? В пластик? Посилання на коментар Поділитися на інших сайтах More sharing options...
Алік Опубліковано: 7 листопада 2015 Поділитись Опубліковано: 7 листопада 2015 Да, саморезы придётся взять подлиннее, вот незадача. Кстати, а квадрат со стенкой 3 мм у Веки есть? Посилання на коментар Поділитися на інших сайтах More sharing options...
ViknaStar Опубліковано: 7 листопада 2015 Поділитись Опубліковано: 7 листопада 2015 Кстати, а квадрат со стенкой 3 мм у Веки есть? У Веки есть, можете не переживать Да, саморезы придётся взять подлиннее, вот незадача. Да можно взять по длиннее, только вот держаться он будет все равно хуже, чем саморез который закреплен через две стенки метала Посилання на коментар Поділитися на інших сайтах More sharing options...
Алік Опубліковано: 7 листопада 2015 Поділитись Опубліковано: 7 листопада 2015 У Веки есть, можете не переживать Шо и в Украине или только в каталоге? А 5 мм есть? Добавлено через 1 минуту ... Да можно взять по длиннее, только вот держаться он будет все равно хуже, чем саморез который закреплен через две стенки метала Чёй-то? Мы возьмём потолще. Посилання на коментар Поділитися на інших сайтах More sharing options...
ViknaStar Опубліковано: 7 листопада 2015 Поділитись Опубліковано: 7 листопада 2015 Шо и в Украине или только в каталоге? Если Вам так интересно приезжать к нам в гости дам подержать А 5 мм есть? А 25 мм? Кто даст больше… Зафлудили тему Посилання на коментар Поділитися на інших сайтах More sharing options...
Алік Опубліковано: 7 листопада 2015 Поділитись Опубліковано: 7 листопада 2015 Когда флудят профессионалы, дилетанты учатся.:D П.С. А у нас есть П-шка 2,5 с двойными загибами. 1 Посилання на коментар Поділитися на інших сайтах More sharing options...
ViknaStar Опубліковано: 7 листопада 2015 Поділитись Опубліковано: 7 листопада 2015 П.С. А у нас есть П-шка 2,5 с двойными загибами. Дадите подержать… 1 Посилання на коментар Поділитися на інших сайтах More sharing options...
djdinamid Опубліковано: 8 листопада 2015 Поділитись Опубліковано: 8 листопада 2015 Дошло время до окон в постройке дома, прошу вашей помощи/совета: - все окна и двери планирую брать одного бренда, двусторонняя ламинация в массе, стеклопакет 40мм (4i-14ar-4-14ar-4i). Сейчас выбор между rehau ecosol 70 (Новикон Одесса), wds -7 (Новые окна Днепропетровск, у них же есть TROCAL 70 ST дешевле рихау) С окнами всё более менее понятно, а вот есть дверной проём на террасу 2,69(ширина)х2,46(высота от чистового пола, но могу еще подправить). Хотелось бы разделить пополам и раздвижную систему. Стены Aeroc 400mm D400. Кто чего посоветует или направит в нужном направлении? Посилання на коментар Поділитися на інших сайтах More sharing options...
ViknaStar Опубліковано: 9 листопада 2015 Поділитись Опубліковано: 9 листопада 2015 А какую фурнитуру используют один и второй переработчик? Исходя из этого, можно предположить какую раздвижку, они будут предлагать и тогда можно будет дать какие либо рекомендации. Посилання на коментар Поділитися на інших сайтах More sharing options...
Алік Опубліковано: 9 листопада 2015 Поділитись Опубліковано: 9 листопада 2015 По большому счёту, все эти фурнитуры равноценны, есть только различия в классификации у разных фирм - по разному называют в зависимости от типа доводки створки. Естественно, что лучше и дороже вариант в котором створку не нужно прижимать руками. Посилання на коментар Поділитися на інших сайтах More sharing options...
djdinamid Опубліковано: 9 листопада 2015 Поділитись Опубліковано: 9 листопада 2015 Из-за относительно большого размера створки прийдёться отказаться от деления пополам, а при делении на 3, отпадает смысл в подьёмно раздвижной системе. Итог: классика, входная группа - 1/3 глухая часть, 1/3 дверь, 1/3 штульповая дверь. И профиль wds-7 Посилання на коментар Поділитися на інших сайтах More sharing options...
Рекомендовані повідомлення
Створіть акаунт або увійдіть у нього для коментування
Ви маєте бути користувачем, щоб залишити коментар
Створити акаунт
Зареєструйтеся для отримання акаунта. Це просто!
Зареєструвати акаунтУвійти
Вже зареєстровані? Увійдіть тут.
Увійти зараз