AgBOKAT Опубліковано: 27 серпня 2015 Поділитись Опубліковано: 27 серпня 2015 Друзья,понимаю что тема заезжена и разжевана 100500 раз,но все же взываю о помощи. Проект-Z137 Хотелка- -цоколь под все строение с гаражем, топочной и т.п. -стены-газоблок 400мм -кровля-м.черепица с утеплением и подшивкой -перекрытия цоколя монолит,1 этаж плиты,2 этаж балки с утеплением Бригадир озвучил ценник в 26 тыс. В валюте Скажите мне повезло с ценой или меня нае...али? Заранее огромное дякую!!! Посилання на коментар Поділитися на інших сайтах More sharing options...
sly Опубліковано: 27 серпня 2015 Поділитись Опубліковано: 27 серпня 2015 проект не смотрел, ценник думаю вполне реален. есть одно НО - спросите-ка у бригадира, за чей счет будут расходы, превышающие смету? я вот неделю назад фундамент закончил.. неделю смету составляли - пинал, чтоб учли все-все-все, так как денег в обрез и нужно все четко распределить. в итоге по работам стоимость выше сметы на 25%, по материалам - на 120% !! на любые замечания о внеплановых работах и материалах (хотя их можно и нужно было предусмотреть) в ответ слышал "ну это же стройка!!" Посилання на коментар Поділитися на інших сайтах More sharing options...
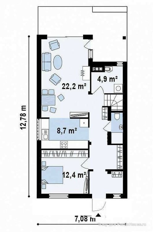
AgBOKAT Опубліковано: 28 серпня 2015 Автор Поділитись Опубліковано: 28 серпня 2015 С этим прорабом брат работает не один год-вроде без обмана. Приложу фото немного переработанного проекта-немного изменили конструкцию первого и второго этажа... Посилання на коментар Поділитися на інших сайтах More sharing options...
AgBOKAT Опубліковано: 28 серпня 2015 Автор Поділитись Опубліковано: 28 серпня 2015 А вот сегодня он меня ошарашил орентиривочной суммой под чистовую отделку-те же 26 тыс.(стяжка,штукатурка стен,закладка теп. пола). Я сам не поленился прикинул по ценам,подсчитал в круг-максимум 10 тыс (работа+материал). Посилання на коментар Поділитися на інших сайтах More sharing options...
AgBOKAT Опубліковано: 28 серпня 2015 Автор Поділитись Опубліковано: 28 серпня 2015 Сори не ту фотку добавил-вот переделанный 1 этаж Посилання на коментар Поділитися на інших сайтах More sharing options...
Ktulxy Опубліковано: 28 серпня 2015 Поділитись Опубліковано: 28 серпня 2015 Если не нанимать прораба, а заниматься организацией самостоятельно, то вполне вписаться в сумму 2 раза меньше. Посилання на коментар Поділитися на інших сайтах More sharing options...
Koskos Опубліковано: 28 серпня 2015 Поділитись Опубліковано: 28 серпня 2015 на любые замечания о внеплановых работах и материалах (хотя их можно и нужно было предусмотреть) в ответ слышал "ну это же стройка!!" пять баллов ответ!)) Ндаа...просто надо читать внимательно форум - основной постулат бюджетного планирования стройки частного дома гласит: "Если у тебя нет 100% запаса денег от суммы озвученной прорабом, то стройку лучше не начинать")) Это уже проверенно-перепроверенно всеми пострившимися Посилання на коментар Поділитися на інших сайтах More sharing options...
admn Опубліковано: 9 вересня 2015 Поділитись Опубліковано: 9 вересня 2015 Друзья,понимаю что тема заезжена и разжевана 100500 раз,но все же взываю о помощи. Проект-Z137 Хотелка- -цоколь под все строение с гаражем, топочной и т.п. -стены-газоблок 400мм -кровля-м.черепица с утеплением и подшивкой -перекрытия цоколя монолит,1 этаж плиты,2 этаж балки с утеплением Бригадир озвучил ценник в 26 тыс. В валюте Скажите мне повезло с ценой или меня нае...али? Заранее огромное дякую!!! Размер дома какой? Если больше 120 м2 то думаю нереально. Нормальный фундамент да и еще с цоколем потянет хороших денег. А тут кроме того еще и стены, перекрытия, крыша покрытая и утепление. Ту материала прилично + работы. Даже по самым минимальным тарифам прилично. Прям заселяйся и живи за 26 у.е. Лично мое мнение нереально. Ну или очень все дешевое и бюджетное. Тогда страдает качество. Вопрос, зачем такой дом? Посилання на коментар Поділитися на інших сайтах More sharing options...
vale3 Опубліковано: 9 вересня 2015 Поділитись Опубліковано: 9 вересня 2015 мне коробка 120 кв/м встала в 30 куе, старался все организовывать по минимальной цене, влез в смету с напрягом Посилання на коментар Поділитися на інших сайтах More sharing options...
Рекомендовані повідомлення
Створіть акаунт або увійдіть у нього для коментування
Ви маєте бути користувачем, щоб залишити коментар
Створити акаунт
Зареєструйтеся для отримання акаунта. Це просто!
Зареєструвати акаунтУвійти
Вже зареєстровані? Увійдіть тут.
Увійти зараз