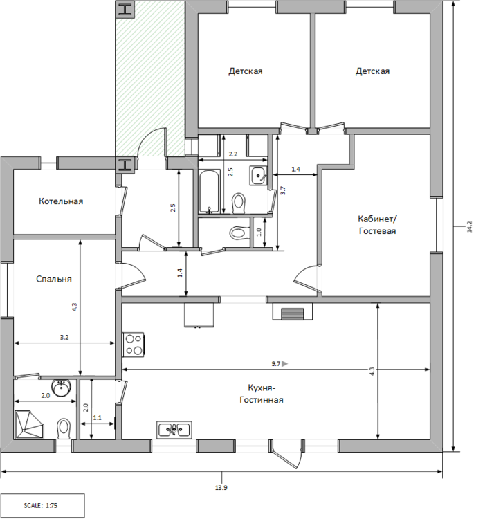
wisecat Опубліковано: 20 жовтня 2015 Поділитись Опубліковано: 20 жовтня 2015 Понравился нам с женой проект одноэтажного дома z500.com.ua/projekt/z204_bg.html Внесли небольшие модификации с учетом потребностей, формы и расположения участка, ну и плюс чуток упростили: 1. Выровняли стены в кухне-гостинной 2. Чуть расширили тамбур/коридор 3. Уменьшили гостевой туалет и сделали нишу 4. Поменяли расположение окон с оптимизацией под выбранный участок Из явных недостатков: 1. Мне кажется лишним гостевой туалет, я бы объеденил с ванной (спор с женой). Гости не ожидаются каждую неделю, так, раз в месяц. 2. Спальня удалена от детей, но дети растут и скоро уже будет не актуально. Семья 4 человека плюс наездом бабушки-дедушки в гостевую. Кто-то что-то толковое подкажет? Буду благодарен. Посилання на коментар Поділитися на інших сайтах More sharing options...
achumack Опубліковано: 20 жовтня 2015 Поділитись Опубліковано: 20 жовтня 2015 так выходит 3 сан узла - как по мне - то многовато. к тому же этот 3-й на новой схеме не подходит под категорию "легко доступного с улицы" Посилання на коментар Поділитися на інших сайтах More sharing options...
wisecat Опубліковано: 20 жовтня 2015 Автор Поділитись Опубліковано: 20 жовтня 2015 Ну третий санузел и в оригинальном проекте там же. Я так понимаю идея в проекте оригинальном - санузел для гостей во время вечеринок в гостинной. Мне он тоже там лишний. Посилання на коментар Поділитися на інших сайтах More sharing options...
Татьяна5 Опубліковано: 20 жовтня 2015 Поділитись Опубліковано: 20 жовтня 2015 Хороший проект. ИМХО, 3 су как раз самое оно. В Вашем варианте узковата гостиная, хотя бы 5 метров делайте. Сложные коридоры, я бы их 1,5 метра чистовых минимиум сделала. Дверь в кладовую кухни разрывает зону умывальник-плита, это оч не эргономично. Сделала бы из неё хозяйскую гардеробную и заглушила двери. 1 Посилання на коментар Поділитися на інших сайтах More sharing options...
wisecat Опубліковано: 20 жовтня 2015 Автор Поділитись Опубліковано: 20 жовтня 2015 Хороший проект. ИМХО, 3 су как раз самое оно. В Вашем варианте узковата гостиная, хотя бы 5 метров делайте. Сложные коридоры, я бы их 1,5 метра чистовых минимиум сделала. Дверь в кладовую кухни разрывает зону умывальник-плита, это оч не эргономично. Сделала бы из неё хозяйскую гардеробную и заглушила двери. Спасибо. Узкость гостинной - согласен. Узкость коридора к детским - в принципе можно расширить за счет гостевой на 10 см, но не критично. По поводу двери в кухне и разрыва зоны - а чем не эргономично? Мы жи в доме с таким решением - нам очень удобно было. Такая кладовка это желание жены в первую очередь Это наверное просто на любителя. Про хозяйскую гардеробную думал, но там не очень удобно получается, так как в том углу планировалась двухспальная кровать. Посилання на коментар Поділитися на інших сайтах More sharing options...
Andrei constructor Опубліковано: 20 жовтня 2015 Поділитись Опубліковано: 20 жовтня 2015 Наружную террасу необходимо седлать шире. Около 3 м 3 Посилання на коментар Поділитися на інших сайтах More sharing options...
ARCH INNOVATION Опубліковано: 21 жовтня 2015 Поділитись Опубліковано: 21 жовтня 2015 Там маловата, там узковато, там бы расширить, здесь увеличить и не забыть бы ещё про машину, в общем достройте гараж прямо к дому. p.s. Систематизировал комментарии форумчан в стиле Э. Успенского. :D Посилання на коментар Поділитися на інших сайтах More sharing options...
Татьяна5 Опубліковано: 21 жовтня 2015 Поділитись Опубліковано: 21 жовтня 2015 По поводу двери в кухне и разрыва зоны - а чем не эргономично? Мы жи в доме с таким решением - нам очень удобно было. Такая кладовка это желание жены в первую очередь Это наверное просто на любителя. Есть понятие эргономики , по этому понятию - не эргономично разрывать зону мойка-плита, но если Вам удобно - вполне Добавлено через 2 минуты Наружную террасу необходимо седлать шире. Около 3 м добавлю - хотя бы 3 метра, а лучше - 3.5 3 Посилання на коментар Поділитися на інших сайтах More sharing options...
wisecat Опубліковано: 21 жовтня 2015 Автор Поділитись Опубліковано: 21 жовтня 2015 Есть понятие эргономики , по этому понятию - не эргономично разрывать зону мойка-плита, но если Вам удобно - вполне Добавлено через 2 минуты добавлю - хотя бы 3 метра, а лучше - 3.5 Про эргономику знаю, но нам с женой удобнее когда отдельно. Мы вообще больше поклонники "островного" решения кухни, когда плита на отдельной части (как в прикреплённом файле). По поводу террасы уже буду визуализировать и планировать с архитекторами/проектировщиками, когда буду делать полноценный проект. Просто её легче всего менять и делать, по сравнению с остальным. Сейчас пока идет работа над экскизом, чтобы более подготовленно прийти к архитектору. Посилання на коментар Поділитися на інших сайтах More sharing options...
abelor Опубліковано: 27 жовтня 2015 Поділитись Опубліковано: 27 жовтня 2015 Тесно и грустно, как для дома на природе. Короче, очередная четырехкомнатная квартира на земле. Посмотрите проекты планировок одноэтажных домов США и Канады. Понравился нам с женой проект одноэтажного дома z500.com.ua/projekt/z204_bg.html Внесли небольшие модификации с учетом потребностей, формы и расположения участка, ну и плюс чуток упростили: 1. Выровняли стены в кухне-гостинной 2. Чуть расширили тамбур/коридор 3. Уменьшили гостевой туалет и сделали нишу 4. Поменяли расположение окон с оптимизацией под выбранный участок Из явных недостатков: 1. Мне кажется лишним гостевой туалет, я бы объеденил с ванной (спор с женой). Гости не ожидаются каждую неделю, так, раз в месяц. 2. Спальня удалена от детей, но дети растут и скоро уже будет не актуально. Семья 4 человека плюс наездом бабушки-дедушки в гостевую. Кто-то что-то толковое подкажет? Буду благодарен. Посилання на коментар Поділитися на інших сайтах More sharing options...
wisecat Опубліковано: 27 жовтня 2015 Автор Поділитись Опубліковано: 27 жовтня 2015 Тесно и грустно, как для дома на природе. Короче, очередная четырехкомнатная квартира на земле. Посмотрите проекты планировок одноэтажных домов США и Канады. Смотрел я планировки США. И жил в них. Я где-то согласен, что тесно, но опыт проживания показывает что для семьи в США это обычный дом по размерам. Я жил в нескольких: спален не видел больших, при том что дом на побережье океана и стоит 900К. Большая только гостинная (Family room). Это не дома кинозвезд и бизнесменов, а обычных людей с доходом 80К-100К+ в год. Понятно что хотелось бы больше, но есть ограничения - я выбираю дом под свою бюджет и реалии в стране (отапливать его как потом у нас?). Был бы депутатом или владельцем фирмы, строил бы веселый и просторный. А так, согласен - 4К квартира на 12 сотках ;) Посилання на коментар Поділитися на інших сайтах More sharing options...
abelor Опубліковано: 27 жовтня 2015 Поділитись Опубліковано: 27 жовтня 2015 Ну, уважаемый, Вы меня удивляете!!! Жить в ЧЕЛОВЕЧЕСКОЙ планировке с Family Room, Living Room,Sun Room и от нее все же перейти к "клеткам на земле" - это круто! И не надо прикрываться невозможностью экономного отопления, сделать отопление рациональным можно при любой планировке. И еще. Обслуживала(делала проекты) многих людей "из телевизора". И могу констатировать - уровень ЦИВИЛИЗАЦИИ у них был ЧАСТО намного ниже уровня обычного простого владельца маленькой продуктовой лавки в пригороде Киева. Смотрел я планировки США. И жил в них. Я где-то согласен, что тесно, но опыт проживания показывает что для семьи в США это обычный дом по размерам. Я жил в нескольких: спален не видел больших, при том что дом на побережье океана и стоит 900К. Большая только гостинная (Family room). Это не дома кинозвезд и бизнесменов, а обычных людей с доходом 80К-100К+ в год. Понятно что хотелось бы больше, но есть ограничения - я выбираю дом под свою бюджет и реалии в стране (отапливать его как потом у нас?). Был бы депутатом или владельцем фирмы, строил бы веселый и просторный. А так, согласен - 4К квартира на 12 сотках ;) Посилання на коментар Поділитися на інших сайтах More sharing options...
wisecat Опубліковано: 27 жовтня 2015 Автор Поділитись Опубліковано: 27 жовтня 2015 abelor, Вы меня заинтриговали. Можете дать пример/ссылку правильного в вашем понимании одноэтажника - не клетки? Площадь 130-160 м2. 2 Посилання на коментар Поділитися на інших сайтах More sharing options...
abelor Опубліковано: 30 жовтня 2015 Поділитись Опубліковано: 30 жовтня 2015 Нет, одноэтажника у меня, к сожалению, нет, не заказывали пока. Обычно у людей с площадью участка большая проблема, поэтому чаще всего заказывают два этажа, раньше было и три и четыре этажа. Из последних могу показать планировку двухэтажного дома. Отличительная черта этой планировки - наличие двух семейных комнат. На первом этаже это комната официальная(гостиная), куда можно пригласить и посторонних людей, а на втором этаже - сугубо семейная комната, для проведения досуга всей семьей. На первом этаже также предполагается жилая комната для бабушек и дедушек. Чертеж1.pdf Чертеж2.pdf abelor, Вы меня заинтриговали. Можете дать пример/ссылку правильного в вашем понимании одноэтажника - не клетки? Площадь 130-160 м2. Посилання на коментар Поділитися на інших сайтах More sharing options...
_zedd_ Опубліковано: 30 жовтня 2015 Поділитись Опубліковано: 30 жовтня 2015 Кто-то что-то толковое подкаже А как вам мысля если расширить террасу при входе до оси стены, а кровлю так же вальмовую, с заходом над всей расширенной террасой (с опорой на колонны), но простой геометрии. Конек придется выше поднять, можно с фасада окошко слуховое красивенькое сделать, чтобы кровля наряднее выглядела. И еще вход в котельную сделать там, где окно в неё сейчас предусмотрено, то есть с улицы. А в прихожей вместо двери в котельную - глухую стену, использовать можно - тумбочку/зеркало/..... Ну это если вам не категорически нереально в котельную через улицу заходить. Санузел в спальне - упразднить... совсем. Сделать там гардеробную. Двух с/у достаточно. И коммуникации туда (в спальную) "водяные" не придется тянуть. Всё ИМХО конечно. П.С. А вообще проект очень нравится - близко по духу. П.П.С. Интересно, а как у вас стороны света? Посилання на коментар Поділитися на інших сайтах More sharing options...
Рекомендовані повідомлення
Створіть акаунт або увійдіть у нього для коментування
Ви маєте бути користувачем, щоб залишити коментар
Створити акаунт
Зареєструйтеся для отримання акаунта. Це просто!
Зареєструвати акаунтУвійти
Вже зареєстровані? Увійдіть тут.
Увійти зараз