Перейти до публікації
Пошук в
  • Додатково...
Шукати результати, які містять...
Шукати результати в...

Каркасні будинки по технології ПЛАТФОРМА Луцьк Львів Рівне Закарпаття

platform

Рекомендовані повідомлення

Професійно займаємось будівництво каркасних будинків по північно-американській технології (система "Платформа")

сайт platform.at.ua/ (зараз виходить наш новий сайт 4040.org.ua)

група ВК (ссылка устарела)

Нами збудовано 28 об*єктів - в основному будинки ПМЖ, готелі...

Всі наші роботи (ссылка устарела)

Наші відео про будинки (ссылка устарела)

Ми постійно розвиваємось та вдосконалюємось.

1.thumb.jpg.ce09a672679870fe6acd7f0cb3e39d9b.jpg

2.thumb.jpg.1e41f38374e1ed930862d80dbfc1e6f9.jpg

3.thumb.jpg.b21305c6281999e3ab6201ce452c2834.jpg

4.thumb.jpg.be76652e38ce53a7981949346c239ae6.jpg

5.thumb.jpg.5fecb90ffadc3012ee15353a5fb58697.jpg

6.thumb.jpg.de16a690182751d83d1827ade110548c.jpg

7.thumb.jpg.e998e799afcdc9d6c4bd1555686aa285.jpg

8.thumb.jpg.30afd3fc55f9361d5ab1f0dc01e676ba.jpg

9.thumb.jpg.04d5d6616b399d90d95faf13b173e614.jpg

10.thumb.jpg.c235de2e2a0751801f95033646b3db30.jpg

Посилання на коментар
Поділитися на інших сайтах

Працював у США в іноземній компанії "Marden Builders" протягом 3х сезонів.

Робили каркасні будинки, готелі, реконструкції

31.thumb.jpg.83df7a13d5d6fc3fcb738cc56c30b2aa.jpg

32.thumb.jpg.13642a71e9edaf88a8e3b161eef02355.jpg

33.thumb.jpg.a3bb10fca9ae4c60c31207291071a690.jpg

34.thumb.jpg.bb53f259299e9b8721a87068e56ed928.jpg

35.thumb.jpg.f4cb13204004f36e5ff4ba7d917f0bf4.jpg

36.thumb.jpg.29da02bef26b4ad72044e7dbcfde9b83.jpg

38.thumb.jpg.c9589db79236b1ce864578cecc7c3f4f.jpg

39.thumb.jpg.1d41587286b52519ad0e121c23ce29ca.jpg

40.thumb.jpg.b72f11d17787f364f9fbfed45f06404a.jpg

41.thumb.jpg.a26260fb8e860c50db66b0981182d830.jpg

43.thumb.jpg.f0206384bc0166c2571a2ea4f71cd78b.jpg

44.thumb.jpg.5d061caedf0f753a10d005bd31481034.jpg

  • Лайк 2
Посилання на коментар
Поділитися на інших сайтах

Фундаменти робимо різні

В більшості випадків робили свайний ростверк "ТІСЕ"

також МЗЛ

Звичайні лєнточні

Плитні

 

Зараз повністю перевожу будівництво на УШП -УТЕПЛЕНІ ШВЕДСЬКІ ФУНДАМЕНТИ.

УШП плита являє собою монолітну бетонну основу, укріплену арматурою. При зведенні невеликих об'єктів рити котлован не потрібно, достатньо зняти родючий шар грунту. Плита влаштовується на піщаній подушці з дренажною системою. Для гідроізоляції використовується спеціальна плівка, теплоізоляцію забезпечують пінополістирольні плити. Каналізаційна система і всі комунікації інтегруються в шведську плиту, включаючи труби для опалення підлог. Завдяки монтажу якісної і продуманої тепло- і гідроізоляції фундаментна плита забезпечує значну економію тепла при експлуатації будинку.

45.thumb.jpg.b8b6e358e8ffc3e965f5a53cff269b3b.jpg

46.thumb.jpg.c46400ea22b0d456315c6f13905e631e.jpg

47.thumb.jpg.6347058d1a1e85560845ffefbd31c481.jpg

48.thumb.jpg.331e4af63d347352ab85e35793408b0a.jpg

49.thumb.jpg.77c512787deaf28651968be3e4a3f8d8.jpg

50.thumb.jpg.b682238a137411dba07b58f4e8bb2a00.jpg

51.thumb.jpg.565a6b7a3dcab072140d3c14b224c3b0.jpg

53.thumb.jpg.6cc0fa3d10ca3487505257017ea6fc80.jpg

1270692250_12.thumb.jpg.c5f9a0b76a419dbb69b699498b50335f.jpg

214520232_14.thumb.jpg.e21d04a9a62d59f103f05d1cc21c0440.jpg

919433406_15.thumb.jpg.08f32cc59e8e90aa1136373cba355c36.jpg

1933053661_16.thumb.jpg.45eafaa957053b74c263ed0069a609e2.jpg

11.thumb.jpg.f5f899a8a16562c06d81b56227c0ed91.jpg

15.thumb.jpg.7bb6a6bba8edfc0b080bb19e97d5c738.jpg

17.thumb.jpg.4561cd5560defc6937e175c8ef49e062.jpg

  • Лайк 3
Посилання на коментар
Поділитися на інших сайтах

Цю УШП, що ми зараз робимо - це під ЕНЕРГОЕФЕКТИВНИЙ БУДИНОК.

 

Утеплення стелі - 50 см базальтової вати!

Утеплення стіни - 35 см базальтової вати!

Система рекуперації повітря та сонячні колектори.

Тепла підлога працюватиме від піролізного каміна "ЖАРКО" з рубашкою для теплоїпідлоги та від конденсаційного котла COSMOGAS Novadens з автоматикою.

Щоб більше зрозуміли - енергопасивний будинок

 

Про УШП

1.thumb.jpg.1fa6ead117367a73a2727f9985411ee6.jpg

2.thumb.jpg.e99a1dd68602f6b445f1720e7459dd83.jpg

3.thumb.jpg.e54a192efdaf3e76e307ef530947e1ec.jpg

4.thumb.jpg.7a4bd3ae5ed8bbdc4b2458769c1357fc.jpg

5.thumb.jpg.aabe24ea7cab8f0b3142d63a34b80051.jpg

6.thumb.jpg.6feecc89adadd64ad3f1c5f6498d744b.jpg

7.thumb.jpg.03f671823597412032d3ee0c2164b05c.jpg

8.thumb.jpg.cbcfca666dc9a17bc78a46167d945201.jpg

9.thumb.jpg.1c1135805b3ea00df7e8472ccecc9f74.jpg

10.thumb.jpg.1f986ea5772db806438f78661e1f3537.jpg

Посилання на коментар
Поділитися на інших сайтах

МОжливо що, прокопаємо траншею на глибину три метра та довжиною 50 м (пряму - ділянка дозволяє) та закинемо туди трубу 200мм діаметром.

Заведемо до рекуператора та поставимо вентилятор, щоб прокачував повітря по трубі.

Система має працювати як тепловий насос. Дельта температури літом на виході має різнитись приблизно на 10 гр. Ц.

Тобто літом в спеку 30гр на виході ми отримаємо - 20 грЦ.

Зимою - навпаки при т. -15-20 . Дельта складе до 20 гр.Ц. Отримаємо підігріте повітря від землі

Посилання на коментар
Поділитися на інших сайтах

Це фото,як ми робимо систему під центральний пилосос.

 

Центральний пилосос від фірми - коштує дуже дорого. На такий будинок в 220 м2 приблизно 2000 у.о.

 

Ми цю проблему вирішили доволі просто.

Система центрально пилососу розкидається як на диво трубою 50 мм (як каналізаційна) тільки синій колір.. Синій колір означає, що на трубу нанесене спец напилення, щоб пилюка на липла.

 

В чому суть нашого пилососу:

 

Сам пилосос стоятиме в гаражі - це звичайний будівельний пилосос з високими показниками всасування повітря.

Пилосос підключений до труби 50 мм.

Труба зєднана силіконом.

Біля кожного вихода на шланг провід січення 2х1.

Всі провода та проходять до спец реле.

 

Розетки та шланг центрального пилососу продаються окремо - можна вільно купити в інтернеті.

Коли ми вставляємо шланг в розетку - спрацьовує реле та пилосос включається. Витягнули шланг - пилосос виключається

 

Всі повороти труби 50 мм плавні. Лише поворот до розетки від труби коліно 90. Це для того, що скажімо олівець не засмоктало.

 

Коли попилососили - ідемо в гараж. Витягуємо ємність від пилососа та викидаємо.

Можемо навіть втянути відро води - щоб труби промити.

11.thumb.jpg.e798b10864eeb65c532fe1d3189323cc.jpg

12.thumb.jpg.714bf0774f8f2941feb1bdb43fd63081.jpg

13.thumb.jpg.48dbd7ad9899eba2bc9c8ff5cef660ba.jpg

14.thumb.jpg.b4921816fba094e02f9437d2acb975fb.jpg

15.thumb.jpg.235fe663c416da4de87fc0b29d2644fd.jpg

Посилання на коментар
Поділитися на інших сайтах

Цю УШП, що ми зараз робимо - це під ЕНЕРГОЕФЕКТИВНИЙ БУДИНОК.

 

Утеплення стелі - 50 см базальтової вати!

Утеплення стіни - 35 см базальтової вати!

 

Как будете осуществлять такое массивное утепление крыши?

Спасибо!

Посилання на коментар
Поділитися на інших сайтах

Как будете осуществлять такое массивное утепление крыши?

Спасибо!

 

Дуже просто:)

 

лаги перекриття- січенням 200 мм сюди 200 мм утеплювача

 

знизу (стеля) обрешітка 50х50 і сюди 50 мм утеплювача

 

Зверху горище - експлуатуватись взагалі не буде - просто беремо оулони вати і розстеляємо 250 мм в перемішку швів.

 

Варто не забутись додатково утеплити в софітах вузел примикання крокви до стіни

  • Лайк 2
Посилання на коментар
Поділитися на інших сайтах

platform,

Я Вас поняла, получается не сплошное утепление 500мм

 

Так краще - ми повністю перекриваємо містки холоду

Посилання на коментар
Поділитися на інших сайтах

  • 2 тижні потому...

Залита плита. З погодою реально повезло... Тільки топінг не зробили - пішов дощ на пів-роботі((((

 

 

Плита 240 м2 площа

 

Ціна загальна - 9 500 дол.

 

Ціна велика як для першого етапу будівництва.

Але якщо робити будинок "під ключ" - то виходить дешевше десь на 2000-4000 дол.

 

Бо:

це фундамент

це потужне утеплення

це підлога першого поверху (готове під фінішне покриття)

це низькотемпературна система опалення (тільки котла підключити)

 

це система вводу - виводу комунікацій..

 

Якщо робити фундамент (найдешевший буде свайний ростверк)

далі перекриття підлоги

утеплення перекриття підлоги ватою (хоча б 200 мм)

підшивка знизу перекриття та чорнова підлога ОСБ 22 мм.

Розводка опалення води,каналізації, ввід електрокабеля

Напівсуха стяжка під теплу підллогу та екструдер 30 мм

 

Виходить дорожче на 2000 -4000 дол + багато циклів різних спеців - значить більший шанс помилитись.

 

Тому ми переходимо на ці фундаменти.

Це вигідне сучасне рішення.

2066325540_29.thumb.jpg.00ba9971bcc2ee0a8b4259834dff2da3.jpg

1545347413_30.thumb.jpg.18fe7c9b2f1116e6d48312e5cdb0cbb4.jpg

483916741_31.thumb.jpg.e722b4a2b12fffa75e569f3f64975d73.jpg

1536814121_32.thumb.jpg.08220c1ea98e964dd1e22a70618341de.jpg

Посилання на коментар
Поділитися на інших сайтах

  • 1 місяць потому...
смотрю по датам Ваших публикаций - две с половинной недели у Вас ушло на фундамент. Сколько должен он отстояться? и сколько времени планируете потратить на возведение коробки?
Посилання на коментар
Поділитися на інших сайтах

  • 3 тижні потому...
смотрю по датам Ваших публикаций - две с половинной недели у Вас ушло на фундамент. Сколько должен он отстояться? и сколько времени планируете потратить на возведение коробки?

 

Коробку вже зібрали - на фундаменті почали працювати через тиждень - за цей час віннабрав більше 50% міцності

Посилання на коментар
Поділитися на інших сайтах

Наш готель у Закарпатті біля геотермальних джерел "Косино".

Відпочинок у комплексі - просто супер!

586423618_1.jpg.257969e6994e5a1842cb4959398c5bb1.jpg

589493828_2.thumb.jpg.deb9d1de5bc8e51df9bcce6dfbe3ab79.jpg

1969998181_3.thumb.jpg.737e31a6cf65926f64b9536dbe860c61.jpg

877791315_4.thumb.jpg.479444f465e79260c49cb6572d07b345.jpg

1198558190_5.thumb.jpg.4f43e12c3d97a3eb8718c4e35f537d9d.jpg

1310000432_6.thumb.jpg.d3456dd36dcfa42ffdc49e2679978ab1.jpg

Посилання на коментар
Поділитися на інших сайтах

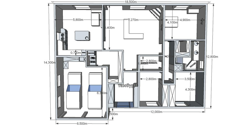
Плита майже 19х14,5м

Ребра тільки по периметру

 

розмір ребер ?

хтось плиту прораховував, чи так - "на хлопський розум ? ":)

Посилання на коментар
Поділитися на інших сайтах

Доброго вечора , бачу у вас ПСБ і під ребрами і під підлогою , яку щільність використали ? Як захилали його від всмоктування вологи ?
Посилання на коментар
Поділитися на інших сайтах

розмір ребер ?

хтось плиту прораховував, чи так - "на хлопський розум ? ":)

 

Так прораховували - це страшне слово - ФОРУМХАУС

 

Добавлено через 1 минуту

Доброго вечора , бачу у вас ПСБ і під ребрами і під підлогою , яку щільність використали ? Як захилали його від всмоктування вологи ?

 

щільність 25ка, від всмоктування вологи захищає 10 см втрамбованого щебня під ППС

Посилання на коментар
Поділитися на інших сайтах

Так прораховували - це страшне слово - ФОРУМХАУС

І яка вийшла вага будинку з плитою? Яка нагрузка на метр погонний ребра?

 

щільність 25ка, від всмоктування вологи захищає 10 см втрамбованого щебня під ППС

Об'ємну вагу цього ПСБ-С 25 перевіряли?

Посилання на коментар
Поділитися на інших сайтах

Створіть акаунт або увійдіть у нього для коментування

Ви маєте бути користувачем, щоб залишити коментар

Створити акаунт

Зареєструйтеся для отримання акаунта. Це просто!

Зареєструвати акаунт

Увійти

Вже зареєстровані? Увійдіть тут.

Увійти зараз
×
×
  • Створити...