Перейти до публікації
Пошук в
  • Додатково...
Шукати результати, які містять...
Шукати результати в...

ИДЕИ нашего ДОМА

Linusik

Рекомендовані повідомлення

Добрый день, дорогие форумчане. Мечтали с мужем когда-нибудь заиметь свой дом. Дело достаточно дорогостоящее, поэтому хочу максимально во всем разобраться, чтобы как можно меньше пользоваться наемным трудом НЕСПЕЦИАЛИСТОВ. Вопросов море и страшно бросаться в омут с головой при этом ничего не понимая, но есть надежда на теоретическую помощь с вашей стороны. Так что добро пожаловать в мою темку.

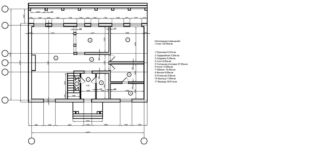
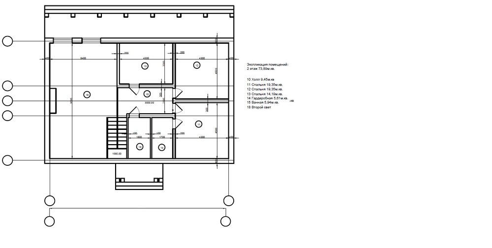
С участком пока еще не определились, поэтому про фундаменты я еще не успела подумать. В нашем регионе чаще делают ленточный или свайный, но это потом. Сейчас на этапе проектирования надземной части.

Для начала я начертила планы первого и второго этажей и попробовала как-то по темам сформулировать свои вопросы.

 

Дом планируется из газосиликатных блоков толщиной 400, перекрытия железобетонные, высота первого этажа 2800, высота аттиковой стены примерно 1500, лестница железобетонная, крыша двускатная (но со стороны веранды хочется сделать люкарну), отопление планируется газом.

 

Планировка:

1 Как вы считаете удобно ли зонирование помещений в доме. (Может я что-то упускаю).

2 Достаточно ли освещения в гостинной-столовой? В этой комнате будет второй свет, окно со стороны входа в дом обычное с высотой подоконника примерно 850, а окна со стороны веранды в пол. Все думаю нужны ли небольшие окна симметричные нижним сверху в аттиковой стене (надеюсь нормально объяснила).

3 не могу решить проблему с ванной на втором этаже. Она получается прямо над прихожей. В голову приходят только мысли вывести канализацию в гардеробную на втором этаже и оттуда спустить вниз. Может что посоветуете.

 

Конструкции:

1 Сколько необходимо вентканалов? Я так понимаю нужно в кухне, в двух ванных и котельной, и надо ли в гостинной, учитывая, что там будет камин с закрытой топкой?

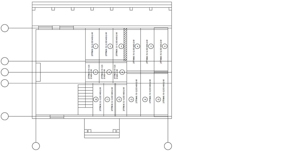
2 Как прокладывать вент.каналы через плиты перекрытия? На плане я разместила третью плиту перекрытия 1200 шириной и оставила зазор 300мм для вентканала. Или лучше класть плиту 1500 и делать как-то отверстие?

3 Большие проблемы у меня вызывает крыша. На чертеже я привела вариант как я это вижу. Но вопрос в пролете прогона над гостинной. пролет от одной стены к стене с камином 5400, а от другой стены (что рядом с лестницей) 6200. Плюс само опирание балок на стены. В общем я в растерянности(((

 

Надеюсь на конструктивную критику и полезные советы.

1335773739_1.thumb.jpg.8c853160aed0b9a9b354dff0e83a4c29.jpg

1914085739_2.thumb.jpg.53bdc83366a95c04f56eeac9b1f619b3.jpg

534291942_.thumb.jpg.4468d2be5df1f102cee1a1f256dc4c5d.jpg

1087310379_.thumb.jpg.30465c6c225b13027bfcb2d6fdbf334e.jpg

Посилання на коментар
Поділитися на інших сайтах

1 Сколько необходимо вентканалов?

 

Мое мнение:

- в кухне - 2 (1 подйте под вытяжку принудительную)

- в санузлах по 1му

- в тамбуре/прихожей - 1 (ароматы обуви чтобы уходили куда нужно)

- в котельной - 2 (1 - резерв по факту для разных целей)

- гараж - 1

- сауна - 1

- гардероб - тоже можно сделать наверное

 

Одним словом вытяжка во всех грязных помещениях

 

В гостинной с топкой - можно сделать приток чистого воздуха из улицы под топку с регулируемой подачей, вытяжку не вижу смысла.

 

2 Как прокладывать вент.каналы через плиты перекрытия?

3 Большие проблемы у меня вызывает крыша.

 

Эти вопросы, впрочем как и первый вам рано задавать. Они чисто конструктивные, не имеющие никакой важности на даном этапе.

 

На даном этапе - вам важно выбрать участок грамотно, чтобы учитывал ваши требования к среде, транспорту. Комуникации. Инфраструктуру. Нормальную геологию и экологию, нормальную геометрию (минимальные размеры которых вам хватит чтобы все свои хотелки разместить + вписаться в нормы по отступам) и соседей. Поверьте это важнее того как тянуть вытяжки :)

 

Только выбрав участок можно думать о планировке дома и всего ланшафта, подбирая по потребностям семьи и ориентации по сторонам света (комфорт, освещенность, энергоэфективность).

Посилання на коментар
Поділитися на інших сайтах

Створіть акаунт або увійдіть у нього для коментування

Ви маєте бути користувачем, щоб залишити коментар

Створити акаунт

Зареєструйтеся для отримання акаунта. Це просто!

Зареєструвати акаунт

Увійти

Вже зареєстровані? Увійдіть тут.

Увійти зараз
×
×
  • Створити...