Tair Опубліковано: 13 квітня 2016 Автор Поділитись Опубліковано: 13 квітня 2016 может, конечно, я чего и пропустила, на за последние 4 года у них и не было ни разу в продаже таких блоков Я видел всего 2-3 фотографии этих блоков в сети, одну из них опубликовал выше 1GOG. На ФХ писали что стоил один блок в районе 420$ за куб. Пытаюсь проверить эту информацию но нигде нет цен на эти блоки(( www.world-xps.ru/news/1571/ Посилання на коментар Поділитися на інших сайтах More sharing options...
Татьяна5 Опубліковано: 13 квітня 2016 Поділитись Опубліковано: 13 квітня 2016 На ФХ писали что стоил один блок в районе 420$ за куб. Дороже ППУ? странно Посилання на коментар Поділитися на інших сайтах More sharing options...
Tair Опубліковано: 13 квітня 2016 Автор Поділитись Опубліковано: 13 квітня 2016 Дороже ППУ? странно ну там вроде по передней кромке они еще клеили асбоцементную плиту.. Посилання на коментар Поділитися на інших сайтах More sharing options...
1GOG Опубліковано: 13 квітня 2016 Поділитись Опубліковано: 13 квітня 2016 Сылка, что я давал, ведет на сайт Технониколя. Там же есть и телефоны Контактная информация по L-блокам: +7 (495) 921-46-13; +7(495) 921-46-15 Можно немного разориться и позвонить, если уж очень нужно. Думаю, что и и-мэйл там найдется. Посилання на коментар Поділитися на інших сайтах More sharing options...
Татьяна5 Опубліковано: 13 квітня 2016 Поділитись Опубліковано: 13 квітня 2016 они еще клеили асбоцементную плиту.. и потому все становилось в 2,5 раза дороже ППУ? , ну не знаю Посилання на коментар Поділитися на інших сайтах More sharing options...
Tair Опубліковано: 13 квітня 2016 Автор Поділитись Опубліковано: 13 квітня 2016 Сылка, что я давал, ведет на сайт Технониколя. Там же есть и телефоны Контактная информация по L-блокам: +7 (495) 921-46-13; +7(495) 921-46-15 Можно немного разориться и позвонить, если уж очень нужно. Думаю, что и и-мэйл там найдется. Писал, но ответа пока не получил. Завтра наберу. Посилання на коментар Поділитися на інших сайтах More sharing options...
1GOG Опубліковано: 13 квітня 2016 Поділитись Опубліковано: 13 квітня 2016 Я так понимаю, что это Вы под ником Клим132 на ФХ вопрошаете? Вот там Вам и про патентную чистоту "по братски" расскажут... ;) ЗЫ: а я таки правильно про Земскова вспомнил. Посилання на коментар Поділитися на інших сайтах More sharing options...
Tair Опубліковано: 13 квітня 2016 Автор Поділитись Опубліковано: 13 квітня 2016 и потому все становилось в 2,5 раза дороже ППУ? , ну не знаю Так на ФХ пишут что звонили, их сняли с производства еще в 2014 году. Человек на форуме писал, что ему в 2014 году озвучили около 38$ за метр блока! Добавлено через 1 минуту Я так понимаю, что это Вы под ником Клим132 на ФХ вопрошаете? Вот там Вам и про патентную чистоту "по братски" расскажут... ;) ЗЫ: а я таки правильно про Земскова вспомнил. Все верно, пишу на двух форумах, а что вас смущает? Посилання на коментар Поділитися на інших сайтах More sharing options...
1GOG Опубліковано: 13 квітня 2016 Поділитись Опубліковано: 13 квітня 2016 Меня? Ничего не смущает. Есть штук 20-ть форумов, на которых я пишу. ;) Я в первом же своем ответе Вас в ту сторону направлял. Там полУчите информацию и полнее, и быстрее. Моё мнение по цене. МОжет взял бы, если бы было дороже материала+работа по склейке процентов на 50-70. У меня периметр плиты был 58 метров. Порезали и собрали Л-блоки дня за полтора. Посилання на коментар Поділитися на інших сайтах More sharing options...
Татьяна5 Опубліковано: 13 квітня 2016 Поділитись Опубліковано: 13 квітня 2016 по склейке склейку как раз брать и не хочется , склейку самим на стройке сваять элементарно Посилання на коментар Поділитися на інших сайтах More sharing options...
Tair Опубліковано: 13 квітня 2016 Автор Поділитись Опубліковано: 13 квітня 2016 Меня? Ничего не смущает. Есть штук 20-ть форумов, на которых я пишу. ;) Я в первом же своем ответе Вас в ту сторону направлял. Там полУчите информацию и полнее, и быстрее. Моё мнение по цене. МОжет взял бы, если бы было дороже материала+работа по склейке процентов на 50-70. У меня периметр плиты был 58 метров. Порезали и собрали Л-блоки дня за полтора. Вопрос именно делать блоки без склейки. Чтоб качественно клеить - нужен пресс. Плюс геометрия будет гулять, т.к. любой ручной процесс увеличивает риск рукожопости человеческого фактора! Насчет цены, цельный метровый блок из ПСБ-С-50 (именно настоящий 50) вырисовывается цена до 30$ за метр. Если брать дешевле пенопласт то можно сделать ниже стоимость, но как-то нет желания делать на понижение качества. Посилання на коментар Поділитися на інших сайтах More sharing options...
Татьяна5 Опубліковано: 13 квітня 2016 Поділитись Опубліковано: 13 квітня 2016 вырисовывается цена до 30$ за метр имхо - уйдете от необходимости опалубки (и сразу получаем поверхность под отделку цоколя) - будет продаваться , тогда это имеет смысл, Посилання на коментар Поділитися на інших сайтах More sharing options...
Tair Опубліковано: 13 квітня 2016 Автор Поділитись Опубліковано: 13 квітня 2016 имхо - уйдете от необходимости опалубки (и сразу получаем поверхность под отделку цоколя) - будет продаваться , тогда это имеет смысл, От опалубки уйдем однозначно. Шифера не будет, но на передней кромке сделаем ребристую насечку. Посилання на коментар Поділитися на інших сайтах More sharing options...
Татьяна5 Опубліковано: 13 квітня 2016 Поділитись Опубліковано: 13 квітня 2016 но на передней кромке сделаем ребристую насечку. если бы сразу шла с фиброцементом - цена в 30 уе была бы понятна, а так - 0,09 м3 (при длине 1 мп) и цена в пересчете на кубы = 330 уе или 8 580 грн - ммм, такое себе, не уверена Посилання на коментар Поділитися на інших сайтах More sharing options...
1GOG Опубліковано: 13 квітня 2016 Поділитись Опубліковано: 13 квітня 2016 От опалубки уйдем однозначно. Опалубкой (то, во что льется бетон) в УШП выступает сам ПСБ. Подпирать стенки придется вне зависимости с фиброцементом ПСБ или без. Как-то так Это ведь не опалубка, правда? У меня цоколь 30 см. Подпирали одной доской 200 мм. С фиброцементом, конечно же, конструкция покрепче будет. Это уже кое какой задел для финишного оформления цоколя. Ну и прогнозируемая цена - космос! Я понимаю, что это логично продавать на погонные метры. Но это не должно отличаться от цены за м3 на порядок. и цена в пересчете на кубы = 330 уе или 8 580 грн - ммм, такое себе, не уверенаА я уверен, что не... ;) Посилання на коментар Поділитися на інших сайтах More sharing options...
Татьяна5 Опубліковано: 13 квітня 2016 Поділитись Опубліковано: 13 квітня 2016 Подпирать стенки придется вне зависимости с фиброцементом ПСБ или без. неа вполне можно не делать, если конструкция оч плотная, без клеевого шва и сверху стоит каркас и защемлено все внутри ЭППС (или плотным ПСБ) + фибрик по торцу делают такое не у нас, делают 1 Посилання на коментар Поділитися на інших сайтах More sharing options...
1GOG Опубліковано: 13 квітня 2016 Поділитись Опубліковано: 13 квітня 2016 делают такое не у нас, делают Эх, Татьяна. Не у нас и не такое делают! если конструкция оч плотная, без клеевого шва и сверху стоит каркас и защемлено все внутри ЭППС (или плотным ПСБ) + фибрик по торцу Очень много если... Посилання на коментар Поділитися на інших сайтах More sharing options...
Татьяна5 Опубліковано: 13 квітня 2016 Поділитись Опубліковано: 13 квітня 2016 Очень много если... это таки да )) Посилання на коментар Поділитися на інших сайтах More sharing options...
Tair Опубліковано: 13 квітня 2016 Автор Поділитись Опубліковано: 13 квітня 2016 если бы сразу шла с фиброцементом - цена в 30 уе была бы понятна, а так - 0,09 м3 (при длине 1 мп) и цена в пересчете на кубы = 330 уе или 8 580 грн - ммм, такое себе, не уверена Финальная цена будет понятна когда сделаем прототип. При производстве есть вероятность получения брака, если испортиться одна плита из куба, повторно ее использовать не получиться, поэтому на этом этапе также есть определенное удорожание. Добавлено через 1 минуту неа вполне можно не делать, если конструкция оч плотная, без клеевого шва и сверху стоит каркас и защемлено все внутри ЭППС (или плотным ПСБ) + фибрик по торцу делают такое не у нас, делают Если брать 50 ПСБ, толщиной 100 мм плюс замок, то можно без поддерживающей опалубки. Посилання на коментар Поділитися на інших сайтах More sharing options...
Татьяна5 Опубліковано: 13 квітня 2016 Поділитись Опубліковано: 13 квітня 2016 При производстве есть вероятность получения брака дело-в - перерезаете ее в 20 см длину - вуа-ля "плита наборная фасонная" ) Добавлено через 1 минуту Если брать 50 ПСБ, толщиной 100 мм плюс замок, то можно без поддерживающей опалубки. такое если лить бетононасосом (а плиты так и надо лить) - не рискнула бы Добавлено через 1 минуту Финальная цена будет понятна когда сделаем прототип. В любом случае - хорошее начинание, я бы попробовала поработать при понятной логике цене Посилання на коментар Поділитися на інших сайтах More sharing options...
Tair Опубліковано: 13 квітня 2016 Автор Поділитись Опубліковано: 13 квітня 2016 Опалубкой (то, во что льется бетон) в УШП выступает сам ПСБ. Подпирать стенки придется вне зависимости с фиброцементом ПСБ или без. Это ведь не опалубка, правда? У меня цоколь 30 см. Подпирали одной доской 200 мм. С фиброцементом, конечно же, конструкция покрепче будет. Это уже кое какой задел для финишного оформления цоколя. Ну и прогнозируемая цена - космос! Я понимаю, что это логично продавать на погонные метры. Но это не должно отличаться от цены за м3 на порядок. А я уверен, что не... ;) На этой фотографии вроде плита 50 мм, поэтому ставят подпорную опалубку. Посилання на коментар Поділитися на інших сайтах More sharing options...
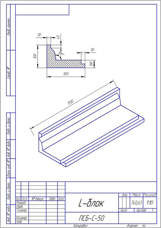
Татьяна5 Опубліковано: 13 квітня 2016 Поділитись Опубліковано: 13 квітня 2016 На этой фотографии вроде плита 50 мм, поэтому ставят подпорную опалубку. а не в каждой УШП поставишь 100 мм по бортам - зависит от стен и фасада, будет навесать или заподлецо Посилання на коментар Поділитися на інших сайтах More sharing options...
Tair Опубліковано: 13 квітня 2016 Автор Поділитись Опубліковано: 13 квітня 2016 дело-в - перерезаете ее в 20 см длину - вуа-ля "плита наборная фасонная" ) не слышал, а что это за деталь? такое если лить бетононасосом (а плиты так и надо лить) - не рискнула бы Надо будет сделать демо. Вот на видео льют без опалубки. Там немного другая плита, но все же. тут тоже без опалубки: и тут: Посилання на коментар Поділитися на інших сайтах More sharing options...
Татьяна5 Опубліковано: 13 квітня 2016 Поділитись Опубліковано: 13 квітня 2016 Там немного другая плита, но все же. там абсолютно другая плита, из другого материала и совершенной других толщин (и веса блока) + замки везде в ЭППС )) демо я Вам сделаю, сделайте блоки 1 Посилання на коментар Поділитися на інших сайтах More sharing options...
Tair Опубліковано: 13 квітня 2016 Автор Поділитись Опубліковано: 13 квітня 2016 а не в каждой УШП поставишь 100 мм по бортам - зависит от стен и фасада, будет навесать или заподлецо Можно тогда делать наплыв (см. рисунок), но мне кажется под 100 мм подойдет для большинства конструкций. Посилання на коментар Поділитися на інших сайтах More sharing options...
Рекомендовані повідомлення
Створіть акаунт або увійдіть у нього для коментування
Ви маєте бути користувачем, щоб залишити коментар
Створити акаунт
Зареєструйтеся для отримання акаунта. Це просто!
Зареєструвати акаунтУвійти
Вже зареєстровані? Увійдіть тут.
Увійти зараз