mikhailoff71 Опубліковано: 19 квітня 2016 Поділитись Опубліковано: 19 квітня 2016 Доброго здравия, всем заглянувшим! Долго не решался создавать свою тему. И в каком разделе: строительство или проекты? Но стройка началась и появились вопросы. Поэтому, уважаемые форумчане, буду рад любой критике с Вашей стороны. Возможно, что-то из этого получится. На участке 6 соток в рядовой городской застройке со всеми коммуникациями уже построили баньку. Теперь пробуем построить дом. Не то что дом, а просто, "перенести" трехкомнатную квартиру, в которой сейчас проживаем, на землю. Вот две планировки, принципиально ничего меняться не будет. Вопрос, только по кухне-гостинной. Делать кладовку или нет. Наличие кладовки неоспоримый плюс, но при этом усложняется устройство вент каналов (без кладовки - вентканалы в несущей перегородке) и можно ли на стену в полкирпича монтировать газовый котел и кухонные шкафы? И второе -разположение камина и TV. 7 Посилання на коментар Поділитися на інших сайтах More sharing options...
mikhailoff71 Опубліковано: 19 квітня 2016 Автор Поділитись Опубліковано: 19 квітня 2016 Шайтан-машина за один час разобрала и вывезла пристройку от старого глинобитного домика. Появилось место для сройплощадки. 2 Посилання на коментар Поділитися на інших сайтах More sharing options...
lavilong Опубліковано: 19 квітня 2016 Поділитись Опубліковано: 19 квітня 2016 а глинобитный домик проходил по документам где-нибудь?.. Как решался вопрос с архитектурой по сносу? 1 Посилання на коментар Поділитися на інших сайтах More sharing options...
POZITIFF Опубліковано: 19 квітня 2016 Поділитись Опубліковано: 19 квітня 2016 Быть добру! Легкой стройки! 2 Посилання на коментар Поділитися на інших сайтах More sharing options...
mikhailoff71 Опубліковано: 19 квітня 2016 Автор Поділитись Опубліковано: 19 квітня 2016 Почти вырыли траншею под фундамент. Добавлено через 2 минуты а глинобитный домик проходил по документам где-нибудь?.. Как решался вопрос с архитектурой по сносу? Домик нанесен в техпаспорте БТИ. В свою очередь, изготовлен стройпаспорт, в котором постройки под снос заштрихованы. В архитектуре сказали, что этого достаточно для сноса. В БТИ сказали, когда все ненужное будет снесено и построено новое, тогда их вызывать. Посилання на коментар Поділитися на інших сайтах More sharing options...
mikhailoff71 Опубліковано: 19 квітня 2016 Автор Поділитись Опубліковано: 19 квітня 2016 Но появилась проблема. Прямо под лентой наткнулись на старую яму. Что теперь с ней делать? 1 Посилання на коментар Поділитися на інших сайтах More sharing options...
mikhailoff71 Опубліковано: 19 квітня 2016 Автор Поділитись Опубліковано: 19 квітня 2016 Попробовали копать, но мусор закиданный, скорее всего в бывший подвал, т.к. яма идет с расширением ко дну, не дал этого сделать. Ничего не придумал как залить её водой. Вошло около 1,7 м3 воды, осадка получилась около 0,5м. При этом "прощупав" отрезком трубы дно, твердое основание оказалось на глубине около 1м от поверхности этой жижи. Теперь думаю закидать эту жижу строительным мусором в виде бетонных обломков и по возможности утрамбовать. Ленту в этом месте усилить дополнительной арматурой. Что скажет чесной народ по этому поводу? 1 Посилання на коментар Поділитися на інших сайтах More sharing options...
tarantulMF Опубліковано: 19 квітня 2016 Поділитись Опубліковано: 19 квітня 2016 Стремно, как бы не зактидывали, может просесть и угол повиснет в воздухе... У меня тоже была похожая ситуация, правда не погреб, но яма с быть отходами, пришлось угол на 2.5 м углублять и лить бетон... 1 Посилання на коментар Поділитися на інших сайтах More sharing options...
mikhailoff71 Опубліковано: 19 квітня 2016 Автор Поділитись Опубліковано: 19 квітня 2016 Стремно, как бы не зактидывали, может просесть и угол повиснет в воздухе... У меня тоже была похожая ситуация, правда не погреб, но яма с быть отходами, пришлось угол на 2.5 м углублять и лить бетон... Спасибо, что заглянули. У меня получается вот в этом месте яма Я понимаю, что она будет проседать как не уплотняй. Но в данном случае, думаю, что засыпку и утрамбовку мы будем мспользовать лишь в качестве опалубки. А основную нагрузку от дома будет принимать Т-образная (правда не в прямом смысле) балка с усиленным арматурным каркасом. Добавлено через 8 минут Быть добру! Легкой стройки! Легкой уже не назовешь... 3 Посилання на коментар Поділитися на інших сайтах More sharing options...
POZITIFF Опубліковано: 19 квітня 2016 Поділитись Опубліковано: 19 квітня 2016 Легкой уже не назовешь... Насколько старый мусор там? Может взять металлоискатель и найти там что-то ценное?:D 3 Посилання на коментар Поділитися на інших сайтах More sharing options...
mikhailoff71 Опубліковано: 19 квітня 2016 Автор Поділитись Опубліковано: 19 квітня 2016 Насколько старый мусор там? Может взять металлоискатель и найти там что-то ценное?:D Ага, дверцу от печной духовки мне удалось выдернуть. Видится прогнивший тазик из оцинковки. Будем искать дальше? 5 Посилання на коментар Поділитися на інших сайтах More sharing options...
DomiC Опубліковано: 20 квітня 2016 Поділитись Опубліковано: 20 квітня 2016 Ага, дверцу от печной духовки мне удалось выдернуть. Видится прогнивший тазик из оцинковки. Будем искать дальше? Люминий, чавуний) 3 Посилання на коментар Поділитися на інших сайтах More sharing options...
VIP13 Опубліковано: 20 квітня 2016 Поділитись Опубліковано: 20 квітня 2016 Ага, дверцу от печной духовки мне удалось выдернуть. Видится прогнивший тазик из оцинковки. Будем искать дальше? У меня сосед по даче, когда копал сливную яму для канализации наткнулся на целый арсенал со времен второй мировой - гранаты типа Ф-1:o 2 Посилання на коментар Поділитися на інших сайтах More sharing options...
Oleg 88 Опубліковано: 21 квітня 2016 Поділитись Опубліковано: 21 квітня 2016 ...Я понимаю, что она будет проседать как не уплотняй. Но в данном случае, думаю, что засыпку и утрамбовку мы будем мспользовать лишь в качестве опалубки. А основную нагрузку от дома будет принимать Т-образная (правда не в прямом смысле) балка с усиленным арматурным каркасом. ... С почином, земляк! Для собственного спокойствия я бы выяснил контуры ямы. Мож расспросить бывших хозяев/соседей, вызвать спелеологов с эхолотами/сонарами :D. А вообще какой конструктив дома планируется - материал стен. 1. В случае легкой конструкции - как и сам написал - усилить участок фундамента над ямой (см. правила изготовления ж/б несущих балок). У меня пролет несущей балки в перекрытии первого этажа газобетонного дома 3 метра. 2. В зоне ямы организовать сваи с опорой на материковый грунт. И оставить ревизионное "окно" для наблюдения, подсыпки, подливки. 1 Посилання на коментар Поділитися на інших сайтах More sharing options...
mikhailoff71 Опубліковано: 21 квітня 2016 Автор Поділитись Опубліковано: 21 квітня 2016 С почином! Как вариант: откопать яму и хорошо засыпать шлаком или щебнем с проливкой и трамбовкой. Первое дешевле и можно с цементом его. Подумать насчет утепленной шведской плиты вместо ленты. Если лента в этом месте лить подземную часть в опалубке. Спасибо, за вашей темой тоже слежу! Уже пролито - засыпано бетонным мусором, глиной, утрамбовано. Плита не получается из-за перепада высот до 40 см. Грунт над ямой уплотненный, так что опалубка будет только над надземной частью. Сегодня делали подсыпку песком. Нарисовалась ещё одна яма с угольным мусором под одним из углов, но не такая глубокая. Откопали, подлили бетон. Лучше бы не трогали. Навязали 6-ти метровых каркасов. 1 Посилання на коментар Поділитися на інших сайтах More sharing options...
mikhailoff71 Опубліковано: 21 квітня 2016 Автор Поділитись Опубліковано: 21 квітня 2016 Это память предков... У меня был реальный мусорник, когда фундамент делал, матерился страшно! Люди все гуано себе во двор закапывали. Молчу уже за траншеи вдоль и поперек нарытые. 1 Посилання на коментар Поділитися на інших сайтах More sharing options...
mikhailoff71 Опубліковано: 10 травня 2016 Автор Поділитись Опубліковано: 10 травня 2016 30 апреля залили фундамент. Вроде бы уже можно ложить стены. Но встал вопрос по фундаменту под ненесущие перегородки в полкирпича. С формой и конструкцией определился. А вот связывать их с основным жестко или делать независимым, мнения разошлись. С одной стороны, просверлив по 4 отверстия в основном фундаменте и забив пруты арматуры, мы исключаем проседание перегородочных стен. Но с другой, в балке под перегородками неминуемо возникнут ненужные напряжения, т.к. глубина их заложения меньше,а кроме этого, еще и по грунту с растительностью, что приведет к их просадке. Также, если уйдем в зиму не замкнув тепловой контур, возможно промерзание грунта под этими балками, что так же может привести к повреждениям. Кто что думает по этому поводу? 1 Посилання на коментар Поділитися на інших сайтах More sharing options...
mikhailoff71 Опубліковано: 11 травня 2016 Автор Поділитись Опубліковано: 11 травня 2016 Можно ли использовать отсев для подсыпки до нужного уровня пола внутри контура фундамента? Досыпать надо примерно 300 мм. Посилання на коментар Поділитися на інших сайтах More sharing options...
S1LENCE Опубліковано: 11 травня 2016 Поділитись Опубліковано: 11 травня 2016 Можно ли использовать отсев для подсыпки до нужного уровня пола внутри контура фундамента? Досыпать надо примерно 300 мм. Можна. Інколи він навіть дешевше піску... 2 Посилання на коментар Поділитися на інших сайтах More sharing options...
mikhailoff71 Опубліковано: 11 травня 2016 Автор Поділитись Опубліковано: 11 травня 2016 Можна. Інколи він навіть дешевше піску... Да, в два раза дешевле чем песок получается. Предлагают еще шлаком, но по цене он как песок+доставка дороже. Посилання на коментар Поділитися на інших сайтах More sharing options...
alecs555 Опубліковано: 12 травня 2016 Поділитись Опубліковано: 12 травня 2016 И второе -разположение камина и TV Во втором варианте у вас камин получается почти рядом с диваном - при горении имхо будет совсем не комфортно, мы были в магазине каминов при горящем камине(они его для отопления пользуют) - реально ближе 2-х метров находиться не возможно - очень жарко. Хотя наверное зависит от мощности топки и режима горения, но лучше заранее продумать такой сюжет... 2 Посилання на коментар Поділитися на інших сайтах More sharing options...
mikhailoff71 Опубліковано: 12 травня 2016 Автор Поділитись Опубліковано: 12 травня 2016 Во втором варианте у вас камин получается почти рядом с диваном - при горении имхо будет совсем не комфортно, мы были в магазине каминов при горящем камине(они его для отопления пользуют) - реально ближе 2-х метров находиться не возможно - очень жарко. Хотя наверное зависит от мощности топки и режима горения, но лучше заранее продумать такой сюжет... Вот сейчас как раз над этим задумался. Телек на своем месте, и из кухни хорошо видно (второй не придется тулить), и не придется в яркий солнечный день смотреть отражение окна в нем. А вот с камном неувязочка получается. В угол ближе к окну задвигать его не хочется, т.к. дымоход получится на краю ската крыши и, соответственно, его длина изуродует весь вид снаружи. А в таком положении как он сейчас есть тоже не вариант. Скорее всего придется перенести ТВ на стену с камином. Хотя камин планируется больше как резервный источник тепла. 1 Посилання на коментар Поділитися на інших сайтах More sharing options...
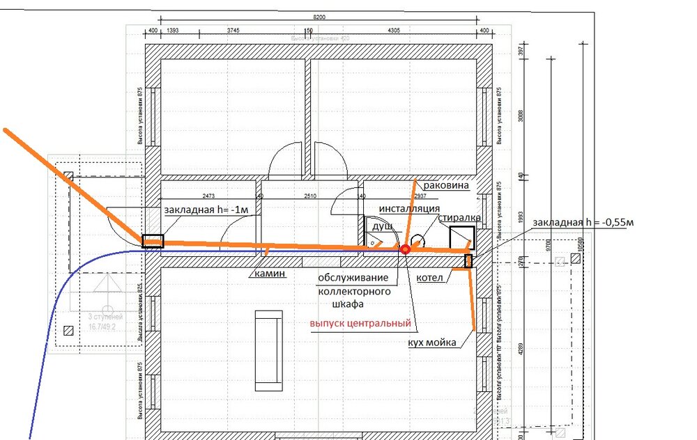
mikhailoff71 Опубліковано: 12 травня 2016 Автор Поділитись Опубліковано: 12 травня 2016 Будем делать черновые полы по грунту до возведения основных стен. В связи с этим возник вопрос по прокладке канализации. Поделать сразу все выпуски под необходимые приборы? Или ограничиться выпуском центральной трубы (фанового стояка не будет, просто клапан), а также выпуском под умывальник и камин, а остальные развести по стенам? Кстати для конденсата с камина нужен отдельный отвод? 1 Посилання на коментар Поділитися на інших сайтах More sharing options...
S1LENCE Опубліковано: 12 травня 2016 Поділитись Опубліковано: 12 травня 2016 Будем делать черновые полы по грунту до возведения основных стен. В связи с этим возник вопрос по прокладке канализации. Поделать сразу все выпуски под необходимые приборы? Или ограничиться выпуском центральной трубы (фанового стояка не будет, просто клапан), а также выпуском под умывальник и камин, а остальные развести по стенам? Кстати для конденсата с камина нужен отдельный отвод? Якщо є можливіть провести каналізацію зверху чорнової стяжки (в утепленні?), то краще 1 точку вивести наверх (хоча Ви вже закладну зробили для кухні низько), тому що можливо щось зміниться з часом - легше буде змінити. Як це клапан замість фанової? Чому відмовились від фанової? Навіщо каналізація біля каміну? 2 Посилання на коментар Поділитися на інших сайтах More sharing options...
mikhailoff71 Опубліковано: 12 травня 2016 Автор Поділитись Опубліковано: 12 травня 2016 Якщо є можливіть провести каналізацію зверху чорнової стяжки (в утепленні?), то краще 1 точку вивести наверх (хоча Ви вже закладну зробили для кухні низько) Это ж не проблема, закладная на всякий случай, но можно пройти и через стену. Утеплитель будет, но всего 50 мм. Як це клапан замість фанової? Чому відмовились від фанової? Если убедите, что фановая нужна, возможно и сделаю. Возможность для этого есть. Просто, не уверен, что для одного унитаза и одного этажа она нужна. Подключение к центральной городской канализации. Навіщо каналізація біля каміну? От я ж i питаю, чи потрiбна каналізація для вiдводу конденсату з димоходу каміна? Чи його там не так забагато, щоб робити окрему гiлку? 1 Посилання на коментар Поділитися на інших сайтах More sharing options...
Рекомендовані повідомлення
Створіть акаунт або увійдіть у нього для коментування
Ви маєте бути користувачем, щоб залишити коментар
Створити акаунт
Зареєструйтеся для отримання акаунта. Це просто!
Зареєструвати акаунтУвійти
Вже зареєстровані? Увійдіть тут.
Увійти зараз