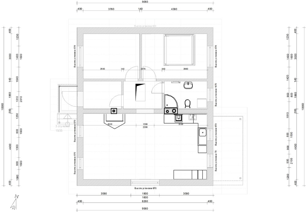
mikhailoff71 Опубліковано: 13 червня 2016 Поділитись Опубліковано: 13 червня 2016 (змінено) Уважаемые специалисты и участники форума! Помогите, пожалуйста, определиться с нюансами в планировке небольшого одноэтажного дома из газобетона (ГБ). В эту среду начинаем возводить стены. Фундамент уже залит с соответствующими размерами. С расположением комнат все понятно. А вот с окнами есть сомнения. Высота стен здания будет 3 метра (14 рядов ГБ + 1 ряд с армопоясом). Первый вопрос. Высоту подоконника планирую сделать 1 метр (5 рядов ГБ), т.к. за счет утеплителя и чистовой стяжки пол поднимется на 120-150мм. В итоге, внутренние подоконники будут примерно 850 мм от чистового пола. Как поступить с верхним краем? Проем под окно по высоте можно сделать либо 1,4м, либо 1,6м. Тогда над окном остается либо 550 мм(с учетом чистового потолка), либо 350 мм. Достаточно ли 350 мм надоконного пространства? Не будут ли высокие окна прятаться под свесы крыши, которые планируются шириной 600мм? Второй вопрос. В гостинной на западной стене можно сделать либо одно окно, такое же по ширине, как окно спальни 1400мм, либо установить два узких окошка шириной по 800-900мм. Солнце с этой стороны будет светить с обеда до самого вечера. Снаружи эта стена будет прикрыта перголой, чтобы летом её притенять. Во втором случае есть выбор с размещением ТВ (между окошками или на стене у камина?). Какие неожиданности меня могут подстерегать во втором случае, при последующем оформлении интерьера? И в целом, подскажите, пожалуйста, по планировке кухни-гостинной, опираясь на Ваш опыт. Заранее благодарю. Змінено 13 червня 2016 користувачем mikhailoff71 Посилання на коментар Поділитися на інших сайтах More sharing options...
jenkins Опубліковано: 13 червня 2016 Поділитись Опубліковано: 13 червня 2016 Высота подоконника чистовая 850мм - нормально вполне. Высоту окон можно сделать любую, привязываться к высоте блока совсем не обязательно, блоки легко можно подрезать. Сделайте высоту 1500мм. Будет 400мм сверху -вполне норм. Узкие окна не делайте. Из 800мм проема останется 50см стекла. Лучше сделайте 1 широкое окно, можно 1.6-1.8м. К тому же два мелких окна обойдутся почти вдвойне дороже одного большого, с учетом их монтажа, откосов итд. 3 Посилання на коментар Поділитися на інших сайтах More sharing options...
mikhailoff71 Опубліковано: 13 червня 2016 Автор Поділитись Опубліковано: 13 червня 2016 (змінено) Еще вопрос по поводу выхода в сад. Делать отдельно дверь шириной 900 мм и отдельно окно шириной 800 мм? Или сделать общий блок, например шириной 1,7-2,0 метра? Змінено 13 червня 2016 користувачем mikhailoff71 Посилання на коментар Поділитися на інших сайтах More sharing options...
mikhailoff71 Опубліковано: 13 червня 2016 Автор Поділитись Опубліковано: 13 червня 2016 Узкие окна не делайте. Из 800мм проема останется 50см стекла... Исходил из того, что это западная сторона, и света после обеда там более чем достаточно. К тому же два мелких окна обойдутся почти вдвойне дороже одного большого, с учетом их монтажа, откосов итд. С этим согласен. Посилання на коментар Поділитися на інших сайтах More sharing options...
jenkins Опубліковано: 13 червня 2016 Поділитись Опубліковано: 13 червня 2016 Если планировка позволяет, то лучше сделать отдельные окно и дверь. Причина - ремонтопригодность и независимость окна от дверей. В случае если оно воедино Вы не сможете купить двери отдельно окно отдельно, если например по дизайну чтото из них не понравится. Или же другой радикальный вариант - двойные двери остекленные, без окна вовсе. Дверь совмещенная с окном - чисто квартирный вариант... И еще. Если Вы хотите пользоваться дверью как выход на улицу ( а не только на терассу\балкон) то следует учесть что нужно гдето ставить уличную обувь - шлепки ит, и место сие всегда будет грязным. И вообще, советую делать просторные окна, особенно на первом этаже, они создают главный уют в помещениях. Добавлено через 16 минут Исходил из того, что это западная сторона, и света после обеда там более чем достаточно. "более чем достаточно" - площадь остекления можно и нужно рассчитать согласно СНИПам - инсоляция помещений. Чисто из эстетических соображений нужно не забывать, что ширина профиля у окна со створкой около 15см с каждой стороны. Итого 30см по бокам у проема уже забирается. К тому же толщина стены около +-30см - откосы. В итоге если сделать узкое окно, выглядеть оно будет как портал с илюминатором а не как украшающее интерьер окно. По моему мнению, минимальная ширина окна должна быть не менее 1.2м 2 Посилання на коментар Поділитися на інших сайтах More sharing options...
VIP13 Опубліковано: 14 червня 2016 Поділитись Опубліковано: 14 червня 2016 Проем под окно по высоте можно сделать либо 1,4м, либо 1,6м. Сережа, здравствуй! Проем явно надо делать 1.6 м, дабы установить в нем окно высотой 1.5 м. 2 Посилання на коментар Поділитися на інших сайтах More sharing options...
rombikk Опубліковано: 16 червня 2016 Поділитись Опубліковано: 16 червня 2016 Еще вопрос по поводу выхода в сад. Делать отдельно дверь шириной 900 мм и отдельно окно шириной 800 мм? Или сделать общий блок, например шириной 1,7-2,0 метра? По двери ответил Расположение кухни похоже на мою ;) ИМХО,делать отдельно дверь и окно,ширина окна 800 мм узко будет,в стекле это всего 560 мм лучше поставить нормальный профиль и увеличить ширину окна до 1100 - 1150 мм,при цельной створке световой проем будет 860 -910 мм,высота окна 1600 мм будет вполне пропорциональна этой ширине дверь, при желании, тоже можно сделать по уровню окна . 1 Посилання на коментар Поділитися на інших сайтах More sharing options...
Татьяна5 Опубліковано: 16 червня 2016 Поділитись Опубліковано: 16 червня 2016 Еще вопрос по поводу выхода в сад. Делать отдельно дверь шириной 900 мм и отдельно окно шириной 800 мм? Или сделать общий блок, например шириной 1,7-2,0 метра? Дверь 900 мм или у Вас проем 900 мм? ИМХО, если проем - то делать проем 1 м, тогда как раз сама рабочая часть двери будет 900 мм Отдельный блок - идеально, минимальная ширина 1,8, оптимально - 2 метра, из соображение, которые описаны выше 1 Посилання на коментар Поділитися на інших сайтах More sharing options...
mikhailoff71 Опубліковано: 16 червня 2016 Автор Поділитись Опубліковано: 16 червня 2016 (змінено) Спасибо всем за оперативность! Вобщем, учитывая вышесказанное, делаем: 1. Одно окно 1,4 м шириной. 2. По высоте все проемы под окна 1,6 м 3. В кухне ширину окна увеличиваем до 1,1 м, высоту сделаем 1,5 м, подоконник 0,95м, чуть выше столешницы или вровень, проем под дверь 0,9м. Змінено 16 червня 2016 користувачем mikhailoff71 1 Посилання на коментар Поділитися на інших сайтах More sharing options...
mikhailoff71 Опубліковано: 16 червня 2016 Автор Поділитись Опубліковано: 16 червня 2016 Дверь 900 мм или у Вас проем 900 мм? ИМХО, если проем - то делать проем 1 м, тогда как раз сама рабочая часть двери будет 900 мм Отдельный блок - идеально, минимальная ширина 1,8, оптимально - 2 метра, из соображение, которые описаны выше Спасибо, Татьяна, что заглянули! Ваши черепашки у меня тоже на рабочем столе. Там окошки есть и по 800 мм... Еще вопрос. Стоит ли большое окно сместить в сторону кухни, дабы расширить пространство гостинной. Или не заморачиваться и делать по центру. Посилання на коментар Поділитися на інших сайтах More sharing options...
Рекомендовані повідомлення
Створіть акаунт або увійдіть у нього для коментування
Ви маєте бути користувачем, щоб залишити коментар
Створити акаунт
Зареєструйтеся для отримання акаунта. Це просто!
Зареєструвати акаунтУвійти
Вже зареєстровані? Увійдіть тут.
Увійти зараз