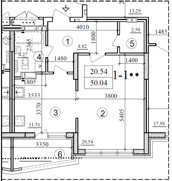
svetlyach0k Опубліковано: 15 червня 2016 Поділитись Опубліковано: 15 червня 2016 Квартира: Новострой, 25 (из 25) этаж, 1к, 50м кв. Окна выходят на Зп сторону. План квартиры: Панорамное окно в комнате: Текущая идея по перепланировке: Перенести кухню на место гардеробной (нежилое помещение). На старом месте кухни сделать спальню и объединить с балконом. Кухню на новом месте разделять с залом межкомнатной перегородкой (например, стеклянной). Еще не консультировался с сантехником, придется ли делать принудительную канализацию (хотелось бы услышать Ваше мнение - за и против). Что будем заказывать у победителя тендера: - Альтернативные варианты перепланировки (концептуально, как я описывал выше). - Пакет чертежей: план демонтажа / монтажа, план расстановки мебели, план электрической разводки, план разводки сантехники, план потолков (возможно, будут гипсокартонные потолки), план полов, план плитки, план света (возможно, использование разного точечного осветления). - Визуализацию. Стилистично мне близок минимализм. Опционально: - авторский надзор. Что хотим получить от участников тендера: - ссылку на Ваш сайт (если имеется) - фотографии готовых работ. - ориентировочную стоимость работ перечисленных Выше (в сумме за проект). Просьба отдельно указывать стоимость авторского надзора и объемы работ по надзору (как Вы считаете - к-во выездов / человекочасы и тп). - рекомендации. Например, контакты клиентов (посмотреть работы) Свободно обращайтесь по имейлу с вопросами и уточнениями. Ждем Ваших предложений. 2 Посилання на коментар Поділитися на інших сайтах More sharing options...
svetlyach0k Опубліковано: 15 червня 2016 Автор Поділитись Опубліковано: 15 червня 2016 (змінено) Добавил фото в форме вложенных файлов Змінено 15 червня 2016 користувачем svetlyach0k орфография 1 Посилання на коментар Поділитися на інших сайтах More sharing options...
dorado_2820 Опубліковано: 16 червня 2016 Поділитись Опубліковано: 16 червня 2016 Добавил фото в форме вложенных файлов Отправил предложение на почту. 1 Посилання на коментар Поділитися на інших сайтах More sharing options...
Liubov_K Опубліковано: 17 червня 2016 Поділитись Опубліковано: 17 червня 2016 Здравствуйте. Письмо с предложением и описанием работы отправила Вам на почту. 1 Посилання на коментар Поділитися на інших сайтах More sharing options...
svetlyach0k Опубліковано: 4 липня 2016 Автор Поділитись Опубліковано: 4 липня 2016 Спасибо большое всем, кто откликнулся! Победитель определен. Тендер закрыт. 1 Посилання на коментар Поділитися на інших сайтах More sharing options...
Рекомендовані повідомлення
Створіть акаунт або увійдіть у нього для коментування
Ви маєте бути користувачем, щоб залишити коментар
Створити акаунт
Зареєструйтеся для отримання акаунта. Це просто!
Зареєструвати акаунтУвійти
Вже зареєстровані? Увійдіть тут.
Увійти зараз