Перейти до публікації
Пошук в
  • Додатково...
Шукати результати, які містять...
Шукати результати в...

помогите определиться со стоимостью крыши

Виктор П

Рекомендовані повідомлення

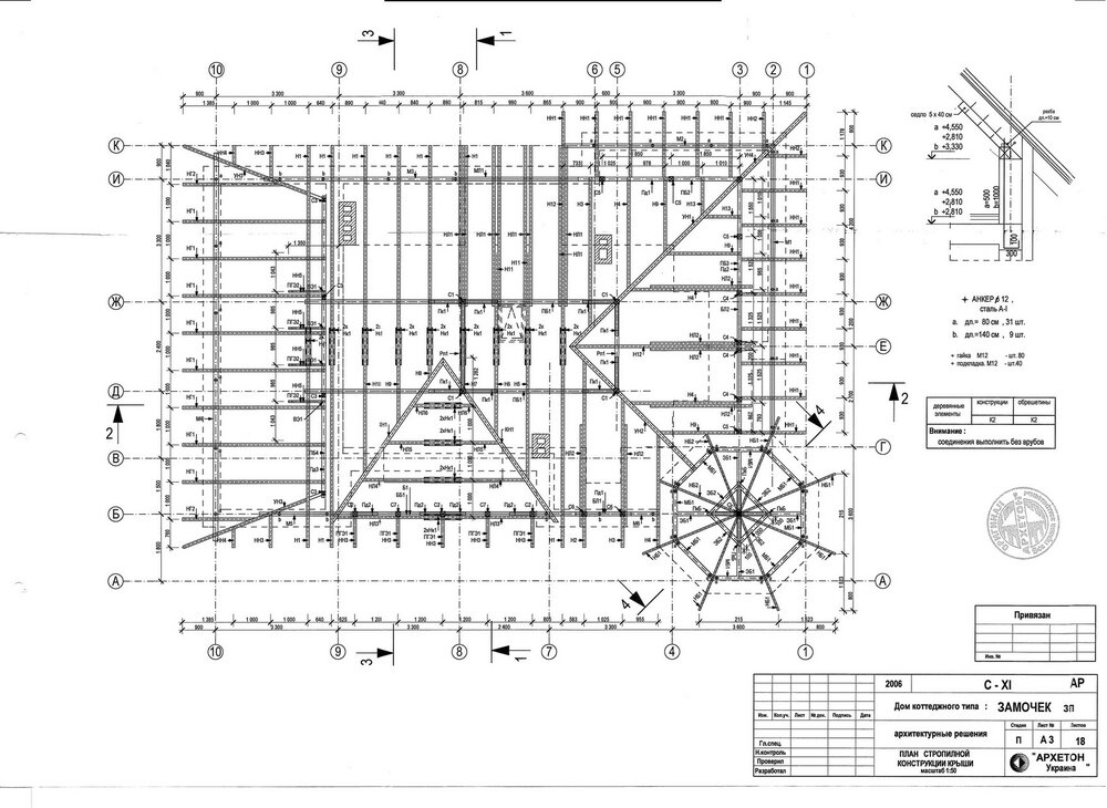
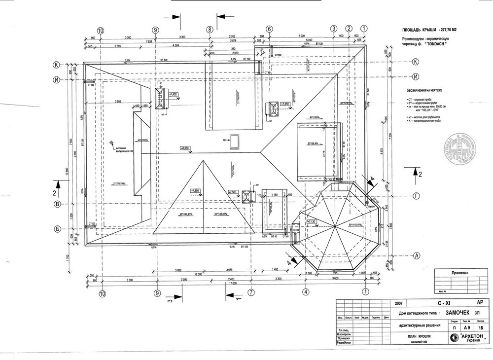
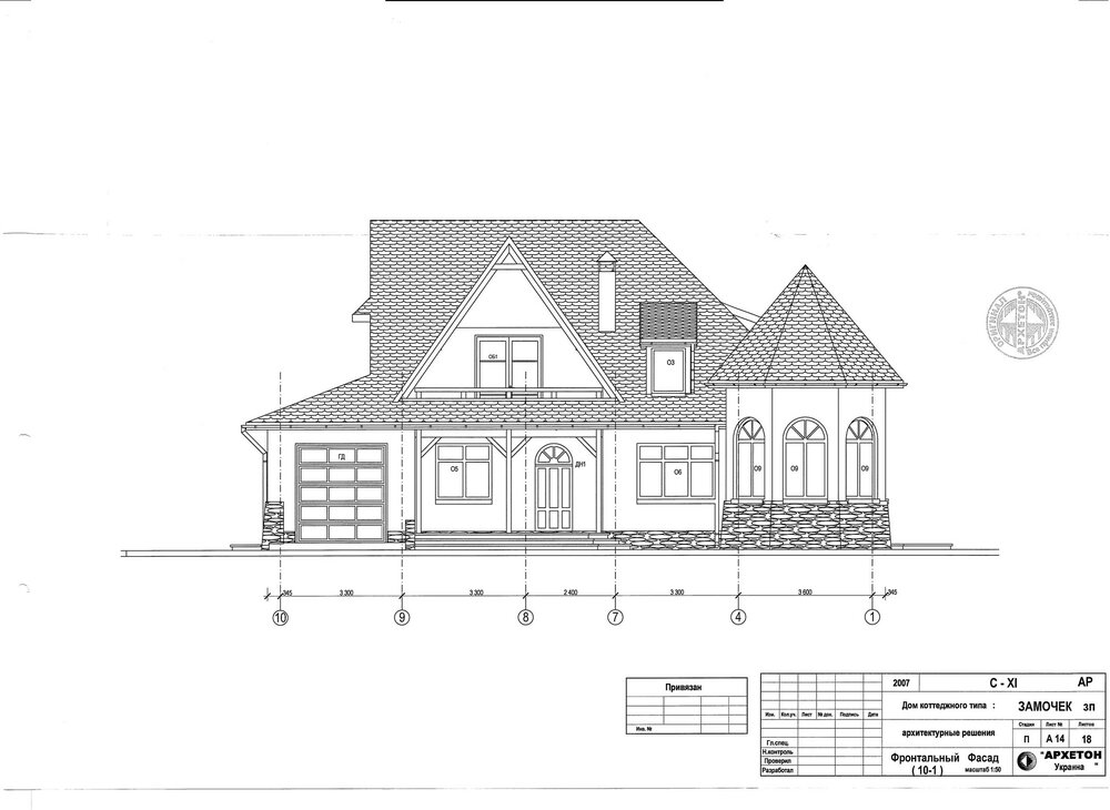
Добрый день, помогите, пожалуйста, определиться со стоимостью работ по крыше. Планирую осенью начать работы по устройству, необходимо понимать от какой стоимости работ по устройству 1 м.кв. крыши отталкиваться, чтобы договориться с крышниками.

Исходные данные:

-планирую следующие работы: стропилка, гидробарьер, обрешетка, контрейка, монтаж черепицы, т.е. все работы кроме утепления, водосточки и подшивки свесов.

- площадь крыши 250м.кв.;

-длина коньков - 70 м.;

-объем леса -15м3.;

-длина ендов -24м.;

-примыкание к двум дымоходам - периметр примыканий 5,4м.; необходим монтаж одного вентиляционного комплекта с проходом трубы через крышу; общая длина всех примыканий на крыше -14,5м.

-длина лобовой планки -90м.

Ну и собственно картинки:)

20110120164930376_00000001.thumb.jpg.b91d6f5c3e0d6ef48ccdc862203a1efa.jpg

20110120165045642_00000001.thumb.jpg.ffa086cd444f1887d2c4bcb7aa9c09e0.jpg

20110120165103736_00000001.thumb.jpg.d09af3a103c9b8013f6908363fb327ad.jpg

20110120165140454_00000001.thumb.jpg.cfceea30e069dea34fdd1b91e6c30252.jpg

20110120165231464_00000001.thumb.jpg.5efec002dc982d0565b5a9c81fabb9db.jpg

20110120165244806_00000001.thumb.jpg.1e989413cc676fb44a58b77dd4b8ab75.jpg

Посилання на коментар
Поділитися на інших сайтах

Добрый день, помогите, пожалуйста, определиться со стоимостью работ по крыше. Планирую осенью начать работы по устройству, необходимо понимать от какой стоимости работ по устройству 1 м.кв. крыши отталкиваться, чтобы договориться с крышниками.

Исходные данные:

-планирую следующие работы: стропилка, гидробарьер, обрешетка, контрейка, монтаж черепицы, т.е. все работы кроме утепления, водосточки и подшивки свесов.

- площадь крыши 250м.кв.;

-длина коньков - 70 м.;

-объем леса -15м3.;

-длина ендов -24м.;

-примыкание к двум дымоходам - периметр примыканий 5,4м.; необходим монтаж одного вентиляционного комплекта с проходом трубы через крышу; общая длина всех примыканий на крыше -14,5м.

-длина лобовой планки -90м.

Ну и собственно картинки

Если кровля утепленная полный пирог кровли стоит - 270 грн/м2

Подшив свесов - 80 грн/м2

Водостоки - 70 грн/м.п.

Монтаж колпаков на камин - 800 грн/шт

Монтаж мансардных окон, лестниц, люков - 800 грн/шт.

монтаж демонтаж лесов - 30 грн/м2

разгрузочные работы - 200 грн/т

  • Лайк 1
Посилання на коментар
Поділитися на інших сайтах

Створіть акаунт або увійдіть у нього для коментування

Ви маєте бути користувачем, щоб залишити коментар

Створити акаунт

Зареєструйтеся для отримання акаунта. Це просто!

Зареєструвати акаунт

Увійти

Вже зареєстровані? Увійдіть тут.

Увійти зараз
×
×
  • Створити...