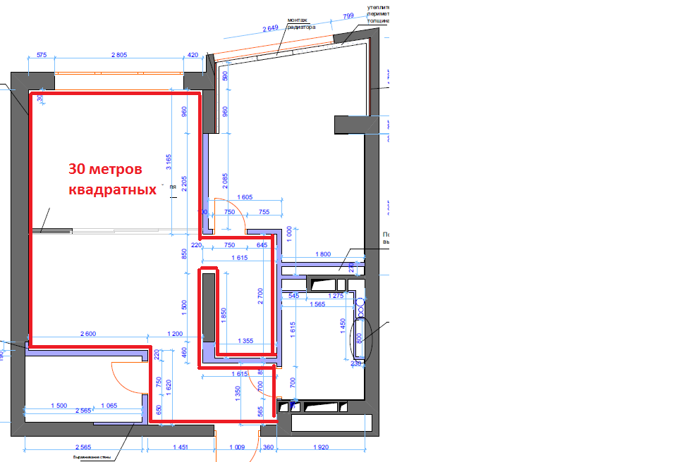
svetlyach0k Опубліковано: 19 вересня 2016 Поділитись Опубліковано: 19 вересня 2016 Уважаемые форумчане, Нужен ваш совет. С т.з. достаточности обогрева - устанавливать ли вдоль панорамного окна внутрипольный конвектор с принудительной конвекцией или ставить вертикальный радиатор на стене рядом? Главный критерий - обогрев помещения. Второй критерий - дизайн (не хотелось бы закрывать панорамное окно). Более детальное описание: Думаем над отоплением комнаты, к которой прилягает кухня (без двери) и прихожая (без двери) Общая площадь указанного пространства = 30м кв. Высота потолков = 272 см. В верхней части комнаты - панорамное окно длинной 280 см. Мы рассматриваем варианты: 1) установить внутрипольный конвектор с принудительной конвекцией. Длинна 275 см, ширина 30 см, глубина 9 см. Заявленная мощность при температуре теплоносителя 80\60 градусов - 3,305 Вт. Т.е. вроде как должно хватить. Вопросы, которые возникают: - на Вашем опыте - насколько надежны конвектора Carrera? - не будет ли холодно на практике? (окна с двойным стеклопакетом и аргоном) 2) установить вертикальную батарею. Присмотрели Enix Plain Art Vertical (700x2200); заявленная мощность 3000 Вт. - не будет ли запотевать окно? - возможно вы знаете другие модели вертикальных конвекторов с неплохим дизайном, на которые стоит обратить внимание? Или стоит искать какой-то компромисный вариант - например, небольшой внутрипольный конвектор + вертикальная батарея? Посилання на коментар Поділитися на інших сайтах More sharing options...
naupv Опубліковано: 19 вересня 2016 Поділитись Опубліковано: 19 вересня 2016 Главный критерий - обогрев помещения. Второй критерий - дизайн (не хотелось бы закрывать панорамное окно). Значит конвектор. температуре теплоносителя 80\60 градусов - 3,305 Вт А вы уверены, что будете разгонять котел до 80 грд? И сравните по цене вышеперечисленный конвектор и радиатор. 1 Посилання на коментар Поділитися на інших сайтах More sharing options...
svetlyach0k Опубліковано: 19 вересня 2016 Автор Поділитись Опубліковано: 19 вересня 2016 У нас центральное отопление. И, честно говоря, даже не представляю какой температуры будет заходить зимой теплоноситель в квартиру. Хотелось бы выбрать радиатор "с запасом" По ценам: 1) внутрипольный конвектор с описаными характеристиками стоит ~20 тыс грн 2) вертикальный радиатор Enix ~17 тыс грн С мощностью ~3 кВт - самый дешевый вертикальный, который я находил - Oscar ~10 тыс грн. В основном цены 15 тыс грн+ за дизайнерское исполнение и тп. Посилання на коментар Поділитися на інших сайтах More sharing options...
Анатолий62 Опубліковано: 19 вересня 2016 Поділитись Опубліковано: 19 вересня 2016 По ценам: 1) внутрипольный конвектор с описаными характеристиками стоит ~20 тыс грн 2) вертикальный радиатор Enix ~17 тыс грн Как по мне...На 30 м2 лучше ставить 2 прибора. В Вашем случае внутрипольник 2700-2800х380 с 2-мя теплообменниками (широкий) и радиатор 22 тип 500х700 на стену- как раз получите пытуемые 3кВт при подаче +65-70С. Кроме того избавитесь от шума вентилятора и электронных компонентов (скажу по секрету-блоки питания самый слабый элемент по надёжности ) 1 Посилання на коментар Поділитися на інших сайтах More sharing options...
svetlyach0k Опубліковано: 19 вересня 2016 Автор Поділитись Опубліковано: 19 вересня 2016 Спасибо за совет! Буду думать дальше. Я когда сравнивал конвектор шириной 380 мм (с двойным теплообменником) с конвектором шириной 300 мм (с вентилятором) обнаружил, что цены разнятся очень не существенно, а тепловая мощность у конвектора с вентилятором больше в 2 раза (при макс. частоте оборотов вентилятора). Поэтому думал брать обязательно с вентилятором. Сейчас не уверен. Может вообще стоит взять только внутрипольник, но с двойным теплообменником и с вентилятором. Заявленная мощность ~4кВт? 1 Посилання на коментар Поділитися на інших сайтах More sharing options...
Анатолий62 Опубліковано: 20 вересня 2016 Поділитись Опубліковано: 20 вересня 2016 Может вообще стоит взять только внутрипольник, но с двойным теплообменником и с вентилятором. Заявленная мощность ~4кВт? Не забывайте про шумность в работе (шуметь вентилятор будет больше чем в кондиционере 18-ке).Подумайте об установке блока питания-он боится перегрева и должен быть доступен для обслуживания-а многие любят его устанавливать " в пол".... Посилання на коментар Поділитися на інших сайтах More sharing options...
naupv Опубліковано: 20 вересня 2016 Поділитись Опубліковано: 20 вересня 2016 Могу дать тел своего старого клиента, он готов продать два принудительных конвектора, как раз такие как Вам нужно. Единственное условие, вы выколупываете их сами. Он уже в досталь наигрался и наслушался их очаровательной мелодии, особенно когда в доме тишина и все спят. 2 Посилання на коментар Поділитися на інших сайтах More sharing options...
svetlyach0k Опубліковано: 21 вересня 2016 Автор Поділитись Опубліковано: 21 вересня 2016 Да, напишите в ЛС, пожалуйста, номер. Буду очень признателен. Посилання на коментар Поділитися на інших сайтах More sharing options...
hotkabel Опубліковано: 21 вересня 2016 Поділитись Опубліковано: 21 вересня 2016 Главный критерий - обогрев помещения. Второй критерий - дизайн (не хотелось бы закрывать панорамное окно). Если у Вас панорамное окно не до самого пола, можно установить узкие панорамные (они так и называются) электроконвекторы. Высота такого электроконвектора - 20 см. КПД выше некуда, безшумный, легко монтируется и на очень много дешевле внутрипольного. Посилання на коментар Поділитися на інших сайтах More sharing options...
Анатолий62 Опубліковано: 23 вересня 2016 Поділитись Опубліковано: 23 вересня 2016 Да, напишите в ЛС, пожалуйста, номер. Буду очень признателен. Да уж...Я себе плохо представляю процесс "выколупывания",если конвектор не вставлен в предварительно подготовленную нишу,а попросту залит в стяжку...На пол метра в радиусе можно покрытие пола привести в полную негодность, не говоря уже про корпус конвектора... Добавлено через 1 минуту Если у Вас панорамное окно не до самого пола, можно установить узкие панорамные (они так и называются) электроконвекторы. Высота такого электроконвектора - 20 см. КПД выше некуда, безшумный, легко монтируется и на очень много дешевле внутрипольного. Можно...Можно и радиатор отопления высотой 200,можно напольные конвектора... И с электрикой не заморачиваться и подсоеденить в существующую систему... Посилання на коментар Поділитися на інших сайтах More sharing options...
Рекомендовані повідомлення
Створіть акаунт або увійдіть у нього для коментування
Ви маєте бути користувачем, щоб залишити коментар
Створити акаунт
Зареєструйтеся для отримання акаунта. Це просто!
Зареєструвати акаунтУвійти
Вже зареєстровані? Увійдіть тут.
Увійти зараз