AppleWhite Опубліковано: 17 грудня 2016 Поділитись Опубліковано: 17 грудня 2016 Хто може виготовити такий "бамбетель" (без подушок)? Все нібито нескладно, але є дві вимоги: щоб виглядав так само, як на картинці (за винятком відтінку дерева - це ми обговоримо окремо) та щоб не використовувалися жодні клеї та інша "хімія" (покриття буде олія-віск). У крайньому разі можна без тріщин. Київ. 2 Посилання на коментар Поділитися на інших сайтах More sharing options...
Волчок Опубліковано: 18 грудня 2016 Поділитись Опубліковано: 18 грудня 2016 Озвучте размеры требуемого "бамбетля" Посилання на коментар Поділитися на інших сайтах More sharing options...
Сергей124 Опубліковано: 18 грудня 2016 Поділитись Опубліковано: 18 грудня 2016 Хто може виготовити такий "бамбетель" (без подушок)? Все нібито нескладно, але є дві вимоги: щоб виглядав так само, як на картинці (за винятком відтінку дерева - це ми обговоримо окремо) та щоб не використовувалися жодні клеї та інша "хімія" (покриття буде олія-віск). У крайньому разі можна без тріщин. Київ. Текстура дерева Посилання на коментар Поділитися на інших сайтах More sharing options...
Piontkovskiy Опубліковано: 18 грудня 2016 Поділитись Опубліковано: 18 грудня 2016 Какой город? Посилання на коментар Поділитися на інших сайтах More sharing options...
DODG Опубліковано: 18 грудня 2016 Поділитись Опубліковано: 18 грудня 2016 Какой город? В первом сообщении указан город! Посилання на коментар Поділитися на інших сайтах More sharing options...
Piontkovskiy Опубліковано: 19 грудня 2016 Поділитись Опубліковано: 19 грудня 2016 В первом сообщении указан город! раньше меня зрение не подводило. Видимо старею Посилання на коментар Поділитися на інших сайтах More sharing options...
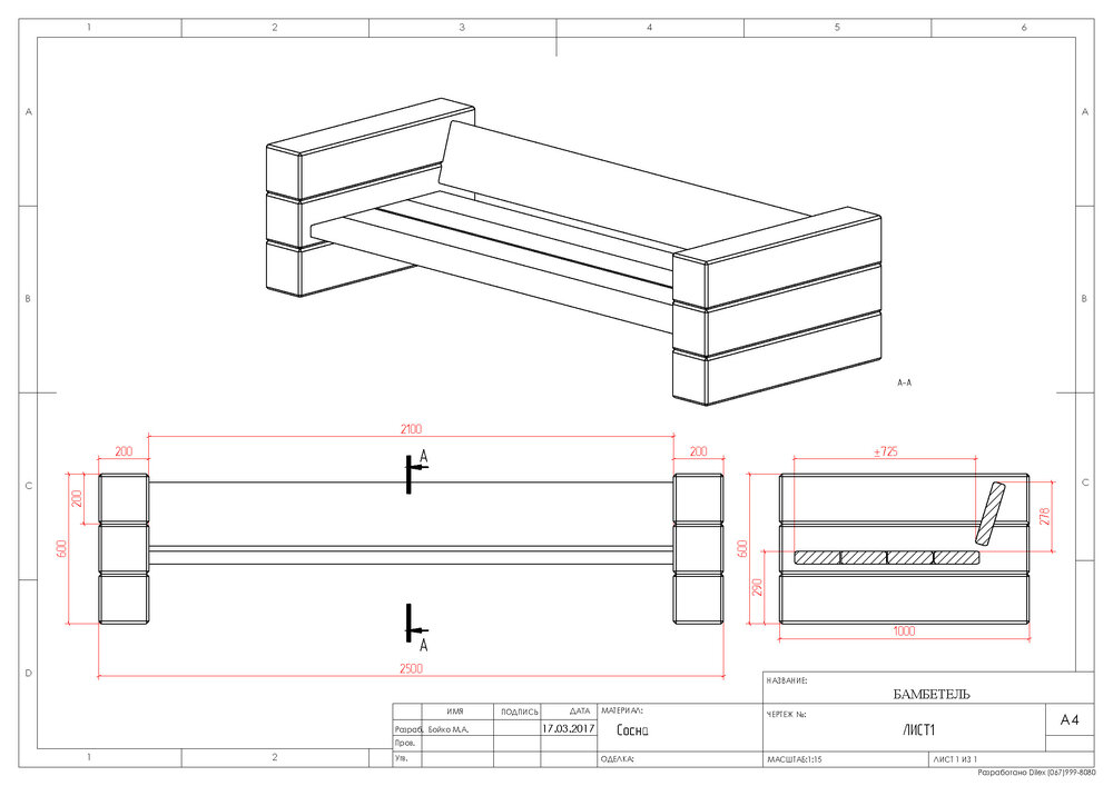
AppleWhite Опубліковано: 20 грудня 2016 Автор Поділитись Опубліковано: 20 грудня 2016 Уточнюю параметри: Дуб (або ясен, якщо він підходить). Точні розміри поки що не готова надати, але якщо просто щоб порахувати вартість, то, наприклад, довжина 250 см, глибина 90, висота 62 (може варіюватися, якщо у вас, наприклад, брус певних габаритів). І щось я схиляюся до другого варіанта (тільки треба буде його трохи вищим зробити - як нормальний диван), тому прошу зацікавлених майстрів і його прорахувати, якщо не важко. Пропозиції пишіть в особисті повідомлення, будь ласка. Посилання на коментар Поділитися на інших сайтах More sharing options...
lastandr Опубліковано: 20 грудня 2016 Поділитись Опубліковано: 20 грудня 2016 Текстура дерева Можно подробнее? Посилання на коментар Поділитися на інших сайтах More sharing options...
valerazaz Опубліковано: 21 грудня 2016 Поділитись Опубліковано: 21 грудня 2016 из сосны он получается не дешовым ,материал спицефический из сосны ищё реально сделать ,из дуба всё будет в трещинах полюбому, и з годами только больше так как дуб долго сохнет а такое изделия можно сделать из сухостоя или сырой древесины сам вид мне нравиться себе сделаю 1 Посилання на коментар Поділитися на інших сайтах More sharing options...
Serhi1979 Опубліковано: 23 грудня 2016 Поділитись Опубліковано: 23 грудня 2016 Посилання на коментар Поділитися на інших сайтах More sharing options...
деревяный Опубліковано: 17 березня 2017 Поділитись Опубліковано: 17 березня 2017 Для такой мебели есть уже готовые детали, дуб. Посилання на коментар Поділитися на інших сайтах More sharing options...
DODG Опубліковано: 17 березня 2017 Поділитись Опубліковано: 17 березня 2017 Для такой мебели есть уже готовые детали, дуб. Какое сечение, состояние, стоимость. Интересуют буквально обрезки. Можно в личку. 1 Посилання на коментар Поділитися на інших сайтах More sharing options...
MaXXinFOG Опубліковано: 17 березня 2017 Поділитись Опубліковано: 17 березня 2017 [FLOAT=http://www.stroimdom.com.ua/forum/attachment.php?attachmentid=555928&stc=1&d=1489786742][/FLOAT] [FLOAT=http://www.stroimdom.com.ua/forum/attachment.php?attachmentid=555929&stc=1&d=1489786749][/FLOAT] Замечательная идея, очень понравилось, надеюсь будет стоять в саду под кронами дерева. Касательно визуализации которая на фото и сделать также - не получится )): Дерево живой материал и как оно себя поведет никто не знает, торцы могут треснуть а могут и нет, сделать такой эффект искусственно на столярном производстве близко к невозможному. Можно долго рассказывать из чего и как лучше сделать, но мне идея понравилась и я бы ее воплотил в жизнь. Как я буду делать себе: Материал: Сосна, строительный брус 200х200 и брус 50х150. Сырой. Обработка: фуганок, рейсмус, шлифовка 220. Покраска: Масловоск - цвет орех в два слоя с промежуточной шлифовкой. Сосну со временем будет крутить, рвать, лущить и т.д. Она будет сохнуть на жаре, вялится после дождя, промерзать пересыхать на солнце. Через одно лето простоя нужно взять один литр холодного вина, наждак на поролоне зерном 150, мочалку и масловоск. Перетереть и перекрасить. И так я бы делал первые два три года в подряд, а потом раз в пять лет (кроме вина). И где-то на третий -четвертый год мы получим такие-же рваные трещины как на визуализации, но мы с Вами настолько полюбим нашу бамбетель, что нам будет глубоко все равно похожа отделка на то что было когда то на фото или нет ))) А конструктивный внешний вид при таком изделии испортить очень тяжело. 5 Посилання на коментар Поділитися на інших сайтах More sharing options...
anival Опубліковано: 18 березня 2017 Поділитись Опубліковано: 18 березня 2017 Как я буду делать себе: Материал: Сосна, Сырой, шлифовка 220. Дальше можно не читать 1 Посилання на коментар Поділитися на інших сайтах More sharing options...
DODG Опубліковано: 18 березня 2017 Поділитись Опубліковано: 18 березня 2017 сделать такой эффект искусственно на столярном производстве близко к невозможному. Не знаю, насколько близко вы знакомы со столярным производством? Но ничего невозможного нет. P.S. Про литр вина понравилось. 2 Посилання на коментар Поділитися на інших сайтах More sharing options...
anival Опубліковано: 19 березня 2017 Поділитись Опубліковано: 19 березня 2017 Уточнюю параметри: Точні розміри поки що не готова надати, але висота 62. Для высоты в 620 мм, заготовка бруса должна идти с хорошим припуском на прифуговку углов,- как минимум 22см. Такого сечения в продаже нет по определению. 1 Посилання на коментар Поділитися на інших сайтах More sharing options...
деревяный Опубліковано: 20 березня 2017 Поділитись Опубліковано: 20 березня 2017 140+140 сечение , старый дубовый брус и доска дубовая ,L -2м. - 3200 гр. без доставки. Изделие будет иметь вид как на фото. 1 Посилання на коментар Поділитися на інших сайтах More sharing options...
litovetz Опубліковано: 23 березня 2017 Поділитись Опубліковано: 23 березня 2017 А я думаю - че делать с балками, которые остались после работы кровельщиков? нужно взять один литр холодного вина и сыр не забудьте ))) 1 Посилання на коментар Поділитися на інших сайтах More sharing options...
AppleWhite Опубліковано: 23 березня 2017 Автор Поділитись Опубліковано: 23 березня 2017 Дякую всім за пропозиції та думки. Поки що я зрозуміла, що не готова на експеримент. Якби я бачила, що майстер уже робив меблі в подібному стилі, думаю, мені було б легше наважитися. Але коли бачу весь той псевдоампір (або навпаки, стиль "Кащєюшка" або "ізбушка на куріних ножках"), якого так багато можна знайти в інеті (зовсім не маю на увазі тих, хто писав у цій темі, бо не бачила їхніх робіт), то хоч би як мені присягалися зробити так, як на фото, - не віриться З одного боку, я розумію, що, очевидно, покупцям саме таке й подобається. З іншого боку, я впевнена, що є попит і на більш стильні та сучасні меблі, і є вже виробники, які працюють, наприклад, у стилі лофт, але вони або не виконуюють індивідуальні замовлення, або беруть надто вже дорого. Тож наразі тема неактуальна. п.с. Рада, що кільком людям все-таки сподобалися ці ідеї. Хоча бачу, що всі звертають увагу тільки на першу модель, тим часом мені вже більше подобається друга, вона більше підходить для використання всередині будинку (між іншим, оригінал продається в США за 20 з чимось тис. доларів. Щоправда, це старий тик). 1 Посилання на коментар Поділитися на інших сайтах More sharing options...
Волчок Опубліковано: 24 березня 2017 Поділитись Опубліковано: 24 березня 2017 Рада, що кільком людям все-таки сподобалися ці ідеї. Хоча бачу, що всі звертають увагу тільки на першу модель, тим часом мені вже більше подобається друга, вона більше підходить для використання всередині будинку (між іншим, оригінал продається в США за 20 з чимось тис. доларів. Щоправда, це старий тик). Модели действительно интересные, но мало кто сможет и захочет заплатить за подобные изделия и половину от стоимости в США, даже с учетом подбора соответствующих материалов. Посилання на коментар Поділитися на інших сайтах More sharing options...
деревяный Опубліковано: 27 березня 2017 Поділитись Опубліковано: 27 березня 2017 Примерно так. Посилання на коментар Поділитися на інших сайтах More sharing options...
anival Опубліковано: 28 березня 2017 Поділитись Опубліковано: 28 березня 2017 Примерно так. Та не... Это даже на "колхозныйтюнинг" не тянет, а про loft и речи быть не может. Посилання на коментар Поділитися на інших сайтах More sharing options...
zm Опубліковано: 31 березня 2017 Поділитись Опубліковано: 31 березня 2017 Можемо зробити такий "витвір", з обробкою воском + лляна олія. тел 097 9801435 Володимир Посилання на коментар Поділитися на інших сайтах More sharing options...
Рекомендовані повідомлення
Створіть акаунт або увійдіть у нього для коментування
Ви маєте бути користувачем, щоб залишити коментар
Створити акаунт
Зареєструйтеся для отримання акаунта. Це просто!
Зареєструвати акаунтУвійти
Вже зареєстровані? Увійдіть тут.
Увійти зараз