Pletenets Опубліковано: 7 квітня 2017 Поділитись Опубліковано: 7 квітня 2017 Здравствуйте! Буду описывать начало своей стройки,советоваться,так как опыта в стройке дома особо нет,но руки и желание строить есть! Два года назад был куплен участок 12 соток 23м*52,5м Понравился вид на Днепр! За тот год провели электричество и воду! В этом году установили забор и уже год как думаем что строить! Долго думали 1 или 2-х этажный,в общем остановились на 2 или мансардном! Теперь у нас с женой споры по планировке и расположению дома на участке! Сейчас сброшу фото чтоб было понятней и может посоветуете по планировке,расположению комнат по сторонам света!! Посилання на коментар Поділитися на інших сайтах More sharing options...
lala-fa Опубліковано: 7 квітня 2017 Поділитись Опубліковано: 7 квітня 2017 А почему не одноэтажник? Если таки 2 этажа, то я бы остановился на 2-х полноценных, а не на мансарде. Сложнее накосячить. Хотя если у вас есть проверенные люди... Посилання на коментар Поділитися на інших сайтах More sharing options...
Pletenets Опубліковано: 7 квітня 2017 Автор Поділитись Опубліковано: 7 квітня 2017 (змінено) z500.com.ua/projekt/z211.html или z500.com.ua/projekt/z297.html или www.proekty-muratordom.com/proekt_torzhestvennyi,2681,0,0.htm?photo_id=37025 Змінено 7 квітня 2017 користувачем Pletenets Посилання на коментар Поділитися на інших сайтах More sharing options...
vadimv Опубліковано: 7 квітня 2017 Поділитись Опубліковано: 7 квітня 2017 у нас с женой споры по планировке и расположению дома на участке!Какой у вас состав семьи? Сколько человек будет жить в доме? Посилання на коментар Поділитися на інших сайтах More sharing options...
Pletenets Опубліковано: 7 квітня 2017 Автор Поділитись Опубліковано: 7 квітня 2017 Какой у вас состав семьи? Сколько человек будет жить в доме? 4 человека Знаю что лучше 1 этаж,но хочется 2!!! Добавлено через 5 минут Строить буду своими силами,не понимаю когда мне некоторые строители озвучивают сумму только за фундамент в 10000$ За 11 000 можно купить дом или квартиру а тут только фундамент!! Посилання на коментар Поділитися на інших сайтах More sharing options...
vadimv Опубліковано: 8 квітня 2017 Поділитись Опубліковано: 8 квітня 2017 4 человека Знаю что лучше 1 этаж,но хочется 2!!!Неужели вид со второго этажа настолько хороший? z500.com.ua/projekt/z211.html Очень маленькие комнаты и неудобная лестница. z500.com.ua/projekt/z297.htmlТа же фигня и нет спальни на первом этаже. www.proekty-muratordom.com/proekt_torzhestvennyi,2681,0,0.htm?photo_id=37025И опять то же самое. Вы на какую площадь примерно рассчитываете? 1 Посилання на коментар Поділитися на інших сайтах More sharing options...
arnega Опубліковано: 8 квітня 2017 Поділитись Опубліковано: 8 квітня 2017 Живу в двухэтажном доме 11 лет, и мечтаю построить одноэтажный. Подумайте еще раз. Спальная комната нужна на первом этаже. Сегодня для гостей, в старости для Вас. 5 Посилання на коментар Поділитися на інших сайтах More sharing options...
Pletenets Опубліковано: 8 квітня 2017 Автор Поділитись Опубліковано: 8 квітня 2017 Неужели вид со второго этажа настолько хороший? Очень маленькие комнаты и неудобная лестница. Та же фигня и нет спальни на первом этаже. И опять то же самое. Вы на какую площадь примерно рассчитываете? 100 -120м2 Посилання на коментар Поділитися на інших сайтах More sharing options...
vadimv Опубліковано: 8 квітня 2017 Поділитись Опубліковано: 8 квітня 2017 100 -120м2Есть у меня планировка на 120 кв.м, со спальней 12 кв.м на первом этаже, еще одной такой же спальней на втором и двумя спальнями по 16 кв.м, удобной П-образной лестницей и двумя санузлами (на втором этаже 8 кв.м). Конструкция предельно элементарная - по центру дома несущая стена, никаких пролетов по надцать метров, никаких монолитных перекрытий. И такая же элементарная двускатная крыша. Север (дорога) вверху. С южной или западной (да даже с восточной) стороны можно пристроить террасу. 1 Посилання на коментар Поділитися на інших сайтах More sharing options...
vadimv Опубліковано: 8 квітня 2017 Поділитись Опубліковано: 8 квітня 2017 Но лично я бы на вашем месте не мучился и строил одноэтажник на 88 кв.м. Для семьи 2+2 - самое оно. 1 Посилання на коментар Поділитися на інших сайтах More sharing options...
Pletenets Опубліковано: 8 квітня 2017 Автор Поділитись Опубліковано: 8 квітня 2017 Но лично я бы на вашем месте не мучился и строил одноэтажник на 88 кв.м. Для семьи 2+2 - самое оно. А какие размеры домов? Посилання на коментар Поділитися на інших сайтах More sharing options...
vadimv Опубліковано: 8 квітня 2017 Поділитись Опубліковано: 8 квітня 2017 А какие размеры домов?Двухэтажный 8х8, одноэтажный 8х11 (внутри). Спальни 3х4 и 4х4, кухня-гостиная 8х4. Но это только планировка, так сказать, общая идея. Размеры можно растянуть и на метр-два больше, при желании. 1 Посилання на коментар Поділитися на інших сайтах More sharing options...
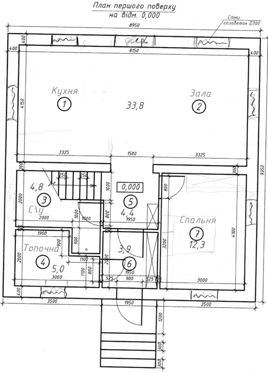
Pletenets Опубліковано: 14 квітня 2017 Автор Поділитись Опубліковано: 14 квітня 2017 Делаем проект, планировка 1 этажа Посилання на коментар Поділитися на інших сайтах More sharing options...
марк-антоний Опубліковано: 14 квітня 2017 Поділитись Опубліковано: 14 квітня 2017 Я бы топочную сделал уже - в пользу санузла. Посилання на коментар Поділитися на інших сайтах More sharing options...
vadimv Опубліковано: 15 квітня 2017 Поділитись Опубліковано: 15 квітня 2017 Делаем проект, планировка 1 этажаИМХО, 5 окон в кухне-гостиной - это перебор. Подумайте, нужно ли вам окно на север (я так понял это слева). И вместо 3 окон сверху я бы оставил максимум 2., а то и одно, если будет окно слева. Т.е. сократил бы количество с 5 до 3. И вообще, почитайте про площадь окон по нормам. Посилання на коментар Поділитися на інших сайтах More sharing options...
Pletenets Опубліковано: 15 квітня 2017 Автор Поділитись Опубліковано: 15 квітня 2017 Я бы топочную сделал уже - в пользу санузла.топочная будет с тт котлом Добавлено через 13 минут ИМХО, 5 окон в кухне-гостиной - это перебор. Подумайте, нужно ли вам окно на север (я так понял это слева). И вместо 3 окон сверху я бы оставил максимум 2., а то и одно, если будет окно слева. Т.е. сократил бы количество с 5 до 3. И вообще, почитайте про площадь окон по нормам. Ну с окнами это еще не конец,вход в дом будет с северной стороны,топочная получается на северо восток, А что скажете по ширине коридоров и лесницы,насколько будет удобно? И ширина зала не мало ли по отношению к длине? Для деревянного перекрития какая стандартная длина балок? Посилання на коментар Поділитися на інших сайтах More sharing options...
vadimv Опубліковано: 15 квітня 2017 Поділитись Опубліковано: 15 квітня 2017 (змінено) топочная будет с тт котломДля ТТ-котла там маловато места, ИМХО. вход в дом будет с северной стороныТогда подумайте, нужно ли вам окно в спальне на север. А что скажете по ширине коридоров и лесницы,насколько будет удобно? И ширина зала не мало ли по отношению к длине?По-моему нормально. Лестница будет с площадкой? Для деревянного перекрития какая стандартная длина балок?Для него нет такого понятия, просто считается сечение и шаг балок в зависимости от пролета. Есть, конечно, стандартная длина лесоматериала, но то совсем другая история и под заказ могут нарезать любой разумной длины. И сразу показывайте второй этаж. Змінено 15 квітня 2017 користувачем vadimv Посилання на коментар Поділитися на інших сайтах More sharing options...
Pletenets Опубліковано: 15 квітня 2017 Автор Поділитись Опубліковано: 15 квітня 2017 Для ТТ-котла там маловато места, ИМХО. Тогда подумайте, нужно ли вам окно в спальне на север. По-моему нормально. Лестница будет с площадкой? Для него нет такого понятия, просто считается сечение и шаг балок в зависимости от пролета. И сразу показывайте второй этаж. Лестница с площадкой Посилання на коментар Поділитися на інших сайтах More sharing options...
Pletenets Опубліковано: 15 квітня 2017 Автор Поділитись Опубліковано: 15 квітня 2017 расположение дома 2 этаж Посилання на коментар Поділитися на інших сайтах More sharing options...
Pletenets Опубліковано: 19 квітня 2017 Автор Поділитись Опубліковано: 19 квітня 2017 Прислушался к советам и взвесив все за решили строить 1-этажный дом с такой планировкой,только зеркальной. 1 Посилання на коментар Поділитися на інших сайтах More sharing options...
Pletenets Опубліковано: 19 квітня 2017 Автор Поділитись Опубліковано: 19 квітня 2017 Планировка 1 Посилання на коментар Поділитися на інших сайтах More sharing options...
Pletenets Опубліковано: 19 квітня 2017 Автор Поділитись Опубліковано: 19 квітня 2017 Подскажите стоит ли строить цокольный этаж под кухней,если перепад участка на длину дома около 70см. насколько это экономически выгодно и насколько дорого? Добавлено через 1 час 13 минут Кто то строил дом из ком-блоков(Харьков) или газобетон и в пол кирпича внутри стена?Может есть у кого то тема,ткните,хотелось бы почитать? Посилання на коментар Поділитися на інших сайтах More sharing options...
Vladimir_1981 Опубліковано: 19 квітня 2017 Поділитись Опубліковано: 19 квітня 2017 Pletenets в пол кирпича внутри стена? у меня только простенок между комнатами "в пол кирпича внутри" на 1-ом этаже простенок Газобетон 150мм на 2-ом Несущая стена "в кирпич" на 1 этаже На 2-ом ГБ 200 (на ребро + кирпич) Посилання на коментар Поділитися на інших сайтах More sharing options...
Pletenets Опубліковано: 19 квітня 2017 Автор Поділитись Опубліковано: 19 квітня 2017 Идея кладки внутри для инертности тепла ну и думаю уменьшиться нагрузка на ГБ,плюс проблем с креплением шкафов и тп,,,интересует точка росы,влажность,утепление не планировалось пока Посилання на коментар Поділитися на інших сайтах More sharing options...
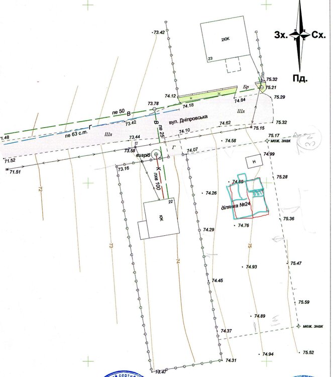
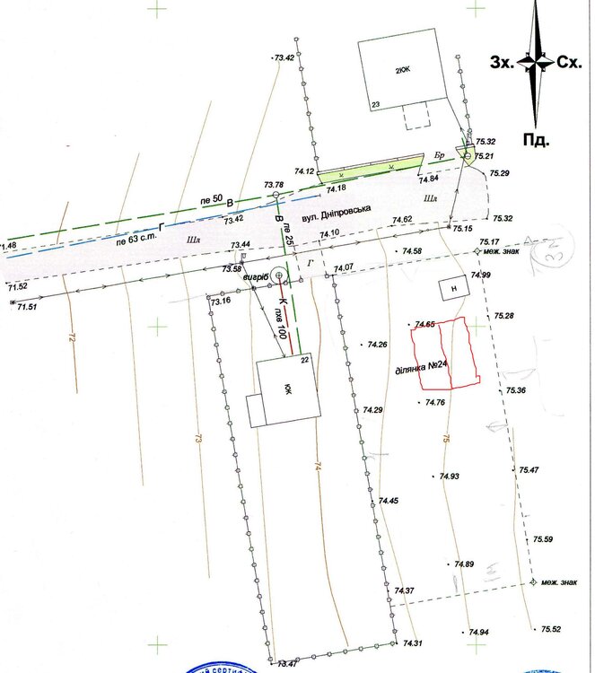
edifier26 Опубліковано: 19 квітня 2017 Поділитись Опубліковано: 19 квітня 2017 Немного покритикую вас. В первом своем сообщении вы указали, что год уже размышляете о строительстве дома. Неужели этого времени было недостаточно для того, чтобы прийти к какому нибудь твердому решению в планировке, материале и так далее? Буквально пару сообщений форумчан изменили ваше мнение относительно этажности. Это говорит о том, что вы больше привязываетесь к чужому мнению, чем к своему. В будущем, если будете нанимать строителей, вам будут навязывать решения, которые более проще и выгоднее исполнителям и вы как заказчик скорей всего так же будете соглашаться, полагаясь на мнение строителей. Мой совет: На этом форуме информации более чем достаточно. Изучите как строят форумчане, с какими проблемами сталкивались, какие решения помогали сэкономить и прочее. Четко определитесь с фундаментом, материалом стен, кровли и напишите ваши конкретные хотелки в этой теме. Иначе в этой теме увидите 100500 вариантов постройки дома, которые будут вас все время путать, тормозить стройку и сбавлять желание строиться. А где именно в Запорожье строитесь? Судя по названию улицы это Владимировское? Посилання на коментар Поділитися на інших сайтах More sharing options...
Рекомендовані повідомлення
Створіть акаунт або увійдіть у нього для коментування
Ви маєте бути користувачем, щоб залишити коментар
Створити акаунт
Зареєструйтеся для отримання акаунта. Це просто!
Зареєструвати акаунтУвійти
Вже зареєстровані? Увійдіть тут.
Увійти зараз