Juvchik Опубліковано: 25 квітня 2017 Поділитись Опубліковано: 25 квітня 2017 Привет всем ! Есть мысль подстраховаться для обеспечения комфортной температуры в доме в летний период. Идея такова: поставить кондиционер на 2 эт. на лестнице, в комнаты на в 2 эт. воздух будет идти через открытые двери, на 1 эт. по лестнице. Имеет ли идея жизнь или нет ? П.С. дом в разрезе с нета для примера размещения блоков Спасибо. Посилання на коментар Поділитися на інших сайтах More sharing options...
killakill Опубліковано: 25 квітня 2017 Поділитись Опубліковано: 25 квітня 2017 Привет всем ! Есть мысль подстраховаться для обеспечения комфортной температуры в доме в летний период. Идея такова: поставить кондиционер на 2 эт. на лестнице, в комнаты на в 2 эт. воздух будет идти через открытые двери, на 1 эт. по лестнице. Имеет ли идея жизнь или нет ? П.С. дом в разрезе с нета для примера размещения блоков Спасибо. Сильно комфортно не будет, но будет полегче. Там где будут стоять веутрянки будет холодно/тепло, в комнатах будет полегче. Для обеспечения в комнате 24, в помещении где установлен внутренний блок должно быть 20. Физику не обманешь к сожалению Посилання на коментар Поділитися на інших сайтах More sharing options...
Juvchik Опубліковано: 25 квітня 2017 Автор Поділитись Опубліковано: 25 квітня 2017 Сильно комфортно не будет, но будет полегче. Там где будут стоять веутрянки будет холодно/тепло, в комнатах будет полегче. Для обеспечения в комнате 24, в помещении где установлен внутренний блок должно быть 20. Физику не обманешь к сожалению Расстояние между блоками до 20 м. приемлемо ? Расположение внешнего блока возле земли возможно ? На какую мощность кондиционера смотреть ? (на дом будет выделено 10 кВт) Спасибо Посилання на коментар Поділитися на інших сайтах More sharing options...
killakill Опубліковано: 25 квітня 2017 Поділитись Опубліковано: 25 квітня 2017 (змінено) Расстояние между блоками до 20 м. приемлемо ? Расположение внешнего блока возле земли возможно ? На какую мощность кондиционера смотреть ? (на дом будет выделено 10 кВт) Спасибо Расстояние - для хороших кондиционеров это не является проблемой. Возле земли возможно на подставке. Мощность - смотря какая будет площадь обслуживания и какое тепловыделение в помещениях. 10квт - смотреть нужно инвертер в таком случаем у него расход энергии на порядок ниже чем у оноффа Змінено 25 квітня 2017 користувачем killakill 1 Посилання на коментар Поділитися на інших сайтах More sharing options...
dneprstab Опубліковано: 26 квітня 2017 Поділитись Опубліковано: 26 квітня 2017 10квт - смотреть нужно инвертер в таком случаем у него расход энергии на порядок ниже чем у оноффа В 10 раз что ли ? О каких порядках речь Посилання на коментар Поділитися на інших сайтах More sharing options...
Hotab Опубліковано: 26 квітня 2017 Поділитись Опубліковано: 26 квітня 2017 Я так понял по характеристикам, что инвертор на некоторых режимах может даже иногда и больше стартстопника кушать. (Я говорю об моделях одной мощности). Посилання на коментар Поділитися на інших сайтах More sharing options...
killakill Опубліковано: 26 квітня 2017 Поділитись Опубліковано: 26 квітня 2017 В 10 раз что ли ? О каких порядках речь Не в 10 раз, но меньше. А у человека лимит на дом 10 кви Посилання на коментар Поділитися на інших сайтах More sharing options...
Слободарий Опубліковано: 27 квітня 2017 Поділитись Опубліковано: 27 квітня 2017 Расстояние между блоками до 20 м. приемлемо ? Расположение внешнего блока возле земли возможно ? На какую мощность кондиционера смотреть ? (на дом будет выделено 10 кВт) Спасибо Недостаточно данных. Вы б хоть площадь для вангующих указали. А то вот кондиционерщики напряглись уже, а предложить что-то стесняются. ИМХО, таким компромиссным вариантом Вы вряд ли сеть перегрузите. А чем вызвана идея ставить наружный блок на землю? Длинная магистраль ухудшит работу кондиционера. А для такой компромиссной установки брать что-то крутое вряд ли есть смысл, если, конечно, нет планов дальнейшего апгрейда. Аппараты попроще не позволяют делать такую длинную магистраль. Насчет комфорта и "полегче" согласен с авторами. Посилання на коментар Поділитися на інших сайтах More sharing options...
Anton Oprya Опубліковано: 27 квітня 2017 Поділитись Опубліковано: 27 квітня 2017 на земле проще обслуживать, а еще вибрация в стены не передается, с некоторыми стенами подвесить тяжелый блок нетривиальная задача Посилання на коментар Поділитися на інших сайтах More sharing options...
oosimvol Опубліковано: 27 квітня 2017 Поділитись Опубліковано: 27 квітня 2017 У меня схожая планировка. Только без подвала. Сейчас один кондиционер 12000 стоит на первом этаже 60-80 кв.м.. На обогрев до -5 справляется. На охлаждение тоже, но расположен так, что поток воздуха для ребенка холодноват, поэтому ночью не включаем. Купил аналогичный для установки над лестничной клеткой для охлаждения второго этажа и частично первого. Еще не устанавливал. Вам бы тоже советовал разделить зоны установкой двух кондиционеров. Со второго этажа обогрев на первый работать не будет. Посилання на коментар Поділитися на інших сайтах More sharing options...
Anton Oprya Опубліковано: 27 квітня 2017 Поділитись Опубліковано: 27 квітня 2017 будет работать при особой вентиляции приточка вверху, вытяжка внизу и будет никуда не денецо Посилання на коментар Поділитися на інших сайтах More sharing options...
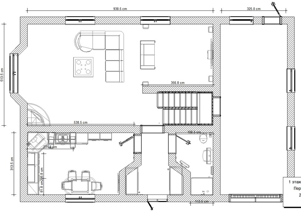
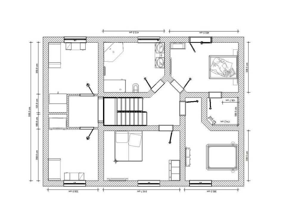
Juvchik Опубліковано: 28 квітня 2017 Автор Поділитись Опубліковано: 28 квітня 2017 Недостаточно данных. Вы б хоть площадь для вангующих указали. Комнаты которые важны: 1 эт. зал ~ 40 кв.м., 2 эт. 3 спальни ~ 12, 15 и 17 кв.м А чем вызвана идея ставить наружный блок на землю? Длинная магистраль ухудшит работу кондиционера. Не хотелось-бы портить фасад + обслуживание (как ребята уже выразились) полегче будет. Добавлено через 1 минуту У меня схожая планировка. Только без подвала. Сейчас один кондиционер 12000 стоит на первом этаже 60-80 кв.м.. На обогрев до -5 справляется. На охлаждение тоже, но расположен так, что поток воздуха для ребенка холодноват, поэтому ночью не включаем. Купил аналогичный для установки над лестничной клеткой для охлаждения второго этажа и частично первого. Еще не устанавливал. Вам бы тоже советовал разделить зоны установкой двух кондиционеров. Со второго этажа обогрев на первый работать не будет. Обогрев кондиционером не планируется. А какую модельку взяли на лестничную клетку ? Посилання на коментар Поділитися на інших сайтах More sharing options...
oosimvol Опубліковано: 28 квітня 2017 Поділитись Опубліковано: 28 квітня 2017 Обогрев кондиционером не планируется. А какую модельку взяли на лестничную клетку ? 12-ку. спальня на юге -12, кабинет запад -5, спальня на севере 20, спальня на востоке - 15. Посмотрим что из этого выйдет. Посилання на коментар Поділитися на інших сайтах More sharing options...
dneprstab Опубліковано: 28 квітня 2017 Поділитись Опубліковано: 28 квітня 2017 А то вот кондиционерщики напряглись уже, а предложить что-то стесняются. Вопрос из разряда - Какая машина ва м нравится ? Ответ -Красная Кондиционерщики полюбляют точное ТЗ , чтоб потом голова болела у заказчика а не исполнителя. После пары пируэтов в духе - но вы же говорили что оно будет вот так а оно не так , всегда по итогу рисую схему с вводными от руки и прошу подпись заказчика. Очень помогает в лечении склероза. Посилання на коментар Поділитися на інших сайтах More sharing options...
killakill Опубліковано: 28 квітня 2017 Поділитись Опубліковано: 28 квітня 2017 Вопрос из разряда - Какая машина ва м нравится ? Ответ -Красная Кондиционерщики полюбляют точное ТЗ , чтоб потом голова болела у заказчика а не исполнителя. После пары пируэтов в духе - но вы же говорили что оно будет вот так а оно не так , всегда по итогу рисую схему с вводными от руки и прошу подпись заказчика. Очень помогает в лечении склероза. Вот прям полностью согласен Посилання на коментар Поділитися на інших сайтах More sharing options...
Рекомендовані повідомлення
Створіть акаунт або увійдіть у нього для коментування
Ви маєте бути користувачем, щоб залишити коментар
Створити акаунт
Зареєструйтеся для отримання акаунта. Це просто!
Зареєструвати акаунтУвійти
Вже зареєстровані? Увійдіть тут.
Увійти зараз