bunak Опубліковано: 29 квітня 2017 Поділитись Опубліковано: 29 квітня 2017 Понравившуюся планировку дома разместили на участке. Соседи не построены. Специально гараж разместили с северной стороны дома с целью утепления комнат. Беспокоят вопросы: Правильно ли разместили дом и террасу по сторонам света. Достаточно ли 4 метра с боку дома до забора для удобства проживания. Например: для проезда техники, а также просматриваемость передней части участка (перед домом) если мы находимся на террасе или в саду за домом. Удобно ли 12-15 метров от ворот до дома, особых планов на эту территорию нет, т.к. зона отдыха планируется за домом, возле террасы. Выгребную яму планируем разместить поближе к дороге. Собираемся обратиться к архитектору для разработки проекта, какие еще нюансы необходимо продумать? Посилання на коментар Поділитися на інших сайтах More sharing options...
vadimv Опубліковано: 29 квітня 2017 Поділитись Опубліковано: 29 квітня 2017 Правильно ли разместили дом и террасу по сторонам света.Да. ИМХО Достаточно ли 4 метра с боку дома до забора для удобства проживания. Например: для проезда техники, а также просматриваемость передней части участка (перед домом) если мы находимся на террасе или в саду за домом.А как вы планируете просматривать переднюю часть, находясь в саду? Это у вас получится разве что из кухни, санузла и спальни. Удобно ли 12-15 метров от ворот до дома, особых планов на эту территорию нетУ наших родственников примерно такая же планировка участка. В передней части двое автоматических ворот и стоянка на 4 машины. какие еще нюансы необходимо продумать?Гараж у вас узковат. Стандартный жигулевский был шириной 3,30, а под современную машину лучше делать 3,50-4 м. 1 Посилання на коментар Поділитися на інших сайтах More sharing options...
bunak Опубліковано: 29 квітня 2017 Автор Поділитись Опубліковано: 29 квітня 2017 А как вы планируете просматривать переднюю часть, находясь в саду? Это у вас получится разве что из кухни, санузла и спальни. ну ковыряемся мы в огороде, в саду, тут собака залаяла, типо кто-то стучится, а может и зашел кто. Нужно выйти глянуть, подходить к области где видно передний дворик. Гараж у вас узковат. Стандартный жигулевский был шириной 3,30, а под современную машину лучше делать 4 м.Во как... Про гараж вообще не подумали. Это тупо с проекта размеры взял, удлинил правда чуток 1 Посилання на коментар Поділитися на інших сайтах More sharing options...
gid_8462 Опубліковано: 29 квітня 2017 Поділитись Опубліковано: 29 квітня 2017 Правильно ли разместили дом и террасу по сторонам света. Розміщено правильно. Дві спальні зорієнтовані на схід - так і рекомендують гігієністи. Тераса на схід і на південь - теж нормально, а головне, що вона виходить в сад, а не в бік вулиці. Достаточно ли 4 метра с боку дома до забора для удобства проживания. Например: для проезда техники, а также просматриваемость передней части участка (перед домом) если мы находимся на террасе или в саду за домом. Нормально, але менше не бажано. Удобно ли 12-15 метров от ворот до дома, особых планов на эту территорию нет, т.к. зона отдыха планируется за домом, возле террасы. Выгребную яму планируем разместить поближе к дороге. Зазвичай, ми рекомендуємо замовникам залишати перед будинком не більше шести метрів. Цього достатньо для влаштування палісадника при вході в будинок, а приватна зона ділянки буде більшою і зручнішою для зонування. Планування приведеного прототипу виконані фахово, їх потрібно буде тільки підкоригувати під ваші потреби та смак. 1 Посилання на коментар Поділитися на інших сайтах More sharing options...
bunak Опубліковано: 30 квітня 2017 Автор Поділитись Опубліковано: 30 квітня 2017 Начали читать книгу vadimv (у него в подписи Моя книга о том, как недорого построить качественный дом) спасибо ему большое за нее. В книге по его рекомендации зашли в тему www.forumhouse.ru/threads/273275/ - тоже супер для новичков, для "увеличения знаний" ;) И сходу возникли опять вопросы: - Газовая труба будет проходить по участку 15 метров! Не много ли? Затем вдоль всего дома, пусть даже и под крышей - УРОДСТВО!? - vadimv рекомендует кухню и гостиничную на юге, у нас вроде бы так и есть, но это же жарко будет, на кухню летом не зайти? - Прозевали лестницу на чердак. Теперь думаем куда лучше ее примостить. Хотим сделать ее красивой и удобной, чтобы она выводила в возможном будущем на мансардный этаж, а пока на чердак. Посилання на коментар Поділитися на інших сайтах More sharing options...
vadimv Опубліковано: 30 квітня 2017 Поділитись Опубліковано: 30 квітня 2017 кухню и гостиничную на юге, у нас вроде бы так и есть, но это же жарко будет, на кухню летом не зайти?1. Сделайте свес крыши таким образом, чтобы солнце летом не попадало в окна, чтобы окна были в тени. 2. Посадите с юга деревья. - Прозевали лестницу на чердак. Теперь думаем куда лучше ее примостить.ИМХО, в коридоре 1 Посилання на коментар Поділитися на інших сайтах More sharing options...
abelor Опубліковано: 30 квітня 2017 Поділитись Опубліковано: 30 квітня 2017 Я бы порекомендовала планировку отзеркалить, чтобы кухня и гостиная ориентировалась на север, а спальни и гараж на юг. Все же кухня на юг(а у Вас даже на юго-запад) да в нашем климате. Деревья не всегда листвой успевают покрыться, а солнце уже жарит. Да и газовой трубой в таком случае не придется "бинтовать" половину дома. ИМХО. Начали читать книгу vadimv (у него в подписи Моя книга о том, как недорого построить качественный дом) спасибо ему большое за нее. В книге по его рекомендации зашли в тему www.forumhouse.ru/threads/273275/ - тоже супер для новичков, для "увеличения знаний" ;) И сходу возникли опять вопросы: - Газовая труба будет проходить по участку 15 метров! Не много ли? Затем вдоль всего дома, пусть даже и под крышей - УРОДСТВО!? - vadimv рекомендует кухню и гостиничную на юге, у нас вроде бы так и есть, но это же жарко будет, на кухню летом не зайти? - Прозевали лестницу на чердак. Теперь думаем куда лучше ее примостить. Хотим сделать ее красивой и удобной, чтобы она выводила в возможном будущем на мансардный этаж, а пока на чердак. 1 Посилання на коментар Поділитися на інших сайтах More sharing options...
bunak Опубліковано: 1 травня 2017 Автор Поділитись Опубліковано: 1 травня 2017 Я бы порекомендовала планировку отзеркалить, чтобы кухня и гостиная ориентировалась на север, а спальни и гараж на юг. Все же кухня на юг(а у Вас даже на юго-запад) да в нашем климате. Деревья не всегда листвой успевают покрыться, а солнце уже жарит. Да и газовой трубой в таком случае не придется "бинтовать" половину дома. ИМХО. Не совсем хорошо. Кухня и гостиная стали темными, пришлось от соседа закрывать окна, а терасса уперлась в соседский забор. Гараж тоже не удобно - закрывает дворик и проход в 4 метра. Например поставили перед ними пару машин все таки парковку не избежать - Теперь обходить эти "жигули" придется. А если еще с сыном вытянули инструменты и давай свои "жигули" колупать, типо пыль проверять в моторе . А там и масло потекло и бензинчик разлился, писец стало тому проходу в 4 метра. Посилання на коментар Поділитися на інших сайтах More sharing options...
gid_8462 Опубліковано: 1 травня 2017 Поділитись Опубліковано: 1 травня 2017 (змінено) Після розширення гаража 4-х метрів проходу-проїзду вже не залишається. Крім того, ще не розміщені сходи на горище (мансарду). Вже на цьому етапі обговорення можна зробити висновок, що вибране планування за пропорціями не підходить для даної ділянки - витягнута структура впоперек вузької сторони ділянки. Тут доцільнішою буде компоновка плану, що наближається до квадрату. Змінено 1 травня 2017 користувачем gid_8462 Уточнення формулювання 1 Посилання на коментар Поділитися на інших сайтах More sharing options...
abelor Опубліковано: 1 травня 2017 Поділитись Опубліковано: 1 травня 2017 А это принципиально, что внизу разрыв 4м, а вверху 1м? На соседних участках есть застройка? А если вверху сделать не 1м, а 2-3м? Так же и внизу. Еще гараж можно разместить со смещением в сторону улицы. Вообще, надежнее и грамотнее, если всем этим занимается практикующий архитектор, имея на руках ВСЕ исходные данные. ИМХО. Не совсем хорошо. Кухня и гостиная стали темными, пришлось от соседа закрывать окна, а терасса уперлась в соседский забор. Гараж тоже не удобно - закрывает дворик и проход в 4 метра. Например поставили перед ними пару машин все таки парковку не избежать - Теперь обходить эти "жигули" придется. А если еще с сыном вытянули инструменты и давай свои "жигули" колупать, типо пыль проверять в моторе . А там и масло потекло и бензинчик разлился, писец стало тому проходу в 4 метра. Посилання на коментар Поділитися на інших сайтах More sharing options...
vadimv Опубліковано: 1 травня 2017 Поділитись Опубліковано: 1 травня 2017 Я сейчас крамольную вещь скажу, вразрез с изначальными пожеланиями ТС: лично я бы на вашем месте гереж не строил. Сделал бы навес с северной стороны от крыши до забора - шириной 4 м - да и все. А для защиты окон кухни от солнца с западной стороны (с юга их будет защищать свес крыши) поставил бы ролеты или жалюзи. Если тени от деревьев будет не хватать. У меня западную сторону видно на аватарке - солнце вечером не беспокоит, деревья закрывают. 2 Посилання на коментар Поділитися на інших сайтах More sharing options...
bunak Опубліковано: 1 травня 2017 Автор Поділитись Опубліковано: 1 травня 2017 (змінено) Після розширення гаража 4-х метрів проходу-проїзду вже не залишається. .... Тут доцільнішою буде компоновка плану, що наближається до квадрату.Це зрозуміло. Буділю можно трошки стиснути, розміри кімнат ще не розраховували, поки що хочемо визначити найкраще розміщення кімнат в будівлі. А это принципиально, что внизу разрыв 4м, а вверху 1м? На соседних участках есть застройка? А если вверху сделать не 1м, а 2-3м? Так же и внизу.Соседи еще не застроены. Все равно будет минус если зеркально делать, Терраса попадает на север, а кроме того там еще не ясно какая тень будет от соседа. Еще гараж можно разместить со смещением в сторону улицы. Изначально гаражом планировали "пригреть" северные части дома. Вообще, надежнее и грамотнее, если всем этим занимается практикующий архитектор, имея на руках ВСЕ исходные данные. ИМХО. Так вот же и хотим обратится к архитектору. Но только чтобы в пустую архитектору голову не морочить, хотим сами понять глубокую сущность - "А что же мы хотим":oops:. Мы не правильно делаем? Я сейчас крамольную вещь скажу, вразрез с изначальными пожеланиями ТС: лично я бы на вашем месте гереж не строил. Сделал бы навес с северной стороны от крыши до забора - шириной 4 м - да и все. Спасибо. Мы не принципиально к гаражу относились, просто хотели утеплить гаражом северную часть дома. А для защиты окон кухни от солнца с западной стороны (с юга их будет защищать свес крыши) поставил бы ролеты или жалюзи. Если тени от деревьев будет не хватать. У меня западную сторону видно на аватарке - солнце вечером не беспокоит, деревья закрывают. Попадание солнца в окно - мы не считаем проблемой, больше беспокоит что будет нагреваться сама стенка и к этому нагреву периодически будет добавляться тепло от кухни - ДУХОВКА и возможно плита. ----------------------- Очень беспокоит спальня на северо-западе (6). Вот мы уже ее и гаражом прикрыли, а все равно есть боязнь - что она будет самой холодной. Змінено 1 травня 2017 користувачем bunak уточнение комнаты Посилання на коментар Поділитися на інших сайтах More sharing options...
vadimv Опубліковано: 1 травня 2017 Поділитись Опубліковано: 1 травня 2017 беспокоит что будет нагреваться сама стенка и к этому нагреву периодически будет добавляться тепло от кухни - ДУХОВКА и возможно плита. ----------------------- Очень беспокоит спальня на северо-западе (6). Вот мы уже ее и гаражом прикрыли, а все равно есть боязнь - что она будет самой холодной.Если дом утеплен (у меня, например, 13 см пенопласта снаружи) - попадание солнца на стену и открытая северная стена не играют практически никакой роли. Играет роль попадание солнечного света и холодного ветра в окна. Это по опыту проживания в доме. Т.е. я бы обязательно защитил окна южной стороны от солнца, а на северной стороне окон не делал бы вообще. 3 Посилання на коментар Поділитися на інших сайтах More sharing options...
gid_8462 Опубліковано: 1 травня 2017 Поділитись Опубліковано: 1 травня 2017 Так вот же и хотим обратится к архитектору. Но только чтобы в пустую архитектору голову не морочить, хотим сами понять глубокую сущность - "А что же мы хотим". Мы не правильно делаем? Ви робите правильно, "обкатуючи" свою ідею публічно. Краще на березі змоделювати деякі можливі проблеми . Бажання утеплити північну сторону будинку саме гаражем не повинно заважати зробити раціональні та зручні планування будинку та двору. Є багато сучасних способів утеплення. Мансарду потрібно проектувати зразу, навіть якщо вона не входить в пусковий комплекс: сходи, мансардні вікна. утеплення покрівлі... Не будете ж тратитись двічі: на утеплення перекриття (на першому етапі), а потім на утеплення вже покрівлі мансарди? 2 Посилання на коментар Поділитися на інших сайтах More sharing options...
bunak Опубліковано: 3 травня 2017 Автор Поділитись Опубліковано: 3 травня 2017 Ви робите правильно, "обкатуючи" свою ідею публічно. Краще на березі змоделювати деякі можливі проблеми . Бажання утеплити північну сторону будинку саме гаражем не повинно заважати зробити раціональні та зручні планування будинку та двору. Є багато сучасних способів утеплення.Все!!!! - у нас паника 1. терасса у нас на востоке - для посидеть ТОЛЬКО УТРОМ с кофе . Вечером там будет сплошная тень - некомфортно. 2. делать приватную игровую зону - беседка/шашлыки/бадминтон/друзья/дети/пиво - за домом не практично - там будет тень с обеда, а такие посиделки предполагаются как правило не с утра. Надо перед домом, на западе. надо ли дом утопить еще глубже? или достаточно 12 метров? а как тогда с канализацией? не далеко ли? ПО ГАРАЖУ вот такая идея: Можно сделать навес + хозпристройка примыкающий к дому за навесом. Экономим метр и имеем хозпристройка. Посилання на коментар Поділитися на інших сайтах More sharing options...
vadimv Опубліковано: 3 травня 2017 Поділитись Опубліковано: 3 травня 2017 Все!!!! - у нас паника 1. терасса у нас на востоке - для посидеть ТОЛЬКО УТРОМ с кофе . Вечером там будет сплошная тень - некомфортно.Не паникуйте Сидеть на улице вы будете в основном в теплое время года (в холодное меня лично на улицу не выгонишь). А если вы будете сидеть в теплое время года вечером на солнце, то вам скорее всего будет жарко. Летом солнце жарит с западной стороны с 12.00 и практически до 19.00-20.00. Поэтому лучше террасу с восточной стороны. Но если вам так уж хочется на западной - делайте. Просто потом будете ее затенять шторами, лианами или еще чем-то. 2. делать приватную игровую зону - беседка/шашлыки/бадминтон/друзья/дети/пиво - за домом не практично - там будет тень с обеда, а такие посиделки предполагаются как правило не с утра.См. предыдущий пункт. У наших родственников два дома - в городе у них зона посиделок в тени забора и навеса - там еще более-менее комфортно летом, в загородном доме терраса с южной стороны дома - там летом не высидишь на жаре. Но если хочется - делайте на запад. ЗЫ: у нас беседка открыта с восточной и западной стороны, если с восточной стороны утреннее солнце желанное утром после холодной ночи, то с западной оно жарит так, что я все пытаюсь насажать побольше деревьев, чтобы его закрыть. 1 Посилання на коментар Поділитися на інших сайтах More sharing options...
gid_8462 Опубліковано: 3 травня 2017 Поділитись Опубліковано: 3 травня 2017 Якщо розмістити терасу вздовж південної сторони будинку, то снідати і вечеряти ви будете з боковим сонячним промінням, а в обідню пору на терасі буде приємний затінок, який захистить від перегріву і вікна кухн-їдальні та вітальні. Приватна ігрова зона буде продовженням тераси в східному напрямку, при розміщенні з західної сторони вона вже буде не дуже приватна. Приблокувавши гаражний навіс та господарче приміщення з заходу можна отримати затишний куточок при вході в будинок. 1 Посилання на коментар Поділитися на інших сайтах More sharing options...
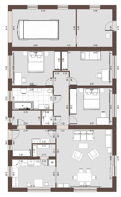
bunak Опубліковано: 12 травня 2017 Автор Поділитись Опубліковано: 12 травня 2017 После дооолгих раздумий пришли к такому результату Гараж таки решили оставить, расширили его до 4 метров, за счет комнат. Террасу оставили на востоке, а кухню на юге. Дом выровняли прямоугольником, так вроде проще и думаем что бует дешевле крыша. Расставили мебель, много чего из мебели уже есть (менять не хотим) и постарались влепить стены и окна/двери так, чтобы влезло по размерам, сделали 3D и визуализацию (примитивно, своими силами), погуляли по дому, вроде все удобно и красиво, но это изнутри, а как дом будет смотреться внешне, беспокоит что окна все разные и не очень симметричны. Укажите пожалуйста на ошибки. Дальше стоит вопрос бюджета. Как и у всех он ооочень скромный, поэтому будем экономить где можно, в разумных пределах. Подскажите, еще на этапе проектирования, что в нашей планировке будет существенно влиять на бюджет? Что можно считать излишеством, а про что забыли? Дом планируется одноэтажный, максимально утепленный, для постоянного проживания семьи из 4 человек, с возможным пополнением. Есть ли смысл еще в этом году затевать стройку? В идеале, до зимы хотим полностью завершенную коробку с крышей, с дверями и окнами (и комуникациями, если бюджет позволит). Остальное со следующей весны. Не поздно ли начать в июне? Успеем до осени? Если будет сильно жарко можно ли заливать фундамент? Дальше... из чего и как строить... пока понимаем так: фундамент ленточный, в землю 1,2м + 0,5м над землей стены газоблок или керамблок перекрытие - ??? крыша - тоже ??? , дом прямоугольный, гостинная большая, какие варианты? 4х скатная, а над гаражем отдельная? отопление - электро+ТТкотел (пока не знаем какое будет основным), возможно в будущем будет газ, тоже надо бы предусмотреть утепление - минвата, ну или пенопласт, но он вроде не дышит, не хотелось бы. Посилання на коментар Поділитися на інших сайтах More sharing options...
bunak Опубліковано: 14 травня 2017 Автор Поділитись Опубліковано: 14 травня 2017 Начали проектирование Тендер https://www.rabotniki.ua/ua/tender/proekt-nashego-budushchego-doma-35851.html и коммерческое предложение www.stroimdom.com.ua/forum/showthread.php?t=212711 Посилання на коментар Поділитися на інших сайтах More sharing options...
apxitektop.s Опубліковано: 16 травня 2017 Поділитись Опубліковано: 16 травня 2017 Начали проектирование отписался в личку на это предложение. Я не нашел информации у вас на каком расстоянии от вашего участка - соседские постройки, ведь именно этот нюанс и корректирует все остальные )), как и ваше размещение по "сторонам света", так и прочее. Также у вас вопрос как сэкономить )), это скажем на удачу, как и выбрать "правильную жену", только жизнь покажет, не факт, что именно тот специалист, которого вы нашли и который идеально вам подходит, а я говорю о проектной части пока )) и будет делать вам проект дома, а не какой то - студент фрилансер, чтобы проектировщик заработал больше. Поэтому думаю вам понадобится для экономии - Удача )) 1 Посилання на коментар Поділитися на інших сайтах More sharing options...
ПГС-Проект Опубліковано: 16 травня 2017 Поділитись Опубліковано: 16 травня 2017 Добрый день. Отправил предложение в личку. 1 Посилання на коментар Поділитися на інших сайтах More sharing options...
bunak Опубліковано: 16 травня 2017 Автор Поділитись Опубліковано: 16 травня 2017 отписался в личку на это предложение.Спасибо Я не нашел информации у вас на каком расстоянии от вашего участка - соседские постройки, ведь именно этот нюанс и корректирует все остальные )), как и ваше размещение по "сторонам света", так и прочее.Все было в самом первом посте. Также у вас вопрос как сэкономить )), это скажем на удачу, как и выбрать "правильную жену", только жизнь покажет, не факт, что именно тот специалист, которого вы нашли и который идеально вам подходит, а я говорю о проектной части пока )) и будет делать вам проект дома, а не какой то - студент фрилансер, чтобы проектировщик заработал больше. Поэтому думаю вам понадобится для экономии - Удача ))Что такое студент фрилансер - мне знакомо, поверьте. А еще мне знакомо когда на специализированном форуме есть горе от ума статисты. Они пишут, абы написать не вникая в суть вопроса. Очень много таких особенно среди студентов айтишников . Вопрос: зачем отвечать что-либо если не читали ни первый ни последний посты А вопрос экономии, очень и очень существенный, "не просто так". Экономия от удачи не зависит. Вам минус короче. Посилання на коментар Поділитися на інших сайтах More sharing options...
Татьяна5 Опубліковано: 16 травня 2017 Поділитись Опубліковано: 16 травня 2017 Есть ли смысл еще в этом году затевать стройку? В идеале, до зимы хотим полностью завершенную коробку с крышей, с дверями и окнами если тыс 40-50 есть на вышеописанный этап - стартуйте это почти мой реализованный проект "Черепашка" 1 Посилання на коментар Поділитися на інших сайтах More sharing options...
bunak Опубліковано: 16 травня 2017 Автор Поділитись Опубліковано: 16 травня 2017 если тыс 40-50 есть на вышеописанный этап - стартуйте это почти мой реализованный проект "Черепашка" Татьяна, спасибо. Мы много читали про Ваши работы и успехи Посилання на коментар Поділитися на інших сайтах More sharing options...
apxitektop.s Опубліковано: 16 травня 2017 Поділитись Опубліковано: 16 травня 2017 (змінено) Вопрос: зачем отвечать что-либо если не читали ни первый ни последний посты А вопрос экономии, очень и очень существенный, "не просто так". Экономия от удачи не зависит. Вам минус короче. Буняк, я обратил внимание на вашу тему, так как в глаз попала грамматическая ошибка в названии темы и тяжело было пройти мимо, хотел посмотреть на грамотея, ну и конечно же, чтобы предложить вам, свои услуги)) , как раз и зависит от удачи тут все, с другой стороны вы ведь не строитель, или сын Януковича, каким образом будете определять уровень "спеца", они к вам толпой будут ползти с просьбой принять их услуги?) Да, я не увидел, что у вас в первом посту - написано, что, мол соседей пока-нет, но с другой стороны, ведь это совсем не значит, что ваши соседи, о которых вы возможно не в курсе, не заказали проект и не утвердили его первыми. Как совет, не стоит резко негативно плеваться минусами )) и зреть в ком то - негатив, при этом будучи самому ) - носителем этих самых минусов в огромном количестве. А еще мне знакомо когда на специализированном форуме есть горе от ума статисты. Они пишут, абы написать не вникая в суть вопроса. Очень много таких особенно среди студентов айтишников Буняк, я на форуме с 2009 года, и за 8 лет написал 713 сообщений, то есть я статист ?) Змінено 16 травня 2017 користувачем apxitektop.s Посилання на коментар Поділитися на інших сайтах More sharing options...
Рекомендовані повідомлення
Створіть акаунт або увійдіть у нього для коментування
Ви маєте бути користувачем, щоб залишити коментар
Створити акаунт
Зареєструйтеся для отримання акаунта. Це просто!
Зареєструвати акаунтУвійти
Вже зареєстровані? Увійдіть тут.
Увійти зараз