shmeleff Опубліковано: 3 травня 2017 Поділитись Опубліковано: 3 травня 2017 Помогите разделить полезное пространство в новострое, стены есть только на кухне и ванная/туалет, дальше полет фантазии. Семья, двое детей мальчики. Посилання на коментар Поділитися на інших сайтах More sharing options...
doberR Опубліковано: 3 травня 2017 Поділитись Опубліковано: 3 травня 2017 Второй вариант! родителям спальня - спать, а детям нужно пространство для жизни. Вся совместная с детьми жизнь - на кухне (д.б. посадочные места, tv(ну, или то, что взамен ящика). Посилання на коментар Поділитися на інших сайтах More sharing options...
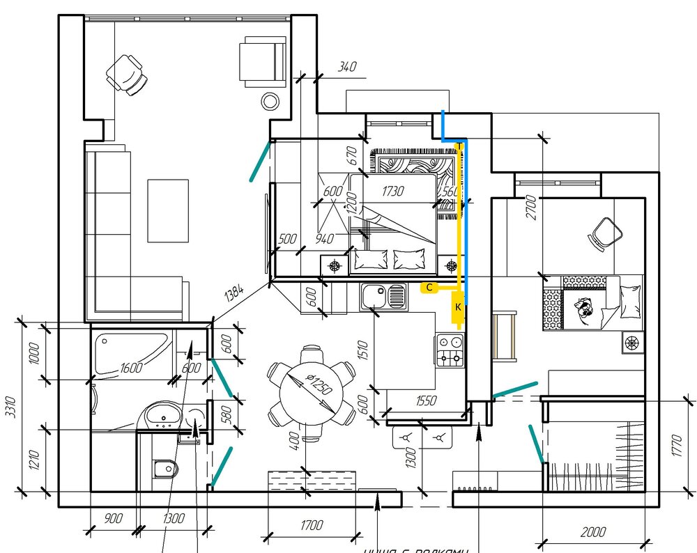
Музей Опубліковано: 3 травня 2017 Поділитись Опубліковано: 3 травня 2017 Все понравившиеся планировки складываю в ящичек. Вот, похожая на две спальные комнаты. Если очень точно измерять и точно возводить перегородки, то получится. Посилання на коментар Поділитися на інших сайтах More sharing options...
doberR Опубліковано: 3 травня 2017 Поділитись Опубліковано: 3 травня 2017 Да! добавить только узкий экран (перегородку) для отделения входа в туалет от кухни Посилання на коментар Поділитися на інших сайтах More sharing options...
max_13 Опубліковано: 4 травня 2017 Поділитись Опубліковано: 4 травня 2017 У вас предстоит ремонт, это 30-40 тыс уе минимум, нет 1 тыс нанять профи и упростить себе жизнь в разы? Больше на бензин уйдет по магазинам ездить выбирать плитку-обои-сан технику и прочее... В соседних ветках где консультируются у дизайнеров, люди начали думать что они дизайнеры и консультировать друг друга. Так сейчас и планировок вам насоветуют ) 1 Посилання на коментар Поділитися на інших сайтах More sharing options...
AndyAntonov Опубліковано: 4 травня 2017 Поділитись Опубліковано: 4 травня 2017 Чёй-та мне стрёмно от таких советов. Профессионала от дезигна от бездари с дипломом и понтами от дезигна на первый взгляд отличить будет невозможно. А сваять планировку, в которой невозможно жить, и взять за это деньги как за нормальную работу, у бездари рука не дрогнет и не отсохнет. ЗЫ Ваятелей планировок в новостроях обычно надо медленно убивать. 2 Посилання на коментар Поділитися на інших сайтах More sharing options...
max_13 Опубліковано: 4 травня 2017 Поділитись Опубліковано: 4 травня 2017 с таким подходом и машину надо чинить самому, и мебель делать, да и одежду пошить, что уж там ) Посилання на коментар Поділитися на інших сайтах More sharing options...
AndyAntonov Опубліковано: 4 травня 2017 Поділитись Опубліковано: 4 травня 2017 Дык, в какой стране живём… Посилання на коментар Поділитися на інших сайтах More sharing options...
Музей Опубліковано: 4 травня 2017 Поділитись Опубліковано: 4 травня 2017 У вас предстоит ремонт, это 30-40 тыс уе минимум, Зачем вводить в заблуждение? Или это не строительный форум, чтобы никто не знал сколько на самом деле будет стоить ремонт такого помещения? Устройство перегородок, штукатурки, побелки, сантехника, электроразводка, чистовая отделка не потянут на 40 тыс. у.е.. Мебель и декор тоже можно сделать очень экономно, а можно и на сотню "погулять". Зависит от пожеланий заказчика. 3 Посилання на коментар Поділитися на інших сайтах More sharing options...
max_13 Опубліковано: 4 травня 2017 Поділитись Опубліковано: 4 травня 2017 Зачем вводить в заблуждение? Или это не строительный форум, чтобы никто не знал сколько на самом деле будет стоить ремонт такого помещения? Устройство перегородок, штукатурки, побелки, сантехника, электроразводка, чистовая отделка не потянут на 40 тыс. у.е.. Мебель и декор тоже можно сделать очень экономно, а можно и на сотню "погулять". Зависит от пожеланий заказчика. при чем тут флаг? однокомнатная минимум 25уе. накинул на 77м2 еще сверху. конечно можно и за 10 но это не ремонт а Г. Знаю это так как построили дом 300м2, сделали ремонт 2х квартир. моя цифра с мебелью Посилання на коментар Поділитися на інших сайтах More sharing options...
AndyAntonov Опубліковано: 4 травня 2017 Поділитись Опубліковано: 4 травня 2017 Похоже, у нас и у Вас разные представления о «минимальном ремонте». Тем более, что квартира не дом, коммуникации кроме электрики и слаботочки уже проведены и вошли в цену самой квартиры. Посилання на коментар Поділитися на інших сайтах More sharing options...
Музей Опубліковано: 4 травня 2017 Поділитись Опубліковано: 4 травня 2017 при чем тут флаг? Вы нервный? Обратитесь к докотору. Посилання на коментар Поділитися на інших сайтах More sharing options...
max_13 Опубліковано: 4 травня 2017 Поділитись Опубліковано: 4 травня 2017 да вроде бы очень спокойно спросил зачем флаг пририсовали к своему посту? типа святая печать экспертного мнения? раз вы эксперт скажите сколько будет стоить ремонт двухкомнатной квартиры 70м2 квартиры под ключ (с мебелью, шторами , кухней) моя цифра 30-40 вышла из опыта и опыта например этой пары архитекторов (не олигархов или воров чиновников, те деньги доставались за труд и тратились с умом) ремонт квартиры 44м -35000уе his.ua/article/sdelali-vse-chto-zahoteli-2017-04-04 вы так меня прям высмеяли еще и к врачу отправили приведите пожалуйста свой пример ремонта и его стоимости, а потом поговорим кому к врачу нужно идти Добавлено через 5 минут если для Вас это ремонт , который даже можно назвать "дизайнерский" как назвали хозяева квартиры www.olx.ua/obyavlenie/1k-kvartira-s-dizaynerskim-remontom-zhk-sofiya-IDqSsy6.html#9529dbab67 то мы о разных ремонтах говорим , и не нужно сразу высмеивать или говорит что кто-то кого-то вводит в заблуждение 4 Посилання на коментар Поділитися на інших сайтах More sharing options...
shmeleff Опубліковано: 5 травня 2017 Автор Поділитись Опубліковано: 5 травня 2017 Кому щи жидковаты, а кому бриллианты мелковаты. Посилання на коментар Поділитися на інших сайтах More sharing options...
dreamhouse Опубліковано: 8 травня 2017 Поділитись Опубліковано: 8 травня 2017 главное кухню сделайте просторную, там все собираются Посилання на коментар Поділитися на інших сайтах More sharing options...
Romb Опубліковано: 17 травня 2017 Поділитись Опубліковано: 17 травня 2017 Не хочу расстраивать ТС, но это типовая ( с увеличеноой площадью) двушка.Просто нужно решить где будет детская. И ничего более разумного здесь не вымутишь. Естественно за деньги вам нарисуют пяток вариантов. Перенесут куда то кухню, на балконе сделают спальное место и т. д. При этом не будет где развернуться двоим при входе и поставить велики. Два. Как по мне, то минимизировать кухонную мебель и там же организовывать "гостинную" Имхо. Посилання на коментар Поділитися на інших сайтах More sharing options...
Рекомендовані повідомлення
Створіть акаунт або увійдіть у нього для коментування
Ви маєте бути користувачем, щоб залишити коментар
Створити акаунт
Зареєструйтеся для отримання акаунта. Це просто!
Зареєструвати акаунтУвійти
Вже зареєстровані? Увійдіть тут.
Увійти зараз