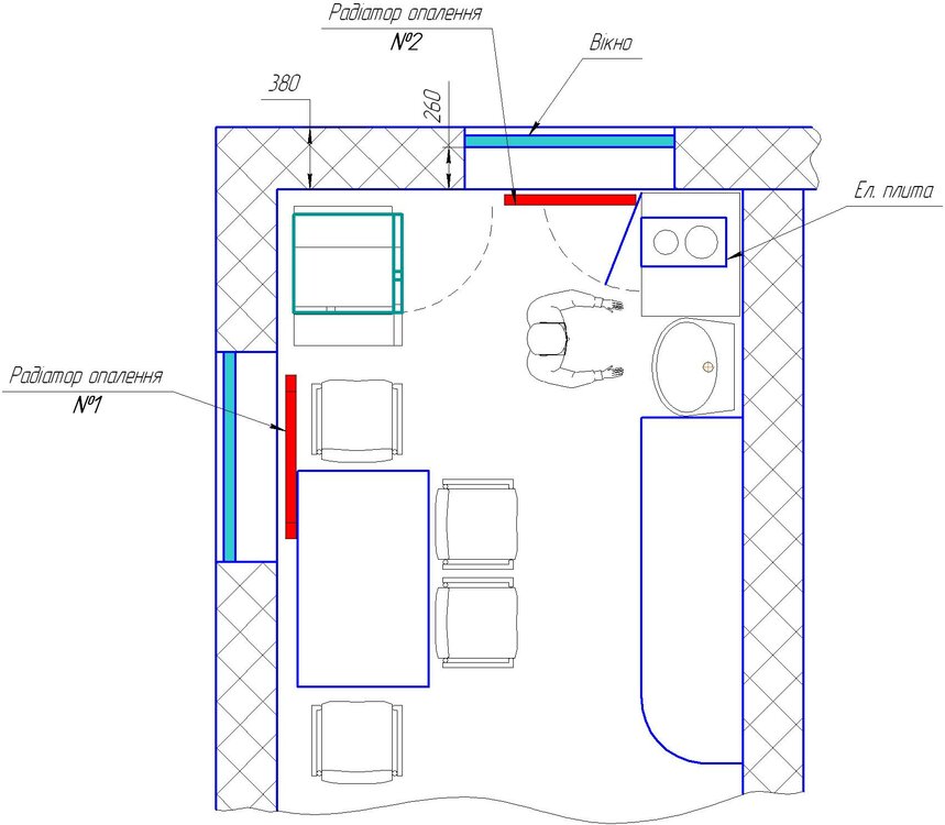
Pr_Woland Опубліковано: 11 травня 2017 Поділитись Опубліковано: 11 травня 2017 Доброго дня шановні форумчани ! Під час монтажу системи опалення з'явилася проблема з установкою одного з радіаторів на кухні (радіатор №2 - див. рисунок). Він стоїть в робочій зоні біля плити, а також заваджає відкриванню дверцят шкафчика. Оскільки планується установка теплої підлоги, то по суті даний радіатор повинен був лише відсікати холодне повітря від вікна і його можна видалити із системи без шкоди для температурного режиму. От тільки потрібно якось виришіти проблему із холодним повітрям від вікна. Можливо існують якісь варіати теплого підвіконня або інші технічні рішення. Можливо я пропустив подібну тему на форумі, тоді прошу дати посилання. Буду вдячний за будь-яку інформацію. Посилання на коментар Поділитися на інших сайтах More sharing options...
Victor_VDR Опубліковано: 11 травня 2017 Поділитись Опубліковано: 11 травня 2017 Якщо підвіконня не дерев'яне, то електричний нагрівальний кабель вирішить проблему відсікання холодного повітря від вікна 1 Посилання на коментар Поділитися на інших сайтах More sharing options...
hotkabel Опубліковано: 11 травня 2017 Поділитись Опубліковано: 11 травня 2017 з'явилася проблема Якщо підвіконня не дерев'яне, і якщо не пластикове... Взагалі то, підходить підвіконня тільки з камню (натурального або штучного) або замостити керамічною плиткою. З камню - не зовсім дешевий варіант. Та головне те, що тепле підвіконня не замінює радіатор. 1 Посилання на коментар Поділитися на інших сайтах More sharing options...
Pr_Woland Опубліковано: 11 травня 2017 Автор Поділитись Опубліковано: 11 травня 2017 Підвіконня я ще не замовляв. Можливо існує вже готове технічне рішення (якийсь горизонтальний конвектор замаскований під підвіконня тощо). Я ще розглядав варіант зробити щось накшталт плоского змієвика з мідної трубки під кам'яним підвіконням, але не знаю чи воно буде достатньо прогріватися Посилання на коментар Поділитися на інших сайтах More sharing options...
Interso Опубліковано: 11 травня 2017 Поділитись Опубліковано: 11 травня 2017 Доброго дня шановні форумчани ! Під час монтажу системи опалення з'явилася проблема з установкою одного з радіаторів на кухні (радіатор №2 - див. рисунок). Він стоїть в робочій зоні біля плити, а також заваджає відкриванню дверцят шкафчика. Оскільки планується установка теплої підлоги, то по суті даний радіатор повинен був лише відсікати холодне повітря від вікна і його можна видалити із системи без шкоди для температурного режиму. От тільки потрібно якось виришіти проблему із холодним повітрям від вікна. Можливо існують якісь варіати теплого підвіконня або інші технічні рішення. Можливо я пропустив подібну тему на форумі, тоді прошу дати посилання. Буду вдячний за будь-яку інформацію. Как вариант установить вместо радиатора плинтусный конвектор,из тех что знаю самый минимальный размер 65мм глубина,215мм высота и 1000мм длинна. Либо установить его под подоконником,также возможно и утопить его в стену. Ещё вариант,сделать нишу под окном и установить там этот радиатор,таким макаром он не будет мешать открытию дверцы. 1 Посилання на коментар Поділитися на інших сайтах More sharing options...
Olenevod Опубліковано: 12 травня 2017 Поділитись Опубліковано: 12 травня 2017 Самый простой вариант - выкинуть нафиг все радиаторы. Два года живу только с теплым полом - никакого холодного воздуха от окон и от стеклянных дверей 2*2.5 метра не наблюдал. 2 Посилання на коментар Поділитися на інших сайтах More sharing options...
B.S.V. Опубліковано: 12 травня 2017 Поділитись Опубліковано: 12 травня 2017 Можливо я пропустив подібну тему на форумі, тоді прошу дати посилання. Буду вдячний за будь-яку інформацію. Один из вариантов: пост 3258 1 Посилання на коментар Поділитися на інших сайтах More sharing options...
Рекомендовані повідомлення
Створіть акаунт або увійдіть у нього для коментування
Ви маєте бути користувачем, щоб залишити коментар
Створити акаунт
Зареєструйтеся для отримання акаунта. Це просто!
Зареєструвати акаунтУвійти
Вже зареєстровані? Увійдіть тут.
Увійти зараз