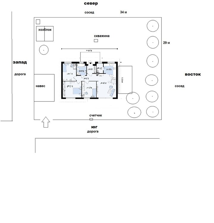
ksenik Опубліковано: 17 травня 2017 Поділитись Опубліковано: 17 травня 2017 Прошу совета, т.к. запуталась окончательно - что в приоритете, расположение входа или ориентация по сторонам света? Выбрали проект z7 z500.com.ua/projekt/z7.html Участок угловой, 34*29 м, на даный момент фасад и заезд с юга ( можно поменять и сделать с запада, но надо ли?). Соседи построены, с севера будут строиться. На участке уже есть свет, скважина, бытовка, которая будет садовым домиком с навесом, посажены деревья. Еще планируется навес для машины ( возможно для двух в будущем), как минимум парковка для двух машин. Терраса однозначно с восточной стороны. Теперь три варианта расположения дома с преимуществами и недостатками: 1. Вход с севера - пока лидирует. Плюсы - кухня на север, гостиная на юг, две комнаты на юг ( летом затеним, зимой тепло), скважина близко к санузлам и кухне, дом защищает участок (внутренний дворик), южный скат, на который (когда-то в будущем может быть поставим солнечные коллекторы) Минусы - вход в дом с тыла, надо обходить дом или сделать калитку на западе ( между хозблоком и навесом, там же и септик выкопать), кухня не на вход, а спальни наоборот на улицу 2. Вход с запада Плюсы - гостиная южная, спальни восточные, кухня смотрит на въезд Минусы - не нравится мужу))), западная кухня (на даче так - жарко и солнце бьет в глаза, меня раздражает), водопровод дальше тянуть, нет южного ската, на который у мужа и отца большие планы)) 3. Вход с юга Плюсы - удобный вход Остальное минусы - по энергоэффективности, кухня южная, гостиная и спальни северные, санузел и котельная южные и далеко от скважины. Прочитав, что я написала, я поняла что уже ответила на вопрос, исходя из количества плюсов и минусов)) , вход с севера наверно оптимально, хоть и выглядит немного странно Но все же хотелось бы спросить, насколько удобно если вход в дом с тыльной стороны? Может есть еще нюансы, которых я не заметила? Какое расстояние следует оставить со стороны южного и западного забора? Следует ли в северной спальне убрать окно на север и сделать вместо него западное? Посилання на коментар Поділитися на інших сайтах More sharing options...
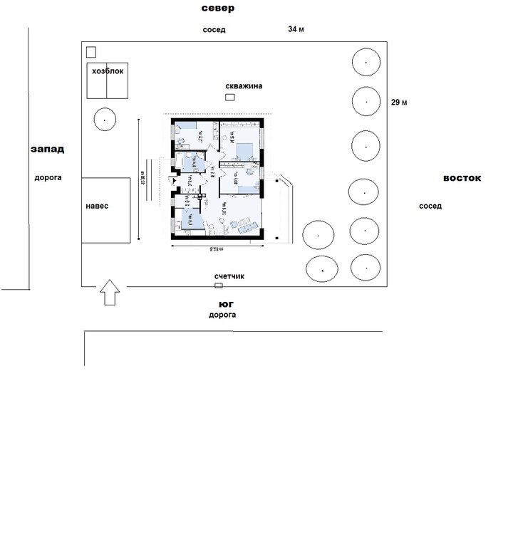
vadimv Опубліковано: 17 травня 2017 Поділитись Опубліковано: 17 травня 2017 2. Вход с запада Плюсы - гостиная южная, спальни восточные, кухня смотрит на въезд Минусы - не нравится мужу))), западная кухня (на даче так - жарко и солнце бьет в глаза, меня раздражает), водопровод дальше тянуть, нет южного ската, на который у мужа и отца большие планы))Лично я бы делал этот вариант. И еще бы добавил одно окно в гостиной на юг. Окно кухни с запада можно закрыть от солнца, сделав высокий навес или закрыв его деревьями. Южный скат будет, если сделать четырехскатную крышу. 1 Посилання на коментар Поділитися на інших сайтах More sharing options...
Сергей Олегович Опубліковано: 17 травня 2017 Поділитись Опубліковано: 17 травня 2017 Но все же хотелось бы спросить, насколько удобно если вход в дом с тыльной стороны? В повседневной жизни вход с тыльной стороны удобнее. Путь от входа в дом к калитке Вы будете проходить 2-4 раза в день (на работу, в магазин...), а в сад(огород), беседку, хозблок намного чаще. 4 Посилання на коментар Поділитися на інших сайтах More sharing options...
abelor Опубліковано: 21 травня 2017 Поділитись Опубліковано: 21 травня 2017 Остальные "плюсы" в этом варианте легко "подтягиваются". Зеркалите кухню и гостиную, зеркалите котельную и кухню(котельная примыкает к наружной стене) и делаете необходимые оконные проемы для спален(на запад). Санузел остается на юг, но это и хорошо. Коммуникации прокладываются в подготовке пола, а узел ввода воды делается в котельной. Я считаю, что входную зону лучше размещать по главному фасаду. В решении фасада ее можно интересно обыграть и благоустроить благодаря тому, что она ориентирована на юг. 3. Вход с юга Плюсы - удобный вход Остальное минусы - по энергоэффективности, кухня южная, гостиная и спальни северные, санузел и котельная южные и далеко от скважины.[ATTACH]566028[/ATTACH] 1 Посилання на коментар Поділитися на інших сайтах More sharing options...
ksenik Опубліковано: 21 травня 2017 Автор Поділитись Опубліковано: 21 травня 2017 Спасибо за советы,пожалуй пока все же остановились на первом варианте, т.к. и правда, образ жизни такой что во двор будем по 100 раз за день выбегать и будет удобно, что вход со двора, а с участка преимущественно на машине выезжать/заезжать дважды в день. 1 Посилання на коментар Поділитися на інших сайтах More sharing options...
bunak Опубліковано: 5 червня 2017 Поділитись Опубліковано: 5 червня 2017 Спасибо за советы,пожалуй пока все же остановились на первом варианте, Мы с vadimv раньше обсуждали вопрос расположения по сторонам света, и он очень помог, подсказав что не делайте окна на север!! Это источник холода зимой Посилання на коментар Поділитися на інших сайтах More sharing options...
Рекомендовані повідомлення
Створіть акаунт або увійдіть у нього для коментування
Ви маєте бути користувачем, щоб залишити коментар
Створити акаунт
Зареєструйтеся для отримання акаунта. Це просто!
Зареєструвати акаунтУвійти
Вже зареєстровані? Увійдіть тут.
Увійти зараз