sigma_shig Опубліковано: 31 травня 2017 Поділитись Опубліковано: 31 травня 2017 Есть дом из ГБ на ленточном фундаменте. Фундамент из монолитного бетона 400*1200 + "пятка" 600*400. Находится на 1000мм ниже "нуля". Сейчас надо устраивать канализацию и производитель крайне негативно относится к закапыванию септика ближе 3м от фундамента. аргументирует "фундамент может треснуть". Насколько такие страхи обоснованы? Септик - герметичная пластиковая емкость. Дренаж будет находиться вдали от фундамента. Почва - суглинок. Посилання на коментар Поділитися на інших сайтах More sharing options...
mikrobyr Опубліковано: 31 травня 2017 Поділитись Опубліковано: 31 травня 2017 Есть дом из ГБ на ленточном фундаменте. Фундамент из монолитного бетона 400*1200 + "пятка" 600*400. Находится на 1000мм ниже "нуля". Сейчас надо устраивать канализацию и производитель крайне негативно относится к закапыванию септика ближе 3м от фундамента. аргументирует "фундамент может треснуть". Насколько такие страхи обоснованы? Септик - герметичная пластиковая емкость. Дренаж будет находиться вдали от фундамента. Почва - суглинок. отсеките септик подпорной стенкой. дорого, но забудете про риски, про "треснуть фундамент":smile: Посилання на коментар Поділитися на інших сайтах More sharing options...
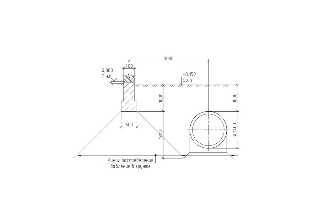
trianom Опубліковано: 1 червня 2017 Поділитись Опубліковано: 1 червня 2017 Быстренько прикинул разрез по спорным конструкциям. Поскольку линия давления в грунте от подошвы фундамента не попадает на саму емкость (идет в основание емкости) - уже хорошо (емкость не испытывает дополнительного давления от фундамента) и если фундамент считали (судя по ширине подошвы фундамента 600 мм нагрузки от дома небольшие), то можно считать, что взаимное влияние конструкций друг на друга минимально (если по подошве фундамента еще и арматура есть, вообще все чудненько). ИМХО, стоит только обратить внимание на исключение утечек из септика (поставить какой-то датчик уровня) и проверить емкость на всплытие, если высоко грунтовые воды. 1 Посилання на коментар Поділитися на інших сайтах More sharing options...
Kolomin Опубліковано: 17 червня 2017 Поділитись Опубліковано: 17 червня 2017 Если потечет, то этот будет проблемой. Будет больше проблем и затрат. Посилання на коментар Поділитися на інших сайтах More sharing options...
Рекомендовані повідомлення
Створіть акаунт або увійдіть у нього для коментування
Ви маєте бути користувачем, щоб залишити коментар
Створити акаунт
Зареєструйтеся для отримання акаунта. Це просто!
Зареєструвати акаунтУвійти
Вже зареєстровані? Увійдіть тут.
Увійти зараз