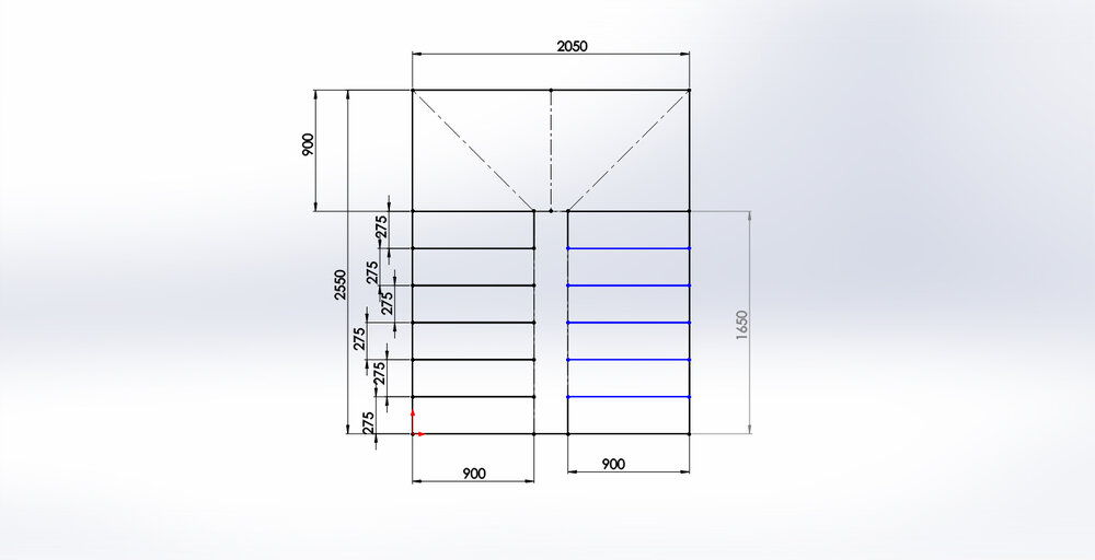
aladik Опубліковано: 27 грудня 2017 Поділитись Опубліковано: 27 грудня 2017 Добрый вечер, возникла необходимость просчёта лестничного марша между цокольный и первым этажом, с компьютерами и программами не очень дружу, поэтому прошу совета у опытных форумчан... Размер ширина 2.05. Высота 2.90 длинна 2.55. . По идее забежные ступени должны быть, чтоб высота ступеней была приемлемая... каркас и Лестницу хочу лить самостоятельно, отчет выложу в теме Посилання на коментар Поділитися на інших сайтах More sharing options...
valerazaz Опубліковано: 27 грудня 2017 Поділитись Опубліковано: 27 грудня 2017 любой каприз за вашы деньги Посилання на коментар Поділитися на інших сайтах More sharing options...
aladik Опубліковано: 27 грудня 2017 Автор Поділитись Опубліковано: 27 грудня 2017 В теме ,,сколько стоит,, не проскакивало, и коммерция на сколько я понимаю в другом разделе. В Вашей подписи фото работ не открываются. Посилання на коментар Поділитися на інших сайтах More sharing options...
valerazaz Опубліковано: 27 грудня 2017 Поділитись Опубліковано: 27 грудня 2017 https://www.stroimdom.com.ua/forum/album.php?albumid=7529 Посилання на коментар Поділитися на інших сайтах More sharing options...
viksel Опубліковано: 27 грудня 2017 Поділитись Опубліковано: 27 грудня 2017 Добрый вечер, возникла необходимость просчёта лестничного марша между цокольный и первым этажом, с компьютерами и программами не очень дружу, поэтому прошу совета у опытных форумчан... Размер ширина 2.05. Высота 2.90 длинна 2.55. . По идее забежные ступени должны быть, чтоб высота ступеней была приемлемая... каркас и Лестницу хочу лить самостоятельно, отчет выложу в теме Опытные форумчане советуют заказать проект лестницы у лестничников что специализируются на проектировании или у любого архитектора,правда тогда она бывает с значительными ошибками а бывает и без,как повезет.Впринципе расчитать параметры лестницы можно и без компютера и поможет в этом книга Й.Косо- Лестницы.Хотите секономить-изучайте:D. Посилання на коментар Поділитися на інших сайтах More sharing options...
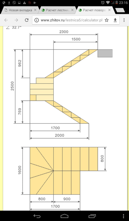
shneider_vova Опубліковано: 27 грудня 2017 Поділитись Опубліковано: 27 грудня 2017 Попробуйте посчитать на этом сайте: Я подставил Ваши параметры и подобрал нормальный вариант. Себе тоже тут прикидывал подобную лестницу (чуть выше только). Обратите внимание на высоту - это от чистого пола до чистого пола! Забежные ступени, нарисованные тут, не очень удобные, как я понимаю, я перерисовывал дополнительно по книге о деревянных лестницах, автор книги на форуме (я, правда, не помню, на каком - тут или на форумхаус). Общий вид лестницы такой: Я пока не определился для себя, что лучше. 1 Посилання на коментар Поділитися на інших сайтах More sharing options...
aladik Опубліковано: 28 грудня 2017 Автор Поділитись Опубліковано: 28 грудня 2017 Тоже вчера нашол какой-то сайт, только дырка между ступеньками не получается, буду среднюю ступеньку делать на 10 см шире. Посилання на коментар Поділитися на інших сайтах More sharing options...
shneider_vova Опубліковано: 28 грудня 2017 Поділитись Опубліковано: 28 грудня 2017 Да, это именно эта страница. можете сравнить мои параметры для построения лестницы (количество ступеней, и т.п.) с Вашими. Зазор между маршами придется корректировать вручную (без программы). Плюс учитывайте, что тут ступени для деревянной лестницы, то есть с выпуском ступени над подступенком, для бетонной лестницы этого не будет Посилання на коментар Поділитися на інших сайтах More sharing options...
oosimvol Опубліковано: 28 грудня 2017 Поділитись Опубліковано: 28 грудня 2017 Да, это именно эта страница. можете сравнить мои параметры для построения лестницы (количество ступеней, и т.п.) с Вашими. Зазор между маршами придется корректировать вручную (без программы). Плюс учитывайте, что тут ступени для деревянной лестницы, то есть с выпуском ступени над подступенком, для бетонной лестницы этого не будет Я так лоханулся. Сделал лестницу из бетона со ступенями 30*16. Теперь буду доливать по 2 см, чтобы стандартные деревянные ступени поставить. Посилання на коментар Поділитися на інших сайтах More sharing options...
shneider_vova Опубліковано: 28 грудня 2017 Поділитись Опубліковано: 28 грудня 2017 Я так лоханулся. Сделал лестницу из бетона со ступенями 30*16. Теперь буду доливать по 2 см, чтобы стандартные деревянные ступени поставить. А можно поподробнее, зачем именно подливать и почему не помещаются теперь ступени? Посилання на коментар Поділитися на інших сайтах More sharing options...
Сельдь(и)рейка Опубліковано: 28 грудня 2017 Поділитись Опубліковано: 28 грудня 2017 Добрый вечер, возникла необходимость просчёта лестничного марша между цокольный и первым этажом, с компьютерами и программами не очень дружу, поэтому прошу совета у опытных форумчан... Размер ширина 2.05. Высота 2.90 длинна 2.55. . По идее забежные ступени должны быть, чтоб высота ступеней была приемлемая... каркас и Лестницу хочу лить самостоятельно, отчет выложу в теме Чтобы помощь Вам была более продуктивней советую предоставить фото с разных ракурсов и обоих этажей. Для проектирования лестницы важны любые мелочи окна, двери, толщина и материал перекрытия. Посилання на коментар Поділитися на інших сайтах More sharing options...
Всеволод_Р Опубліковано: 28 грудня 2017 Поділитись Опубліковано: 28 грудня 2017 Можно и без компьютера справиться, но придеться почитать ostroykevse.com/Lestnica/MenuLestnica.html Я пробовал, все получается. Посилання на коментар Поділитися на інших сайтах More sharing options...
rul.32 Опубліковано: 28 грудня 2017 Поділитись Опубліковано: 28 грудня 2017 Я так лоханулся. Сделал лестницу из бетона со ступенями 30*16. Теперь буду доливать по 2 см, чтобы стандартные деревянные ступени поставить. То что Вы называете стандартом имеет 300 мм и расчитано на проступь 260-280 мм. Куда еще доливать? Или я что-то не правильно понял. Посилання на коментар Поділитися на інших сайтах More sharing options...
viksel Опубліковано: 28 грудня 2017 Поділитись Опубліковано: 28 грудня 2017 Тоже вчера нашол какой-то сайт, только дырка между ступеньками не получается, буду среднюю ступеньку делать на 10 см шире. Дык все просто,на смартфоне бах-бах и усе:D.Ну-ну..... Посилання на коментар Поділитися на інших сайтах More sharing options...
Фрол Фомич Опубліковано: 28 грудня 2017 Поділитись Опубліковано: 28 грудня 2017 Такими вопросами надо задаваться на этапе закладки фундамента, чтобы проем позволял разместить правильную лестницу. Если места мало, особо не насоветуешь... Хотя лучшее из худшего можно выбрать) Посилання на коментар Поділитися на інших сайтах More sharing options...
oosimvol Опубліковано: 28 грудня 2017 Поділитись Опубліковано: 28 грудня 2017 А можно поподробнее, зачем именно подливать и почему не помещаются теперь ступени? Выступ ступени над подступенником должен быть 2-4 см. У меня будет 0(ноль). Потому что ширина бетонной ступени 30 см. А должна быть 26-28. Посилання на коментар Поділитися на інших сайтах More sharing options...
shneider_vova Опубліковано: 28 грудня 2017 Поділитись Опубліковано: 28 грудня 2017 Выступ ступени над подступенником должен быть 2-4 см. У меня будет 0(ноль). Потому что ширина бетонной ступени 30 см. А должна быть 26-28. А почему обязательно должен быть выступ? с сборных железобетонных лестницах (в многоэтажных домах) такого нет, и нормальная лестница. Насколько я понял, выступ нужен только там, где не хватает длины ступени, и ее увеличивают за счет этого выступа. У Вас и так уже 300 мм - более чем, зачем умышленно уменьшать, а затем выступом увеличивать? Разве что для красоты Посилання на коментар Поділитися на інших сайтах More sharing options...
Фрол Фомич Опубліковано: 28 грудня 2017 Поділитись Опубліковано: 28 грудня 2017 Типовые пролеты как раз имеют нависание, только за счет скоса. Этот выступ необходим по эргономическим причинам, хотя безграмотные строители иной раз это правило игнорируют. Да и не только его. Посилання на коментар Поділитися на інших сайтах More sharing options...
shneider_vova Опубліковано: 28 грудня 2017 Поділитись Опубліковано: 28 грудня 2017 Действительно, посмотрел в серию на железобетонные лестницы - там есть скос, но он 12 мм всего, не думаю, что это принципиально: Можете объяснить все-таки, чем конкретно помогает вылет ступени? https://www.stroimdom.com.ua/forum/showthread.php?t=49398 Вот тут есть обсуждение, единственное здравое мнение увидел - это о "зацепе" краем обуви за подступенок при отсутствии вылета. Это так? Посилання на коментар Поділитися на інших сайтах More sharing options...
Фрол Фомич Опубліковано: 28 грудня 2017 Поділитись Опубліковано: 28 грудня 2017 Не только. Действительно, пятка на спуске упирается в подступенок, а каблук еще значительнее. Так недолго и ногу подвернуть. Но есть еще связь между шириной шага, проступью и высотой ступени, там свои требования, и без нависания трудно уложиться. В общем, это как борщ сварить, много ингредиентов и нужна гармония между ними. Только борщ на один день, а лестница на несколько поколений. Посилання на коментар Поділитися на інших сайтах More sharing options...
aladik Опубліковано: 28 грудня 2017 Автор Поділитись Опубліковано: 28 грудня 2017 У меня 174 мм высота ступени, и 258мм ширина, буду лить с бетона, потом обошью деревом, с нависанием пару см+-. Сегодня разметил по стенам, лазерный уровень рулит... завтра деревяшки буду распиливать и скручивать. Посилання на коментар Поділитися на інших сайтах More sharing options...
xserk Опубліковано: 6 січня 2018 Поділитись Опубліковано: 6 січня 2018 У меня 174 мм высота ступени, и 258мм ширина, буду лить с бетона, потом обошью деревом, с нависанием пару см+-. Сегодня разметил по стенам, лазерный уровень рулит... завтра деревяшки буду распиливать и скручивать. Наиграетесь с обшивкой бетона копетц.. Всетаки имхо лучше каркас металический с поледующейобшивкой.. экономия и денег и времени.. Посилання на коментар Поділитися на інших сайтах More sharing options...
SnakeC Опубліковано: 24 січня 2018 Поділитись Опубліковано: 24 січня 2018 (змінено) для ТС, еще один совет есть, который вроде упустили. Там где забежные ступени надо обратить внимание на то, что бы несколько ступеней не сходились в одну точку. Для поднятия вверх не критично, для спускания вниз - очень. Человек если спешит и сбегает быстро, интуитивно летит по внутреннему радиусу. А при таком раскладе со средины до первого этажа доедит на пятой точке. з.ы.: Кстати, если рассчитать ступени, то тож можешь обращаться. Проект бетона с армировкой не разрисую, но форму ступеней - пожалста. Змінено 24 січня 2018 користувачем SnakeC 1 Посилання на коментар Поділитися на інших сайтах More sharing options...
kvvant Опубліковано: 16 лютого 2018 Поділитись Опубліковано: 16 лютого 2018 2900/17=170.588 с вашего позволения дам совет со своей колокольни......лестниц по этим параметрам можно придумать много. но выбирать чем пожертвовать всеравно прийдется ... толи высота подъема толи ширина проступи , толи удобность самих ступеней на мой взгляд чем проще тем удобнее ( и не забывайте что она на всю жизнь)много забежных ступеней ... наверно хорошо - если стремиться к какойто призрачной цифре в 150 мм высоты подъема. многие начитаются инэта и хотят высоту подъема 1500мм и уменьшают ширину проступи ради этого... но вы подумайте ( сейчас не идет реч. о разнице скажем 150 -200 мм) что вам удобнее поднять колено на 2 см больше( раздвиньте пальцы большой и указательный на 2 см и вы поймете сколько это) или спускаясь вниз нуууу например чувствовать что носок свисает на 3 см.........тут в общем много можно разглагольствавать но я так в кратце.. а ... еще не продливайте пол второго этажа ступенью ... сложно будет потом попасть так чтоб перепада небыло и самое главное украдете 250-300 мм у лестницы Посилання на коментар Поділитися на інших сайтах More sharing options...
mihel60 Опубліковано: 19 лютого 2018 Поділитись Опубліковано: 19 лютого 2018 Интересно а сколько будет стоить деревянная лестница (в у.е) с поворотом на 90 градусов при высоте второго этажа 280 см.? Посилання на коментар Поділитися на інших сайтах More sharing options...
Рекомендовані повідомлення
Створіть акаунт або увійдіть у нього для коментування
Ви маєте бути користувачем, щоб залишити коментар
Створити акаунт
Зареєструйтеся для отримання акаунта. Це просто!
Зареєструвати акаунтУвійти
Вже зареєстровані? Увійдіть тут.
Увійти зараз