Vito black Опубліковано: 26 січня 2018 Поділитись Опубліковано: 26 січня 2018 Доброго времени суток. Живу в старом фонде, 1 этаж + мансарда. Давно хочу камин закрытый, но как-то по финансам не сходилось. Возможно ли такая конфигурация дымохода? 2,7 м метра лежаком, в коробе - тут вопрос отбора температуры от дымохода в помещение спальни - Как реализовать? Ну и главный вопрос - как пройти перекрытие между этажами - отесанное бревно вплотную одно к одному, + колышки забиты в каждое под 45* - наверно для связки. Видел их - (бревна) в 2006, когда делал из чердачного помещение- жилое. Получилось 3 комнаты и еще один СУ, - жить не тужить, - но камина хочется. Если это можно реализовать - поставлю термоголовки на радиаторы в спальне. П.С. - Нашел старые фотки еще не сделанной мансарды Посилання на коментар Поділитися на інших сайтах More sharing options...
SON Опубліковано: 26 січня 2018 Поділитись Опубліковано: 26 січня 2018 как пройти перекрытие между этажами - отесанное бревно вплотную одно к одному От огня/дыма в трубе расстояние до незащищенных сгораемых конструкций 38 см, до защищенных 25 см. Гуглите проходка ППУ. 2 Посилання на коментар Поділитися на інших сайтах More sharing options...
Vito black Опубліковано: 26 січня 2018 Автор Поділитись Опубліковано: 26 січня 2018 Вот так и только так можно пройти дымоходом Дурдом тут в СД с этими вложениями ... Посилання на коментар Поділитися на інших сайтах More sharing options...
SON Опубліковано: 26 січня 2018 Поділитись Опубліковано: 26 січня 2018 Живу в старом фонде Где старый дымоход? Посилання на коментар Поділитися на інших сайтах More sharing options...
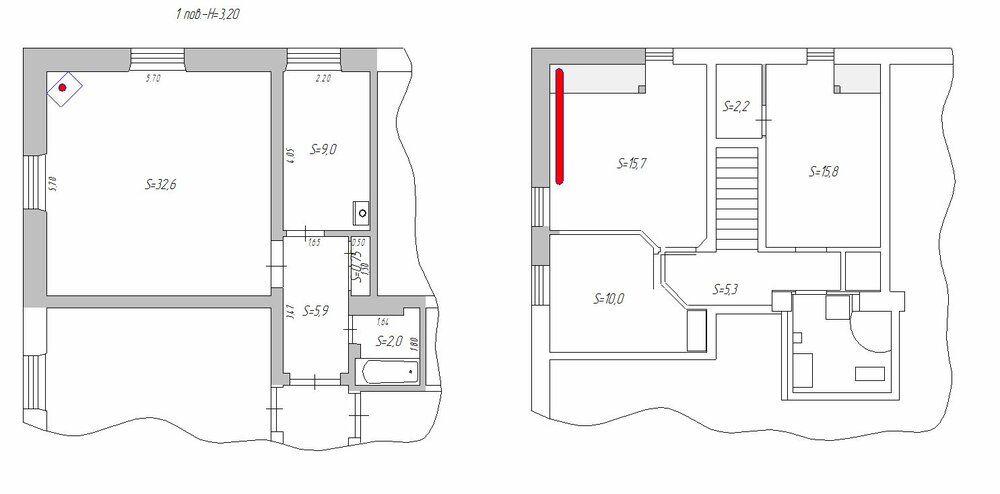
Vito black Опубліковано: 26 січня 2018 Автор Поділитись Опубліковано: 26 січня 2018 От огня/дыма в трубе расстояние до незащищенных сгораемых конструкций 38 см, до защищенных 25 см. Гуглите проходка ППУ. Тогда труба Ф180 мм в мансарду должна зайти от внутреннего угла стен на 40 см от переулка и от главной улицы ... Добавлено через 1 минуту Где старый дымоход? По диагонали комнаты 5,75*5,90 у входа в комнату, один пристенок 10 см, вторая -с мебелью Посилання на коментар Поділитися на інших сайтах More sharing options...
SON Опубліковано: 26 січня 2018 Поділитись Опубліковано: 26 січня 2018 Самое хреновое место под топку с т.з. дымохода - это наружный угол дома. Труба по наруже (по фасаду) не рассматривается? 1 Посилання на коментар Поділитися на інших сайтах More sharing options...
Vito black Опубліковано: 26 січня 2018 Автор Поділитись Опубліковано: 26 січня 2018 Самое хреновое место под топку с т.з. дымохода - это наружный угол дома. Труба по наруже (по фасаду) не рассматривается? На эскизе карандашом - ПА - Памятник архитектуры. Мой дом - в фоновой застройке памятника архитектуры .. по фасаду -низззя Посилання на коментар Поділитися на інших сайтах More sharing options...
SON Опубліковано: 26 січня 2018 Поділитись Опубліковано: 26 січня 2018 По диагонали комнаты 5,75*5,90 у входа в комнату, один пристенок 10 см, вторая -с мебелью Типа все понятно. :D Малюйте. Дымоход в кирпичной стене? Посилання на коментар Поділитися на інших сайтах More sharing options...
Vito black Опубліковано: 26 січня 2018 Автор Поділитись Опубліковано: 26 січня 2018 Ото и зажглось ... На объекте сейсас по мелочи ... Пришли ребята принесли топку на 2 этаж старого фонда, где перекрытия при каждом шаге сотрясаются ... Будут ставить на каркас уголков в стены ... Будем наблюдать ... Ну то такое - а увидел топку, - и пипец как хочу себе в дом Посилання на коментар Поділитися на інших сайтах More sharing options...
Vito black Опубліковано: 26 січня 2018 Автор Поділитись Опубліковано: 26 січня 2018 Тута он падлюка, - в неудобном месте. Там печь стояла в угле, я перенес проём Посилання на коментар Поділитися на інших сайтах More sharing options...
Vito black Опубліковано: 26 січня 2018 Автор Поділитись Опубліковано: 26 січня 2018 Типа все понятно. :D Малюйте. Ок. завтра в чертежах сделаю. Согласен - не понятно выглядит. Посилання на коментар Поділитися на інших сайтах More sharing options...
Vito black Опубліковано: 26 січня 2018 Автор Поділитись Опубліковано: 26 січня 2018 Завтра пришло. Нашел старые чертежи Посилання на коментар Поділитися на інших сайтах More sharing options...
Vito black Опубліковано: 26 січня 2018 Автор Поділитись Опубліковано: 26 січня 2018 Тут старый дымоход Посилання на коментар Поділитися на інших сайтах More sharing options...
SON Опубліковано: 27 січня 2018 Поділитись Опубліковано: 27 січня 2018 (змінено) Завтра пришло. Не спится. :D Напишу свои мысли, на чем остановиться решать собсно Вам. При установке топки в углу придется изголяться с пожарными нормами через перекрытие и стропильную систему. Это в принципе все выполнимо. Тут засада с бревнами на перекрытии. Выпилить в них дырку мин. 70*70 см. просто так не получится, обвалится потолок. Либо думать как "привязать" 3-4 бревна к остальным, а в углу это сделать намного сложнее. Наклонная труба на чердаке не есть гуд как в плане тяги, так и ее чистки. И неизвестно как поведет себя топка с таким дымоходом. Т.е. ожидание праздника может превратиться в пожизненную головную боль. Можно пересмотреть расстановку мебели в комнате и установить топку поближе к существующему дымоходу. Топку подключить к нему (см. малюнок). Либо остановиться на наружном дымоходе, покрасив его в цвет фасада. Близость дома к памятнику архитектуры не делает его тоже архитектурной ценностью. И чем наружный дымоход отличается от той же водосточной трубы, разве тока диаметром. ВоПчем покрутите в голове все "за" и "против". Просверлить наружную стену проще чем перекрытие, тем более "по красоте" в обжитом доме, а использовать существующий дымоход, все упрется тока в перестановку. Как-то так. Змінено 27 січня 2018 користувачем SON 1 Посилання на коментар Поділитися на інших сайтах More sharing options...
Vito black Опубліковано: 27 січня 2018 Автор Поділитись Опубліковано: 27 січня 2018 Напишу свои мысли, на чем остановиться решать собсно Вам. Спасибо за мысли. Будем думать, ждать тепла. Я не помню размер того дымохода. Надо лезть на крышу. В той топке Ф присоединения 180 мм. Т.е. сечение дымохода не может быть меньше - правильно? Посилання на коментар Поділитися на інших сайтах More sharing options...
SON Опубліковано: 27 січня 2018 Поділитись Опубліковано: 27 січня 2018 Т.е. сечение дымохода не может быть меньше - правильно? Прально. Старый дымоход скорей всего 1*1/2 кирпича, т.е. 270*140 мм. Посилання на коментар Поділитися на інших сайтах More sharing options...
Vito black Опубліковано: 27 січня 2018 Автор Поділитись Опубліковано: 27 січня 2018 (змінено) Прально. Старый дымоход скорей всего 1*1/2 кирпича, т.е. 270*140 мм. Не, тут румынский кирпич ... Вроде сечение 170*170 мм. Потеплеет - залезу на крышу. Оттакой кирпич, щетка по металлу - обычная, не уменьшенная Змінено 27 січня 2018 користувачем Vito black 1 Посилання на коментар Поділитися на інших сайтах More sharing options...
SON Опубліковано: 27 січня 2018 Поділитись Опубліковано: 27 січня 2018 Да, размер "нестандартный". По румынским размерам я не в курсах в связи с географией проживания. :D Думаю для топки сечения вполне хватит. Посилання на коментар Поділитися на інших сайтах More sharing options...
Vito black Опубліковано: 27 січня 2018 Автор Поділитись Опубліковано: 27 січня 2018 По румынским размерам я не в курсах в связи с географией проживания. Ну, да - Украина Их оказывается коллекционируют ... а я в кладку положил relicfinder.info/forum/viewtopic.php?f=9&t=155&start=20 У меня был Patria . Нигде в нете не могу найти фото ... От лоханулся, столько антиквариата в раствор уложил. Добавлено через 2 минуты При реконструкции мансарды нашел тайник с почти 5000 рублей, - не чтоб золото купить и положить в тайник ... уже б топка была и грелся )) Добавлено через 9 минут На карте 1897 года/Австро-Венгрия/ дом в котором я живу есть. И Николаевская церковь подписана рядом chibur-chernivtsi.blogspot.com/p/blog-page_1699.html 1 Посилання на коментар Поділитися на інших сайтах More sharing options...
Vito black Опубліковано: 27 січня 2018 Автор Поділитись Опубліковано: 27 січня 2018 Можно пересмотреть расстановку мебели в комнате и установить топку поближе к существующему дымоходу. Топку подключить к нему (см. малюнок). А как подвод воздуха с вне в топку при таком решении? Посилання на коментар Поділитися на інших сайтах More sharing options...
SON Опубліковано: 27 січня 2018 Поділитись Опубліковано: 27 січня 2018 А как подвод воздуха с вне в топку при таком решении? Шо, опять? :D Тут, если осилите. https://www.stroimdom.com.ua/forum/showthread.php?t=218190 https://www.stroimdom.com.ua/forum/showthread.php?t=195856 1 Посилання на коментар Поділитися на інших сайтах More sharing options...
Vito black Опубліковано: 27 січня 2018 Автор Поділитись Опубліковано: 27 січня 2018 Шо, опять? :D Тут, если осилите. https://www.stroimdom.com.ua/forum/showthread.php?t=218190 https://www.stroimdom.com.ua/forum/showthread.php?t=195856 Читал я те темы. Я имею ввиду, если по Вашему предложению убрать мебель и таки установить топку к существующему дымоходу внутри дома. Добавлено через 44 секунды Подвала нет Посилання на коментар Поділитися на інших сайтах More sharing options...
SON Опубліковано: 28 січня 2018 Поділитись Опубліковано: 28 січня 2018 Подвала нет Ну нет, ну и шо? Необходимость отдельного притока для закрытой топки сильно преувеличена. Если есть приток в дом для подышать и вентиляции, то и топка тож будет работать. Ей нужно всего-то 1,5-2 куба воздуха на кВт мощности. 1 Посилання на коментар Поділитися на інших сайтах More sharing options...
NEX-HELP Опубліковано: 28 січня 2018 Поділитись Опубліковано: 28 січня 2018 А как подвод воздуха с вне в топку при таком решении? Из вариантов, по Вашей проблеме как на фото,или Ваше перекрытие, прорезать бревна отверстием 40х40см-это размер внешнего дымохода. Но перед этим,по обе стороны "дырки" уложить уголок 53-63й с захватом 5-6 брёвен,и на каждое бревно закрутить шурупы Ф/6-8мм для укрепления перекрытия. У дымоходов HELUZ существует система подачи воздуха (внутри канала) к потребителю,как в одно-ходовом дымоходе,так и с доп-вентканалом,.. не требуется доп-расходы и подключение отдельной ветки вент-потока к потребителю,как при других дымоходах. Посилання на коментар Поділитися на інших сайтах More sharing options...
Vito black Опубліковано: 28 січня 2018 Автор Поділитись Опубліковано: 28 січня 2018 Из вариантов, по Вашей проблеме как на фотоСпасибо. За такую дымоходную систему в курсе. Но я уже согласился, что в углу - не получится (лежаком по мансарде). Будем думать о другом месте установки. Добавлено через 1 минуту А какая минимальная длинна дымохода должна быть для эффективной работы и хорошей тяги(от тройника подключения)? Посилання на коментар Поділитися на інших сайтах More sharing options...
Рекомендовані повідомлення
Створіть акаунт або увійдіть у нього для коментування
Ви маєте бути користувачем, щоб залишити коментар
Створити акаунт
Зареєструйтеся для отримання акаунта. Це просто!
Зареєструвати акаунтУвійти
Вже зареєстровані? Увійдіть тут.
Увійти зараз