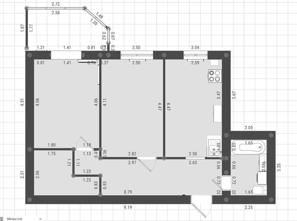
Nonsys Опубліковано: 17 травня 2018 Поділитись Опубліковано: 17 травня 2018 (змінено) Добрый день! Требуется ваша помощь. Имеем такую планировку от застройщика как на фотографии. Ломать стены не планируем. Не можем решить где сделать спальню а где гостиную. В Гостиной планируем поставить проектор и проекционный экран. В Спальне, тумбу, двухспальную кровать. Телевизоры ставить не будем. Кто как считает, где лучше сделать гостиную? Ближе к кухне или в конце квартиры? Змінено 17 травня 2018 користувачем Nonsys Посилання на коментар Поділитися на інших сайтах More sharing options...
TianaD Опубліковано: 18 травня 2018 Поділитись Опубліковано: 18 травня 2018 Думаю, що краще ближче до кухні. Спальня якось не дуже практично між вітальнею і кухнею. Посилання на коментар Поділитися на інших сайтах More sharing options...
bambino Опубліковано: 18 травня 2018 Поділитись Опубліковано: 18 травня 2018 Думаю, що краще ближче до кухні. Спальня якось не дуже практично між вітальнею і кухнею. С другой стороны балкон в гостинной можно использовать для попить кофе. А в спальне он особо ни к чему. Но проход в эту крайнюю комнату очень корявый. Если гостинная по центру, то из кухни можно пробить стену и поставить сдвижную дверь. Открыли - объединили пространство, еду носить удобно. Закрыли - изолировали. Сейчас живу с такой планировкой, нравится. А что за помещение без окон без дверей в левом нижнем углу плана? 1 Посилання на коментар Поділитися на інших сайтах More sharing options...
Гість Мария23 Опубліковано: 4 березня 2019 Поділитись Опубліковано: 4 березня 2019 я робила б спальню в кутовій кімнаті, як на мене затишно було б, а цю маленьку кімнату облаштувала б як гардиробну. Кімнату між спальнею і кухнею зробила б вітальнею, або якщо у вас є діти, то дитячою, для одної дитини вона звичайно завелика, але якщо плануєте більше дітей, то в самий раз. Посилання на коментар Поділитися на інших сайтах More sharing options...
Рекомендовані повідомлення
Створіть акаунт або увійдіть у нього для коментування
Ви маєте бути користувачем, щоб залишити коментар
Створити акаунт
Зареєструйтеся для отримання акаунта. Це просто!
Зареєструвати акаунтУвійти
Вже зареєстровані? Увійдіть тут.
Увійти зараз