Перейти до публікації
Пошук в
  • Додатково...
Шукати результати, які містять...
Шукати результати в...

Покритикуйте схему септика.

BeeKeeper

Рекомендовані повідомлення

Добрый день.

Начитался на форумах разной информации о септиках. Пока что каша в голове. Попытался все, что узнал воплотить в чертеж. Чтобы в ближайший месяц - два самостоятельно с сыном и с помощью местного экскаваторщика и крановщика все это воплотить в жизнь.

Планируется проживание 3 - 4 - х человек круглый год. Ну в летнее время возможен кратковременный приезд пары гостей. В доме отдельно ванная, 2 туалета, душевая кабинка, стиральная машина, кухня с мойкой. Вроде ничего не забыл.

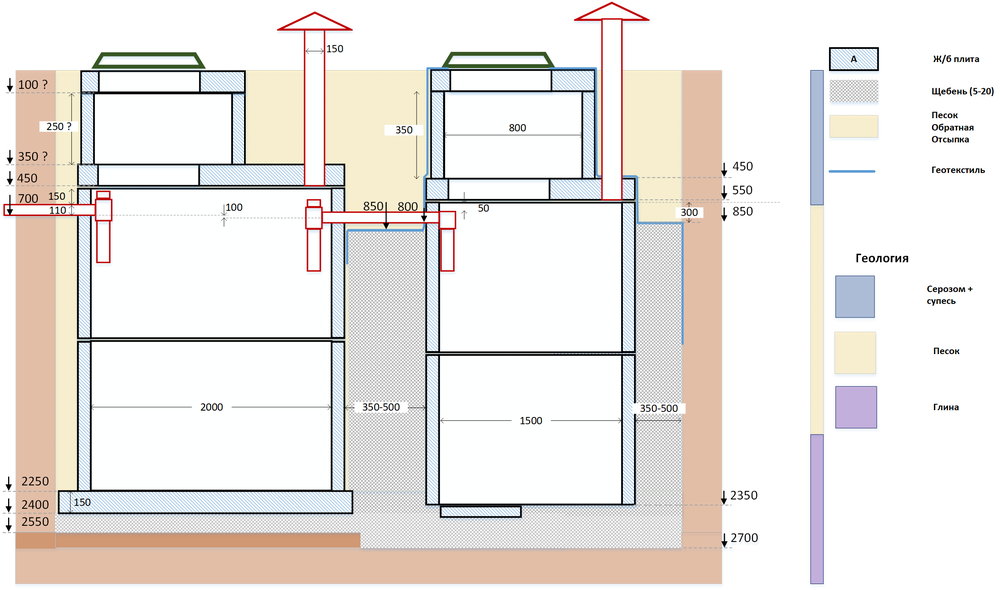
Собственно сама схема

 

Хочу услышать критику от специалистов в септикостроении и коллег, которые уже прошли данный этап на своей стройке. Где могут быть грабли, чего избегать. Буду благодарен за любые советы. Спасибо.

Septik_2Sections_02.thumb.png.6182b5e361094db05436e5ddae433970.png

Посилання на коментар
Поділитися на інших сайтах

Тройник с трубы входа в первую камеру тройник уберите. С тройника на переливе в дренаж опустите кусок трубы до уровня 2/3 полезного объема жидкости. Второй колодец поставьте на подсыпку из щебня фр 20-40 толщиной 50-60 см. Вокруг колец, грунт изолируйте геотекстилем иглопробивным 150-200г/м. Между геотекстилем и кольцами сыпите щебень фр 5-20 до самой переливной трубы. Оставшимся текстилем этот щебень (сверху) укутываете. засыпаете грунтом. По периметру колец, на всей площади щебня делаете перфорацию буром 16-20мм. В этот же колодец ставите кусок трубы с грибком. В доме делаете фановую трубу. Второй грибок в первом колодце не нужен. Через грибок будет приток, а фан это вытюжка. Желательно на перелив в дренажном колодце установить фильтрующую емкостьimage-8c41548184a9ead6a2cc9c12c621e7136a0a78018c24583c57d6b04e9f872949-V.thumb.jpg.454ed33779180951af157b0b3d536f2c.jpg

 

image-96d2482a559e42e711d8e86d35b1b12a2b3dbd4f0cc2c6507ad50a4660310270-V.thumb.jpg.8597d6fe25965f65f9472f052e097e07.jpg

 

image-132b7443d9cf1168c4fbbb1462d3b3a23262fa7679f4f7b5bca70672ec694bb3-V.thumb.jpg.51727e930261b919a0cdc4308485d69d.jpg

 

IMAG1286.thumb.jpg.e69477616813d654affa32e4e37d1f12.jpg

  • Лайк 4
Посилання на коментар
Поділитися на інших сайтах

Павел, спасибо за замечания! Только сегодня дошли руки перерисовать чертеж.

 

Тройник с трубы входа в первую камеру тройник уберите.

Тройник хотелось бы оставить, но выход вверх заглушу заглушкой. Оставляю тройник, чтобы иметь возможность в случае засора впихнуть шланг и напором попытаться вымыть. Или это бредовая идея???

picture.php?albumid=8061&pictureid=93725

 

С тройника на переливе в дренаж опустите кусок трубы до уровня 2/3 полезного объема жидкости.

Исправил чертеж.

 

Вокруг колец, грунт изолируйте геотекстилем иглопробивным 150-200г/м.

Хотел уточнить, вокруг обоих колодцев, или только вокруг фильтрующего? И как глубоко? До самого низа колодца?

 

В этот же колодец ставите кусок трубы с грибком.

Предусмотрено.

 

Желательно на перелив в дренажном колодце установить фильтрующую емкость

Надо гуглить, есть ли такое стандартное решение. Или надо будет колхозить что - то своими руками? Если есть, может поделитесь ссылкой? Спасибо!

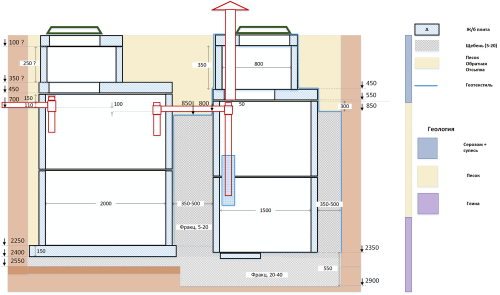
Итак, исправленный вариант чертежа:

Septik_2Sections_03.thumb.png.24a556186897c2c195ea01f1d0445a7d.png

Змінено користувачем BeeKeeper
Посилання на коментар
Поділитися на інших сайтах

Еще попутно появились вопросы.

Учитывая то, что общая длина трассы от выхода в доме до входа в первый колодец составляет 11 погонных метров, то перепад на такой длине должен составлять около 170 мм (10 - 22 мм на метре в разных источниках по разному.). Т.е. получается, если вход на глубине 700 мм, то выход возле дома должен быть на глубине 530 мм. Вот здесь я переживаю: достаточна ли такая глубина для зимних условий. Ведь явно выше глубины промерзания. Даже если над трубой по длине всей трассы уложить сверху листы ЭППС. Я такое видел в инете (сохранил фото).

P.S. Сохраняя уважение к авторскому праву :) - нашел первоисточник: фото форумчанина alexbob

picture.php?albumid=8061&pictureid=93727

Или же опускать всю конструкцию ниже сантиметров на 10 - 15?

picture.php?albumid=8061&pictureid=93724

И второй вопрос: необходим ли такой перепад в 100 мм между входящим и выходящим патрубками в первом колодце. Или же возможно уменьшить до 50 мм?

1572329331_Septik_2Sections_03_.thumb.png.5153ce7ec6ca2d31ec0fd8910c4eac8d.png

Змінено користувачем BeeKeeper
Уточнил источник фотографии.
Посилання на коментар
Поділитися на інших сайтах

Тройник не желателен. что вы там собрались промывать? Когда уровень воды дойдет до того тройника, он попросту забьется.

Геотекстиль до самого дна во втором колодце. он нужен, что бы щебень не заиливался грунтом.

Фильтрующую емкость дешевле изготовить самому. Из обыкновенной пластиковой бочки 60-100 литров.

Вывод из дома даже глубоко. Утеплять ничего не нужно. В пустой трубе ничего не мерзнет. У некоторых людей вывод из дома есть 40см. Чем выше вывод, тем эффективнее объем септика.

Между переливом и вводом можно сделать разницу- низ трубы ввода, верх трубы перелив. Это ок 55 мм.

  • Лайк 2
Посилання на коментар
Поділитися на інших сайтах

Спасибо! Поеду к себе размечать колышки под будущую яму :beer:

P.S. По самодельному фильтру. Спасибо за идею с бочкой.

Я не рассмотрел, что там внутри фильтра (я имею в виду ваши фото в первом ответе). Похоже на керамзит. но керамзит ведь легкий, он всплывает. Или не всплывает??? Или необходимы какие-то специальные вещества.

 

P.S.S. Результаты поиска фильтра. Но цена немного смутила. Хотя, вполне возможно, что нормальная цена как для фильтра из нержавейки. Считаю, что фильтр из прастмассовой бочки будет ничем не хуже.

2019-05-25_1653.png.32a7e852377a5664f95585c2b2b8d485.png

Змінено користувачем BeeKeeper
Посилання на коментар
Поділитися на інших сайтах

bio-shop.kiev.ua/%D0%BE%D1%87%D0%B8%D1%81%D1%82%D0%BA%D0%B0-%D1%81%D1%82%D0%BE%D1%87%D0%BD%D1%8B%D1%85-%D0%B2%D0%BE%D0%B4/%D0%BA%D0%BE%D0%BC%D0%BF%D0%BB%D0%B5%D0%BA%D1%82%D1%83%D1%8E%D1%89%D0%B8%D0%B5-%D0%BA-%D1%81%D0%B5%D0%BF%D1%82%D0%B8%D0%BA%D0%B0%D0%BC/%D0%BF%D1%83%D1%86%D1%86%D0%BE%D0%BB%D0%B0%D0%BD.html

Керамзит не будет в воде, он в подвешенном состоянии. Что бы ему всплыть, нужно, что бы дренаж перестал работать. А пока через него протекает жидкость, он намокает и никуда не плывет.

  • Лайк 1
Посилання на коментар
Поділитися на інших сайтах

  • 5 тижнів потому...
Еще попутно появились вопросы.

Учитывая то, что общая длина трассы от выхода в доме до входа в первый колодец составляет 11 погонных метров, то перепад на такой длине должен составлять около 170 мм (10 - 22 мм на метре в разных источниках по разному.). Т.е. получается, если вход на глубине 700 мм, то выход возле дома должен быть на глубине 530 мм. Вот здесь я переживаю: достаточна ли такая глубина для зимних условий. Ведь явно выше глубины промерзания. Даже если над трубой по длине всей трассы уложить сверху листы ЭППС. ....

 

Не промерзнет. Да, в той же киевской области нормативная глубина промерзания до 80-90 см, но фактически это будет 20-25см. (штык лопаты) в самую жестокую зиму и без снега. Есть данные замеров, и у меня такая же картина. Говорил с промышленными септикостроителями-емкостезакапывателями, роют в самый лютый мороз, говорят, фиг там, ничего не промерзает больше, чем на штык лопаты. Мало того, рыхлый снег даст +1`C на 2 см. толщины. Сток у вас будет с температурой не меньше 30`C, 110-ю трубу с правильным наклоном (2%) вы не разморозите, даже если постараетесь.

 

И, ради бога, послушайте опытных людей, уберите тройник на входе. Это старый копипаст, который гуляет по инету руками тех, кто никогда эти тройники не чистил. Тройники ставятся только на межемкостные перемычки, чтобы предотвратить забивание перетока и обеспечить газообмен между камерами.

 

Чтобы керамзит не гулял по камерам, зафиксируйте его строительной сеткой. Либо сделайте ступенчатый фильтр, на дно керамзит, выше - сетчатый наполнитель (строительная сетка скомканная пойдет).

  • Лайк 2
Посилання на коментар
Поділитися на інших сайтах

Створіть акаунт або увійдіть у нього для коментування

Ви маєте бути користувачем, щоб залишити коментар

Створити акаунт

Зареєструйтеся для отримання акаунта. Це просто!

Зареєструвати акаунт

Увійти

Вже зареєстровані? Увійдіть тут.

Увійти зараз
×
×
  • Створити...