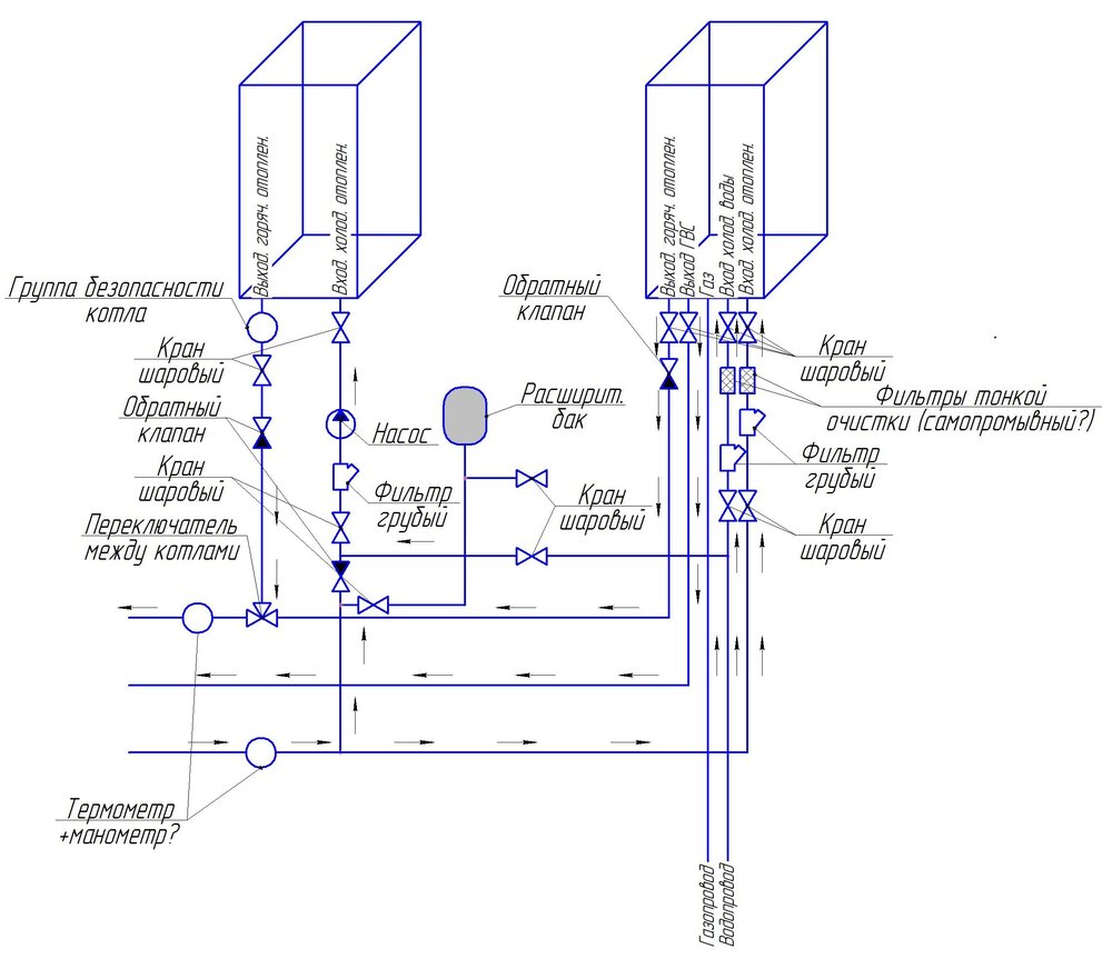
Andbiz Опубліковано: 26 травня 2019 Поділитись Опубліковано: 26 травня 2019 Здравствуйте, уважаемые форумчане. Построил котельную. В ней установлен, но не подключен 2-ух контурный котел Protherm ГЕПАРД 23 MTV. Также с целью резервирования и сгорания ненужных деревяшек планируется установка твердотопливного котла (на данный момент еще не куплен). Нарисовал разводку подключения к старой железной системе отопления (регистры из трубы диаметром 60 мм, суммарной длиной 75 метров и объемом 0,22 м.куб), которая пока не планируется заменяться. Подключение газоснабжения - магистральное. География - Украина, Донецк. Сделал черновую схему https://www.stroimdom.com.ua/forum/attachment.php?attachmentid=659955&stc=1&d=1558849422 За счет твердотопливного котла я хотел бы подстраховаться от отключения газа зимой (хотя таких случаев за последние годы не было) + иногда топить старые ветки и доски. Итого получилось: 1) Стабилизатор - 500 Вт; 2) Термометр+манометр? - 2 шт; 3) Кран шаровый - 12 шт; 4) Обратный клапан - 3 шт; 5) Фильтр тонкой очистки - 2 шт; 6) Фильтр грубой очистки - 3 шт; 7) Расширительный бак - 1 шт 8) Насос - 1 шт; 9) Переключатель между котлами - 1 шт; 10) Группа безопасности котла (ТТК) - 1 шт; Вопросы: 1) Правильное расположение обратных клапанов? Нужны ли они вообще? 2) Фильтр - самопромывный нужен? 3) Устройство магнитной обработки воды нужен? 4) Нужна чистка газа Фильтр Madas FMC-FM? 5) Везде кран шаровые. Нужны ли где-то прямоточные вентили? 6) Расширительный бак допустим один на 2 котла? 7) Какие есть ошибки? Посилання на коментар Поділитися на інших сайтах More sharing options...
SON Опубліковано: 26 травня 2019 Поділитись Опубліковано: 26 травня 2019 Подмеса в обратку на ТТК нет. Проще взять готовую штатную схему и не придумывать велосипед. Посилання на коментар Поділитися на інших сайтах More sharing options...
ttkotel Опубліковано: 26 травня 2019 Поділитись Опубліковано: 26 травня 2019 (змінено) Есть типовые схемы подключения тт котлов, так же обратите внимание на дымоход - самое важное в установке котла на твердом топливе. Змінено 26 травня 2019 користувачем ttkotel Посилання на коментар Поділитися на інших сайтах More sharing options...
Рекомендовані повідомлення
Створіть акаунт або увійдіть у нього для коментування
Ви маєте бути користувачем, щоб залишити коментар
Створити акаунт
Зареєструйтеся для отримання акаунта. Це просто!
Зареєструвати акаунтУвійти
Вже зареєстровані? Увійдіть тут.
Увійти зараз