Saoner Опубліковано: 4 червня 2019 Поділитись Опубліковано: 4 червня 2019 Добрый день! Заинтересован в модернизации текущего варианта канализации в частном доме: с. Новоселки, Вышгородский р-н, Киевская область. Грунт - песок, уровень грунтовых не выше 4 метров. Изначально в 2004 году вывод канализации осуществлялся в "септик" из бетонных колец без дна (две ямы: первая - 4 кольца метровых + перелив во 2 яму, где 6 колец метровых). До 2013 года все это работало относительно без капризов. Ассенизатор вызывался раз в год-два. В 2013 году, в силу увеличившегося кол-ва проживающих (с 2 до 5) и участившимися случаями вызова ассенизатора было принято решение сделать новую канализацию, а именно: старую заглушить и построить новую яму (4 кольца по 1.5 метра) без дренажного колодца, перелива и полей фильтрации. Первый раз откачка новой ямы была в 2015 году, но уже через неделю - две яма оказалась полной и стал вопрос: "как быть дальше?". Ассенизатор, во время очередного визита, порекомендовал сделать врезку в существующую яму с помощью трубы 110-й на уровне 20 см ниже входной трубы и сделать "дренаж". Не долго думая я прокопал от ямы траншею 8 метров и углубил ее до нужного уровня. Врезку осуществил с помощью тройника, что бы забор воды в дренаж осуществлялся с середины выгребной ямы. Трубы для дренажа просверлил по всей длине, уложил их в траншею и обсыпал со всех сторон щебнем крупной фракции (см 20 со всех сторон). Труба в конце была заглушена и, к сожалению, никакой вентиляции предусмотрено не было. Сверху уложенного щебня сделал прослойку из 2 слоев толстой пленки, после чего засыпал все это дело. Наглядно как это было на фото ниже. Весной 2019 года я обнаружил, что земля, которой я засыпал свой дренаж влажная и что в одном месте даже скапливается вода. Со временем даже было видно, что из земли прям явно бурлит и поднимается вверх вода + имеется запах. Не долго думая вызвал ассенизатор и откатал всю яму (2 машины по 4 куба пришлось заказывать). На сегодняшний день проживает в доме 7 человек и яма, естественно, заполнилась за 4-5 дней до прежнего уровня и сверху дренажа опять влажная почва. Вот тут и стал вопрос о выборе альтернативного решения, который не будет загрязнять почву и будет справляться с нашими объемами стоков. Изучая вопрос наткнулся на множество систем "автономной канализации": с компрессорами, без компрессоров, самотечные, с насосами для принудительной откачки очищенной воды... По телефону каждая компания доказывает, что их система самая лучшая, степень очистки ДО 98% и почти все готовы уже заключать договор и вести ее монтировать. На некоторых сайтах есть даже отзывы, якобы, живых людей..Например, на фейсбуке к одной из компаний было оставлено несколько положительных отзывов об их системе. Вчера я попытался связаться с этими счастливыми владельцами систем биологической очистки через все тот же фейсбук, но ответа на свое сообщение не получил, хотя и видно, что люди пользуются сайтом и совсем недавно были "в сети". В итоге я так и не сделал никаких выводов и не услышал никаких живых мнений от людей, у которых установлены подобные виды автономных канализаций. Хочу услышать Ваше мнение. Если есть опыт - поделитесь, пожалуйста. И кто что может порекомендовать для установки в 2019 году. Посилання на коментар Поділитися на інших сайтах More sharing options...
naupv Опубліковано: 4 червня 2019 Поділитись Опубліковано: 4 червня 2019 У вас изначально все сделано не по феншую.:D В 100500 раз не буду описывать как нужно, пальцы болят. Года 3 назад мы делали септик в в ваших Новоселках у одного форумчанина. Вот вам тел, позвоните, попроситесь в гости, откройте люки и посмотрите. Расспросите, что да как. У вас в Новоселках везде песок, если сделать по правильному, забудете на долгие годы про откачку. 0 девять пять 73 ноль шестьдесят 5 девятнадцать Евгений. Фабричные ЛОС действительно имеют степень очистки до 98%. Это дорого, энергозатратно, но оно стоит того. И самое главное- даже за млн баксов очистки нужно обслуживать. 2 Посилання на коментар Поділитися на інших сайтах More sharing options...
Блуждающий ТВЭЛ Опубліковано: 24 червня 2019 Поділитись Опубліковано: 24 червня 2019 (змінено) Добрый день! Заинтересован в модернизации текущего варианта канализации в частном доме: с. Новоселки, Вышгородский р-н, Киевская область. Грунт - песок, уровень грунтовых не выше 4 метров. Изначально в 2004 году вывод канализации осуществлялся в "септик" из бетонных колец без дна (две ямы: первая - 4 кольца метровых + перелив во 2 яму, где 6 колец метровых). До 2013 года все это работало относительно без капризов. Ассенизатор вызывался раз в год-два. В 2013 году, в силу увеличившегося кол-ва проживающих (с 2 до 5) и участившимися случаями вызова ассенизатора было принято решение сделать новую канализацию, а именно: старую заглушить и построить новую яму (4 кольца по 1.5 метра) без дренажного колодца, перелива и полей фильтрации. Первый раз откачка новой ямы была в 2015 году, но уже через неделю - две яма оказалась полной и стал вопрос: "как быть дальше?". Ассенизатор, во время очередного визита, порекомендовал сделать врезку в существующую яму с помощью трубы 110-й на уровне 20 см ниже входной трубы и сделать "дренаж". Не долго думая я прокопал от ямы траншею 8 метров и углубил ее до нужного уровня. Врезку осуществил с помощью тройника, что бы забор воды в дренаж осуществлялся с середины выгребной ямы. Трубы для дренажа просверлил по всей длине, уложил их в траншею и обсыпал со всех сторон щебнем крупной фракции (см 20 со всех сторон). Труба в конце была заглушена и, к сожалению, никакой вентиляции предусмотрено не было. Сверху уложенного щебня сделал прослойку из 2 слоев толстой пленки, после чего засыпал все это дело. Наглядно как это было на фото ниже. Весной 2019 года я обнаружил, что земля, которой я засыпал свой дренаж влажная и что в одном месте даже скапливается вода. Со временем даже было видно, что из земли прям явно бурлит и поднимается вверх вода + имеется запах. Не долго думая вызвал ассенизатор и откатал всю яму (2 машины по 4 куба пришлось заказывать). На сегодняшний день проживает в доме 7 человек и яма, естественно, заполнилась за 4-5 дней до прежнего уровня и сверху дренажа опять влажная почва. Вот тут и стал вопрос о выборе альтернативного решения, который не будет загрязнять почву и будет справляться с нашими объемами стоков. Изучая вопрос наткнулся на множество систем "автономной канализации": с компрессорами, без компрессоров, самотечные, с насосами для принудительной откачки очищенной воды... По телефону каждая компания доказывает, что их система самая лучшая, степень очистки ДО 98% и почти все готовы уже заключать договор и вести ее монтировать. На некоторых сайтах есть даже отзывы, якобы, живых людей..Например, на фейсбуке к одной из компаний было оставлено несколько положительных отзывов об их системе. Вчера я попытался связаться с этими счастливыми владельцами систем биологической очистки через все тот же фейсбук, но ответа на свое сообщение не получил, хотя и видно, что люди пользуются сайтом и совсем недавно были "в сети". В итоге я так и не сделал никаких выводов и не услышал никаких живых мнений от людей, у которых установлены подобные виды автономных канализаций. Хочу услышать Ваше мнение. Если есть опыт - поделитесь, пожалуйста. И кто что может порекомендовать для установки в 2019 году. Заходите в гости, сосед. Посмотрите, как у меня сделано. Как раз дренаж еще не закрыт, закончу этим летом. Можем геологичку полистать, она вряд ли у вас отличается от нашей. Инфильтратометрия приятная. УГВ в этом году 2 метра и выше. Вы что-то напутали и с объемами, и со схемой. Naupv верно заметил - в Новоселках автономная канакана строится весьма тривиально, гавлное, с обїемами не напутать. Гляньте туточки и вокруг. А вот тут хорошо теория разложена Змінено 24 червня 2019 користувачем Блуждающий ТВЭЛ 2 Посилання на коментар Поділитися на інших сайтах More sharing options...
Блуждающий ТВЭЛ Опубліковано: 2 липня 2019 Поділитись Опубліковано: 2 липня 2019 Было приятно увидеться, как движется стройка? Что решили с объемами камер? Добавлено через 1 минуту Добрый день! Заинтересован в модернизации текущего варианта канализации в частном доме: с. Новоселки, Вышгородский р-н, Киевская область. Грунт - песок, уровень грунтовых не выше 4 метров. ..... Кстати уточню, уровень грунтовых в Новоселках по геологичке 3.5 метра, по факту на 2019 год - менее 2 метров (вы сами видели). К сентябрю упадет, надеюсь. Посилання на коментар Поділитися на інших сайтах More sharing options...
Saoner Опубліковано: 2 липня 2019 Автор Поділитись Опубліковано: 2 липня 2019 Было приятно увидеться, как движется стройка? Что решили с объемами камер? Добавлено через 1 минуту Кстати уточню, уровень грунтовых в Новоселках по геологичке 3.5 метра, по факту на 2019 год - менее 2 метров (вы сами видели). К сентябрю упадет, надеюсь. Взаимно! На сегодняшний день выкопали 1.5 метра в глубину и 3 в диаметре. Завезли 3 2 метровых кольца, я насверлил в двух дырок. Завтра-послезавтра закончат копать, установим кольца и засыпем снаружи щебнем с изоляцией от грунта геотекстилем. Щебень будет до уровня трубы. По глубине еще не определились. Вход во 2 яму - 124 см от уровня грунта. Если отступать 10 см ниже, то вход в 3 колодец будет уже 140 см (10 см + 3 метра по 2 см уклон). Следовательно выход в 140 см означает, что полезного объема от дренажного колодца останется : нижнее кольцо (90 см) + 2/3 второго кольца. Верхнее будет "гулять". Или же есть второй вариант: копать на 3.75 м и сверху трех колец ставить крышку (15 см высотой) и вставку (кольцо 90 см высотой). В таком случае третье кольцо будет использоваться, но есть шанс, что ниже 3.5 метров будет вода уже (по опыту прошлой ямы). Мне первый вариант как-то рациональнее кажется. Ваше мнение? Посилання на коментар Поділитися на інших сайтах More sharing options...
naupv Опубліковано: 2 липня 2019 Поділитись Опубліковано: 2 липня 2019 Зря вы сверлили. Обычно это нужно делать после установки и засыпки. В третий колодец совсем не обязательно придерживаться правил уклонов. Главное без противоуклона и даже можно на уровне перелива во второй с первого. Сообщающиеся сосуды сделают переток. Посилання на коментар Поділитися на інших сайтах More sharing options...
Блуждающий ТВЭЛ Опубліковано: 3 липня 2019 Поділитись Опубліковано: 3 липня 2019 Взаимно! На сегодняшний день выкопали 1.5 метра в глубину и 3 в диаметре. Завезли 3 2 метровых кольца, я насверлил в двух дырок. Завтра-послезавтра закончат копать, установим кольца и засыпем снаружи щебнем с изоляцией от грунта геотекстилем. Щебень будет до уровня трубы. По глубине еще не определились. Вход во 2 яму - 124 см от уровня грунта. Если отступать 10 см ниже, то вход в 3 колодец будет уже 140 см (10 см + 3 метра по 2 см уклон). Следовательно выход в 140 см означает, что полезного объема от дренажного колодца останется : нижнее кольцо (90 см) + 2/3 второго кольца. Верхнее будет "гулять". Или же есть второй вариант: копать на 3.75 м и сверху трех колец ставить крышку (15 см высотой) и вставку (кольцо 90 см высотой). В таком случае третье кольцо будет использоваться, но есть шанс, что ниже 3.5 метров будет вода уже (по опыту прошлой ямы). Мне первый вариант как-то рациональнее кажется. Ваше мнение? Ну, вы видели как сделано у меня, кольца опущены в землю ниже уровня трубы. Таким образом работают все кольца. Нет смысла надставлять нерабочие кольца - лучше опустите пониже и засыпьте, в следующий раз вы дренаж вскроете лет через 10-20. Насчет дырок, раз уж решили - то действительно, сверлить лучше по готовому сооружению. Кольцо не настолько прочное, как кажется, а вы его ослабили перед манипуляциями. И сам дренажный колодец можете тоже засыпать щебнем. Да, и не забудьте о вентиляции - в дренажную камеру должен подаваться воздух. Посилання на коментар Поділитися на інших сайтах More sharing options...
naupv Опубліковано: 3 липня 2019 Поділитись Опубліковано: 3 липня 2019 Да не сможет он ниже. Там песок и вода. Роешь глубже, осыпается, и вода хлещет. Мы его земляку на три кольца котлован рыли почти целый день, думали воронка будет и на соседском участке Посилання на коментар Поділитися на інших сайтах More sharing options...
Блуждающий ТВЭЛ Опубліковано: 4 липня 2019 Поділитись Опубліковано: 4 липня 2019 Да не сможет он ниже. Там песок и вода. Роешь глубже, осыпается, и вода хлещет. Мы его земляку на три кольца котлован рыли почти целый день, думали воронка будет и на соседском участке Согласен. Вода у нас сейчас на двух метрах и не хочет уходить. Хотя, если не заниматься плясками с дырками и обсыпкой щебнем, тогда все проще - можно внутри копать и опустить кольца. Но копать придется быстро. :D Насколько понимаю, сосед рассматривает вариант с принудительной перекачкой в дренаж, насосом с поплавковым выключателем. Я на такие варианты слегка морщусь, боюсь, агрессивная среда сожрет насос со временем + появляется потенциальная точка отказа. Который (отказ) по закону бутерброда шредингера, случится в аккурат при -25`C в метель, после 6-часового отключения света. И долби потом лед над намертво вмерзшим люком. Аварийный перелив поможет, но если есть перелив - на кой тогда насос? Добавлено через 10 минут Взаимно! На сегодняшний день выкопали 1.5 метра в глубину и 3 в диаметре. Завезли 3 2 метровых кольца, я насверлил в двух дырок. Завтра-послезавтра закончат копать, установим кольца и засыпем снаружи щебнем с изоляцией от грунта геотекстилем. Щебень будет до уровня трубы. По глубине еще не определились. Вход во 2 яму - 124 см от уровня грунта. Если отступать 10 см ниже, то вход в 3 колодец будет уже 140 см (10 см + 3 метра по 2 см уклон). Следовательно выход в 140 см означает, что полезного объема от дренажного колодца останется : нижнее кольцо (90 см) + 2/3 второго кольца. Верхнее будет "гулять". Или же есть второй вариант: копать на 3.75 м и сверху трех колец ставить крышку (15 см высотой) и вставку (кольцо 90 см высотой). В таком случае третье кольцо будет использоваться, но есть шанс, что ниже 3.5 метров будет вода уже (по опыту прошлой ямы). Мне первый вариант как-то рациональнее кажется. Ваше мнение? Еще раз прочитал. Смотрите, представьте себе режим работы вашего дренажа по состоянию на сейчас. Если у вас вода как у нас - 2 метра, зарыться вам будет сложно, и даже первое кольцо, которое закопаете, будет дном в воде. С такими глубинами, возможно, насос - единственный вариант, но есть риски - описал выше. Посилання на коментар Поділитися на інших сайтах More sharing options...
naupv Опубліковано: 4 липня 2019 Поділитись Опубліковано: 4 липня 2019 Если дренажник нерж, нифига ему в той среде не будет. А что бы в зимний тихий морозный вечер без света вода не подперла перелив, ставим (подвешиваем) насос глубже, что бы всегда между переливом и поплавком был какой-никакой запас на пополнение. Да и при выключении света, воды вы тоже расходовать будете мин, скважинный насос тоже ведь не работает 1 Посилання на коментар Поділитися на інших сайтах More sharing options...
Блуждающий ТВЭЛ Опубліковано: 4 липня 2019 Поділитись Опубліковано: 4 липня 2019 Если дренажник нерж, нифига ему в той среде не будет. А что бы в зимний тихий морозный вечер без света вода не подперла перелив, ставим (подвешиваем) насос глубже, что бы всегда между переливом и поплавком был какой-никакой запас на пополнение. Да и при выключении света, воды вы тоже расходовать будете мин, скважинный насос тоже ведь не работает Таким образом, рабочий объем камеры равен примерно размаху (двойной длине кабеля) поплавка насоса. И аварийный запас сверху. И это, я имел в виду сгорание, заклинку или нарушение контакта после длительных выключений света. Когда подача воды запустилась, а откачка - нет. И никто этого не видит под сугробом. Посилання на коментар Поділитися на інших сайтах More sharing options...
naupv Опубліковано: 4 липня 2019 Поділитись Опубліковано: 4 липня 2019 И никто этого не видит под сугробом. Особо задротливые перестраховщики, суют туда еще один поплавок. При достижении критического уровня в доме срабатывает ревун, спизж......й с какого-то завода Посилання на коментар Поділитися на інших сайтах More sharing options...
Блуждающий ТВЭЛ Опубліковано: 4 липня 2019 Поділитись Опубліковано: 4 липня 2019 Особо задротливые перестраховщики, суют туда еще один поплавок. При достижении критического уровня в доме срабатывает ревун, спизж......й с какого-то завода - чтобы выбить люк в небо? Эффектно, впечатлен Посилання на коментар Поділитися на інших сайтах More sharing options...
Diver Опубліковано: 7 липня 2019 Поділитись Опубліковано: 7 липня 2019 переливом и поплавком был какой-никакой запас на пополнение. Да и при выключении света, воды вы тоже расходовать будете мин, скважинный насос тоже ведь не работает Задавался вопросом - вот делают очень дорогие септики и т.д. С автоматическими системами и прочим. Не спорю- оправдано. Но если уже решаться на расходы, может есть смысл заранее в доме разделить канализацию с кухни и с туалета? Сделать сливы в свои колодца. Да, это дороже, но ведь в итоге можно получить много плюсов. И септик с душа и с кухни - может работать совсем по иному принципу, и быть намного экономичнее в обслуживании. Неужели никто так не делал, не задумывался? Посилання на коментар Поділитися на інших сайтах More sharing options...
naupv Опубліковано: 7 липня 2019 Поділитись Опубліковано: 7 липня 2019 Так делают некоторые застройщики. Разделяют серые и черные стоки. 1 Посилання на коментар Поділитися на інших сайтах More sharing options...
Saoner Опубліковано: 7 липня 2019 Автор Поділитись Опубліковано: 7 липня 2019 В четверг все закончили, но еще не переходили. Решили не заморачиваться с насосом и соединили 2 и 3 яму 110-й трубой. По итогу яма вышла 3х3. Вход в третий колодец на уровне верхушки второго кольца. На трех метрах воды не было, но ребята сказали, что песок уже идет мокроватый и решили дальше не копать. По финансам вышло: 16.000 земляные работы + засыпка щебня (1м куб 400 грн), 2.000 доставка щебня, кольца 3х2м м и крышка по 2100 каждая, щебень 20-40 фракция 360 грн/т (ушло 13-14 тонн на обсыпку 2 колец) и остальное по мелочи. Всего: 34.000 грн. С люком ерунда получилась. Купили пластиковый люк, но как-то он плохо становился на бетонную крышку, зазоры были со всех сторон, как не крути + по высоте надо было его поднимать еще. Потом нашли у себя старый металический люк и он встал как надо, да и высота у него 18 см. Остался вопрос насчет тройников: цеплять только на выходы с 1 и 2 ямы или поставить еще на вход во 2 яму? Посилання на коментар Поділитися на інших сайтах More sharing options...
Блуждающий ТВЭЛ Опубліковано: 8 липня 2019 Поділитись Опубліковано: 8 липня 2019 В четверг все закончили, но еще не переходили. Решили не заморачиваться с насосом и соединили 2 и 3 яму 110-й трубой. По итогу яма вышла 3х3. Вход в третий колодец на уровне верхушки второго кольца. [ATTACH]664078[/ATTACH] На трех метрах воды не было, но ребята сказали, что песок уже идет мокроватый и решили дальше не копать. По финансам вышло: 16.000 земляные работы + засыпка щебня (1м куб 400 грн), 2.000 доставка щебня, кольца 3х2м м и крышка по 2100 каждая, щебень 20-40 фракция 360 грн/т (ушло 13-14 тонн на обсыпку 2 колец) и остальное по мелочи. Всего: 34.000 грн. С люком ерунда получилась. Купили пластиковый люк, но как-то он плохо становился на бетонную крышку, зазоры были со всех сторон, как не крути + по высоте надо было его поднимать еще. Потом нашли у себя старый металический люк и он встал как надо, да и высота у него 18 см. Остался вопрос насчет тройников: цеплять только на выходы с 1 и 2 ямы или поставить еще на вход во 2 яму? Тройники ставятся на перемычке между ямами 1-2, и на выходе из ямы 2 - тройник + керамзито-ершовый (стеклосетка) фильтр желательно. Фильтр работает снизу-вверх, т.е. на выходе из ямы 2 повернутое вверх колено 90. И в целом, какая получилась схема? Чертежик не делали? Посилання на коментар Поділитися на інших сайтах More sharing options...
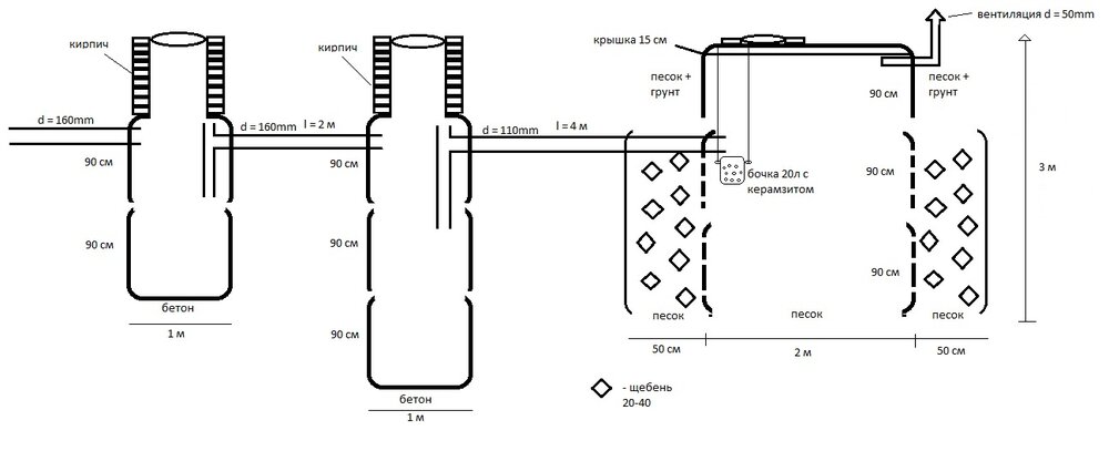
Saoner Опубліковано: 8 липня 2019 Автор Поділитись Опубліковано: 8 липня 2019 (змінено) Тройники ставятся на перемычке между ямами 1-2, и на выходе из ямы 2 - тройник + керамзито-ершовый (стеклосетка) фильтр желательно. Фильтр работает снизу-вверх, т.е. на выходе из ямы 2 повернутое вверх колено 90. И в целом, какая получилась схема? Чертежик не делали? Чертеж набросал. Изначально в первом сообщении я, мягко говоря, преувеличил объемы первой и второй ямы. Реальная картина на схеме. У меня ведро будет висеть в 3 колодце и вода будет в него попадать сверху. В таком случае его проще обслуживать - достаточно просто поднять вверх и промыть. Для чего тройник на входе во вторую яму?будет же забиваться он, если первый тройник пропустит что-то. Змінено 8 липня 2019 користувачем Saoner Посилання на коментар Поділитися на інших сайтах More sharing options...
Блуждающий ТВЭЛ Опубліковано: 9 липня 2019 Поділитись Опубліковано: 9 липня 2019 Чертеж набросал. Изначально в первом сообщении я, мягко говоря, преувеличил объемы первой и второй ямы. Реальная картина на схеме. У меня ведро будет висеть в 3 колодце и вода будет в него попадать сверху. В таком случае его проще обслуживать - достаточно просто поднять вверх и промыть. Для чего тройник на входе во вторую яму?будет же забиваться он, если первый тройник пропустит что-то. [ATTACH]664153[/ATTACH] Тройники между камерами 1-2 опускаются раструбом на 50-70см. Это ниже уровня корки в первой камере, поэтому ничего не пропустит. И способствует осаждению мелкого осадка на дно второй камеры, и за счет ламинарного потока, и за счет направления вниз. В итоге такая конструкция уменьшает вынос в третью камеру (в дренаж).То есть тройники (когда у вас комплект труб меду камерами 1-2 похож на букву Н) - это уже давно не обсуждается. Второе. Фильтр-ведро должен стоять в камере 2, где у вас вместо него стоит тройник, и поток должен идти сверху. Это делается для того, чтобы уменьшить вынос (опять же) мелкой фракции, и по-максимуму оставить ил в камере 2. Так вы продлеваете интервал обслуживания вашего дренажа. Наливание грязи в ведро с керамзитом закончится тем, что у вас либо ил будет пролетать через керамзит, либо быстро его забьет, и будет переливаться через верх. Так что вам есть куда модернизировать, схемы в помощь. Посилання на коментар Поділитися на інших сайтах More sharing options...
StNick Опубліковано: 9 липня 2019 Поділитись Опубліковано: 9 липня 2019 Второе. Фильтр-ведро должен стоять в камере 2, А можете показать фотки монтажа этого места? Приходилось уже это поднимать? сколько весит? Посилання на коментар Поділитися на інших сайтах More sharing options...
naupv Опубліковано: 9 липня 2019 Поділитись Опубліковано: 9 липня 2019 А можете показать фотки монтажа этого места? Приходилось уже это поднимать? сколько весит? Мы так делали раньше. Коля, мрак. Уж лучше раз в год вынуть из камеры 3 и выбросить нафиг тот керамзит и засыпать новый. По камере 2 ,что в ней ведро, что в третьей, особо отличий никаких нет с ИЛами Посилання на коментар Поділитися на інших сайтах More sharing options...
StNick Опубліковано: 9 липня 2019 Поділитись Опубліковано: 9 липня 2019 По камере 2 ,что в ней ведро, что в третьей, особо отличий никаких нет с ИЛами это понял. я так и не понял как и "под каким углом" должна заходить выходная труба в это ведро сверху сбоку снизу и/т/д ? Если эта труба засверливается в ведро и заводится внутрь как тогда это ведро поднять для обслуживания? Посилання на коментар Поділитися на інших сайтах More sharing options...
naupv Опубліковано: 9 липня 2019 Поділитись Опубліковано: 9 липня 2019 это понял. я так и не понял как и "под каким углом" должна заходить выходная труба в это ведро сверху сбоку снизу и/т/д ? Если эта труба засверливается в ведро и заводится внутрь как тогда это ведро поднять для обслуживания? Мало того, желательно трубу в ведро нужно засунуть и загерметезировать вокруг. Труба вводится выше керамзита и принимает уже прошедшую очистку воду. Был случай, приезжаем, а там этот фильтр полностью в стоках, и все фигачит через перелив в дренаж Так что уж лучше сверху на фильтр льется, чем снизу подпирает. Посилання на коментар Поділитися на інших сайтах More sharing options...
StNick Опубліковано: 10 липня 2019 Поділитись Опубліковано: 10 липня 2019 Мало того, желательно трубу в ведро нужно засунуть и загерметезировать вокруг. Труба вводится выше керамзита и принимает уже прошедшую очистку воду. Был случай, приезжаем, а там этот фильтр полностью в стоках, и все фигачит через перелив в дренаж Так что уж лучше сверху на фильтр льется, чем снизу подпирает. идея понятна и в комерческих так и сделано но как наколхозить такое же внутри бетонных колец не ясно: 1. Герметичная со всех сторон емкость с засыпкой, с патрубком выхода в дренаж сверху 2. Легко обслуживаемая корзина Как вариант система "корзина в бочке": 1. подобрать бочку диаметром совпадающим с диаметром типового отверстия (60мм) в крышках бетонных колец. 2. Приклеить ее к этому отверстию изнутри бетонного кольца 3. просверлить в ней отверстие 110 мм вывод в дренаж. 3. Снизу этой бочки отрезать дно. 4. В эту бочку вставить корзину(конусной формы) чтобы она плотно вошла в дно бочки. 5. Корзина легко вынимаемая в нее засыпать керамзит. Посилання на коментар Поділитися на інших сайтах More sharing options...
Блуждающий ТВЭЛ Опубліковано: 10 липня 2019 Поділитись Опубліковано: 10 липня 2019 А можете показать фотки монтажа этого места? Приходилось уже это поднимать? сколько весит? Вот так все выглядит, по-моему, в этой теме уже выкладывал. Биофильтр из канистры. Сверху сервисное окно и ершовый наполнитель (стеклосетка в много слоев). Даже при залповом переполнении все равно все нефильтрованное :D остается в камере II и в дренаж не выносится. Только я оговорился-описался, поток должен идти не "сверху", а "вверх". Таким образом, крупные частицы силой тяжести увлекаются вниз, мелочь остается в фильтре, а промывка фильтра делается сверху-вниз, встречным потоком. Часто вынимать-перемывать особого смысла не вижу, по крайней мере, у меня уже 2 года простояло - в третьей камере "водичка", ТС подтвердит, вместе черпали на пробу. 1 Посилання на коментар Поділитися на інших сайтах More sharing options...
Рекомендовані повідомлення
Створіть акаунт або увійдіть у нього для коментування
Ви маєте бути користувачем, щоб залишити коментар
Створити акаунт
Зареєструйтеся для отримання акаунта. Це просто!
Зареєструвати акаунтУвійти
Вже зареєстровані? Увійдіть тут.
Увійти зараз