Перейти до публікації
Пошук в
  • Додатково...
Шукати результати, які містять...
Шукати результати в...

Собственный проект 2-х этажного дома. Конструктивы и критика приветствуется

master_yan

Рекомендовані повідомлення

Доброго времени... Вот такой вариант нарисовался:

 

 

 

 

P.S. Изображения фасадов это не дизайн, а исключительно для понимания архитектуры дома в целом.

483297596_1-V2.thumb.jpg.1c780895e10c4c92b0a59a74f18d89ed.jpg

929524141_2-V2.1.jpg.a928c999a1b26fdf1adf56a56867fcd8.jpg

1601208647_1V2.0.thumb.jpg.16110ffe747094bb20e2fa0eeaee96f3.jpg

1562070666_2V2.0.thumb.jpg.6d1b1550aad9709735acce0cc2b4db11.jpg

913069872_3V2.0.thumb.jpg.64f227783c1544e14cb615f07605f0d0.jpg

  • Лайк 1
Посилання на коментар
Поділитися на інших сайтах

Клас! второй этаж мне ООООЧЕНЬ нравится. Спасибо :) порадовал :)

А на первом наверное таки оставлю корридорную систему - так как не хочу уменьшать площадь санузла (мне там и стиралку и сушку поставить надо, и бойлер :) )

 

Теперь мне надо сказать жене что ей тоже нравится :)

Посилання на коментар
Поділитися на інших сайтах

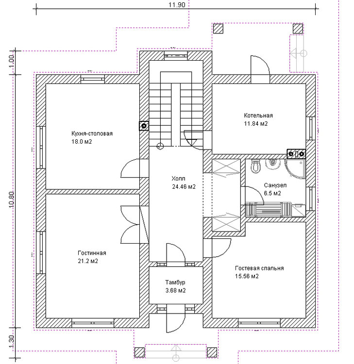
Рад, что смог помочь, но куда поставите шкаф для верхней одежды на первом этаже? Две ниши справа и слева вмещали в себя шкафы 1600х600 мм, может тогда стоит увеличить санузел, уменьшив ниши под шкафы до 1200х600 мм, а выглядеть это будет так:

1215384027_V.2.1.thumb.jpg.1060fda63783243e9445cec36e2f335f.jpg

Посилання на коментар
Поділитися на інших сайтах

P.S. На изображении размеры стиральной машины 600 (ширина)х530 (глубина) мм, сушилка занимает место 2000х600 мм. (и дверь в санузел забыл чуток сместить).
Посилання на коментар
Поділитися на інших сайтах

Изначально гостевые шкафы и полочки для обуви я планировал в тамбуре по одной из сторон.

А для себя шкаф для верхней одежды в тех. помещении возле черного хода. Обусловлено тем, что при наличии хоз двора и отдельно стоящего за домом гаража, сами чаще будем пользоваться вторым выходом.

 

Да, товарищи форумчане! Вопрос - является ли балконная дверь в спальне "весомым" источником холода? Весомым настолько, что-бы от нее отказаться.

Посилання на коментар
Поділитися на інших сайтах

  • 5 місяців потому...

Да, давненько я здесь не появлялся :(....

 

Но это мелочи. Зато за эти пол года мы таки домучили свой проект.

И вот что у нас получилось

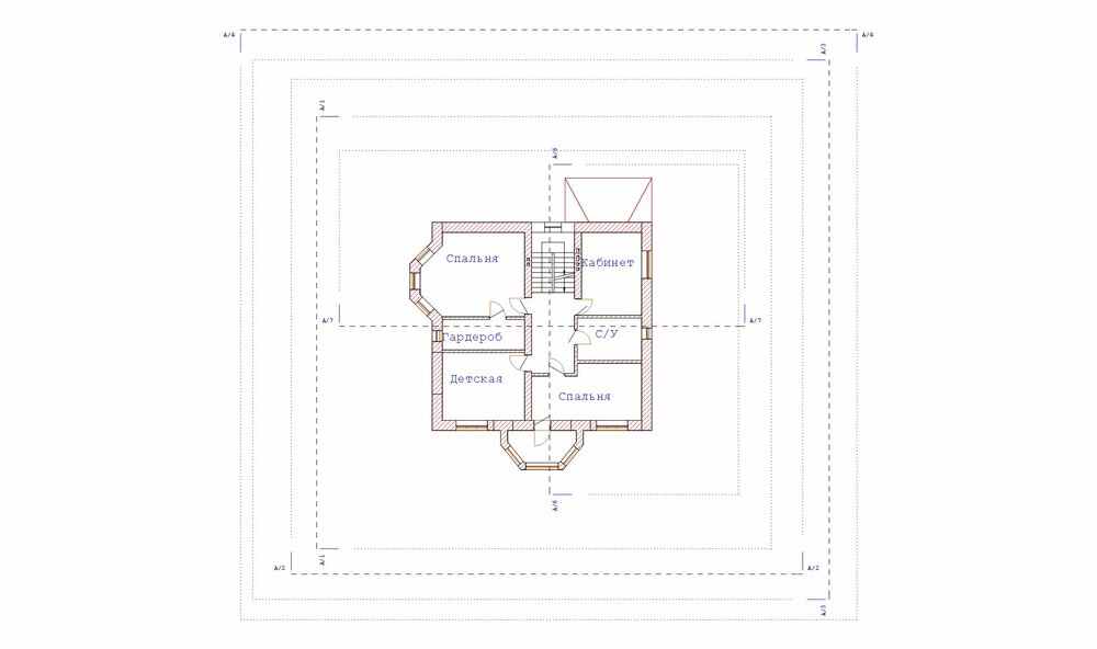
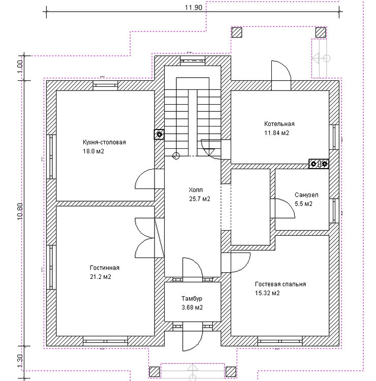
1-й этаж : 913175234_1-.thumb.jpg.913194ea1feb05d89a9775902d3c742c.jpg

2-й этаж : 947787176_2-.thumb.jpg.d71ed3e4537edb8ed7a6a8bedb2cc7d8.jpg

фасады : 633244769_1.jpg.31cf25e5222c3c7cf828b988740c9499.jpg

954158332_2.jpg.dc997f02305806e8ad0c5bfcbed7c0b1.jpg

 

Да - на цвета оформления фасада внимание не обращать - меня этим еще мучает жена ;) (наверное раз 15 уже меняли)

 

Ну и помимо этого еще "маленький" гараж размером 7м х 13 м :lol:.

=======================================

 

И хочется сказать большое спасибо компании которая помогла воплотить наши с женой желания в проекте, и особенно поблагодарить архитектора Романа за его терпение. :beer:

 

=======================================

 

Пы. Сы. когда количество постов будет позволять создать тему в Белом Списке - обязательно отпишусь о денной компании. А если кому интересно, или ищет архитекторов(конструкторов) - пишите в личку, обязательно расскажу что, где и главное сколько :)

Посилання на коментар
Поділитися на інших сайтах

Створіть акаунт або увійдіть у нього для коментування

Ви маєте бути користувачем, щоб залишити коментар

Створити акаунт

Зареєструйтеся для отримання акаунта. Це просто!

Зареєструвати акаунт

Увійти

Вже зареєстровані? Увійдіть тут.

Увійти зараз
×
×
  • Створити...