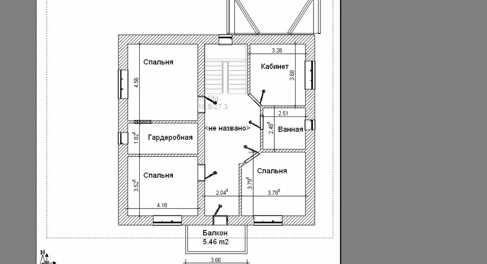
master_yan Опубліковано: 21 жовтня 2009 Поділитись Опубліковано: 21 жовтня 2009 После длительных поисков готового проекта - ничего подходящего так и не нашли Там где нравится планировка - слишком большая площадь Там где нравится фасад и площадь - планировка просто застрелись В итоге нарисовали сами (габариты и несущая стена рассчитаны под стандартные ж/б перекрытия) Просьба оценить и покритиковать наше творение Да, расположение дома на рисунке, соответствует расположению сторон света. Посилання на коментар Поділитися на інших сайтах More sharing options...
Danshow Опубліковано: 22 жовтня 2009 Поділитись Опубліковано: 22 жовтня 2009 Я бы вход в правую нижнюю спальню на втором этаже сделал бы под углом, как в кабинете. Холл второго этаже будет красивее. Добавил бы окна на восток и запад в южных спальнях. Посилання на коментар Поділитися на інших сайтах More sharing options...
arca Опубліковано: 22 жовтня 2009 Поділитись Опубліковано: 22 жовтня 2009 Сколько человек в семье? На втором этаже почему гардеробная с отдельным входом? В каждой спальне будет шкаф все равно стоять? или все будут бегать одеваться через коридор. Не нравится проход к балкону, потеря площади. Посилання на коментар Поділитися на інших сайтах More sharing options...
master_yan Опубліковано: 22 жовтня 2009 Автор Поділитись Опубліковано: 22 жовтня 2009 Я бы вход в правую нижнюю спальню на втором этаже сделал бы под углом, как в кабинете. Холл второго этаже будет красивее. Добавил бы окна на восток и запад в южных спальнях. Сейчас тоже думаю над дверью в южную спальню.... А вот по поводу окон... хм.... не много ли окон для спален ? тем более что это по плану - детские.. Сколько человек в семье? На втором этаже почему гардеробная с отдельным входом? В каждой спальне будет шкаф все равно стоять? или все будут бегать одеваться через коридор. Не нравится проход к балкону, потеря площади. Дом на семью из 4 (может 5:) ) человек ... В основном гардеробная для родителей, и хранения несезонной верхней одежды. В детских спальнях шкафы будут в любом случае... Посилання на коментар Поділитися на інших сайтах More sharing options...
arca Опубліковано: 22 жовтня 2009 Поділитись Опубліковано: 22 жовтня 2009 подумайте о переносе спальни родителей в комнату рядом с ванной. и возможности сделать балкон для этой спальни. Во первых она ориентированна на улицу я так понимаю, во вторых, при таких небольших площадях имеет смысл увеличивать жилую площадь. И однозначно ванная на первом этаже большая, а на втором маленькая, должно быть наоборот. На первом этаже одна спальная комната, а на втором три. Посилання на коментар Поділитися на інших сайтах More sharing options...
master_yan Опубліковано: 22 жовтня 2009 Автор Поділитись Опубліковано: 22 жовтня 2009 Делать спальню на 1-м честно говоря не хочу, быстрее всего туда перенесется кабинет... По поводу ванной - на первом этаже ванная - постирочная, а на втором спокойно помещается ванная, туалет и умывальник что еще надо для щастья ;). Балкон - более декоративный, нежели практический элемент. Посилання на коментар Поділитися на інших сайтах More sharing options...
InSAn Опубліковано: 22 жовтня 2009 Поділитись Опубліковано: 22 жовтня 2009 Дом на семью из 4 (может 5:) ) человек ... Подумайте тогда о двух санузлах на втором этаже. В идеале - вход в "хозяйский" с/у - из хозяйской спальни. Посилання на коментар Поділитися на інших сайтах More sharing options...
arca Опубліковано: 22 жовтня 2009 Поділитись Опубліковано: 22 жовтня 2009 Подумайте тогда о двух санузлах на втором этаже. В идеале - вход в "хозяйский" с/у - из хозяйской спальни. Только хотела написать. А постирочную на первом этаже лучше разделить с гостевым туалетом. Если на первом этаже не будет спальни то достаточно унитаза и умывальника. А в постирочной можно организовать стирку, там же сушку белья в зимнее время и глажку. Можно разделить с/у и сделать проход в постирочную через с/у. Еще посмотрите в живую площадь для прихожей разойдетесь вы там если одновременно 4-5 человек войдет. Где можно будет присесть, где шкаф поставить. А террасу вы не хотите сделать из гостиной и кухни? Посилання на коментар Поділитися на інших сайтах More sharing options...
master_yan Опубліковано: 22 жовтня 2009 Автор Поділитись Опубліковано: 22 жовтня 2009 С террасой все не так просто... если ее сделать из гостинной - то смотреть придется на забор обобенности расположения дома на участке. А вместо террасы - я планирую поставить большую беседку в саду... с маггалом и прочими радостями По поводу прихожей... задумался Посилання на коментар Поділитися на інших сайтах More sharing options...
arca Опубліковано: 22 жовтня 2009 Поділитись Опубліковано: 22 жовтня 2009 С террасой все не так просто... если ее сделать из гостинной - то смотреть придется на забор обобенности расположения дома на участке. А вместо террасы - я планирую поставить большую беседку в саду... с маггалом и прочими радостями По поводу прихожей... задумался а если сделать террасу узкую из гостинной и широкую в сторону сада угловую? Еще по тому как будут лежать перекрытия было бы правельнее поменять местами с/у и лестницу. Посилання на коментар Поділитися на інших сайтах More sharing options...
Danshow Опубліковано: 22 жовтня 2009 Поділитись Опубліковано: 22 жовтня 2009 Сейчас тоже думаю над дверью в южную спальню.... А вот по поводу окон... хм.... не много ли окон для спален ? тем более что это по плану - детские.. Я сова, а сын жаворонок. Соответственно мне в спальне желательно окно на запад, а ему на восток. Так как окна в спальнях с южной стены убрать не получится (внешний вид фасада дома), может окна на восток-запад для вас лишние. Я примерял под себя. Посилання на коментар Поділитися на інших сайтах More sharing options...
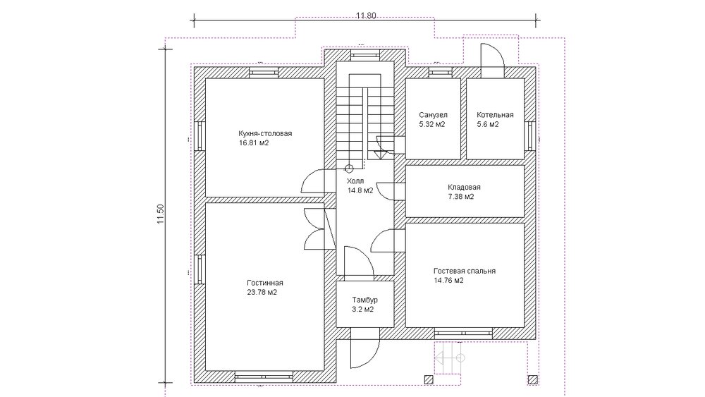
ИгорьН Опубліковано: 23 жовтня 2009 Поділитись Опубліковано: 23 жовтня 2009 Гыы! Почти мой проект, по тем же причинам тоже сам лепил. Только у меня лестничный марш с санузлами местами поменять надо, за счет этого уменьшится ширина коридора-2,5м многовато. Одна спальня на 2 эт имеет два окна. В правой части эркер: геморно в стройке, но эстетично+доп. освещенность спален. По поводу гардеробной на 2 эт, я ее разделил на 2 части, получились встроеные шкафы с отдельным входом из каждой спальни, а не с коридора. Кухня со столовой тоже имеют общий вход из коридора и разделены функционально аркой, занимают всю правую половину на вашем чертеже, там где гостевая у меня гостинная (не посчитал нужным для гостей делать отдельную спальню-если надо разложу им диван в гостинной). Из столовой у меня выход на крытую терассу 3*3м-люблю летом на улице кушать, да и гостей принимать комфортней на свежем воздухе. Балкон у меня продлен и есть второй выход на него из спальни. В топочную я не делал выход на улицу, да и уменьшть ее можно. Под лестницей-кладовочку. Посилання на коментар Поділитися на інших сайтах More sharing options...
arca Опубліковано: 23 жовтня 2009 Поділитись Опубліковано: 23 жовтня 2009 Народ рисуйте хотя бы примерно прежде чем ставить стены и окна мебель. А то наделаете окон, потом шкаф поставить некуда будет и кровать будет стоять не так как хочется, а как придется.:wink: Посилання на коментар Поділитися на інших сайтах More sharing options...
master_yan Опубліковано: 24 жовтня 2009 Автор Поділитись Опубліковано: 24 жовтня 2009 а если сделать террасу узкую из гостинной и широкую в сторону сада угловую? Еще по тому как будут лежать перекрытия было бы правельнее поменять местами с/у и лестницу.Если посмотреть на несущие стены - то поменять местами лестницу и санузел без использования монолита - невозможно! План уже привязан к стандартным размерам панелей... Посилання на коментар Поділитися на інших сайтах More sharing options...
master_yan Опубліковано: 24 жовтня 2009 Автор Поділитись Опубліковано: 24 жовтня 2009 Я сова, а сын жаворонок. Соответственно мне в спальне желательно окно на запад, а ему на восток. Так как окна в спальнях с южной стены убрать не получится (внешний вид фасада дома), может окна на восток-запад для вас лишние. Я примерял под себя. Имею опыт проживания в доме с окнами на север - грустненько Солнышка совсем в комнатах нет кроме касательного Посилання на коментар Поділитися на інших сайтах More sharing options...
master_yan Опубліковано: 24 жовтня 2009 Автор Поділитись Опубліковано: 24 жовтня 2009 Народ рисуйте хотя бы примерно прежде чем ставить стены и окна мебель. А то наделаете окон, потом шкаф поставить некуда будет и кровать будет стоять не так как хочется, а как придется.:wink: 100% согласен!!! Чем мы и займеся вдвоем с женой долгими зимними вечерами И надеюсь до весны все утрясем - если не подеремся. Тем более что окна и перегородки на 2-м этаже почти все не принципиальны! (кроме фасада и несущей стены) Так что можно все смело двигать. 2 санузла на этаже считаю лишним, и двери из гардеробной в коридор убрал - это будет личная гардеробная (так сказала жена) Посилання на коментар Поділитися на інших сайтах More sharing options...
master_yan Опубліковано: 24 жовтня 2009 Автор Поділитись Опубліковано: 24 жовтня 2009 Гыы! Почти мой проект, по тем же причинам тоже сам лепил. Только у меня лестничный марш с санузлами местами поменять надо, за счет этого уменьшится ширина коридора-2,5м многовато. Одна спальня на 2 эт имеет два окна. В правой части эркер: геморно в стройке, но эстетично+доп. освещенность спален. По поводу гардеробной на 2 эт, я ее разделил на 2 части, получились встроеные шкафы с отдельным входом из каждой спальни, а не с коридора. Кухня со столовой тоже имеют общий вход из коридора и разделены функционально аркой, занимают всю правую половину на вашем чертеже, там где гостевая у меня гостинная (не посчитал нужным для гостей делать отдельную спальню-если надо разложу им диван в гостинной). Из столовой у меня выход на крытую терассу 3*3м-люблю летом на улице кушать, да и гостей принимать комфортней на свежем воздухе. Балкон у меня продлен и есть второй выход на него из спальни. В топочную я не делал выход на улицу, да и уменьшть ее можно. Под лестницей-кладовочку. А дай ка свой проект на посмотреть Второй выход у меня крайне необходимая вещь, так как за домом гараж и хоздвор. От еркера отказался по причине гемороя при стройке и дополнительного источника холода. А вот насчет терассы еще в раздумье.... может еще и приделаем со стороны гостинной. А вот насчет балкона - если его продлить - то надо в обе стороны... а потом еще и крыльцо расширять, чтобы фасад был симетричным. Посилання на коментар Поділитися на інших сайтах More sharing options...
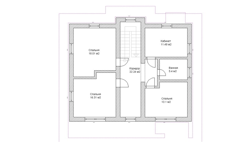
ИгорьН Опубліковано: 26 жовтня 2009 Поділитись Опубліковано: 26 жовтня 2009 Выкладываю планы. Меньший размер в осях необходимо увеличить на 0,5-0,8 м, но у меня по-другому не получалось, шо маю-то маю. Помещение 202 разделено на 2 части и имеет отдельные входы из смежных комнат. Помещ 207 не воплотилось в жизнь. Архитектор мой проект продал уже пару раз. 1 Посилання на коментар Поділитися на інших сайтах More sharing options...
ИгорьН Опубліковано: 26 жовтня 2009 Поділитись Опубліковано: 26 жовтня 2009 И фасады. От проектного решения убрал белые окантовки окон и подшивка коричневая. И окно чердачное сделать треугольным оказалось непросто, круглое теперь. Эркерные окна чуть уменьшены по высоте. 1 Посилання на коментар Поділитися на інших сайтах More sharing options...
master_yan Опубліковано: 28 жовтня 2009 Автор Поділитись Опубліковано: 28 жовтня 2009 СЕнкс - познавательно! А есть фото готового дома ? интересуют фасады, так как мы в процессе рездумья Посилання на коментар Поділитися на інших сайтах More sharing options...
master_yan Опубліковано: 7 листопада 2009 Автор Поділитись Опубліковано: 7 листопада 2009 Такс... послушал критику - и согласился с переделкой второго этажа . Господин Тугарин предложите вариант украшения фасада плз Посилання на коментар Поділитися на інших сайтах More sharing options...
Tugarin Опубліковано: 8 листопада 2009 Поділитись Опубліковано: 8 листопада 2009 Здравствуйте, я решил для начала предложить свой вариант, привязываясь также к размерам стандартных плит перекрытия. P.S. Изображения фасадов это не дизайн, а исключительно для понимания архитектуры дома в целом. Посилання на коментар Поділитися на інших сайтах More sharing options...
Tugarin Опубліковано: 8 листопада 2009 Поділитись Опубліковано: 8 листопада 2009 Вот такой другой вариант второго этажа (после прочтения всей ветки). Посилання на коментар Поділитися на інших сайтах More sharing options...
master_yan Опубліковано: 8 листопада 2009 Автор Поділитись Опубліковано: 8 листопада 2009 Хм... спасибо вариант развязки дверей второго этажа мне понравился... но есть пара замечаний-требований: 1. на первом этаже обязателен выход во двор к гаражу с крыльцом(небольшой терраской) так как есть еще и хоздвор 2. не нравится боковой вход на крыльцо... хочу прямое открытое крыльцо с балконом сверху (балкон скорее всего с накрытием) 3. на втором этаже отдельный гардероб для хозяйской спальни (иначе жена из дому выгонит )) ) 4. на втором этаже давит жаба по поводу большого коридора к балкону. как вариант сделать его в одной из спален (по идее хозяйской но необязательно) Да размеры плюси минус метр - полтора по фасаду большой роли не играют Хотя балкон в спальне дополнительный источник холода. Наверное пусть он будет их корридора - жаба переживет Посилання на коментар Поділитися на інших сайтах More sharing options...
master_yan Опубліковано: 8 листопада 2009 Автор Поділитись Опубліковано: 8 листопада 2009 Я даже нашел приблизительный дизайн фасада дома dom-ua.com/index.php?c=195&o=887&n=i Вот только можно ли его сделать из кирпича без использования штукатурки ? Посилання на коментар Поділитися на інших сайтах More sharing options...
Рекомендовані повідомлення
Створіть акаунт або увійдіть у нього для коментування
Ви маєте бути користувачем, щоб залишити коментар
Створити акаунт
Зареєструйтеся для отримання акаунта. Це просто!
Зареєструвати акаунтУвійти
Вже зареєстровані? Увійдіть тут.
Увійти зараз