Gamburger Опубліковано: 28 грудня 2010 Автор Поділитись Опубліковано: 28 грудня 2010 как думаете, нормально ли что на плане с учётом существующих размеров камин в унглу со стороны окна и внешней стены? что - то слабо себе представляю расстановку мебели в таком помещении и с таким расположением камина. Посилання на коментар Поділитися на інших сайтах More sharing options...
AНДРЮША Опубліковано: 28 грудня 2010 Поділитись Опубліковано: 28 грудня 2010 Я бы посоветовал какую нибудь программку дизайнерскую освоить. Например Sweet Home 3D. Я научился за пару часов,( а вот АвтоКад никак). Там можно расставить мебель (в том числе камин) и покрутить с разных сторон. 1 Посилання на коментар Поділитися на інших сайтах More sharing options...
Hopira Опубліковано: 4 січня 2011 Поділитись Опубліковано: 4 січня 2011 Gamburger Хорошо, что решились на архитектора. У меня в голове лично все эти комнаты-коридоры тоже не укладываются как надо%) Надо специалиста искать толкового... Удачного вам проекта и стройки! Посилання на коментар Поділитися на інших сайтах More sharing options...
Gamburger Опубліковано: 6 лютого 2011 Автор Поділитись Опубліковано: 6 лютого 2011 сегодня сделали геологию. не смотря на то, что было +5, под недурственным ветром я порядком замёрз и оставил геологов баловаться с бурением скважин самих проторчав с ними около часа. кому-кому, а уж им то было точно не холодно ) ребята докопались метров до 4,5 ручным буром. вроде как песок практически на всей глубине и никакой воды, что радует. посмотрим что по остальным трём скважинам и что скажет лаборатория. Посилання на коментар Поділитися на інших сайтах More sharing options...
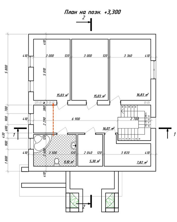
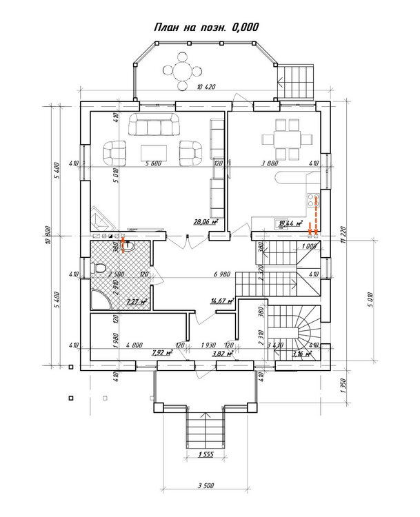
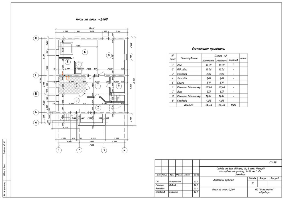
Gamburger Опубліковано: 6 лютого 2011 Автор Поділитись Опубліковано: 6 лютого 2011 на сегодня готов эскизный проект. такие вот планировки и внешний вид пока в общих чертах. внешний вид ещё будет уточняться, пожалуй. Посилання на коментар Поділитися на інших сайтах More sharing options...
Gamburger Опубліковано: 6 лютого 2011 Автор Поділитись Опубліковано: 6 лютого 2011 внешний вид Посилання на коментар Поділитися на інших сайтах More sharing options...
Gamburger Опубліковано: 7 лютого 2011 Автор Поділитись Опубліковано: 7 лютого 2011 геологи пробурили 4 скважины. каждая по 8,5 метров. песок и никакой воды. это радует. у соседей в 600 метрах от нас в скважине вода на глубине 10 метров. так что цоколь можно делать со спокойной душой без лишних затрат. принято решение цокольный этаж делать из фундаментных блоков. не монолит. надеюсь будет дешевле. быстрее - это точно. Посилання на коментар Поділитися на інших сайтах More sharing options...
Атрибут Опубліковано: 9 лютого 2011 Поділитись Опубліковано: 9 лютого 2011 Вижу в проекте вашего дома две трубы на которых установлены Дымники(колпаки на трубы). Мы изготавливаем такие изделия, поэтому обращайтесь если что Посилання на коментар Поділитися на інших сайтах More sharing options...
Шульман Опубліковано: 14 лютого 2011 Поділитись Опубліковано: 14 лютого 2011 на сегодня готов эскизный проект. такие вот планировки и внешний вид пока в общих чертах. внешний вид ещё будет уточняться, пожалуй. Немного критики (сами просили): ИМХО: не понятно но зачем вам две лестнице в доме? не проще бы было сделать одну лестницу, таким образом вы с экономите полезную площадь в доме, а на том месте где по плану лестница в подвал можно было бы расположить в подвале мастерскую например, а на первом этаже - кабинет. Относительно второго этажа - сан узел перенес бы над сан узлом на первом этаже. Относительно планировок комнат, то мне лично не нравится, как в отеле каком то, пересмотрел бы планировку второго этаж полностью. Посилання на коментар Поділитися на інших сайтах More sharing options...
Gamburger Опубліковано: 14 лютого 2011 Автор Поділитись Опубліковано: 14 лютого 2011 Немного критики (сами просили): ИМХО: не понятно но зачем вам две лестнице в доме? не проще бы было сделать одну лестницу, таким образом вы с экономите полезную площадь в доме, а на том месте где по плану лестница в подвал можно было бы расположить в подвале мастерскую например, а на первом этаже - кабинет. Относительно второго этажа - сан узел перенес бы над сан узлом на первом этаже. Относительно планировок комнат, то мне лично не нравится, как в отеле каком то, пересмотрел бы планировку второго этаж полностью. спасибо - по планировкам. планировка связана с желанием создать буфер из нежилых помещений со стороны, где проходит по фасаду участка линия 10квт. чтобы уменьшить возможное влияние электромагнитного излучения на жильцов. оно согласен не впечатляет - но мы нестоль требовательны. да и напугали тут этими линиями высоковольтными. санузел с архитектором обсуджался - с канализацией проблем не должно быть. на это его внимание я обратил. лестници - дело в том, что если делать одну лестницу - то место под лестницей на первом этаже пропадает на лестницу. кроме того - придётся делать одну и достаточно дорогую лестницу чтобы она имела хороший внешний вид (всё таки прихожая). да и по визуализации - мне не понравилось это зрелище - как в подъезде здоровенная лестница на 3 этажа. а так сделаем одну подороже лестницу с первого на второй. под ней можно разместить тоже ведь или кладовку или что -то ещё. место не пропадёт. а лестница в подвал будет подешевле, без особых требований по красоте и материалам. кроме того - есть соображение безопасности. допустим кто-то залез в подвал и оттуда хочет попасть в дом. при одной лестнице - он попадает сразу в жилую зону. а при разных лестницах - сначала в тамбур - который от жилой зоны отделяется хорошими дверями. я учверен что будь у нас участок без дурацкой линии 10кВт - планировки были бы получше. а так - я специально сам нарисовал такие планы. Посилання на коментар Поділитися на інших сайтах More sharing options...
Gamburger Опубліковано: 14 лютого 2011 Автор Поділитись Опубліковано: 14 лютого 2011 электричество - большой головняк. не смотря на то что рядом с участком проходит новенткая линия десятка, рэсовцы уже говорят что на всех вешают реконструкцию линии, что может стоить около 60 штук. и не проверишь ведь нужна ли эта реконструкция - или простое вымагательство. если бы не это - стоимость поставить ТПшку с трансом на 40 кВт озвучивают в 80 тысяч предварительно. ну более - менее. такие дела. Посилання на коментар Поділитися на інших сайтах More sharing options...
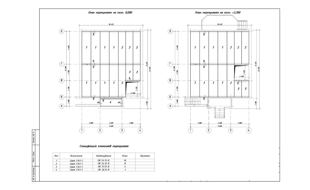
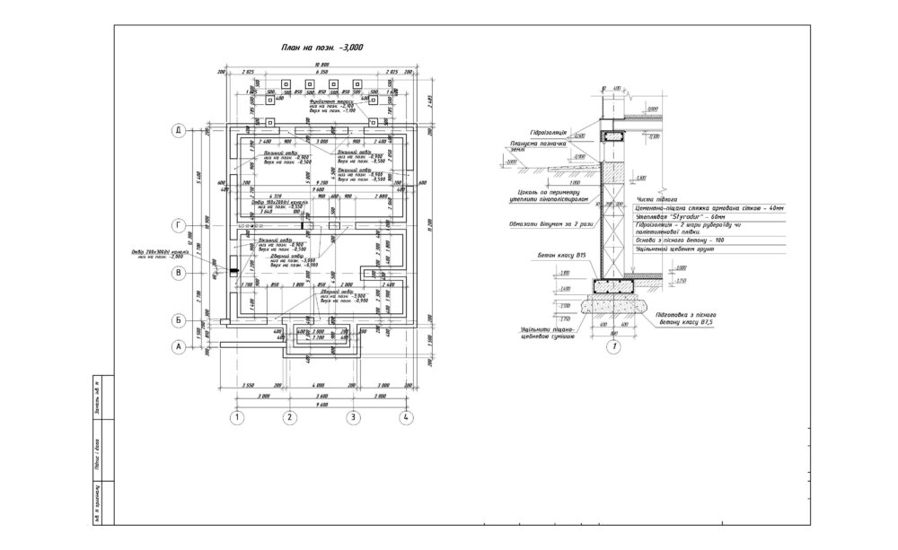
Gamburger Опубліковано: 16 лютого 2011 Автор Поділитись Опубліковано: 16 лютого 2011 пришли чертежи по фундаменту цоколя и перекрытиям. у кого-нить будут замечания? фундамент планируется из ФБС блоков. высота цокольного этажа по разговорам - 2,7 гдето. на чертежах не вижу этих данных. перекрытие - плиты. надеюсь бюджет этой радости не вылезет за 100 кило гривен и судя по опыту некоторых фоумчан цена будет где-то в раёне 80 тыщ. Посилання на коментар Поділитися на інших сайтах More sharing options...
Gamburger Опубліковано: 16 лютого 2011 Автор Поділитись Опубліковано: 16 лютого 2011 на сегодняшний день расходы на всё про всё следующие: вынос границ участка в натуру - 1500 грн топосъёмка 1:500 - 4000 грн геология (4 скважины по 8,5 метров с лабораторными анализами) - 4500 грн проект в обьёме необходимом для оформления стройпаспорта в законном порядке - 15000 грн. итого на сегодня 25 тысяч ... не мало, учитывая что пощупать пока нечего. вроде что-то и делается, но никак не матеарилизуется. но никто и не гворил что будет дёшево. объявляется набор соседей )) для раздела костов на подводку электричесвта рэсовскими воротилами - вымагателями )) кто третьим будет? ))) Посилання на коментар Поділитися на інших сайтах More sharing options...
mspacer Опубліковано: 17 лютого 2011 Поділитись Опубліковано: 17 лютого 2011 на сегодняшний день расходы на всё про всё следующие: вынос границ участка в натуру - 1500 грн топосъёмка 1:500 - 4000 грн геология (4 скважины по 8,5 метров с лабораторными анализами) - 4500 грн проект в обьёме необходимом для оформления стройпаспорта в законном порядке - 15000 грн. итого на сегодня 25 тысяч ... не мало, учитывая что пощупать пока нечего. вроде что-то и делается, но никак не матеарилизуется. но никто и не гворил что будет дёшево. объявляется набор соседей )) для раздела костов на подводку электричесвта рэсовскими воротилами - вымагателями )) кто третьим будет? ))) А что такое топосъемка и для чего она нужна? 15000 это только за стопку бумаг или включает необходимые подписи и печати? Посилання на коментар Поділитися на інших сайтах More sharing options...
Gamburger Опубліковано: 17 лютого 2011 Автор Поділитись Опубліковано: 17 лютого 2011 А что такое топосъемка и для чего она нужна? 15000 это только за стопку бумаг или включает необходимые подписи и печати? топосъёмка это бумажка без которой нельзя оформить стройпаспорт и утвердить проект ну и правильно сделать посадку дома на участка для госорганов. как я понимаю - она показывает перепады высот на участке (рельеф), все существующие комуникации инженерные. 15.000 это за "кипу бумаг" без печатей. ну только для меня это больше чем кипа бумаг - которая покажет как правильно строить, чтобы самому не фантазировать и не напороть косяков самому или строителям, контролировать то, что тебе строят. плюс эта кипа бумаг даёт возможность официально всё пооформлять (разрешение на строительство, сертификат соответствия и т.д) и успокоение что всё будет сделано правильно, по расчётам профессионалов. к тому же всегда есть смета - расчёт количества материалов, точные спецификации. как результат - не нужно самому высчитывать всё и сочинять что-то. это без печатей. с печатями будет намного дороже. мне называли цену в 50000 гривен к примеру. Посилання на коментар Поділитися на інших сайтах More sharing options...
Crash m.d. Опубліковано: 17 лютого 2011 Поділитись Опубліковано: 17 лютого 2011 Простите, пожалуйста, но 4000 грн за топосъемку , мягко говоря, дороговато . Как правило эта процедура стоит 1200 грн. Топосъемка для стройпаспорта не нужна. Нужен проект . Потом выезжает инспектор из районной архитектуры и сам " садит" дом и другие строения на участок. К слову, у меня остались очень хорошие впечатления о Макаровской рай. архитектуре. Стоимость проекта -вопрос творческий и комментировать не берусь (хотя, ИМХО , дорого, наверное с инженерными сетями он у Вас). Посилання на коментар Поділитися на інших сайтах More sharing options...
valya_bes Опубліковано: 18 лютого 2011 Поділитись Опубліковано: 18 лютого 2011 на сегодняшний день расходы на всё про всё следующие: вынос границ участка в натуру - 1500 грн топосъёмка 1:500 - 4000 грн геология (4 скважины по 8,5 метров с лабораторными анализами) - 4500 грн проект в обьёме необходимом для оформления стройпаспорта в законном порядке - 15000 грн. итого на сегодня 25 тысяч ... не мало, учитывая что пощупать пока нечего. вроде что-то и делается, но никак не матеарилизуется. но никто и не гворил что будет дёшево. объявляется набор соседей )) для раздела костов на подводку электричесвта рэсовскими воротилами - вымагателями )) кто третьим будет? ))) Мне кажется Вас мягко говоря "обули" и с топосъемкой, и с проектом, если Вы конечно не делали топосъемку на пару гектаров. У нас топосъемка более 3 га обошлась 8000 грн со всеми сетями и согласованиями. И то мы думали что дороговато, но делали через людей, которых рекомендовал главный архитектор района, чтобы все прошло наверняка. С проектом тоже - для согласования в архитектуре Вам нужен проект с оригинальной печатью и лицензией архитектора. Тем более для стройпаспорта Вам необходима только архитектурная часть проект, а это десятая часть того что Вам сделали: планы, фасады и разрезы. Уточните этот момент, Вам действительно Карпец сказал, что выдадут стройпаспорт с таким проектом без опознавательных знаков? А то как бы Вам не пришлось все 50 тыс платить, чтобы печать на проекте получить. Проверьте, на всякий случай, есть ли у ПП "Остапкович" лицензия на этот вид деятельности. Посилання на коментар Поділитися на інших сайтах More sharing options...
valya_bes Опубліковано: 18 лютого 2011 Поділитись Опубліковано: 18 лютого 2011 К слову, у меня остались очень хорошие впечатления о Макаровской рай. архитектуре. Стоимость проекта -вопрос творческий и комментировать не берусь (хотя, ИМХО , дорого, наверное с инженерными сетями он у Вас). Поддерживаю, у нас тоже проблем не возникло с архитектурой, хоть и строить начали раньше, чем документы получили. А по стоимости проекта тем более без печати, даже с сетями - дорого. Посилання на коментар Поділитися на інших сайтах More sharing options...
AНДРЮША Опубліковано: 18 лютого 2011 Поділитись Опубліковано: 18 лютого 2011 Тут наверное произошла ошибка в терминах. Для проекта нужна геоподоснова, но на ней нет рельефа - это план со всеми коммуникациями. Посилання на коментар Поділитися на інших сайтах More sharing options...
Gamburger Опубліковано: 18 лютого 2011 Автор Поділитись Опубліковано: 18 лютого 2011 Тем более для стройпаспорта Вам необходима только архитектурная часть проект, а это десятая часть того что Вам сделали: планы, фасады и разрезы. Уточните этот момент, Вам действительно Карпец сказал, что выдадут стройпаспорт с таким проектом без опознавательных знаков? А то как бы Вам не пришлось все 50 тыс платить, чтобы печать на проекте получить. Проверьте, на всякий случай, есть ли у ПП "Остапкович" лицензия на этот вид деятельности. уточняю - я возможно не правильно понял вопрос. печать архитектора обязательно будет. лицензия также будет прилагаться. это обязательно и я без этого не платил бы денег. я имел в виду - что проект, если какие согласования и буду нужны, буду согласовывать я, и от архитектора никаких собираний согласований я за эти деньги не требую. что касается топосъёмки - карпец сказал что топосъёмка нужна для стройпаспорта. то что много за неё заплатил я понял слишкорм поздно )) но она нужна. если для стройпаспорта нужна только архитектурная часть, то тот объём, в котором делают мне проект нужен ещё и для строителей. я буду полагаться не на слова строителей, что они по эскизам мне склёпают что-то из своего опыта, а полагаться на архитектора, который сделает всё правильно, а строители просто уже будут по чертежам конструктор складывать, соблюдая предписания архитектора. Посилання на коментар Поділитися на інших сайтах More sharing options...
Gamburger Опубліковано: 18 лютого 2011 Автор Поділитись Опубліковано: 18 лютого 2011 Поддерживаю, у нас тоже проблем не возникло с архитектурой, хоть и строить начали раньше, чем документы получили. А по стоимости проекта тем более без печати, даже с сетями - дорого. и где вы находите архитекторов, которые делают всё дёшево. мой архитектор делает проект из расчёта 50 грн за кв. м. я дешевле не нашол. найдите дешевле. да сюда не входят сети. только основа, но не детально всё по сетям. без разводки там и т.д. это будет отдельно. Посилання на коментар Поділитися на інших сайтах More sharing options...
valya_bes Опубліковано: 18 лютого 2011 Поділитись Опубліковано: 18 лютого 2011 что касается топосъёмки - карпец сказал что топосъёмка нужна для стройпаспорта. то что много за неё заплатил я понял слишкорм поздно )) но она нужна. У нас требовали генплан нового массива, поэтому пришлось сначала сделать топосъемку, а потом уже в архитектуре сделали генплан. У Вас точно требовали топосъемку только Вашего участка, я так понимаю у Вас тоже новая нарезка? 1 Посилання на коментар Поділитися на інших сайтах More sharing options...
Gamburger Опубліковано: 19 лютого 2011 Автор Поділитись Опубліковано: 19 лютого 2011 У нас требовали генплан нового массива, поэтому пришлось сначала сделать топосъемку, а потом уже в архитектуре сделали генплан. У Вас точно требовали топосъемку только Вашего участка, я так понимаю у Вас тоже новая нарезка? ну как требовали - на вопрос что нужно для стройпаспорта ответ был - попосъёмка 1:500 по участку. нарезка новая - 2009 года. хотите сказать что тоже обрадуют меня необходимостью делать топосъёмку на весь массив? да ну нафиг. я что блин самый рыжий. абалдеть Посилання на коментар Поділитися на інших сайтах More sharing options...
valya_bes Опубліковано: 19 лютого 2011 Поділитись Опубліковано: 19 лютого 2011 ну как требовали - на вопрос что нужно для стройпаспорта ответ был - попосъёмка 1:500 по участку. нарезка новая - 2009 года. хотите сказать что тоже обрадуют меня необходимостью делать топосъёмку на весь массив? да ну нафиг. я что блин самый рыжий. абалдеть А хочу сказать, что макаровская архитектура требовала генплан на весь массив. В прошлом году без генплана не выдавали стройпаспорт нашим соседям с новой улицы. В Вышеграде - та же ситуация. Возможно сейчас что-то изменилось или изменится ввиду новых событий и принятием нового закона. Посилання на коментар Поділитися на інших сайтах More sharing options...
Рекомендовані повідомлення
Створіть акаунт або увійдіть у нього для коментування
Ви маєте бути користувачем, щоб залишити коментар
Створити акаунт
Зареєструйтеся для отримання акаунта. Це просто!
Зареєструвати акаунтУвійти
Вже зареєстровані? Увійдіть тут.
Увійти зараз