bulaniy.sv Опубліковано: 10 січня 2020 Поділитись Опубліковано: 10 січня 2020 Здравствуйте! Планирую начать строительство дома с ГБ, есть проект и есть безответственный архитектор (форумчанин), которые не выходит на связь и кормит обещаниями. Собственно по проекту перегородки из ГБ - 100 мм (D500), но в UDK уже нет плотности D500, есть возможность заменить на 200 мм (D400), или все таки использовать кирпич (наверное даже практичней в плане шумоизоляции и в плане того, что можно повесить тяжелые элементы на стену), но я точно помню что архитектор был против такого решения: Связка кирпича и ГБ Вес - именно этот фактор основной, что перегородка с кирпича в N раз тяжелый ГБ, и при нашем конструктиве этот момент недопустим. Собственно вопрос, как быть с перегородками? Строить планирую не сам, в поисках прораба с бригадой, но на данный момент исполнитель не найден, поэтому очень надеюсь на помощь форума. Перекрытие между 1 и 2 - плиты, 2 и крышка - дерево. Прикрепил планировку. Посилання на коментар Поділитися на інших сайтах More sharing options...
bulaniy.sv Опубліковано: 10 січня 2020 Автор Поділитись Опубліковано: 10 січня 2020 Здравствуйте! Планирую начать строительство дома с ГБ, есть проект и есть безответственный архитектор (форумчанин), которые не выходит на связь и кормит обещаниями. Собственно по проекту перегородки из ГБ - 100 мм (D500), но в UDK уже нет плотности D500, есть возможность заменить на 200 мм (D400), или все таки использовать кирпич (наверное даже практичней в плане шумоизоляции и в плане того, что можно повесить тяжелые элементы на стену), но я точно помню что архитектор был против такого решения: Связка кирпича и ГБ Вес - именно этот фактор основной, что перегородка с кирпича в N раз тяжелый ГБ, и при нашем конструктиве этот момент недопустим. Собственно вопрос, как быть с перегородками? Строить планирую не сам, в поисках прораба с бригадой, но на данный момент исполнитель не найден, поэтому очень надеюсь на помощь форума. Перекрытие между 1 и 2 - плиты, 2 и крышка - дерево. Прикрепил планировку. Посилання на коментар Поділитися на інших сайтах More sharing options...
razzil Опубліковано: 10 січня 2020 Поділитись Опубліковано: 10 січня 2020 А что с фундаментом? 1 Посилання на коментар Поділитися на інших сайтах More sharing options...
razzil Опубліковано: 10 січня 2020 Поділитись Опубліковано: 10 січня 2020 А что с фундаментом? 1 Посилання на коментар Поділитися на інших сайтах More sharing options...
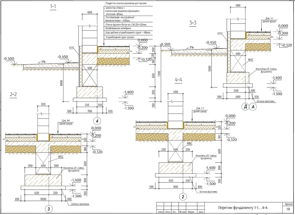
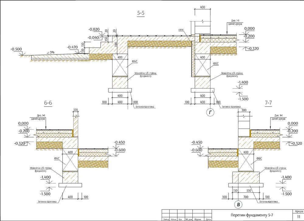
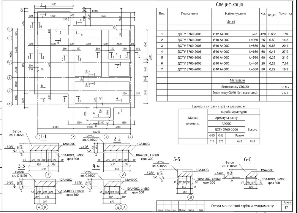
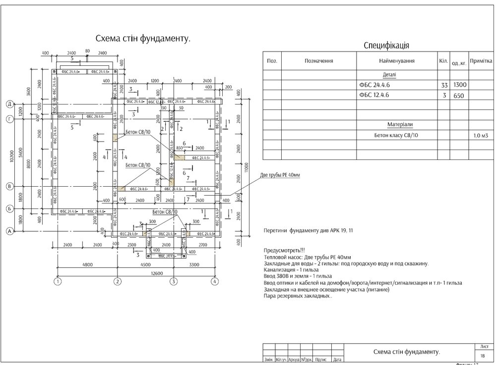
bulaniy.sv Опубліковано: 10 січня 2020 Автор Поділитись Опубліковано: 10 січня 2020 А что с фундаментом? Пятка (от 600 до 900), ряд ФБС, арм. пояс и плита по полу. Посилання на коментар Поділитися на інших сайтах More sharing options...
bulaniy.sv Опубліковано: 10 січня 2020 Автор Поділитись Опубліковано: 10 січня 2020 А что с фундаментом? Пятка (от 600 до 900), ряд ФБС, арм. пояс и плита по полу. Посилання на коментар Поділитися на інших сайтах More sharing options...
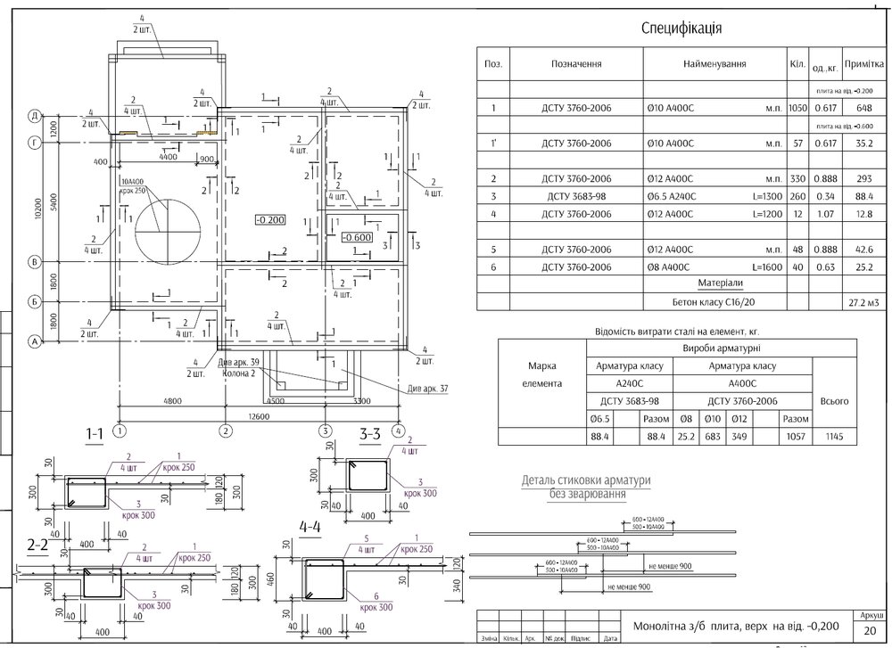
razzil Опубліковано: 10 січня 2020 Поділитись Опубліковано: 10 січня 2020 Пятка (от 600 до 900), ряд ФБС, арм. пояс и плита по полу. Есть чертежи? От того какая плита зависит станут ли на нее кирпичные перегородки или нет. 1 Посилання на коментар Поділитися на інших сайтах More sharing options...
razzil Опубліковано: 10 січня 2020 Поділитись Опубліковано: 10 січня 2020 Пятка (от 600 до 900), ряд ФБС, арм. пояс и плита по полу. Есть чертежи? От того какая плита зависит станут ли на нее кирпичные перегородки или нет. 1 Посилання на коментар Поділитися на інших сайтах More sharing options...
Михалів Опубліковано: 10 січня 2020 Поділитись Опубліковано: 10 січня 2020 Беріть ГБ товщиною 200, у 100 - погана звукоізоляція. Для кріплення є спеціальні елементи, все тримається добре. 1 Посилання на коментар Поділитися на інших сайтах More sharing options...
Михалів Опубліковано: 10 січня 2020 Поділитись Опубліковано: 10 січня 2020 Беріть ГБ товщиною 200, у 100 - погана звукоізоляція. Для кріплення є спеціальні елементи, все тримається добре. 1 Посилання на коментар Поділитися на інших сайтах More sharing options...
Технолог Опубліковано: 10 січня 2020 Поділитись Опубліковано: 10 січня 2020 Пятка (от 600 до 900), ряд ФБС, арм. пояс и плита по полу. плита = монолитная или перекрытия? 1 Посилання на коментар Поділитися на інших сайтах More sharing options...
Технолог Опубліковано: 10 січня 2020 Поділитись Опубліковано: 10 січня 2020 Пятка (от 600 до 900), ряд ФБС, арм. пояс и плита по полу. плита = монолитная или перекрытия? 1 Посилання на коментар Поділитися на інших сайтах More sharing options...
bulaniy.sv Опубліковано: 10 січня 2020 Автор Поділитись Опубліковано: 10 січня 2020 Есть чертежи? От того какая плита зависит станут ли на нее кирпичные перегородки или нет. Загрузил.... Посилання на коментар Поділитися на інших сайтах More sharing options...
bulaniy.sv Опубліковано: 10 січня 2020 Автор Поділитись Опубліковано: 10 січня 2020 Есть чертежи? От того какая плита зависит станут ли на нее кирпичные перегородки или нет. Загрузил.... Посилання на коментар Поділитися на інших сайтах More sharing options...
bulaniy.sv Опубліковано: 10 січня 2020 Автор Поділитись Опубліковано: 10 січня 2020 плита = монолитная или перекрытия? ПК (... 10 символов) Посилання на коментар Поділитися на інших сайтах More sharing options...
bulaniy.sv Опубліковано: 10 січня 2020 Автор Поділитись Опубліковано: 10 січня 2020 плита = монолитная или перекрытия? ПК (... 10 символов) Посилання на коментар Поділитися на інших сайтах More sharing options...
Технолог Опубліковано: 10 січня 2020 Поділитись Опубліковано: 10 січня 2020 у вас монолитная плита пола для перегородок из ГБ = достаточно. для перегородок из кирпича = пустить ростверк,там где не попадает в несущие основание из фбс. 2 Посилання на коментар Поділитися на інших сайтах More sharing options...
Технолог Опубліковано: 10 січня 2020 Поділитись Опубліковано: 10 січня 2020 у вас монолитная плита пола для перегородок из ГБ = достаточно. для перегородок из кирпича = пустить ростверк,там где не попадает в несущие основание из фбс. 2 Посилання на коментар Поділитися на інших сайтах More sharing options...
razzil Опубліковано: 10 січня 2020 Поділитись Опубліковано: 10 січня 2020 Я не вижу ничего, чтоб помешало поставить кирпичные перегородки. 1 Посилання на коментар Поділитися на інших сайтах More sharing options...
razzil Опубліковано: 10 січня 2020 Поділитись Опубліковано: 10 січня 2020 Я не вижу ничего, чтоб помешало поставить кирпичные перегородки. 1 Посилання на коментар Поділитися на інших сайтах More sharing options...
bulaniy.sv Опубліковано: 10 січня 2020 Автор Поділитись Опубліковано: 10 січня 2020 Всем спасибо! Пожалуй остановлюсь на ГБ 200. Посилання на коментар Поділитися на інших сайтах More sharing options...
bulaniy.sv Опубліковано: 10 січня 2020 Автор Поділитись Опубліковано: 10 січня 2020 Всем спасибо! Пожалуй остановлюсь на ГБ 200. Посилання на коментар Поділитися на інших сайтах More sharing options...
VladRed Опубліковано: 11 січня 2020 Поділитись Опубліковано: 11 січня 2020 https://www.stroimdom.com.ua/forum/showthread.php?t=148829 1 Посилання на коментар Поділитися на інших сайтах More sharing options...
oleg5 Опубліковано: 12 січня 2020 Поділитись Опубліковано: 12 січня 2020 Я не вижу ничего, чтоб помешало поставить кирпичные перегородки. Здравствуйте! Если ТС не против, задам свой вопрос здесь (или подскажите где это уже обсуждалось). Планируется дом из ГБ, ленточный фундамент, перегородки в пол кирпича и несущая стена в кирпич. Как уйти от мостиков холода? Понимаю, что можно утеплить ленту по периметру ЭППС, но ведь снизу через фундамент кирпичные перегородки все равно будут тянуть холод?! Посилання на коментар Поділитися на інших сайтах More sharing options...
razzil Опубліковано: 12 січня 2020 Поділитись Опубліковано: 12 січня 2020 Здравствуйте! Если ТС не против, задам свой вопрос здесь (или подскажите где это уже обсуждалось). Планируется дом из ГБ, ленточный фундамент, перегородки в пол кирпича и несущая стена в кирпич. Как уйти от мостиков холода? Понимаю, что можно утеплить ленту по периметру ЭППС, но ведь снизу через фундамент кирпичные перегородки все равно будут тянуть холод?! 1 Посилання на коментар Поділитися на інших сайтах More sharing options...
Рекомендовані повідомлення
Створіть акаунт або увійдіть у нього для коментування
Ви маєте бути користувачем, щоб залишити коментар
Створити акаунт
Зареєструйтеся для отримання акаунта. Це просто!
Зареєструвати акаунтУвійти
Вже зареєстровані? Увійдіть тут.
Увійти зараз