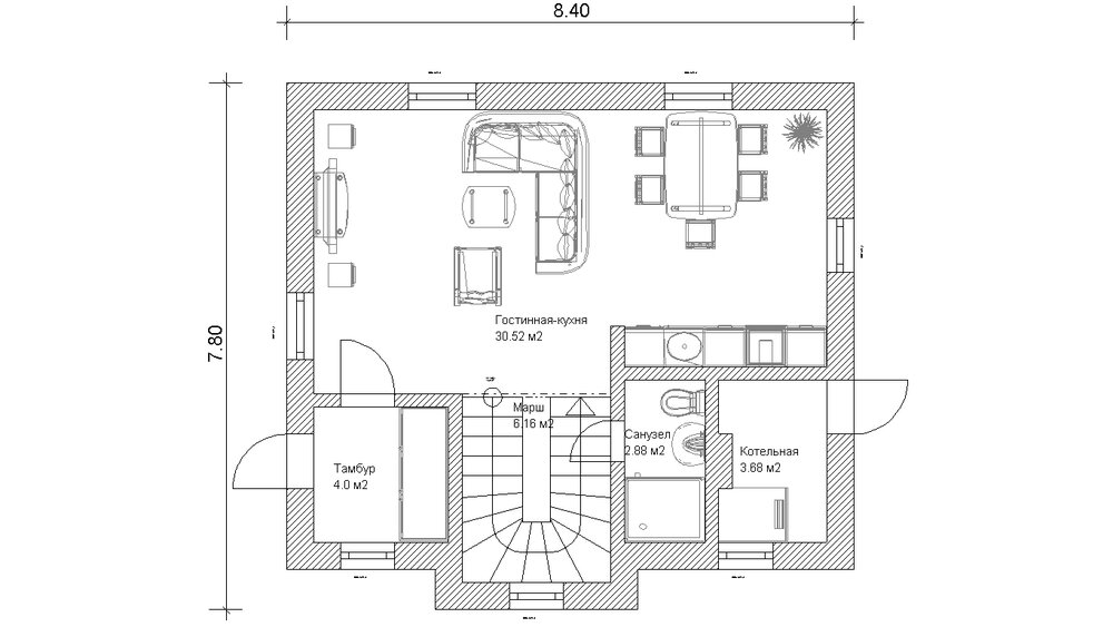
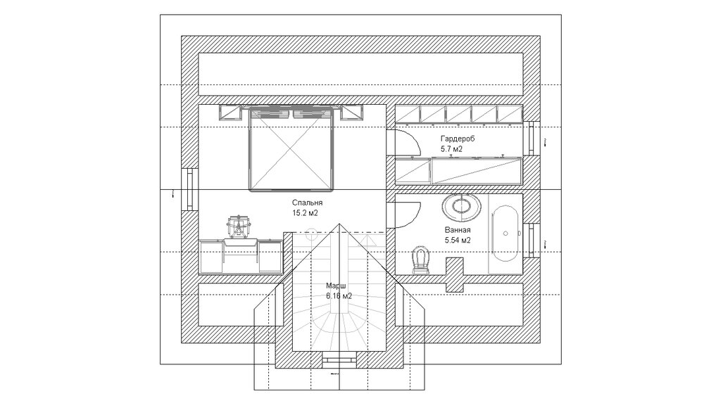
amarrak Опубліковано: 28 жовтня 2009 Поділитись Опубліковано: 28 жовтня 2009 Пересмотрев кучу сайтов и журналов я пришел к выводу, что проектов маленьких домов практически нет. Очевидно это не выгодно проектировать - дешевле стоит и нет простора для творчества. Мы долго обдумывали, какой дом нам нужен. И пришли к выводу, что не знаем, как использовать больше двух комнат в доме. Реально не знаем. Первая комната - гостинная / столовая, совмещенная с кухней. В ней происходит основная жизнь, стоит телевизор, компьютер. Смысла делить это на большее число комнат мы не видим... Вторая комната - спальня, где спят. Третья комната просто не нужна. Что в ней делать? Можно было бы отвести ее для собаки или кошки, но и та и другая предпочитают проводить свое время с нами. Собака вообще устраивает истерику, если остается одна. Гости, если они вдруг останутся на ночь, могут переспать в гостинной. Держать для нечастых наездов отдельную комнату глупо. Так как из готовых проектов подобрать то, что устроит на 100% не удастся. Поэтому будем делать проект сами. Согласно предварительным стратегическим планам дом будет 1 этаж плюс мансарда. Размеры первого этажа - 7 на 5 метров, высота 2.7 метра. Плюс пристроенный тамбур (и туалет) - 4 на 2 метра, высота 2.5 метра. Мансарда над всем первым этажом, за исключением тамбура. Весь первый этаж однообъемный, с визуальным зонированием. В частности кухня зрительно отделена от комнаты винтовой лестницей на мансарду и камином (буржуйкой). Фундамент - незаглубленная монолитная плита 0.3 метра с подбетонкой и гидроизоляцией гидростеклоизолом. По ней пенополистирол и стяжка для пола. Почему пенополистирол над плитой, а не под (т.е. не шведская плита)? Для меня фундамент - это основа. Он должен быть "на века". Есть мнение, что что любое органическое вещество будет стремиться к полному окислению. То есть к распаду на углекислый газ и воду. А пенополистирол, как известно, производится из нефти (истощая и так уже не большие запасы ). Скорость окисления зависит от площади взаимодействия, времени и температуры. Никто не испытывал, что реально произойдет с пенополистиролом по домом за 20 лет (расчеты и гипотезы не имеют в данном случае большого веса). Поэтому для нас лучше провереный пирог из подбетонки 0.1 м, наплавляемой гиброизоляции в пару слоев, плиты с армированием 0.3 м. А уже сверху пенополистирол и стяжка. Если что - поменять через 20 лет стяжку очевидно проще, чем весь дом... Это чисто мое мнение, вести религиозные споры по этому поводу я не буду Подбетонка в фундаменте для того, чтобы надежнее защитить наплавляемую гидроизоляцию (очевидно гидростеклоизол или что-то подобное). Зажатая между двух бетонных плит она, наверное, сохранится лучше. Это главное. Потому как потом подсунуть гидроизоляцию под плиту будет оччччень тяжело. Ну а дополнительно меньше шансов порвать гидроизоляцию при вязке арматуры. Да и не плохо поднять дом на 10 см, чтобы потом можно было поднять на те же 10 см и весь участок (т.е. подбетонка будет под землей). Стены по стратегическим планам будут из керамзитобетонных блоков 0.4 метра. Снаружи утепление пенополистиролом и штукатурка. Почему снаружи? Дом планируется для ПМЖ, поэтому крайне важно, чтобы он имел высокую теплоемкость. Чего очевижно не будет с внутренним утеплением или более тонкими стенами. Опять же учитывая примерно одинаковую паропроницаемость бетона и пенополистирола (по СНИПам), керамзитобетонная часть стены будет находиться в наиболее благоприятном для нее климате: точка росы будет в пенополистироле, темпиратура с внутренней стороны керамзитобетонной части стены будет относительно близка темпиратуре наружней стороны. Почему утеплитель не внутри стены? Те же сомнения в долговечности. А ну как этот утеплитель через 20 лет загнется? Как внутрь стены новый напихать? Ну и опять же мостики холода, которые к тому же находятся в небоагоприятных условиях. Перекрытие первого этажа - по деревянным балкам. В мансарду винтовая лестница. Крыша вальмовая мансардная. Почему вальмовая? Потому что жена сказала "хочу и не волнует" :D Высота чистового пола первого этажа над уровнем земли - примерно 35-40 см Что скажете? Посилання на коментар Поділитися на інших сайтах More sharing options...
Cler Опубліковано: 28 жовтня 2009 Поділитись Опубліковано: 28 жовтня 2009 Для двоих одна спальня в самый раз, здесь я Вас поддерживаю. Но я бы строила просто одноэтажный дом..без мансарды..Задолбаетесь по лестнице бегать..и кошки-собаки тоже;) к томуже санузел на первом... Ну и если строить чисто для себя любимых (о гостях не думать), то вообще вход в санузел сделать из спальни а в пристройке сделать умывальничек, руки мыть после огородных работ.:D Все ИМХО Посилання на коментар Поділитися на інших сайтах More sharing options...
amarrak Опубліковано: 28 жовтня 2009 Автор Поділитись Опубліковано: 28 жовтня 2009 Для двоих одна спальня в самый раз, здесь я Вас поддерживаю. Но я бы строила просто одноэтажный дом..без мансарды..Задолбаетесь по лестнице бегать..и кошки-собаки тоже;) к томуже санузел на первом... Одноэтажный будет дороже в строительстве, отоплении и займет лишнюю ценную землю. К тому же в спальню ходить чаще одного раза в день не обязательно. Собака у нас даже по стремянкам забирается, только чтобы быть вместе с нами :D А кошка не сможет - пусть на первом этаже сидит! Ну и если строить чисто для себя любимых (о гостях не думать), то вообще вход в санузел сделать из спальни а в пристройке сделать умывальничек, руки мыть после огородных работ.:D Все ИМХО Про санузел я пока размышляю. Тут есть нюанс, что еще и вне дома будет санузел, чтобы в дом лишний раз не бегать. Посилання на коментар Поділитися на інших сайтах More sharing options...
-enjoy- Опубліковано: 28 жовтня 2009 Поділитись Опубліковано: 28 жовтня 2009 Мое,как там говорят, ИМХО (что это такое?как разшифровать?) не нравится вообще. Вот что убивает так то,что все только и говорят про ценную землю, выстроят в три этажа дома, а потом вокруг дома всё закатают травой или бетоном и довольные. В чем по Вашему ценность этой земли? В том, что она куплена за дорого? Так она ж и предназначена для строительства дома. Посилання на коментар Поділитися на інших сайтах More sharing options...
Cler Опубліковано: 28 жовтня 2009 Поділитись Опубліковано: 28 жовтня 2009 Мое,как там говорят, ИМХО (что это такое?как разшифровать?) не нравится вообще. Вот что убивает так то,что все только и говорят про ценную землю, выстроят в три этажа дома, а потом вокруг дома всё закатают травой или бетоном и довольные. В чем по Вашему ценность этой земли? В том, что она куплена за дорого? Так она ж и предназначена для строительства дома. ИМХО - имею мнение х.. оспоришь..:D не буду повторяться, но одноэтажный в данном случае просто логичней Посилання на коментар Поділитися на інших сайтах More sharing options...
Татьяна5 Опубліковано: 28 жовтня 2009 Поділитись Опубліковано: 28 жовтня 2009 кхм, оооочень мужской подход, я бы сказала - военный , а второ человек тоже согласен с Вами? Посилання на коментар Поділитися на інших сайтах More sharing options...
K2 Опубліковано: 28 жовтня 2009 Поділитись Опубліковано: 28 жовтня 2009 Первая комната - гостинная / столовая, совмещенная с кухней. В ней происходит основная жизнь, стоит телевизор, компьютер. Смысла делить это на большее число комнат мы не видим... Вторая комната - спальня, где спят. "квартирный синдром" налицо. Вы случайно не жили вчетвером в однокомнатной квартире лет эдак 15 подряд? в кухне готовят, в столовой едят, в кабинете работают/читают, в спальне спят. при чем гости спят в гостевой спальне, а не в туалете или на кухонном уголке. в постирочной стирают, сушат и гладят белье. В мастерской хранят инструмент, рукоделят по мелочам. Дети живут в детской. Посилання на коментар Поділитися на інших сайтах More sharing options...
Vyacheslav Опубліковано: 28 жовтня 2009 Поділитись Опубліковано: 28 жовтня 2009 Одноэтажный будет дороже в строительстве, отоплении и займет лишнюю ценную землю. Про санузел я пока размышляю. Тут есть нюанс, что еще и вне дома будет санузел, чтобы в дом лишний раз не бегать. Вы прикиньте стоимость лестницы и сколько места она съедает... Перенос спальни на второй этаж, думаю, будет удовольствием дорогим и неоправданным. Кроме того, вам еще надо и о перекрытиях думать... Если не сложно - какой у вас размер участка? С одной стороны - экономия на площади дома, а с другой - постройка уличного туалета... Не понимаю. Посилання на коментар Поділитися на інших сайтах More sharing options...
Pro100user Опубліковано: 28 жовтня 2009 Поділитись Опубліковано: 28 жовтня 2009 Ваши комнаты: комната 1 - гостинная / столовая, совмещенная с кухней... комната 2 - спальня Мои комнаты: комната 3 - топочная. Это где стоит котел отопления, возможно насосная станция или прочее техническое оборудование. Или ставить это все на кухне? комната 4 - гостевая спальня. что ж вы так не любите друзей(родителей, детей...) что не хотите их у себя задерживать более одной ночи. Ну выделите им отдельную комнату - пусть люди поживут в комфорте. Ато больше не приедут. Кстати, туалета на рисунке я тоже не увидел. Он на улице? Посилання на коментар Поділитися на інших сайтах More sharing options...
Татьяна5 Опубліковано: 28 жовтня 2009 Поділитись Опубліковано: 28 жовтня 2009 опять же - посорились с женой, всегда есть где закрыться :D (в гостевой спальне) Посилання на коментар Поділитися на інших сайтах More sharing options...
amarrak Опубліковано: 28 жовтня 2009 Автор Поділитись Опубліковано: 28 жовтня 2009 Вот что убивает так то,что все только и говорят про ценную землю, выстроят в три этажа дома, а потом вокруг дома всё закатают травой или бетоном и довольные. В чем по Вашему ценность этой земли? В том, что она куплена за дорого? Так она ж и предназначена для строительства дома. Ценность земли в том, что это земля. И ее можно использовать. Землю, которая под домом, использовать уже не получится. Куплена она вовсе не за дорого. Если вы не знаете, как можно использовать землю, то вам это не нужно. Застраивайте ее по своему усмотрению. в кухне готовят, в столовой едят, в кабинете работают/читают, в спальне спят. Ну а мы любим читать в гостинной. И телевизор смотреть там же. Мы еще не настолько достали друг друга, чтобы прятаться по отдельным комнатам. Да и вообще идея нарезания пространства стенками с дверями как раз и проистекает из "квартирного синдрома". Если не сложно - какой у вас размер участка? С одной стороны - экономия на площади дома, а с другой - постройка уличного туалета... Не понимаю. Именно у нас 7 соток. Ну и у родителей рядом соток 18... Уличный туалет необходим, чтобы не бегать с участка в дом по нужде и не носить лишнюю грязь. Да и вообще удобно. Я его с баней совмещу. Я не экономлю на площади дома. Могу хоть на все 7 соток поставить. Но зачем тратить бездумно то, что есть, если это можно потратить более интересным и полезным способом? Посилання на коментар Поділитися на інших сайтах More sharing options...
amarrak Опубліковано: 28 жовтня 2009 Автор Поділитись Опубліковано: 28 жовтня 2009 комната 3 - топочная. Это где стоит котел отопления, возможно насосная станция или прочее техническое оборудование. На такой дом хватит современной буржуйки. А внешний вид их таков, что не то что убирать в топочную, а в центре комнаты ставить нужно. Насосная станция встанет в туалете, который рядом с тамбуром. Там же и котел. комната 4 - гостевая спальня. что ж вы так не любите друзей(родителей, детей...) что не хотите их у себя задерживать более одной ночи. Ну выделите им отдельную комнату - пусть люди поживут в комфорте. Ато больше не приедут. Т.е. делать специальную комнату ради изредка приезжающих гостей? Я думаю, что одну ночь они прекрасно переспят на диване в гостинной. опять же - посорились с женой, всегда есть где закрыться (в гостевой спальне) Жена пойдет к родителям. Благо до них не больше 100 метров Посилання на коментар Поділитися на інших сайтах More sharing options...
Татьяна5 Опубліковано: 28 жовтня 2009 Поділитись Опубліковано: 28 жовтня 2009 если я правильно понимаю, Ваш возраст еще предполагает рождение детей, все ведь возможно , они тоже пойдут к родителям жены? Сорри, но общий вывод - не там экономите и не от того отталкиваетесь Посилання на коментар Поділитися на інших сайтах More sharing options...
Vyacheslav Опубліковано: 28 жовтня 2009 Поділитись Опубліковано: 28 жовтня 2009 Может для ваших сверхскромных потребностях такой вариант подойдет? www.stroimdom.com.ua/forum/showthread.php?t=18867 Думаю, что его можно установить на сваях - можно будет использовать землю под домом 1 Посилання на коментар Поділитися на інших сайтах More sharing options...
amarrak Опубліковано: 28 жовтня 2009 Автор Поділитись Опубліковано: 28 жовтня 2009 если я правильно понимаю, Ваш возраст еще предполагает рождение детей, все ведь возможно , они тоже пойдут к родителям жены? Сорри, но общий вывод - не там экономите и не от того отталкиваетесь Мой возраст ничего не предполагает. Дом только для двоих и сейчас, и потом. Я не экономлю, я не вижу смысла выбрасывать деньги на то, что нам не нужно. Пока все ваши доводы были типа: а вдруг дети родятся, а вдруг гости приедут,... Т.е. даже из ваших доводов ясно, что двоим большего не нужно. Может для ваших сверхскромных потребностях такой вариант подойдет? А че, классный вариант :D. Только мы каменный хотим. Посилання на коментар Поділитися на інших сайтах More sharing options...
Татьяна5 Опубліковано: 28 жовтня 2009 Поділитись Опубліковано: 28 жовтня 2009 ну, дело Ваше ибо деньги Ваши задумаете продать - продавать будите или долго или дешево , так как мало людей, думающих о доме так же как и Вы Посилання на коментар Поділитися на інших сайтах More sharing options...
Olena Опубліковано: 28 жовтня 2009 Поділитись Опубліковано: 28 жовтня 2009 ИМХО , Такой дом можно строить при условии, что приезжать будете туда на выходные и только летом. А зимними холодными вечерами хочеться посмотреть телевизор в гостинной, и при этом, никто не должен жарить котлеты на кухне, греметь там тарелками и/или играть рядом в комп. Посилання на коментар Поділитися на інших сайтах More sharing options...
J.B. Опубліковано: 28 жовтня 2009 Поділитись Опубліковано: 28 жовтня 2009 Коллега! Внимательно почитай форум, не наступай на грабли. Тебе рекомендуют правильно, а если все сам решил - не спрашивай! Мой совет: пристройку не делай - лишние теплопотери, лучше это все в пятне дома, на входе - тамбур(веранда), мансарда - дороже выйдет, чем увеличить площадь дома, топочную в С\у газовщики не разрешат, делай отдельно, гардеробную сделай хотя бы 10 кв. м., чтобы шкафов меньше было, ну а комнат должно быть (кол-во человек + 1), соответственно 3 комнаты. Вариант гостинная-кухня-столовая, многим не нравиться, с кухни запахи. В конце-концов проект на такое строение для жилья СЕС может не подписать. Посмотри стройку АНДРЮШИ, у него небольшой домик. Посилання на коментар Поділитися на інших сайтах More sharing options...
Tugarin Опубліковано: 29 жовтня 2009 Поділитись Опубліковано: 29 жовтня 2009 Здравствуйте. Ничего не имею против Ваших взглядов по вопросам количества комнат, но если для постоянного проживания, то этого явно недостаточно: - площадь общей комнаты для совмещения трех функционально различных помещений (кабинет, гостинная, кухня и коридор) ничтожно мала, к примеру- где будет стоять обеденный стол (из показанной планировки не совсем понятно); - коль все так мало, то предполагаю что бюджет выделенный на постройку дома тоже невелик, из этого можно предположить, что часть работ будет производится самостоятельно, а винтовую лестницу сделать будет достаточно непросто самим, ну а строители удивят Вас ценой, которая вызовет мысль, "что весь дом до этого обошелся Вам дешевле":o; - и в конце концов достигнув конечного результата, попутно меняя многие вещи и выкручиваясь из "пикатных" ситуаций, окажется что домой после трудного рабочего дня не тянет, а если и будет тянуть, то либо из-за второй половины и/или аутотренингового подгона, что Вас все устраивает. Покрутив, повертев, беря в учет небольшие габариты дома и средств выделенных на строительство получил следующее (не факт, что Ваше, но свежые мысли лишними думаю не будут): P.S. Кстати в топочной можно поставить унитаз и мойку, таким образом решив проблему с внешним санузлом. Посилання на коментар Поділитися на інших сайтах More sharing options...
-enjoy- Опубліковано: 30 жовтня 2009 Поділитись Опубліковано: 30 жовтня 2009 Не могу понять суть даной ветки. Вы выставили проект с пометкой "что скажете?". Вам начинают люди дельные советы давать, а Вы все перечите. Если Вы ни с чем и ни с кем не согласны,то не морочьте голову и начинайте строить. Посилання на коментар Поділитися на інших сайтах More sharing options...
Рекомендовані повідомлення
Створіть акаунт або увійдіть у нього для коментування
Ви маєте бути користувачем, щоб залишити коментар
Створити акаунт
Зареєструйтеся для отримання акаунта. Це просто!
Зареєструвати акаунтУвійти
Вже зареєстровані? Увійдіть тут.
Увійти зараз