Maximova0709 Опубліковано: 29 травня 2020 Поділитись Опубліковано: 29 травня 2020 Добрый день. Купили готовый дом 160 кв.м 2 этажа. Вентканала нет. Фановая труба не выведена. Вентиляция предполагалась через дыры в стене санузлах и открытые окна. На кухне даже дыры в стене нет. Дом планируется больше для летнего проживания и эпизодического зимнего на праздники и каникулы. Строители и продавцы дома уверяют что и так сойдет. Что можно поставить фановый клапан, вентиляторы в отверстия в стене и открыть окна. Но хочется все таки сделать что б было комфортно, без лишних запахов, грибка в с/у и сквозняков зимой через дыры в стенах. Как правильно, что делать? Дырявить крышу? К кому обратится? Сделать сами ничего не сможем, нужны знающие и умеющие люди. Мы полные профаны в стройке, все жизнь прожили в квартире. Посилання на коментар Поділитися на інших сайтах More sharing options...
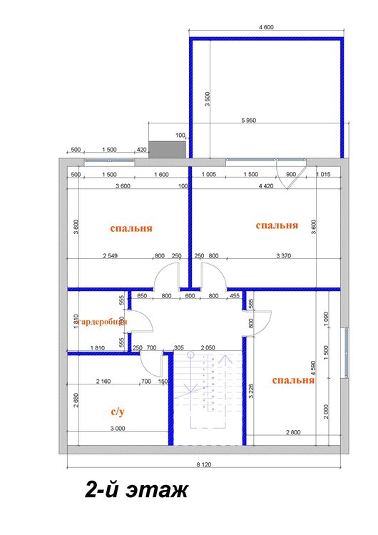
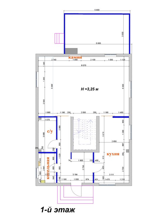
SON Опубліковано: 29 травня 2020 Поділитись Опубліковано: 29 травня 2020 Как правильно, что делать? Дырявить крышу? Дырявить стены. Вентиляторы и обратные клапаны в помощь. По фановой - а нужна ли так она. На малюнках есть котельная, что в ней? Посилання на коментар Поділитися на інших сайтах More sharing options...
Maximova0709 Опубліковано: 30 травня 2020 Автор Поділитись Опубліковано: 30 травня 2020 Дырявить стены. Вентиляторы и обратные клапаны в помощь. По фановой - а нужна ли так она. На малюнках есть котельная, что в ней? А как разобраттся нужна фановая или нет. Форум почитала, пишут нужна. Котел газовый турбированный планируется Посилання на коментар Поділитися на інших сайтах More sharing options...
Дмитрий Бабенко Опубліковано: 30 травня 2020 Поділитись Опубліковано: 30 травня 2020 https://www.facebook.com/EEEkiev/posts/1168411273365688 Посилання на коментар Поділитися на інших сайтах More sharing options...
SON Опубліковано: 30 травня 2020 Поділитись Опубліковано: 30 травня 2020 А как разобраттся нужна фановая или нет. Форум почитала, пишут нужна. Фановая нужна в разе септика либо централизованной канализации. Срыв гидрозатворов в 2-х этажном маловероятен. Котел газовый турбированный планируется При газ котле в любом случае придется делать канал на крышу. Тот же газ котел подразумевает водяную систему отопления, что при периодическом зимнем проживании доставит кучу забот, либо заливать в систему незамерзайку. Подумайте на счет отопления электричеством. Посилання на коментар Поділитися на інших сайтах More sharing options...
Andrey_Ts Опубліковано: 1 червня 2020 Поділитись Опубліковано: 1 червня 2020 Как правильно, что делать? Правильнее сделать удаление загрязненного воздуха из кухни, санузлов и гардероба за пределы кровли. Приток воздуха через жилые помещения - гостиная и спальни. Как вариант - сделать принудительную вентиляцию в санузел 1-го и 2-го этажа + гардероб. Объединить общим вент. стояком и подключить к кровельному вентилятору VILPE E 190P. Кухню вентилировать отдельно, можно так же вентилятором VILPE E 190P. В топочной необходимо организовать естественную вентиляцию, т.к. будет газовый котел. Через санузел 2-го этажа вывести на кровлю вент канал диаметром 160 мм и подвести его к вент выходу VILPE 160/225/500 смонтированном на кровле. Вентиляцию фанового стояка сделать так же. Посилання на коментар Поділитися на інших сайтах More sharing options...
Рекомендовані повідомлення
Створіть акаунт або увійдіть у нього для коментування
Ви маєте бути користувачем, щоб залишити коментар
Створити акаунт
Зареєструйтеся для отримання акаунта. Це просто!
Зареєструвати акаунтУвійти
Вже зареєстровані? Увійдіть тут.
Увійти зараз