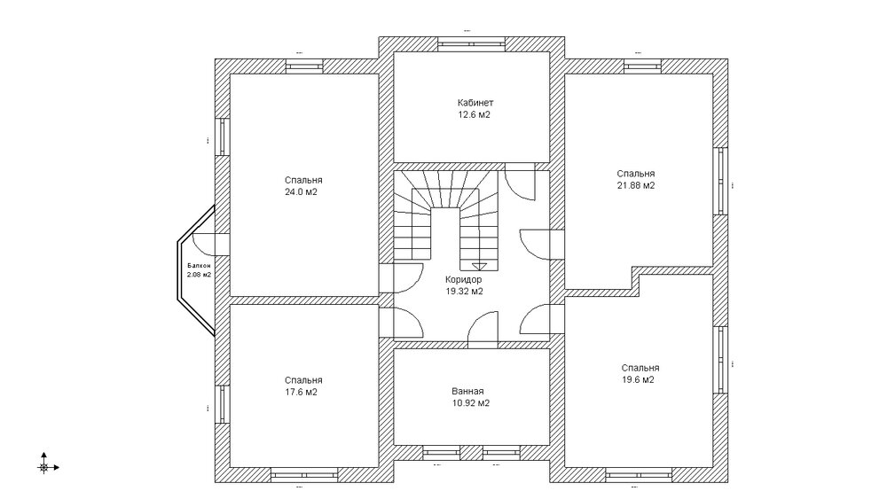
inspektor Опубліковано: 4 грудня 2009 Автор Поділитись Опубліковано: 4 грудня 2009 Ну вот, уже кое-что проясняется. Первый этаж именно то, что нужно. Только кухню и зал поменять местами. А со вторым еще работать и работать. Ванную комнату хочу одну н большую. Как я понимаю, мансардный этаж будет без несущих стен и там я могу городить что хочу и куда хочу. Правильно? Тогда и стены не обязательно должны повторять с первым этажом. Это архитектор решил, что чем больше спален тем лучше, а мне там хватит 3 спален, большой ванной и гардеробной. Вот. На рисунке видно, что вход в одну из спален какой-то загогулиной сделан - не нравится. Не оставьте меня на пол пути к мечте. Посилання на коментар Поділитися на інших сайтах More sharing options...
galproekt Опубліковано: 4 грудня 2009 Поділитись Опубліковано: 4 грудня 2009 а як Вам такий варіант? Єдине треба переробити праве крило де блок сауни під гараж. Посилання на коментар Поділитися на інших сайтах More sharing options...
Privet Опубліковано: 4 грудня 2009 Поділитись Опубліковано: 4 грудня 2009 Геморройно будет делать/лить подобный фундамент. Посилання на коментар Поділитися на інших сайтах More sharing options...
inspektor Опубліковано: 4 грудня 2009 Автор Поділитись Опубліковано: 4 грудня 2009 И правда, многовато закидонов. Потом такая крыша будет, фиг расплачусь. Посилання на коментар Поділитися на інших сайтах More sharing options...
galproekt Опубліковано: 4 грудня 2009 Поділитись Опубліковано: 4 грудня 2009 Геморно так геморно. А взагальному будиночок такий. Посилання на коментар Поділитися на інших сайтах More sharing options...
inspektor Опубліковано: 4 грудня 2009 Автор Поділитись Опубліковано: 4 грудня 2009 Выглядит очень красивенько. Но вот с планировкой все равно нужно мучаться. Посилання на коментар Поділитися на інших сайтах More sharing options...
inspektor Опубліковано: 7 грудня 2009 Автор Поділитись Опубліковано: 7 грудня 2009 Созвонилась с архитектором и сказала, что нужно еще раз перерисовать. Так удивился. Посилання на коментар Поділитися на інших сайтах More sharing options...
Tugarin Опубліковано: 7 грудня 2009 Поділитись Опубліковано: 7 грудня 2009 Вот еще раз переиначив: 1 Посилання на коментар Поділитися на інших сайтах More sharing options...
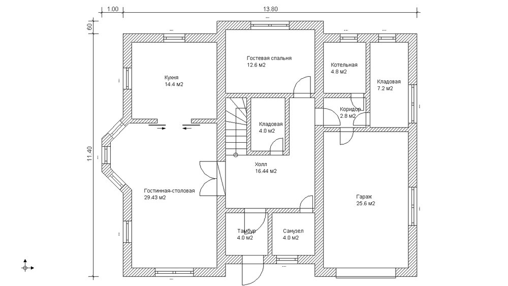
inspektor Опубліковано: 25 грудня 2009 Автор Поділитись Опубліковано: 25 грудня 2009 Еще разок побеспокою вас со своим планом. Уже как-бы определились и почти все нравится но вот показала проект брату а он говорит, что кухню лучше перенести ближе к котельне, так-как оттуда будет проще газ тянуть (ближе). План дома немного изменился со времени последних постов но гостевая комната осталась там где была и раньше а кухня в передней части дома (левый угол). Так вот брат советует их поменять местами. Мне не очень хочется - мечтала, что буду из окна кухни смотреть во двор. Подскажите на сколько это критично и целесообразно. Посилання на коментар Поділитися на інших сайтах More sharing options...
Рекомендовані повідомлення
Створіть акаунт або увійдіть у нього для коментування
Ви маєте бути користувачем, щоб залишити коментар
Створити акаунт
Зареєструйтеся для отримання акаунта. Це просто!
Зареєструвати акаунтУвійти
Вже зареєстровані? Увійдіть тут.
Увійти зараз