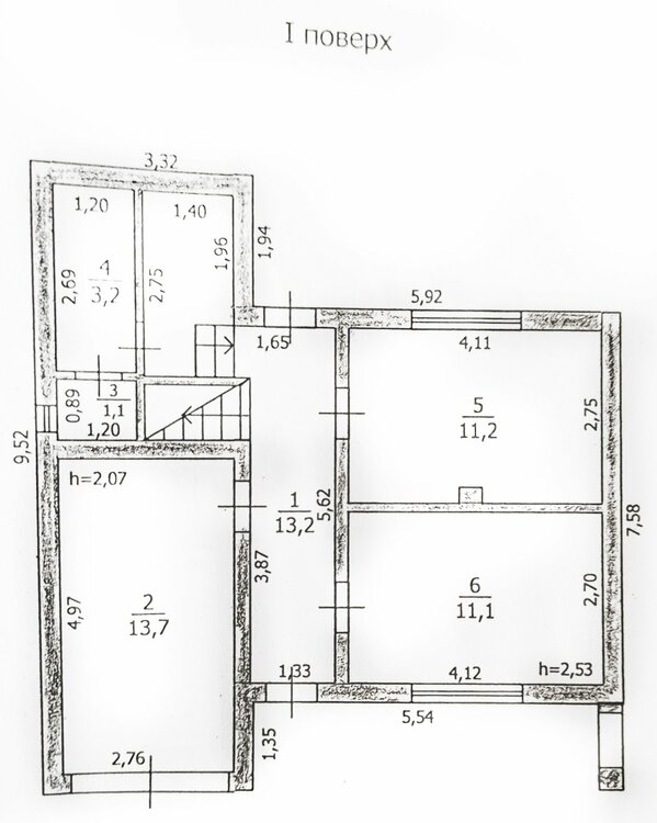
Замужняя Опубліковано: 21 липня 2020 Поділитись Опубліковано: 21 липня 2020 Всем привет) Чтобы не забывалось многое полезное, решила обзавестись небольшим дневником для нашей реконструкции. Почти 10 лет лелеяли надежду найти дом мечты, но все что смотрели было "не то" и "не так". Пробовали коробку поискать под ремонт и старый дом под реконструкцию, увы мимо. В конечном итоге решили строиться, год ушел на проект под определенный участок. 190 квадратов в 1 этаж под плоскую крышу, мечта же? Но карантин заставил притормозить на пару месяцев Пригласили знакомые скататься с ними глянуть домик, по фоткам с сайта - все ужасно, но цена - песня. В субботу глянула в компании знакомых, в воскресенье мужа привезла туда ещё раз, а во вторник давали задаток ☺️ И вот уже почти месяц мы обладатели странного домика! Меня дом покорил своей странной конфигурацией, участок тоже не прямоугольный. Мужа устроили технические характеристики - кирпич, железобетонные перекрытия, ни единой трещинки по фундаменту и фасаду. В доме было 6 уровней, разница между уровнями примерно в 1.2 метра. Техпаспорт показывает их, как 2 этажа, на самом деле это 4 разных уровнях, левая половина ниже правой. Плюс 2 уровня на чердаке было) На фоточке красным цветом то что сносим, зелёным - нужно достроить. За этот месяц мы успели сделать: - Демонтаж стен и крыши. Крышу будем делать плоскую, поэтому фронтоны тоже разобрали. - Вывезли +- 75кубов мусора из дома в виде мебели/ковров/15 лишних ковров/4 ванн/ и т.д. и 70 кубов строительного мусора и веток - Запустили воду, так как была ручная колонка и без посторонней помощи нельзя даже яблочко помыть. Сделали вторую скважину, было 10 метров, а стало 42. Осталось кольца вкопать и определиться с насосом, чтобы в будущем и на полив хватило. - Удалили много деревьев, они были в плачевном состоянии и очень много саморосликов. - Серьезно убрались на участке - кучи металла, проволоки, решёток, колышков и огромная компостная куча посреди участка. Работаем на участке с мужем + нанимали уже пару раз разнорабочих на всякие странные моменты. А вот на работы в доме - бригады, чтобы не наделать глупостей 1 Посилання на коментар Поділитися на інших сайтах More sharing options...
Gitan Опубліковано: 21 липня 2020 Поділитись Опубліковано: 21 липня 2020 Демонтаж стен и крыши. Крышу будем делать плоскую, поэтому фронтоны тоже разобрали. Странно. Зачем? Симпатичный вид у дома. 3 Посилання на коментар Поділитися на інших сайтах More sharing options...
vadimv Опубліковано: 21 липня 2020 Поділитись Опубліковано: 21 липня 2020 красным цветом то что сносимВы там в гараже собрались часть несущей стены сносить? Смело. Кстати, гараж 2,76 очень узкий. Стандартный жигулевский был шириной 3,30, и то в нем двери копейки полностью не открывались. 1 Посилання на коментар Поділитися на інших сайтах More sharing options...
Замужняя Опубліковано: 21 липня 2020 Автор Поділитись Опубліковано: 21 липня 2020 Найти бригаду на небольшое количество строительных работ - целая трагедия. Для всех это микро объем, горюю, что переделка пока остановилась Итого за месяц на вывоз мусора суммарно - 18700 На демонтаж крыши, стен, полов, стяжки - 32700 В результате вид совсем другой, а по деньгам вполне приемлемо. На ближайшее будущее в планах: - септик - организация парапета, чтобы могли зайти крышники - строительные работы внутри дома - завод газа в дом - теплые полы 1 Посилання на коментар Поділитися на інших сайтах More sharing options...
Замужняя Опубліковано: 21 липня 2020 Автор Поділитись Опубліковано: 21 липня 2020 Добавлено через 53 секунды Вы там в гараже собрались часть несущей стены сносить? Смело. Кстати, гараж 2,76 очень узкий. Стандартный жигулевский был шириной 3,30, и то в нем двери копейки полностью не открывались. Да, сделать проход в несущей стене, естественно, укрепив плиту предварительно Плюс, это не гараж будет, а подсобное помещение Добавлено через 4 минуты Странно. Зачем? Симпатичный вид у дома. Хочется визуально интересного решения, которое позволит использовать крышу по полной. Пока в планах на крышу - система кондиционирования, емкость для воды на полив и, возможно, солнечные батареи В случае расширения семьи оставляем возможность путем нехитрых манипуляций и за не глобальные деньги достроить еще 1 санузел и спальню на одной секции Посилання на коментар Поділитися на інших сайтах More sharing options...
xPavelx Опубліковано: 21 липня 2020 Поділитись Опубліковано: 21 липня 2020 Пока в планах на крышу - система кондиционирования, емкость для воды на полив и, возможно, солнечные батареи В случае расширения семьи оставляем возможность путем нехитрых манипуляций и за не глобальные деньги достроить еще 1 санузел и спальню на одной секции а зачем емкость для полива на крышу ? она же горячая будет, да еще и цвести наверное начнет Посилання на коментар Поділитися на інших сайтах More sharing options...
Замужняя Опубліковано: 21 липня 2020 Автор Поділитись Опубліковано: 21 липня 2020 а зачем емкость для полива на крышу ? она же горячая будет, да еще и цвести наверное начнет Имитация водонапорной башни - самотеком, без электричества, спокойно подается вода с высоты. Что касается цветения такой емкости, поспрашиваю, но по идее не должна - вода полностью меняется за сутки. Что касается температуры - холодной водой не очень полезно поливать растения, теплая более корректна. Посилання на коментар Поділитися на інших сайтах More sharing options...
zea1212 Опубліковано: 21 липня 2020 Поділитись Опубліковано: 21 липня 2020 Поздравляю с тем, что отважились, легкой стройки. А Новоселки какого района? Посилання на коментар Поділитися на інших сайтах More sharing options...
Замужняя Опубліковано: 21 липня 2020 Автор Поділитись Опубліковано: 21 липня 2020 Поздравляю с тем, что отважились, легкой стройки. А Новоселки какого района? Спасибо Вышгородский район 2 Посилання на коментар Поділитися на інших сайтах More sharing options...
Gitan Опубліковано: 21 липня 2020 Поділитись Опубліковано: 21 липня 2020 Имитация водонапорной башни - самотеком, без электричества, спокойно подается вода с высоты. Что касается цветения такой емкости, поспрашиваю, но по идее не должна - вода полностью меняется за сутки. Что касается температуры - холодной водой не очень полезно поливать растения, теплая более корректна. Для капельного полива совсем не обязательна теплая вода. Посилання на коментар Поділитися на інших сайтах More sharing options...
Замужняя Опубліковано: 22 липня 2020 Автор Поділитись Опубліковано: 22 липня 2020 За месяц обзавелись всякими полезностями для удобства в работе по участку. Пока вне конкуренции - дробилка для веток от Макиты. Быстро, почти бесшумно, может справится любой! Кусочки получаются небольшие, подойдут для мульчирования. Мы пока выбрасываем, так как грядки только в планах на следующий год, но гаджет помог сэкономить уйму денег на вывозе мусора! 1 большое дерево превращается в 3-4 мешка и крупные ветки отправляются в поленницу с расчетом на будущие шашлычки Сегодня ударно потрудились, снова вызывали разнорабочего для помощи в уборке участка, почти чистенько уже 5 Посилання на коментар Поділитися на інших сайтах More sharing options...
Замужняя Опубліковано: 14 листопада 2020 Автор Поділитись Опубліковано: 14 листопада 2020 Ох, замоталась и напрочь забыла о том, что неплохо было бы все описать. Планировали в следующем году поставить терраску и площадку для парковки. Но оно как-то само собой получилось Что сделано полезного с конца июля: ~ То чего ждали больше всего - Утеплили крышу + разуклонка технониколем + мембрана. Итого местами +-40 см пенополистирола получилось. Особенно актуально, на фоне того, что в ливень вычерпали почти тонну воды по подсчётам, со второго этажа. И это мы были подготовленными, так как после первого ливня нас ждала лужа на первом этаже, почти 2 см. Так что крыше мы радовались, как дети ~ Пристроили террасу. Несъёмная опалубка для заливной крыши из бетона. На зиму планируем успеть гидроизолировать стык с домом и покрыть чем-то полезным сам бетон. Пол - бетонная плита на щебневой подушке, будет плитка. Отмостка в уровень, тоже планируем плитку. ~ Залили парковку. При необходимости можно тугенько поставить 4 внедорожника. На нас 2х места хватает с головой и я могу парковаться не очень ровно и не очень аккуратно. Радует невероятно, так как сейчас паркуемся "галочкой" и между задними бамперами 20-30 см, по снегу ооочень дискомфортно и стрёмно мне. ~ Поставили окна и стеклянную дверь. Лично мой бзик, очень уж хотела двери без порога, получила) ~ Углубили пол первого этажа в песок, яму выкопали. Залили плиту в доме на первом этаже, оставив место под утепление 10 пенополистирола и теплый пол. Теплые полы готовы, осталось стяжку залить на неделе и вообще восторг. Между полом гостиной и террасой не будет перепада высоты, только мини порожек двери. ~ Уже готова система канализации и разводка воды в доме. У форумчанина заказывали, по отзывам, пока довольна ~ Пройдена половина дороги к газу, иначе никаких денег не напасешься на отопление. Пока в домике холодно, даже с обогревателем. За прошлый месяц 3500 за свет отдали( ~ Разровняли участок почти в уровень. Завезли несколько крупномеров и чуточку мелочи. Радует глаз, зеленеет ~ Поставили скелет забора. Ворота, калитка. Осталось навесить штакетник, пока ждём комплектующие в цвет. ~ Насмотревшись на домики друзей, сделали водосточку с запасом. Кольцо на 2.5 метра. Яма была гигантская ~ Снова вывезли 5 машин мусора и + 4 КАМАЗа ненужного грунта 11 Посилання на коментар Поділитися на інших сайтах More sharing options...
Ната_ДнДз Опубліковано: 15 листопада 2020 Поділитись Опубліковано: 15 листопада 2020 Ну вы-молодцы,конечно...жаль,что показан небольшой фрагмент стройки-дома,но,всё равно-выглядит отлично! 1 Посилання на коментар Поділитися на інших сайтах More sharing options...
Замужняя Опубліковано: 15 листопада 2020 Автор Поділитись Опубліковано: 15 листопада 2020 Ну вы-молодцы,конечно...жаль,что показан небольшой фрагмент стройки-дома,но,всё равно-выглядит отлично! Вот зальют на неделе стяжку и у меня будет несколько свободных дней, так что устрою домику фотосессию Посилання на коментар Поділитися на інших сайтах More sharing options...
Astrolog_ua Опубліковано: 17 листопада 2020 Поділитись Опубліковано: 17 листопада 2020 Спасибо Вышгородский район а какая улица? Добавлено через 1 минуту Лично мой бзик, очень уж хотела двери без порога, получила) и у меня такой бзик на будущее строительство. расскажите как в холода с такой дверью. Посилання на коментар Поділитися на інших сайтах More sharing options...
Замужняя Опубліковано: 18 листопада 2020 Автор Поділитись Опубліковано: 18 листопада 2020 @Astrolog_ua, пока нет отопления - в домике перманентно холодно, так что насчёт холода от двери не подскажу сейчас, к весне будет ясно. Но оконщики рассказывали, что могут быть проблемы( мы сделали внутренний порог, в полу, как и положено, который без мостика холода. Зимой будет понятно насколько это помогает Улица Центральная, мы в СТ Посилання на коментар Поділитися на інших сайтах More sharing options...
alekssell Опубліковано: 18 листопада 2020 Поділитись Опубліковано: 18 листопада 2020 Интересно. Совсем другой дом получается. На террасу металлопластиковая дверь? Я вот долго думал какую ставить и выбрал всё-таки металлопластиковую с профилем T118 с алюминиевым порогом. И так и не уверен насколько это верно, может алюминиевую нужно было всё-таки. Но у приятелей стоит такая, вроде нормально. 1 Посилання на коментар Поділитися на інших сайтах More sharing options...
Замужняя Опубліковано: 18 листопада 2020 Автор Поділитись Опубліковано: 18 листопада 2020 На террасу металлопластиковая дверь? Да, все правильно) Дверь не просто на террасу, это будет единственная дверь в дом. Я долго выбирала кого взять и остановилась на ТМ Века в 70 профиле. Порадовали сроки и цена, а также возможность двусторонней ламинации + цвет в массе. Надеюсь, что будет теплышко Посилання на коментар Поділитися на інших сайтах More sharing options...
alekssell Опубліковано: 19 листопада 2020 Поділитись Опубліковано: 19 листопада 2020 Да, все правильно) Дверь не просто на террасу, это будет единственная дверь в дом. Я долго выбирала кого взять и остановилась на ТМ Века в 70 профиле. Порадовали сроки и цена, а также возможность двусторонней ламинации + цвет в массе. Надеюсь, что будет теплышко Говорят может повести ее от перепадов температур. В этом смысле алюминиевая надёжней. Но надеюсь, что будет нормально. Посилання на коментар Поділитися на інших сайтах More sharing options...
eam Опубліковано: 19 листопада 2020 Поділитись Опубліковано: 19 листопада 2020 Говорят может повести ее от перепадов температур. В этом смысле алюминиевая надёжней. Но надеюсь, что будет нормально. У меня тоже мп двери. Правда рехау но не принципиально. Если профиль дверной и с правильным армированием то ничего не ведет. 1 Посилання на коментар Поділитися на інших сайтах More sharing options...
ARCH INNOVATION Опубліковано: 20 листопада 2020 Поділитись Опубліковано: 20 листопада 2020 Ох, замоталась и напрочь забыла о том, что неплохо было бы все описать. Планировали в следующем году поставить терраску и площадку для парковки. Но оно как-то само собой получилось Что сделано полезного с конца июля: ~ То чего ждали больше всего - Утеплили крышу + разуклонка технониколем + мембрана. Итого местами +-40 см пенополистирола получилось. Особенно актуально, на фоне того, что в ливень вычерпали почти тонну воды по подсчётам, со второго этажа. И это мы были подготовленными, так как после первого ливня нас ждала лужа на первом этаже, почти 2 см. Так что крыше мы радовались, как дети ~ Пристроили террасу. Несъёмная опалубка для заливной крыши из бетона. На зиму планируем успеть гидроизолировать стык с домом и покрыть чем-то полезным сам бетон. Пол - бетонная плита на щебневой подушке, будет плитка. Отмостка в уровень, тоже планируем плитку. ~ Залили парковку. При необходимости можно тугенько поставить 4 внедорожника. На нас 2х места хватает с головой и я могу парковаться не очень ровно и не очень аккуратно. Радует невероятно, так как сейчас паркуемся "галочкой" и между задними бамперами 20-30 см, по снегу ооочень дискомфортно и стрёмно мне. ~ Поставили окна и стеклянную дверь. Лично мой бзик, очень уж хотела двери без порога, получила) ~ Углубили пол первого этажа в песок, яму выкопали. Залили плиту в доме на первом этаже, оставив место под утепление 10 пенополистирола и теплый пол. Теплые полы готовы, осталось стяжку залить на неделе и вообще восторг. Между полом гостиной и террасой не будет перепада высоты, только мини порожек двери. ~ Уже готова система канализации и разводка воды в доме. У форумчанина заказывали, по отзывам, пока довольна ~ Пройдена половина дороги к газу, иначе никаких денег не напасешься на отопление. Пока в домике холодно, даже с обогревателем. За прошлый месяц 3500 за свет отдали( ~ Разровняли участок почти в уровень. Завезли несколько крупномеров и чуточку мелочи. Радует глаз, зеленеет ~ Поставили скелет забора. Ворота, калитка. Осталось навесить штакетник, пока ждём комплектующие в цвет. ~ Насмотревшись на домики друзей, сделали водосточку с запасом. Кольцо на 2.5 метра. Яма была гигантская ~ Снова вывезли 5 машин мусора и + 4 КАМАЗа ненужного грунта К стати, оч прикольно получается. Арки и плоская крыша. Еще бы пару пальм и тогда - Арабская ночь. Посилання на коментар Поділитися на інших сайтах More sharing options...
Замужняя Опубліковано: 20 листопада 2020 Автор Поділитись Опубліковано: 20 листопада 2020 @ARCH INNOVATION, арка у дома была только одна, с момента его постройки, к сожалению, уж очень я их люблю. Так что дом в виде кубика обрастает круглыми элементами в виде круглой бетонной площадки для мангала, круглыми и скруглёнными клумбами, закругленными углами террас и планируются круглые дорожки а следующем году. Можно смело задумываться над пальмами, не помешают))) Посилання на коментар Поділитися на інших сайтах More sharing options...
Рекомендовані повідомлення
Створіть акаунт або увійдіть у нього для коментування
Ви маєте бути користувачем, щоб залишити коментар
Створити акаунт
Зареєструйтеся для отримання акаунта. Це просто!
Зареєструвати акаунтУвійти
Вже зареєстровані? Увійдіть тут.
Увійти зараз