muvic Опубліковано: 6 травня 2021 Поділитись Опубліковано: 6 травня 2021 На моїй пам'яті ще жоден армований стовп не падав. І арматури 3 прутки бачив, і 50х50. Хоча ні, брешу, колись у замовника сила тяжіння + сила вітру поклала на землю весь бічний паркан. Але там армування стовпів було пустими пивними пляшками (ті хто стовпчики робив - просто виродки кончені). Якщо ваша труба 60-та теж на метр в землі, то нічого їй не буде. Відкатні ворота не такі вибагливі до міцності стовпчиків, як розпашні. 1 Посилання на коментар Поділитися на інших сайтах More sharing options...
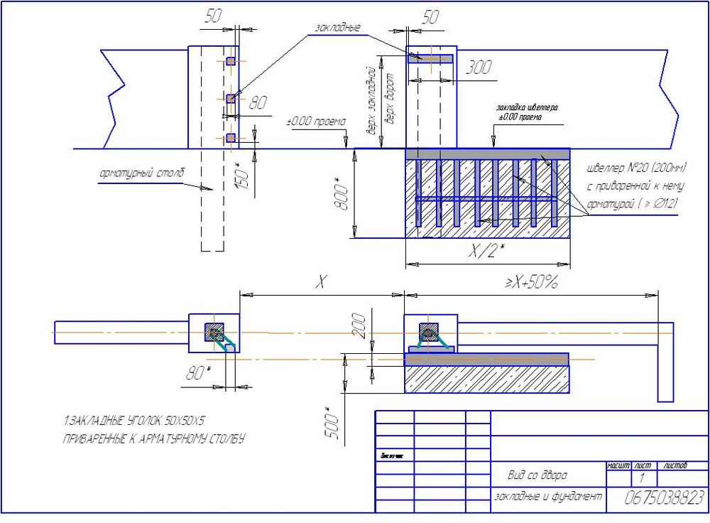
bulaniy.sv Опубліковано: 6 травня 2021 Поділитись Опубліковано: 6 травня 2021 У Вас отличная армировка столба. Ничего не нужно переделывать. На поверхность столбов нужно вывести закладные, приварив к этой профильной трубе (60х60х3 мм.) и кабеля для фотоэлементов и сигнальной лампы. Кабеля не нужно выводить на поверхность столба в гофре или пластиковой трубе. Получите техзадание у поставщика ворот, калитки и автоматики. Раствором заполнять столб нужно в последнюю очередь, когда автоматика будет установлена, кабеля для светильников проведены, светильники установлены и подключены, домофон и эл. замок подключен и проверен. Закладные уже вывели, использовал схему, которую нашел на форуме (давно еще, сохранил). Провода проверили. P.S. Сторона в которую будут откатываться ворота, из-за перепада высота ленты там 600 мм, соответственно столб залит в монолите 600 мм. Можно оставить как есть? Пролет 3500 Посилання на коментар Поділитися на інших сайтах More sharing options...
bulaniy.sv Опубліковано: 6 травня 2021 Поділитись Опубліковано: 6 травня 2021 На моїй пам'яті ще жоден армований стовп не падав. І арматури 3 прутки бачив, і 50х50. Хоча ні, брешу, колись у замовника сила тяжіння + сила вітру поклала на землю весь бічний паркан. Але там армування стовпів було пустими пивними пляшками (ті хто стовпчики робив - просто виродки кончені). Якщо ваша труба 60-та теж на метр в землі, то нічого їй не буде. Відкатні ворота не такі вибагливі до міцності стовпчиків, як розпашні. У меня лента высотой от 450 до 600 мм (перепад, 200), армированная 6-я продольными (12 арматура) и хомут 8 мм с шагом 300. Лента стоит на столбе монолитном 450 на 450 (глубина около 1200), столб армирован с выпуском арматуры, которая заходит в ленту, профильная труба установлена на монолитные столбы, после залили ленту (то есть профильный столб в армированной монолитной ленте высотой 600 мм почти (в сторону отката). Оставить как есть? Посилання на коментар Поділитися на інших сайтах More sharing options...
Вратарь Опубліковано: 7 травня 2021 Поділитись Опубліковано: 7 травня 2021 Закладные уже вывели, использовал схему, которую нашел на форуме (давно еще, сохранил). Провода проверили. P.S. Сторона в которую будут откатываться ворота, из-за перепада высота ленты там 600 мм, соответственно столб залит в монолите 600 мм. Можно оставить как есть? Пролет 3500 Конечно оставляйте и ничего не переделывайте! Отличная подготовка и армировка столба. Схемы мои, правильно сохраняете). 1 Посилання на коментар Поділитися на інших сайтах More sharing options...
bulaniy.sv Опубліковано: 7 травня 2021 Поділитись Опубліковано: 7 травня 2021 Конечно оставляйте и ничего не переделывайте! Отличная подготовка и армировка столба. Схемы мои, правильно сохраняете). Спасибо за схему) Сделали все четко по ней 1 Посилання на коментар Поділитися на інших сайтах More sharing options...
Рекомендовані повідомлення
Створіть акаунт або увійдіть у нього для коментування
Ви маєте бути користувачем, щоб залишити коментар
Створити акаунт
Зареєструйтеся для отримання акаунта. Це просто!
Зареєструвати акаунтУвійти
Вже зареєстровані? Увійдіть тут.
Увійти зараз