Malchish Опубліковано: 15 вересня 2020 Поділитись Опубліковано: 15 вересня 2020 Подскажите какие могут быть адекватные по цене/качество варианты по молниезащите для частного дома, кроме классического варианта с медным или оцинкованым прутком протянутом по всей крыше? Например один мой товарищ заправки газовые строит, затронул с ним эту тему, так он на полном серьезе мне предлагал на участке мачту поставить метров 20 высотой, - в качестве молниезащиты как на заправке.. Я глубоко копать не хочу, но может опытные люди подскажут.. Нахожусь на этапе коробки (эл-во на времянке) и перед тем как сделать отмостку хочу сделать молниезащиту и заземление, проложить кабеля красиво под землей и завести в котельную.. И может что-то посоветует хороших исполнителей... вот в соотв. ветке уже разместил обьяву..: https://www.stroimdom.com.ua/forum/showthread.php?t=239358 Посилання на коментар Поділитися на інших сайтах More sharing options...
shneider_vova Опубліковано: 15 вересня 2020 Поділитись Опубліковано: 15 вересня 2020 контур молниезащиты - это далеко не самое дорогое, что будет в молниезащите. наружная часть тоже совсем не дешевая, особенно если на крыше будет натуральная черепица или мембрана. УЗИП тоже недешовое удовольствие Посилання на коментар Поділитися на інших сайтах More sharing options...
Malchish Опубліковано: 15 вересня 2020 Автор Поділитись Опубліковано: 15 вересня 2020 контур молниезащиты - это далеко не самое дорогое, что будет в молниезащите. наружная часть тоже совсем не дешевая, особенно если на крыше будет натуральная черепица или мембрана. УЗИП тоже недешовое удовольствие Я догадываюсь, что все не дешевое... сейчач вообще нет ничего дешевого в строительстве.. но как говориться не дороже денег... "или мембрана" - тут не понял.. какая мембрана имеется ввиду? У меня композитная черепица, уже положили. Посилання на коментар Поділитися на інших сайтах More sharing options...
shneider_vova Опубліковано: 15 вересня 2020 Поділитись Опубліковано: 15 вересня 2020 Ага, точно, вспомнил, что видел в тендере. не уверен, что там есть крепления, не дырявящие черепицу. молниезащита состоит: 1) из внешнего контура заземления - простого штыревого будет мало. у меня закопана полоса по периметру + 3-х метровые штыревые 3 или 4 штуки в дополнение к 9-метровому основному. Сопротивление менее 2 Ом. мне обошлось примерно в 12 тыс, с учетом, что в те же траншеи у меня уложена ливневая канализация с крыши (то есть грунтовых работ как таковых не было) 2) нужно сделать молниеприемники на трубах и спустить с них импульс вниз к контуру. Это не делал. стоимость порядка 15 тыс - по предложению 3) узип в щитке. 5-8 тыс, в зависимости. Посилання на коментар Поділитися на інших сайтах More sharing options...
Malchish Опубліковано: 15 вересня 2020 Автор Поділитись Опубліковано: 15 вересня 2020 Ага, точно, вспомнил, что видел в тендере. не уверен, что там есть крепления, не дырявящие черепицу. молниезащита состоит: 1) из внешнего контура заземления - простого штыревого будет мало. у меня закопана полоса по периметру + 3-х метровые штыревые 3 или 4 штуки в дополнение к 9-метровому основному. Сопротивление менее 2 Ом. мне обошлось примерно в 12 тыс, с учетом, что в те же траншеи у меня уложена ливневая канализация с крыши (то есть грунтовых работ как таковых не было) 2) нужно сделать молниеприемники на трубах и спустить с них импульс вниз к контуру. Это не делал. стоимость порядка 15 тыс - по предложению 3) узип в щитке. 5-8 тыс, в зависимости. Вполне вменяемо по цене... Я буду делать полный комплекс вместе с сеткой на крыше (по классике) если другие варианты отсутствуют... Исполнителя можете рекомендовать? Посилання на коментар Поділитися на інших сайтах More sharing options...
shneider_vova Опубліковано: 15 вересня 2020 Поділитись Опубліковано: 15 вересня 2020 Вполне вменяемо по цене... Я буду делать полный комплекс вместе с сеткой на крыше (по классике) если другие варианты отсутствуют... Исполнителя можете рекомендовать? Сетка на крыше вроде не нужна, если есть выступающие части, на которых можно закрепить молниеприемником. Исполнитель, как и я, в Днепре Посилання на коментар Поділитися на інших сайтах More sharing options...
Energon Опубліковано: 15 вересня 2020 Поділитись Опубліковано: 15 вересня 2020 Подскажите какие могут быть адекватные по цене/качество варианты по молниезащите для частного дома, кроме классического варианта с медным или оцинкованым прутком протянутом по всей крыше? Например один мой товарищ заправки газовые строит, затронул с ним эту тему, так он на полном серьезе мне предлагал на участке мачту поставить метров 20 высотой, - в качестве молниезащиты как на заправке.. Я глубоко копать не хочу, но может опытные люди подскажут.. Нахожусь на этапе коробки (эл-во на времянке) и перед тем как сделать отмостку хочу сделать молниезащиту и заземление, проложить кабеля красиво под землей и завести в котельную.. И может что-то посоветует хороших исполнителей... вот в соотв. ветке уже разместил обьяву..: https://www.stroimdom.com.ua/forum/showthread.php?t=239358 Для початку, коли до Вас приїдуть Ваш будинок дивитись, попросять план будинку, план даху, оцінять де знаходиться будинок. Потім замовлять проект блискавкозахисту(хороші фірми, які продають то добро, роблять такі проекти). Будете мати на руках не тільки проект, а і кошторис робіт і матеріалів. Аж потім приступят до робіт. Аби так, нормальні люди його не робять)) 2 Посилання на коментар Поділитися на інших сайтах More sharing options...
shneider_vova Опубліковано: 15 вересня 2020 Поділитись Опубліковано: 15 вересня 2020 Для початку, коли до Вас приїдуть Ваш будинок дивитись, попросять план будинку, план даху, оцінять де знаходиться будинок. Потім замовлять проект блискавкозахисту(хороші фірми, які продають то добро, роблять такі проекти). Будете мати на руках не тільки проект, а і кошторис робіт і матеріалів. Аж потім приступят до робіт. Аби так, нормальні люди його не робять)) все верно. Я проект молниезащиты заказывал вместе с проектом дома, у Z500. понятно, что там все по типовому тяп-ляп посчитано, но объемы материалов примерно были понятны Посилання на коментар Поділитися на інших сайтах More sharing options...
Malchish Опубліковано: 15 вересня 2020 Автор Поділитись Опубліковано: 15 вересня 2020 Для початку, коли до Вас приїдуть Ваш будинок дивитись, попросять план будинку, план даху, оцінять де знаходиться будинок. Потім замовлять проект блискавкозахисту(хороші фірми, які продають то добро, роблять такі проекти). Будете мати на руках не тільки проект, а і кошторис робіт і матеріалів. Аж потім приступят до робіт. Аби так, нормальні люди його не робять)) В конце концов Работу все же люди работают, в паре с тем кто проектирует, работая на фирму или на себя. Проект это всегда хорошо и я только за. И всё-таки хотелось-бы вернуться к теме топика: я правильно понимаю что вариант один - классика с сеткой на крыше, опусками и контуром в земле? Остальное, типа 20-метровых мачт закопаных на участке, - это от лукавого ну или просто не для частного строительства? Посилання на коментар Поділитися на інших сайтах More sharing options...
Energon Опубліковано: 15 вересня 2020 Поділитись Опубліковано: 15 вересня 2020 В конце концов Работу все же люди работают, в паре с тем кто проектирует, работая на фирму или на себя. Проект это всегда хорошо и я только за. И всё-таки хотелось-бы вернуться к теме топика: я правильно понимаю что вариант один - классика с сеткой на крыше, опусками и контуром в земле? Остальное, типа 20-метровых мачт закопаных на участке, - это от лукавого ну или просто не для частного строительства? Ну якщо хочете всі блискавки по району на себе ловити, то тоді мабуть 20м мачта саме воно Для заправок просто норми інші, і там мачти рулять. 2 Посилання на коментар Поділитися на інших сайтах More sharing options...
shneider_vova Опубліковано: 15 вересня 2020 Поділитись Опубліковано: 15 вересня 2020 я правильно понимаю что вариант один - классика с сеткой на крыше, опусками и контуром в земле? ну вариант по физике 1 - надо поймать молнию. молниеприемник защищает все под собой в зоне конуса, одетого острием вверх на молниеприемник. поэтому, чтобы защитить дом 12*15 - ну да, надо или молниеприемник задирать высоко в небо, либо делать их несколько. Есть еще вариант активной защиты - когда молния не ловится, а притягивается. возможно, там нет таких ограничений по конусу, но думаю, там и цена побольше, и приманивать к себе молнии - как то не по мне Посилання на коментар Поділитися на інших сайтах More sharing options...
Energon Опубліковано: 15 вересня 2020 Поділитись Опубліковано: 15 вересня 2020 Есть еще вариант активной защиты - когда молния не ловится, а притягивается. возможно, там нет таких ограничений по конусу, но думаю, там и цена побольше, и приманивать к себе молнии - как то не по мне Актианий захист то развод на бабки нам так спеціаліст розповідав)) 2 Посилання на коментар Поділитися на інших сайтах More sharing options...
Malchish Опубліковано: 15 вересня 2020 Автор Поділитись Опубліковано: 15 вересня 2020 В общем понятно, - значит будет классика. Посилання на коментар Поділитися на інших сайтах More sharing options...
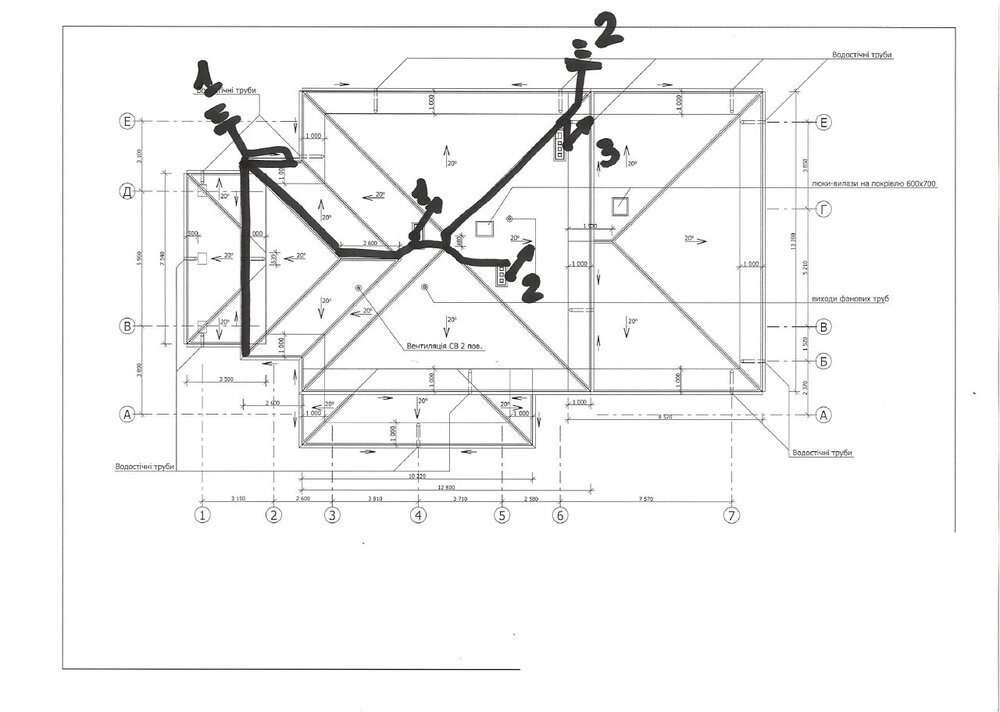
Malchish Опубліковано: 16 жовтня 2020 Автор Поділитись Опубліковано: 16 жовтня 2020 На днях закончили монтаж. Для тех кому интересно мой опыт: Получилось неплохо и по феншую, это как мне кажится.... Надземная часть: На каждую трубу поставили по громоотводу или как их там сейчас обзывают, - молниеотводы около 3 м длиной (за трубу выступает метра 2 вверх..) ... По конькам закрепили проволку (закрепляли вандально, - вкручиванием держателей в конек, но все отверстия герметились, - крепления на вид герметичные и после дождя протечек не обнаружено, но это пока новое все, - что будет через пару лет снеговой нагрузки и других воздействий - время покажет..) все это соеденили и оставили бублики проволоки на крыше (когда будут отделывать фасад и подшивать крышу - сделают опуски и соеденят с подземной частью всего этого). Подземная часть: Выкопали траншею по переиметру дома, закопали полосу, вбили 3 электрода, соеденили. На моей глине понадобилось всего 4 стержня чтоб получить 2 Ома на зазмеление и в два раза больше стережней чтоб получить 4 Ома на молниезащиту. Заземление и молниезащита получается в одном контуре, - по поводу этого слышал разные мнения, одни говорят так должно быть, другие, наоборот, что лучше делать разные контура... Где тру - так и не понял. Молниезащиту делали в среднем бюджете, и варианте "минимальной достаточности" - проволкой затянута не вся крыша, - а только верхний ее уровень (она у меня многоуровневая) и то не вся, - по некоторым конькам проволку не пускали. Два опуска. Картинку прилагаю. Теперь о бюджете (без конкретных цифр). Сначала, после верхних постов в этой теме, меня сама нашла одна организация, назовем ее №1 - предложила посчитать.. ну я не отказался... Параллельно я ищу сам... Когда искал исполнителя - не знал к кому обратиться, вспомнил про одних случайных знакомых, которые вроде когда-то говорили, что работают в этой теме... Созвонился, дали подрядчика, котрый дал еще субподрядчика.. в общем 3-и руки.. считали, считали через недели 2 насчитали (назовем этого субподрядчика №2). Вобщем №1 и 2 почти одновременно выдали смету... И смета №1 была ровно в 2 раза больше сметы №2.. . По типу исполнения почти одинаково все было (покрытие всей площади крыши проволкой и т.д. )... Я было уже подумал, ну ок - выбираем вариант №2, но тут нарисовался знакомый, который оказался проектантом как раз в профильной организации (назовем его №3). Я его и спросил, вот еслиб ты себе делал - как сделал? После чего и родилась эта схема минимальной достаточности... исполнители - его же монтажники, материал - алюминий, по деньгам - примерно на 40% дешевле варианта №2, да - немного сэкономили на материале и не покрывали все 100% крыши проволокой, да можно было еще пару лишних опусков сделать... Сэкономил? Выйдет боком? ну... х.з. скорее доверился профессионалу.. Вскоре предстоит следующий этап - найти не просто хорошого электрика, а гуру, который без проекта (ну разве что на коленках состряпаная 3D визуализация будет и то без розеток и выключателей), реализует мне всю разводку электрики в доме, ввод в дом и разводку по территории участка. И это с моих слов, с паузами "надо полумать как лучше" и "ой забыл - тут же еще розетку для гирлянды нужно вывести", в холодрыгу в неотапливаемом доме (теплопушку думаю куплю, ну и все проемы будут пленкой затянуты, но все равно приятного мало)... Поэтому и понадобится такой человек, который на опыте сам многое подскажет.. Принци примерно такой будет, как в соседней теме про проект по электрике высказался ЭлектроМеханиК : Так возникает вопрос - нахрена электрику такой проект? И нахрена за него деньги платить? Может эту часть денег перенаправить на зарплату более квалифицированного электрика который это все сам знает? 3 Посилання на коментар Поділитися на інших сайтах More sharing options...
shneider_vova Опубліковано: 16 жовтня 2020 Поділитись Опубліковано: 16 жовтня 2020 насколько помню, расстояние между опусками как то лимитируется. у меня получилось 3 опуска на меньшую крышу а все таки цифры интересны Посилання на коментар Поділитися на інших сайтах More sharing options...
S_Vladimir_79 Опубліковано: 16 жовтня 2020 Поділитись Опубліковано: 16 жовтня 2020 (змінено) Из того, что написано, уже 3 замечания: 1. Мы, например, никогда не ставим молниеприемники, если их некуда подключать, т.е. пока не сделаны опуски и заземление. 2. Для молниезащиты не нужно 4 Ома, по нормам 10 Ом достаточно. Ничего плохого в этом нет, но на стержнях не сэкономили. 3. И если нет чертежей с графическим указанием зон защиты дома, то нельзя точно понять: защищён ли весь дом или только его часть. Для того, чтобы полностью оценить качество материалов и работ, нужно хотя бы пару фото. Например, если держатели пластиковые на крыше, то лучше их заменить на металлические, пока ещё монтажники будут доделывать, чтобы через 2-3 года не искать других. Рабочее и молниезащитное заземления нужно обязательно объединять, тут всё правильно сделали. Змінено 16 жовтня 2020 користувачем S_Vladimir_79 2 Посилання на коментар Поділитися на інших сайтах More sharing options...
Malchish Опубліковано: 19 жовтня 2020 Автор Поділитись Опубліковано: 19 жовтня 2020 насколько помню, расстояние между опусками как то лимитируется. у меня получилось 3 опуска на меньшую крышу а все таки цифры интересны Отправили в лс ответ по цифрам. Добавлено через 5 минут Из того, что написано, уже 3 замечания: 1. Мы, например, никогда не ставим молниеприемники, если их некуда подключать, т.е. пока не сделаны опуски и заземление. 2. Для молниезащиты не нужно 4 Ома, по нормам 10 Ом достаточно. Ничего плохого в этом нет, но на стержнях не сэкономили. 3. И если нет чертежей с графическим указанием зон защиты дома, то нельзя точно понять: защищён ли весь дом или только его часть. Для того, чтобы полностью оценить качество материалов и работ, нужно хотя бы пару фото. Например, если держатели пластиковые на крыше, то лучше их заменить на металлические, пока ещё монтажники будут доделывать, чтобы через 2-3 года не искать других. Рабочее и молниезащитное заземления нужно обязательно объединять, тут всё правильно сделали. По первому пункту - чем чревато? Если вдруг попадет молния - в неподключенный молниеотвод - что произойдет? По п.2. мне что-то там говорили про генератор: если он планируется (а он таки планируется), то, то-ли заземление, то-ли молниезащита желательно чтоб было не более 4 Ома.. а так как контур общий, - я правильно понимаю, что 4 Ома должно быть максимум на контуре, или не так? Посилання на коментар Поділитися на інших сайтах More sharing options...
S_Vladimir_79 Опубліковано: 19 жовтня 2020 Поділитись Опубліковано: 19 жовтня 2020 По первому пункту - чем чревато? Если вдруг попадет молния - в неподключенный молниеотвод - что произойдет? По п.2. мне что-то там говорили про генератор: если он планируется (а он таки планируется), то, то-ли заземление, то-ли молниезащита желательно чтоб было не более 4 Ома.. а так как контур общий, - я правильно понимаю, что 4 Ома должно быть максимум на контуре, или не так? Просто увеличили возможность попадания молнии именно в дом. Произойдет ровно то же, что и без молниеприемников. Если будет генератор, тогда правильно. И не совсем понял, почему отказались от крепежей, которые крепятся без сверления крыши? Посилання на коментар Поділитися на інших сайтах More sharing options...
Energon Опубліковано: 19 жовтня 2020 Поділитись Опубліковано: 19 жовтня 2020 Вскоре предстоит следующий этап - найти не просто хорошого электрика, а гуру, который без проекта (ну разве что на коленках состряпаная 3D визуализация будет и то без розеток и выключателей), реализует мне всю разводку электрики в доме, ввод в дом и разводку по территории участка. И это с моих слов, с паузами "надо полумать как лучше" и "ой забыл - тут же еще розетку для гирлянды нужно вывести", в холодрыгу в неотапливаемом доме (теплопушку думаю куплю, ну и все проемы будут пленкой затянуты, но все равно приятного мало)... Поэтому и понадобится такой человек, который на опыте сам многое подскажет.. Принци примерно такой будет, как в соседней теме про проект по электрике высказался ЭлектроМеханиК : Теплушка не допоможе, звичайно якщо зима не тепла буде. Робили будинок в таку пору без отоплення, приємного мало звичайно. Краще мабуть виконавця на весну знайти)) та і час над проектом подумати буде Посилання на коментар Поділитися на інших сайтах More sharing options...
Malchish Опубліковано: 27 жовтня 2020 Автор Поділитись Опубліковано: 27 жовтня 2020 И не совсем понял, почему отказались от крепежей, которые крепятся без сверления крыши? Монтажники убедительно рвали на себе рубашку, на тему что ниче не случиться с моей крышей... Добавлено через 4 минуты Теплушка не допоможе, звичайно якщо зима не тепла буде. Робили будинок в таку пору без отоплення, приємного мало звичайно. Краще мабуть виконавця на весну знайти)) та і час над проектом подумати буде Весной очень не хочется терять на это время, да и проекта скорее всего таки не будет, - во всяком случае пока не понимаю куда с этим вопросом идти (дизайн проект делать не хочу, а родить проект по электрике без оного можно, но сложно, сам за него садиться пока не хочу..) буду обьяснять все на пальцах + слушать советы электрика, ну и в этой полемике будет находится консенсус и лучшие решения... (делал так не раз, но правда это были квартиры, а там обьем раз в 5 меньше и ньансов разных меньше в столько-же раз..) Посилання на коментар Поділитися на інших сайтах More sharing options...
Nickdecker Опубліковано: 28 жовтня 2020 Поділитись Опубліковано: 28 жовтня 2020 буду обьяснять все на пальцах + слушать советы электрика, ну и в этой полемике будет находится консенсус и лучшие решения.. Смелое, конечно, решение. Даже во время проектирования куча правок и переделок, а чтобы сразу на коленке решать с ходу... Посилання на коментар Поділитися на інших сайтах More sharing options...
Malchish Опубліковано: 28 жовтня 2020 Автор Поділитись Опубліковано: 28 жовтня 2020 Смелое, конечно, решение. Даже во время проектирования куча правок и переделок, а чтобы сразу на коленке решать с ходу... Да такое решение не от того что я так хочу или так правильно.. это больше нехватка времени и непонимание куда бежать, вернее мне всегда все было проще по месту прикинуть и пройтись с электриком по стенам "в живую" так сказать (это когда квартирные ремонты делал).. но в данной ситуации обьем около 300 квадратов, учитывая все хоз. пристройки и я умом таки понимаю, что обьем слишком большой и сейчас так может не выйти, а еще внешняя чать, - все что на участке...... А так.. проект дома есть, разрабатывал его кстати наш форумчанин, общее понимание расстановки мебели тоже есть, но там еще нужно будет поконструировать... Уважаемый, - а вот сделайте мне проект електрики... Во всяком случае я готов обсудить это, - мне прежде всего нужно понять, что понадобится от меня (помимо денег .. правда это тоже не маловажный фактор для принятия решения) для того чтобы появился этот проект (может на какие-то вопросы я еще не готов дать ответ, т.к. многое еще не продумано или только предварительно запланировано.. - приведу пример.. я примерно представляю какую вентиляцию я хочу, но где будут точки подключения и сколько их, - пока не очень предсталяю я хочу чтобы дом был совсем немного умным, без излишеств, но конкретно я этот вопрос еще не продумывал да и наврятли сам способен на это - тут нужен ментор, который предложит и заложит необходимые мне решения.... вот то-же самое со светом и т.д.. возможно это стандартная ситуация, - ну тогда готов ее решать, продумывать решения и с Вашей помощью родить таки проект...) В общем в л.с. скину Вам мой номер, - давайте обсудим... Посилання на коментар Поділитися на інших сайтах More sharing options...
Nickdecker Опубліковано: 28 жовтня 2020 Поділитись Опубліковано: 28 жовтня 2020 Уважаемый, - а вот сделайте мне проект електрики... Вы меня неверно поняли. Я не пытался впарить услуги проектировщика, а просто указал на рискованность затеи делать все "с коленок" в доме. Так что не смогу помочь с проектом, так как проектирования пока хватает с головой на основной работе, мне больше нравится иногда собирать щитки, для смены рода деятельности. Конкретно мой подход по проектированию электрики дома есть в статье на сайте, там же пример всего проекта, так, для общего познания. 1 Посилання на коментар Поділитися на інших сайтах More sharing options...
Malchish Опубліковано: 28 жовтня 2020 Автор Поділитись Опубліковано: 28 жовтня 2020 Вы меня неверно поняли. Я не пытался впарить услуги проектировщика, Да я и в мыслях не имел.. я просто увидел возможность решить свой вопрос, раз уж зашёл в мою тему человек, как раз по профилю, - почему бы не попробовать. А впарить мне что либо трудно.. я ещё тот кадр.. решения принимаю быстро но ошибаюсь в людях редко. Статьи прочёл ещё до того как написать вам. Пока в общем я по прежнему на распутье: то ли делать проект, то ли искать гуру который сможет... Посилання на коментар Поділитися на інших сайтах More sharing options...
Malchish Опубліковано: 30 жовтня 2020 Автор Поділитись Опубліковано: 30 жовтня 2020 Короче, решение принято. Проекта по электрике не будет, - люди подсказали, что без проекта по всем остальным инж. системам это все равно мало чем поможет. Так что буду двигаться по-этапно: разведу электрику базово, попытаюсь заложить все по максимуму что смогу (под все предполагаемое оборудование), потом добавлю сиситему сигнализации, либо заложу под нее все при разводке электрики, потом штукатурка и потом уже остальная инженерка. Естественно столкнусь с тем, что некоторые электрич. коммуникации придется дозаложить под инженерку, поскольку все предусмотреть не реально на первом этапе, тем более без проекта, - ну придется штробить по штукатурке и что-то дозакладывать, менять местами, сдвигать, наращивать... Ищу исполнителя: https://www.stroimdom.com.ua/forum/showthread.php?p=5191421#post5191421 Буду рад, если кто-то из "электро гуру" форума откликнется... Посилання на коментар Поділитися на інших сайтах More sharing options...
Рекомендовані повідомлення
Створіть акаунт або увійдіть у нього для коментування
Ви маєте бути користувачем, щоб залишити коментар
Створити акаунт
Зареєструйтеся для отримання акаунта. Це просто!
Зареєструвати акаунтУвійти
Вже зареєстровані? Увійдіть тут.
Увійти зараз