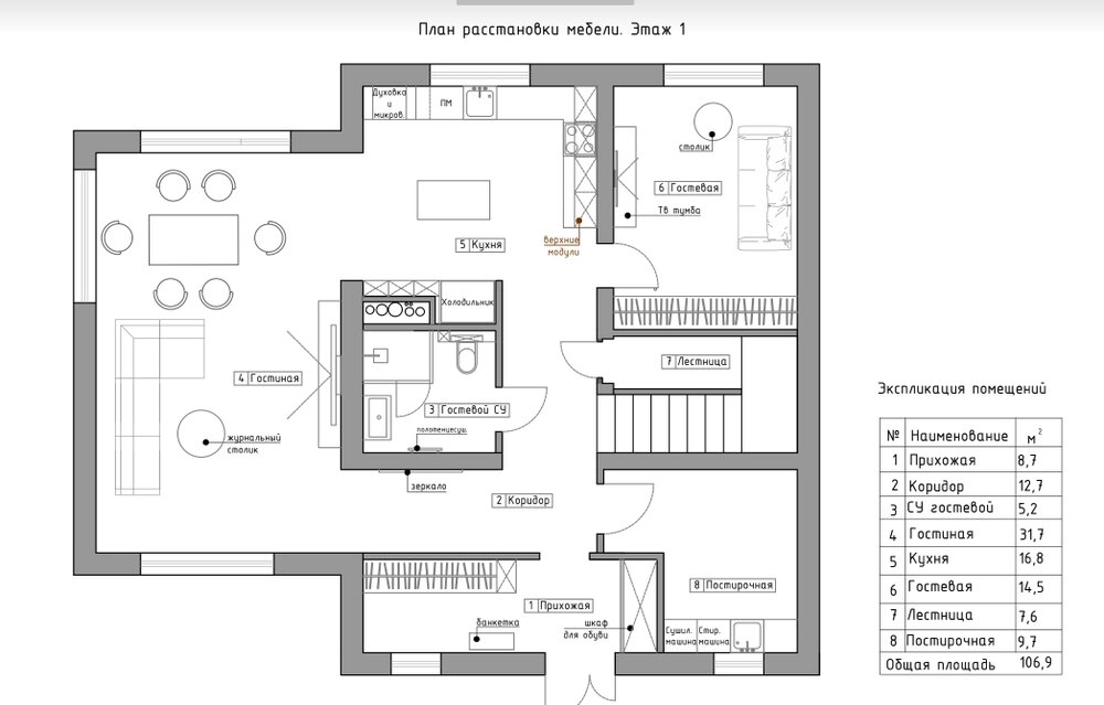
bulaniy.sv Опубліковано: 17 жовтня 2020 Поділитись Опубліковано: 17 жовтня 2020 Добрый вечер! Есть двухэтажный дом (планировку прикрепил, отопление элек. котлом, водяной пол, двухтарифный счетчик). Первый этаж: Коллектор теплого пола на 12 контуров. Второй этаж: Коллектор теплого пола на 8 контуров. Хочется реализовать управление температурой на каждом этаже отдельно, то есть установить терморегулятор на каждом этаже, который в свою очередь будет управлять коллектором. Собственно вопрос с учетом планировки, где лучше всего установить терморегуляторы, чтобы максимально комфортно было? Какой оптимальный производитель (цена/качество)? Устанавливать в стяжку датчики, или непосредственно в самом терморегуляторе есть встроенный датчик (если да, на какой высоте ставить с учетом того, что везде теплые полы? Посилання на коментар Поділитися на інших сайтах More sharing options...
4587derek Опубліковано: 17 жовтня 2020 Поділитись Опубліковано: 17 жовтня 2020 а вариант с двумя котлами не рассматривали? 1 Посилання на коментар Поділитися на інших сайтах More sharing options...
Heliopolis Опубліковано: 18 жовтня 2020 Поділитись Опубліковано: 18 жовтня 2020 Добрый вечер! Есть двухэтажный дом (планировку прикрепил, отопление элек. котлом, водяной пол, двухтарифный счетчик). Первый этаж: Коллектор теплого пола на 12 контуров. Второй этаж: Коллектор теплого пола на 8 контуров. Хочется реализовать управление температурой на каждом этаже отдельно, то есть установить терморегулятор на каждом этаже, который в свою очередь будет управлять коллектором. Собственно вопрос с учетом планировки, где лучше всего установить терморегуляторы, чтобы максимально комфортно было? Какой оптимальный производитель (цена/качество)? Устанавливать в стяжку датчики, или непосредственно в самом терморегуляторе есть встроенный датчик (если да, на какой высоте ставить с учетом того, что везде теплые полы? Если это ключевое для вас, то терморегуляторов на этаже должно быть несколько. Датчик в пол надо,будет более гибкое управление и по температуре поверхности, в терморегулятора встроен датчик воздуха. Стандартная высота установки 1.2-1.5 м. Если бюджет жмет попробуйте радиотермостат один на этаж, методом тыка найдете и место и температуру. 1 Посилання на коментар Поділитися на інших сайтах More sharing options...
Dendnepr Опубліковано: 18 жовтня 2020 Поділитись Опубліковано: 18 жовтня 2020 а вариант с двумя котлами не рассматривали? Интересный вариант. Только место под котел нужно. Да и Он же шумит. 1 Посилання на коментар Поділитися на інших сайтах More sharing options...
bulaniy.sv Опубліковано: 19 жовтня 2020 Автор Поділитись Опубліковано: 19 жовтня 2020 Место для размещения второго котла достаточно.. Неужели нет другого способа? Посилання на коментар Поділитися на інших сайтах More sharing options...
naupv Опубліковано: 19 жовтня 2020 Поділитись Опубліковано: 19 жовтня 2020 Место для размещения второго котла достаточно.. Неужели нет другого способа? Вам дорого или дешево? Никакого второго котла не нужно, не читайте дурные советы. 3 Посилання на коментар Поділитися на інших сайтах More sharing options...
bulaniy.sv Опубліковано: 19 жовтня 2020 Автор Поділитись Опубліковано: 19 жовтня 2020 Вам дорого или дешево? Никакого второго котла не нужно, не читайте дурные советы. Финансы позволяют. Я за оптимальный выбор. Собственно приняли решение ставить в каждую комнату. Всем спасибо. Посилання на коментар Поділитися на інших сайтах More sharing options...
siscom Опубліковано: 28 жовтня 2020 Поділитись Опубліковано: 28 жовтня 2020 Вам дорого или дешево? Никакого второго котла не нужно, не читайте дурные советы. В каждую комнату по котлу.))) Посилання на коментар Поділитися на інших сайтах More sharing options...
Рекомендовані повідомлення
Створіть акаунт або увійдіть у нього для коментування
Ви маєте бути користувачем, щоб залишити коментар
Створити акаунт
Зареєструйтеся для отримання акаунта. Це просто!
Зареєструвати акаунтУвійти
Вже зареєстровані? Увійдіть тут.
Увійти зараз