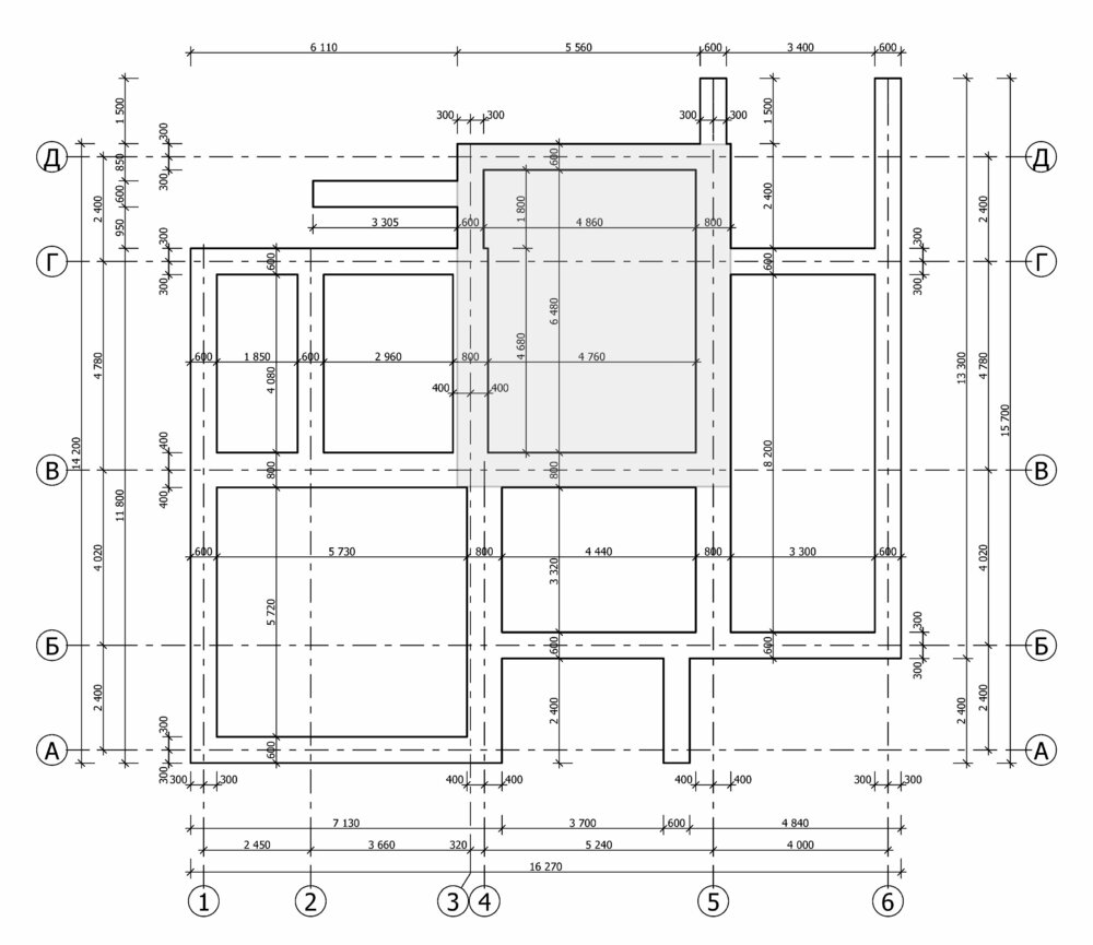
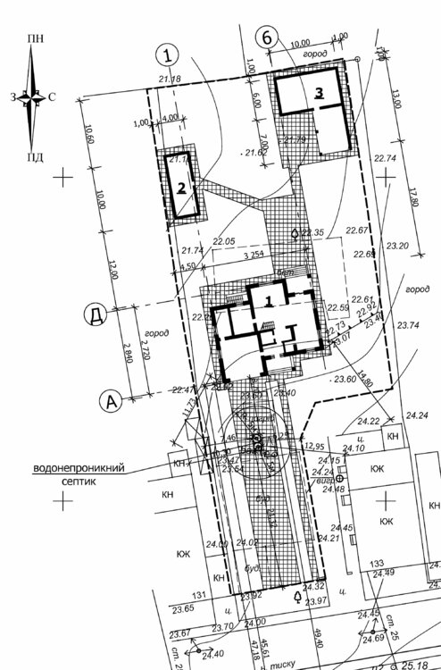
labtec Опубліковано: 26 липня 2021 Поділитись Опубліковано: 26 липня 2021 Добрый день. Хотел бы получить дельный совет как лучше поступить. Если это возможно 🙂 Имеется проект дома, уже практически готов приступать к фундаменту. Да вот не могу определится как лучше копать фундамент - котлован или траншеи. Фундамент - ФБС (высота - 4 блока), без цокольного этажа, будет только небольшой подвал. Перепад от лицевой части дома к задней - 1 метр. Общался с несколькими бригадами - мнения разделились. Одни говорят - копать один большой котлован. Другие - под подвал и дальше траншеи. Возможно здесь будут какие-то здравые мысли? 🙂 План фундаментной подушки. Выделеный участок - подвал. План участка с пятном дом и некоторые разрезы дома, для общего понимания. Посилання на коментар Поділитися на інших сайтах More sharing options...
MAESTRO DNEPR Опубліковано: 26 липня 2021 Поділитись Опубліковано: 26 липня 2021 Если рулить процессом будете Вы, то копайте котлован... если толковый прораб - то он должен рыть траншеи. Посилання на коментар Поділитися на інших сайтах More sharing options...
MAESTRO DNEPR Опубліковано: 26 липня 2021 Поділитись Опубліковано: 26 липня 2021 Глубоко сидит фундамент... либо просадочные грунты, либо архитектор просто не стал заморачиваться и посадил весь фундамент на глубину подвала (в расчёте на котлован)... в любом случае это дополнительные деньги. Посилання на коментар Поділитися на інших сайтах More sharing options...
MAESTRO DNEPR Опубліковано: 26 липня 2021 Поділитись Опубліковано: 26 липня 2021 Низковаты потолки, я бы поднял каждый этаж на один ряд газоблока... потом будете жалеть. 2 Посилання на коментар Поділитися на інших сайтах More sharing options...
labtec Опубліковано: 26 липня 2021 Автор Поділитись Опубліковано: 26 липня 2021 29 минут назад, MAESTRO DNEPR сказал: Если рулить процессом будете Вы, то копайте котлован... если толковый прораб - то он должен рыть траншеи. В том и дело, прораб, с которым я планировал работать, хочет копать котлован. 21 минуту назад, MAESTRO DNEPR сказал: Низковаты потолки, я бы поднял каждый этаж на один ряд газоблока... потом будете жалеть. Спасибо за совет, подумаем над этим 🙂 Посилання на коментар Поділитися на інших сайтах More sharing options...
shneider_vova Опубліковано: 26 липня 2021 Поділитись Опубліковано: 26 липня 2021 у вас черновая плита пола заармирована одной сеткой или двумя? если котлован, то при толщине обратной засыпки более 1.5 метров - никак не уплотнить, то есть черновая плита должна работать как монолитное перекрытие. для этого нужно соответствующее армирование и соответствующая толщина бетона Посилання на коментар Поділитися на інших сайтах More sharing options...
MAESTRO DNEPR Опубліковано: 26 липня 2021 Поділитись Опубліковано: 26 липня 2021 9 минут назад, labtec сказал: В том и дело, прораб, с которым я планировал работать, хочет копать котлован. Гоните его в шею... он не прораб, а мародёр. 1 Посилання на коментар Поділитися на інших сайтах More sharing options...
labtec Опубліковано: 26 липня 2021 Автор Поділитись Опубліковано: 26 липня 2021 4 минуты назад, shneider_vova сказал: у вас черновая плита пола заармирована одной сеткой или двумя? если котлован, то при толщине обратной засыпки более 1.5 метров - никак не уплотнить, то есть черновая плита должна работать как монолитное перекрытие. для этого нужно соответствующее армирование и соответствующая толщина бетона Плита заармирована одной сеткой, высота плиты - 150мм Вот меня так же смущает обратная засыпка и трамбовка в случае с котлованом. Легче уж будет сделать полноценный цокольный этаж 2 Посилання на коментар Поділитися на інших сайтах More sharing options...
Gitan Опубліковано: 27 липня 2021 Поділитись Опубліковано: 27 липня 2021 21 час назад, shneider_vova сказал: у вас черновая плита пола заармирована одной сеткой или двумя? если котлован, то при толщине обратной засыпки более 1.5 метров - никак не уплотнить, то есть черновая плита должна работать как монолитное перекрытие. для этого нужно соответствующее армирование и соответствующая толщина бетона Так там еще 1 метр насыпать от уровня участка. Копайте траншеи. Перекрывайте или плитами пк или монолитный защемленным перекрытием. Посилання на коментар Поділитися на інших сайтах More sharing options...
Рекомендовані повідомлення
Створіть акаунт або увійдіть у нього для коментування
Ви маєте бути користувачем, щоб залишити коментар
Створити акаунт
Зареєструйтеся для отримання акаунта. Це просто!
Зареєструвати акаунтУвійти
Вже зареєстровані? Увійдіть тут.
Увійти зараз