lavilong Опубліковано: 17 грудня 2009 Автор Поділитись Опубліковано: 17 грудня 2009 Я не навязываю свою точку зрения, но вижу некоторые "ошибки" если их так можно назвать. Цоколь. Если это возможно пересмотреть назначение помещений: - к собачатне вопросов нет. - вместо помещения спортзала разместить ТТК+ сауна и С/У(будете потом очень довольны, попарится, посидеть с друзьями, пива попить. Там же сделать постирочную в смысле поставить стиральную машинку. Делайте полноценную баню никакой электрики! Теряется весь смысл такой подмены). - объедините хол с бывшей баней будет где разместить пару тренажеров (больше и не надо уж поверти на слово). Первый этаж. -Если Вы "спускаете" спальную зону в низ, тогда кухня будет не умесна на первом, она чудесно впишется на втором где можно объединить с гостиной, выделив место для столовой и не будет тесновато как сейчас. Второй этаж. - кабинет на первый этаж вместо кухни. - уменьшить с/у- для гостей слишком "жирно" ( лучше с экономить место и сделать больше гостиную) Вообще проект очень даже нечего. Продумайте как Вы будете часто посещать каждое помещение, минимизируйте растояние проходимое ежедневно и будет Вам счастье. УДАЧИ! вот что мне и надо было.. уже все переиграл.. только насчет кухни не согласен.. не хочется бегать на второй этаж, если мне захочется бутер сточить.. гости у меня будут в лучшем случае раз в месяц..спортзал - это пока рабочее название.. сам не знаю что там будет.. сегодня говорил с архитектором.. топочную удастся воткнуть в помещение под приходей.. мин. кубатура должна быть 13 м.куб.. натянули 16.. с запасом кибинет на втором чтоб укрыватся там от жены с детьми, когда допекут))..а толку в нем если постоянно на первом кто-то шорхается.. кухню "разогнал" до 9.5 метров. Посилання на коментар Поділитися на інших сайтах More sharing options...
lavilong Опубліковано: 17 грудня 2009 Автор Поділитись Опубліковано: 17 грудня 2009 Это сейчас Вам так кажется.Потому,что Вы не можете переделать кухню без кардинального вмешательства в конструкцию жилища.Но зачем "тащить " c собой в ДОМ сталинскую кухню.А как хозяйка относится к перспективе тесноты?Или же во всех вопросах Вы проповедуете принцип-"..мы тут подумали,и Я решил..."Я согласен,что в семье должно быть единоначалие,но в вопросах кухни отдайте жене право выбора... :D моя жена раньше жила в хрущевке с кухнем 5,5... такая кухня ей за счастье.. но кухню увеличил до 9,5 метров Посилання на коментар Поділитися на інших сайтах More sharing options...
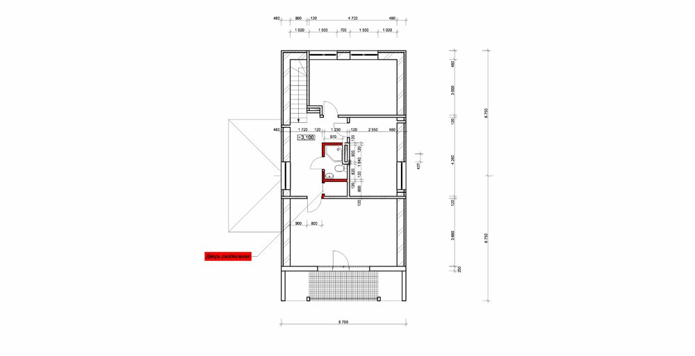
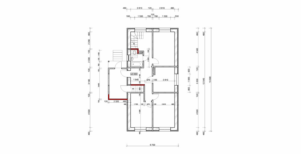
lavilong Опубліковано: 17 грудня 2009 Автор Поділитись Опубліковано: 17 грудня 2009 подвал первый этаж мансарда вот типа модернизированное Посилання на коментар Поділитися на інших сайтах More sharing options...
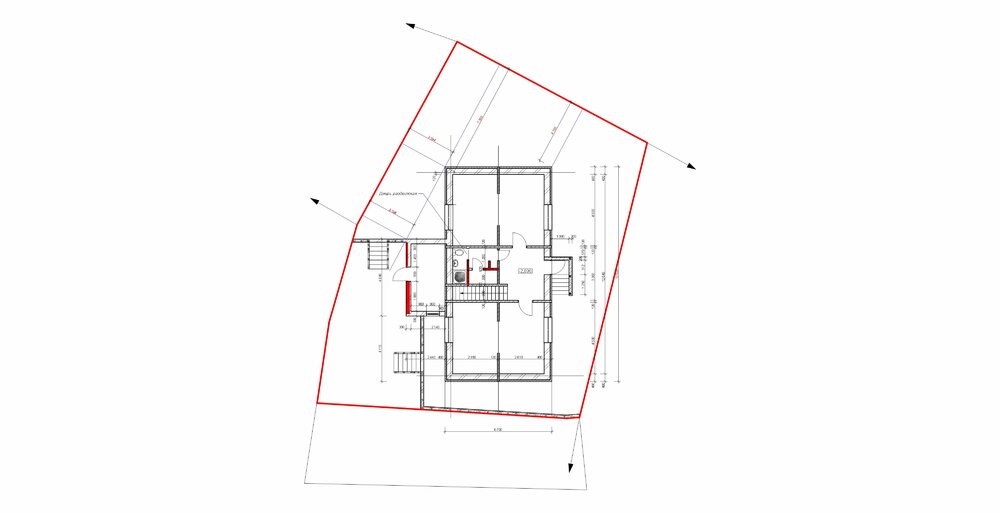
lavilong Опубліковано: 17 грудня 2009 Автор Поділитись Опубліковано: 17 грудня 2009 и вот... Посилання на коментар Поділитися на інших сайтах More sharing options...
lavilong Опубліковано: 17 грудня 2009 Автор Поділитись Опубліковано: 17 грудня 2009 и так вот.. Посилання на коментар Поділитися на інших сайтах More sharing options...
lavilong Опубліковано: 17 грудня 2009 Автор Поділитись Опубліковано: 17 грудня 2009 фсе.. закачал.. это еще сырая версия .. можете теперь критиковать по-полной.. Посилання на коментар Поділитися на інших сайтах More sharing options...
lavilong Опубліковано: 18 грудня 2009 Автор Поділитись Опубліковано: 18 грудня 2009 судя по отсутствию тапков в сторону конечного результата думаю что все учел.. спасибо всем кто высказался.. вместе мы - сила!!! (с) все равно жду коментов с нетерпением.. Посилання на коментар Поділитися на інших сайтах More sharing options...
RAPopo4itatel' Опубліковано: 18 грудня 2009 Поділитись Опубліковано: 18 грудня 2009 Посмотрел на 3Д и вижу что не рационально скаты Вы расположили. Делайте по узкой стороне двускатку- намного проще будет конструктивно смонтировать и крепче получится констукция + слуховые окна выйдут ярче. Еще стоит доработать. Посилання на коментар Поділитися на інших сайтах More sharing options...
lavilong Опубліковано: 18 грудня 2009 Автор Поділитись Опубліковано: 18 грудня 2009 Доработаю.. Посилання на коментар Поділитися на інших сайтах More sharing options...
RAPopo4itatel' Опубліковано: 23 грудня 2009 Поділитись Опубліковано: 23 грудня 2009 Ну как проходит творческий процэс? Посилання на коментар Поділитися на інших сайтах More sharing options...
lavilong Опубліковано: 6 січня 2010 Автор Поділитись Опубліковано: 6 січня 2010 Ну как проходит творческий процэс? пока притерпевает незначительные изменения.. в целом архитектор обещал в этом месяце отдать утвержденный прект.. скаты переиграть не получится.. вся планировка в топку пойдет.. к тому же я сам так захотел.. Посилання на коментар Поділитися на інших сайтах More sharing options...
Ольга В Опубліковано: 6 січня 2010 Поділитись Опубліковано: 6 січня 2010 Для вашей крыши будут нужны квалифицированные кровельщики и 100%соблюдение технологии без компромиссов - съэкономить не получится. Посилання на коментар Поділитися на інших сайтах More sharing options...
lavilong Опубліковано: 8 січня 2010 Автор Поділитись Опубліковано: 8 січня 2010 Для вашей крыши будут нужны квалифицированные кровельщики и 100%соблюдение технологии без компромиссов - съэкономить не получится. это само собой... крыша - самое важное в доме.. Посилання на коментар Поділитися на інших сайтах More sharing options...
RAPopo4itatel' Опубліковано: 21 січня 2010 Поділитись Опубліковано: 21 січня 2010 Присмотрелся и увидел, что окна на вторам этаже со скошеными углами както не очень гармонируют с постройкой. Может стоит остановить свой выбор на обычных прямоугольных? Посилання на коментар Поділитися на інших сайтах More sharing options...
lavilong Опубліковано: 21 січня 2010 Автор Поділитись Опубліковано: 21 січня 2010 не.. это моя блажь.. если делать их квадратными, уменьшится площадь освещения. Типа или высокие но узкие, или широкие но низкие.. к тому же видел такие вживую.. мне понравилось.... Посилання на коментар Поділитися на інших сайтах More sharing options...
voglya Опубліковано: 17 листопада 2010 Поділитись Опубліковано: 17 листопада 2010 А дальше??? Посилання на коментар Поділитися на інших сайтах More sharing options...
lavilong Опубліковано: 17 листопада 2010 Автор Поділитись Опубліковано: 17 листопада 2010 А дальше вот:D На сегодняшний день еще окошки добавились)) и заборчик Посилання на коментар Поділитися на інших сайтах More sharing options...
vic-1 Опубліковано: 18 листопада 2010 Поділитись Опубліковано: 18 листопада 2010 Хороший домик,Славка,получился)))) Посилання на коментар Поділитися на інших сайтах More sharing options...
lavilong Опубліковано: 18 листопада 2010 Автор Поділитись Опубліковано: 18 листопада 2010 Хороший домик,Славка,получился)))) тьху-тьху-тьху.. чтоб не сглазить Посилання на коментар Поділитися на інших сайтах More sharing options...
vic-1 Опубліковано: 18 листопада 2010 Поділитись Опубліковано: 18 листопада 2010 когда думаешь заняться коммуникациями? Посилання на коментар Поділитися на інших сайтах More sharing options...
lavilong Опубліковано: 18 листопада 2010 Автор Поділитись Опубліковано: 18 листопада 2010 когда думаешь заняться коммуникациями? уже думаю... в процессе подбора кадров Посилання на коментар Поділитися на інших сайтах More sharing options...
lavilong Опубліковано: 18 листопада 2010 Автор Поділитись Опубліковано: 18 листопада 2010 Коля?..... Посилання на коментар Поділитися на інших сайтах More sharing options...
vic-1 Опубліковано: 18 листопада 2010 Поділитись Опубліковано: 18 листопада 2010 Люка Посилання на коментар Поділитися на інших сайтах More sharing options...
lavilong Опубліковано: 18 листопада 2010 Автор Поділитись Опубліковано: 18 листопада 2010 ЫЫЫЫЫ.. жоб ты был жив-здоров.. а как твои успехи? Посилання на коментар Поділитися на інших сайтах More sharing options...
vic-1 Опубліковано: 18 листопада 2010 Поділитись Опубліковано: 18 листопада 2010 Пасиб,всё хорошо..тож потихоньку строюсь.. Посилання на коментар Поділитися на інших сайтах More sharing options...
Рекомендовані повідомлення
Створіть акаунт або увійдіть у нього для коментування
Ви маєте бути користувачем, щоб залишити коментар
Створити акаунт
Зареєструйтеся для отримання акаунта. Це просто!
Зареєструвати акаунтУвійти
Вже зареєстровані? Увійдіть тут.
Увійти зараз