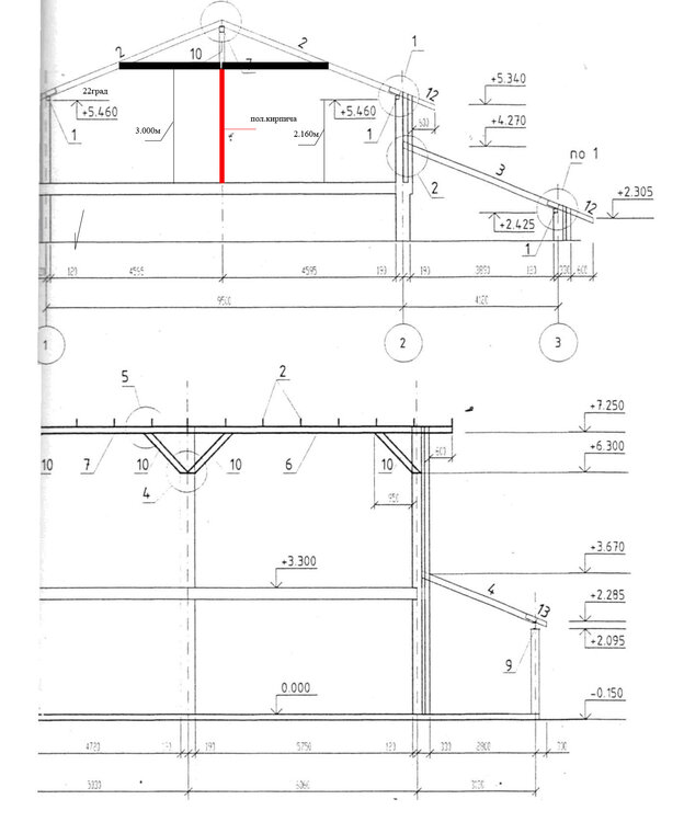
aidback Опубліковано: 10 січня 2010 Поділитись Опубліковано: 10 січня 2010 Выложил чуть-чуть чертежей Интересует узел стропильной системы с балкой что поперек "крокв" достаточно ли мощности стены в пол кирпича? Достаточно ли мауэра 100х100? И самое интерестное хватит ли 22 град. наклона крыши(металочерепица)!? Всем кто знает пожалуйста сюда свои комментарии! Заранее благодарен! Посилання на коментар Поділитися на інших сайтах More sharing options...
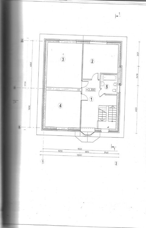
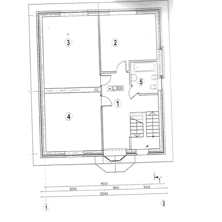
ИНОЙ Опубліковано: 10 січня 2010 Поділитись Опубліковано: 10 січня 2010 Такое впечатление что проект делал ученик. достаточно ли мощности стены в пол кирпича? Эта стена служит скорее страховочным вариантом. Достаточно ли мауэра 100х100? Нет, хотя-бы 100х150 (100 высота) Градус 22, может быть. Из чего сделанно перекрытия 1-го этажа? Присмотрелся внимательно, так у вас в центре по оси Б или В, колонна или стена 380мм. Выложите еще чертежи, только без поправок. Особенно узел 4. 1 Посилання на коментар Поділитися на інших сайтах More sharing options...
VillaDeLux (ex Акро) Опубліковано: 10 січня 2010 Поділитись Опубліковано: 10 січня 2010 Стены хватит. Только остальное в чертеже не меняйте. ничего не выкидывайте. Чёрный ригель правльно добавили, желательно 150*50. стропила не менее 150*50, шаг 800. Мауэр лучше 100*150 плашмя 1 Посилання на коментар Поділитися на інших сайтах More sharing options...
aidback Опубліковано: 10 січня 2010 Автор Поділитись Опубліковано: 10 січня 2010 Такое впечатление что проект делал ученик. Эта стена служит скорее страховочным вариантом. Нет, хотя-бы 100х150 (100 высота) Градус 22, может быть. Из чего сделанно перекрытия 1-го этажа? Присмотрелся внимательно, так у вас в центре по оси Б или В, колонна или стена 380мм. Выложите еще чертежи, только без поправок. Особенно узел 4. Насчет ученика Вы правы, скорее всего делал студент(переделка проекта). Перекрытие сделано плитами 53-я,63-я, там где лестница и балкон монолитный участок! Колонн нету, там стена 380мм не совсем по центру скорее между 6.5м и 5.4м, стена длиной 5м в ней дымоход. Вроде бы все! Только вот сомнения насчет угла наклона, на форуме читал для киевской обл.30-35 градусов. Пысы! Или я где ошибся? Посилання на коментар Поділитися на інших сайтах More sharing options...
aidback Опубліковано: 10 січня 2010 Автор Поділитись Опубліковано: 10 січня 2010 Это по-поводу стропильной системы по-проекту! Более четкий рисунок! Посилання на коментар Поділитися на інших сайтах More sharing options...
Крышник Опубліковано: 10 січня 2010 Поділитись Опубліковано: 10 січня 2010 Нет, хотя-бы 100х150 (100 высота) Мауэрлат лучше всего квадратного сечения(из опыта оптимально 100х100 мм) Что больше прогнётся под нагрузкой квадрат или прямоугольник плашмя???А прямоугольник руба будет не устойчив... Угол маловат,оптимально 30-35,уже писали,есть рядом тема. Посилання на коментар Поділитися на інших сайтах More sharing options...
ИНОЙ Опубліковано: 10 січня 2010 Поділитись Опубліковано: 10 січня 2010 Пересчитал крышу угол наклона 22.2936 градуса. По проекту все правильно. Угол маловат,оптимально 30-35 Это наш советский угол, считать нагрузки было легче. Стандарт. Для правильной передачи нагрузок, нижний прогон должен быть не менее 18см,(это нас так учили), а по высоте, может быть 4см. Но, в вашем случае лучше перестраховаться, 14Х14см оптимально. Еще вопрос, по трубе как близко она к коньковому прогону? Посилання на коментар Поділитися на інших сайтах More sharing options...
aidback Опубліковано: 11 січня 2010 Автор Поділитись Опубліковано: 11 січня 2010 Пересчитал крышу угол наклона 22.2936 градуса. По проекту все правильно. Это наш советский угол, считать нагрузки было легче. Стандарт. Для правильной передачи нагрузок, нижний прогон должен быть не менее 18см,(это нас так учили), а по высоте, может быть 4см. Но, в вашем случае лучше перестраховаться, 14Х14см оптимально. Еще вопрос, по трубе как близко она к коньковому прогону? Насчет прогона не понял(не понял о чем Вы), если не тяжело то обясните по-проще? Труба оч. близко к коньку, там в проекте даже видно, первый этаж строили по проекту, все пропорции сохранены, ДЫМОХОД СТОИТ НЕ ПРАВИЛЬНО?! Посилання на коментар Поділитися на інших сайтах More sharing options...
Рекомендовані повідомлення
Створіть акаунт або увійдіть у нього для коментування
Ви маєте бути користувачем, щоб залишити коментар
Створити акаунт
Зареєструйтеся для отримання акаунта. Це просто!
Зареєструвати акаунтУвійти
Вже зареєстровані? Увійдіть тут.
Увійти зараз