R-Aleksandr Опубліковано: 19 січня 2010 Поділитись Опубліковано: 19 січня 2010 Вот мой проектик, надеюсь, это предпоследний.... Посилання на коментар Поділитися на інших сайтах More sharing options...
R-Aleksandr Опубліковано: 19 січня 2010 Автор Поділитись Опубліковано: 19 січня 2010 Еще несколько видов... С нетерпением жду комментов Посилання на коментар Поділитися на інших сайтах More sharing options...
R-Aleksandr Опубліковано: 19 січня 2010 Автор Поділитись Опубліковано: 19 січня 2010 Народ, ау!!!! не проходите мимо.... Даешь комменты!!! Посилання на коментар Поділитися на інших сайтах More sharing options...
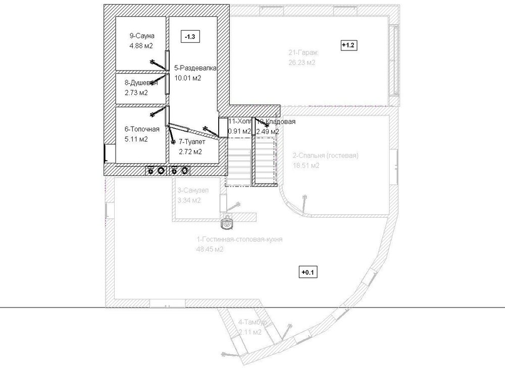
ИНОЙ Опубліковано: 19 січня 2010 Поділитись Опубліковано: 19 січня 2010 Не проходим, даём коменты. Крыша как и была мрак... Трубы, всё, нужно сместить, в ребрах они стоять не могут. Первый этаж: санузел проситься полукруглой стеной сделать. Посилання на коментар Поділитися на інших сайтах More sharing options...
Polimer Опубліковано: 19 січня 2010 Поділитись Опубліковано: 19 січня 2010 Не проходим, даём коменты. Крыша как и была мрак... Трубы, всё, нужно сместить, в ребрах они стоять не могут. Первый этаж: санузел проситься полукруглой стеной сделать. Вот здесь похожий стиль. Полукруглый фасад... Думаю, что есть чего найти, при общении с хозяином... www.stroimdom.com.ua/forum/showthread.php?t=19790&highlight=%C7%E0%EF%EE%F0%EE%E6%FC%E5 Посилання на коментар Поділитися на інших сайтах More sharing options...
R-Aleksandr Опубліковано: 20 січня 2010 Автор Поділитись Опубліковано: 20 січня 2010 Крыша как и была мрак... А что с крышей??? Помагите разобраться!!! За трубы спасибо, согласен. По поводу санузла - согласен, но боюсь, что это площадь его уменьшит до безобразия Посилання на коментар Поділитися на інших сайтах More sharing options...
R-Aleksandr Опубліковано: 20 січня 2010 Автор Поділитись Опубліковано: 20 січня 2010 Вот здесь похожий стиль. [/url] Спасибо... мне бы крышу поменять, но не пойму как, а так меня планировка моя очень даже устраивает! Посилання на коментар Поділитися на інших сайтах More sharing options...
Татьяна5 Опубліковано: 20 січня 2010 Поділитись Опубліковано: 20 січня 2010 Вы простите за прямоту, но выглядит как проект новых русских в 90-х годах. Все окна разного формата, нет гармонии в формах. Может и хорошая планировка, но выглядит дом снаружи - бееее. Посилання на коментар Поділитися на інших сайтах More sharing options...
R-Aleksandr Опубліковано: 20 січня 2010 Автор Поділитись Опубліковано: 20 січня 2010 Вы простите за прямоту, но выглядит как проект новых русских в 90-х годах. Все окна разного формата, нет гармонии в формах. Может и хорошая планировка, но выглядит дом снаружи - бееее. вот и посоветуйте, что нужно изменить, подправить... Посилання на коментар Поділитися на інших сайтах More sharing options...
Alex777-kh Опубліковано: 20 січня 2010 Поділитись Опубліковано: 20 січня 2010 Вы простите за прямоту, но выглядит как проект новых русских в 90-х годах. Все окна разного формата, нет гармонии в формах. Может и хорошая планировка, но выглядит дом снаружи - бееее. Согласен - особенно с арачным окном. Посмотрите на сайтах подобное или попросите архитектора доделать. В принципе - все дома состоят из стен, окон и крыши... Что то добавит, что то изменит, что то уберет и Ваша коробка с удачной (для Вас) планировкой будет выглядеть на уровне. Посилання на коментар Поділитися на інших сайтах More sharing options...
R-Aleksandr Опубліковано: 20 січня 2010 Автор Поділитись Опубліковано: 20 січня 2010 Согласен - особенно с арачным окном Согласен, арочное заменю на обычное. А вам панировка нравится? или есть замечания? Посилання на коментар Поділитися на інших сайтах More sharing options...
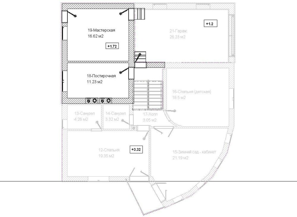
Alex777-kh Опубліковано: 20 січня 2010 Поділитись Опубліковано: 20 січня 2010 Согласен, арочное заменю на обычное. А вам панировка нравится? или есть замечания? Посмотрю внимательней. Но я сторонник такого - комнаты должны быть большими и без лабиринтов, "закаулков". По мне - есть не очень нужные комнаты. Например - тренажерный зал. (из опыта - продуктивней заниматься в клубе, это и стимулирует и общение там, дома через раз и не на полную) Может это совместить с детской и сделать игровую комнату... Зимний сад - я б совместил с комнатой, если отопление равноценное... Лестница и площадка на 2 этаже - подымаешься и сразу выставка дверей: одинарные, двухпольная и одинарная в радиусной стене - и в разные стороны открывается.... Посмотрю подробнее позже. Посилання на коментар Поділитися на інших сайтах More sharing options...
Татьяна5 Опубліковано: 20 січня 2010 Поділитись Опубліковано: 20 січня 2010 Согласен, арочное заменю на обычное. А вам панировка нравится? или есть замечания? ИМХО. планировка очень мужская, пардон за вопрос, а у Вас есть жена? дети? какая общая площадь дома? какое пятно застройки? по помещениям - Вы себе стоимость лестниц считали? 4 уровня (если я правильно поняла), только лестниц там на тыс 10 уе. У меня в квартире студио 65 м2 (кухня+гостиная) - а в частном доме 48 м - мало, имхо, тем более когда она изогнутая. Вход и з маааленького тамбура прямо в гостиную - не функционально, где Вы и гости снимут одежду и обувь? где будет шкаф входной? Посилання на коментар Поділитися на інших сайтах More sharing options...
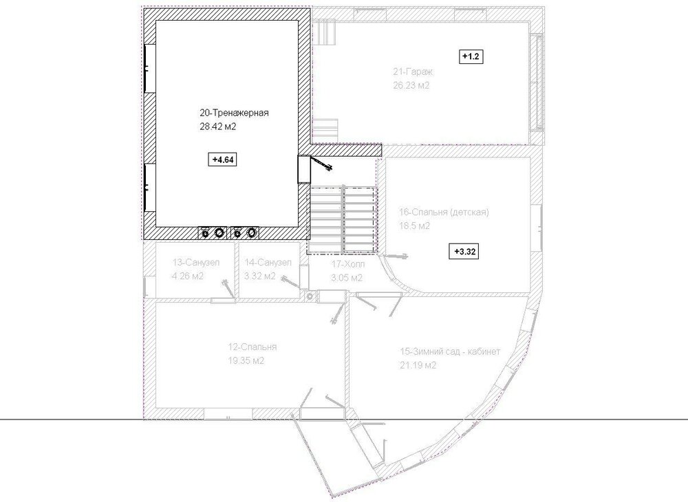
Знахарь Опубліковано: 21 січня 2010 Поділитись Опубліковано: 21 січня 2010 1. Бросилась в глаза свистопляска с окнами на рисунке 333.jpg. Их уровни и размеры – без 100 грамм не воспринимаются.:drinks: 2. Все двери на проекте открываются внутрь помещения. При ЧП (пожар или другой шухер) человек старается в панике открыть дверь не останавливаясь. Открыть ее на себя, особенно когда сзади подпирает кто-нибудь не менее испуганный, может не получиться. %)Что говорят пожарные нормы? А если двери развернуть – появится вопрос о достаточности холлов. 3. Что за санузел в гостинной? Для туалета странно расположение в центре столовой – это наверное, чтобы лучше всем было слышно происходящее внутри. Для ванной – маловата площадь (3,34м2). 4. Где раздеваться? В двухметровом тамбуре? Или на кухне(-столовой-гостинной)? Шубу, я так полагаю, придется вешать между холодильником и плитой. 5. Тренажерная??? Не жалко для нее места? 6. Крыша над балконом перекрывает балкон только частично. 7. Мастерская, отделенная от гаража и внешнего мира узкой дверью не позволит работать в ней с крупными изделиями (отремонтировать тачку, перебрать культиватор, проклепать плуг...). Или это радиомастерская? 8. Основные спальни вынесены на второй этаж. Это наводит на мысль, что хозяину далеко до 55-60 лет и слова "старость", "больные суставы", "одышка" знакомы только по медицинским сериалам. Так бывает, что люди живут и после 60-ти. Причем иногда долго. И каждый год "привязывает к ногам лишний килограмм". Подниматься на второй этаж чтобы прилечь надоест. Придется выбирать – переезжать в другой дом, или меняться с гостями спальнями. Но тогда "провисает" без толку кабинет. Извините за непрофессиональные обывательские замечания. Мне кажется, что следует многократно проиграть в воображении несколько типовых дней Вашей семьи в этом доме. Может быть, выяснится, что следует сместить некоторые акценты. Посилання на коментар Поділитися на інших сайтах More sharing options...
zalstas Опубліковано: 25 січня 2010 Поділитись Опубліковано: 25 січня 2010 Нету определенного стиля и плохо сделан сам проект, корнизные свесы, цоколь, перекрытие не профессионально . в какой проге делали проект? Посилання на коментар Поділитися на інших сайтах More sharing options...
архітектор Опубліковано: 25 січня 2010 Поділитись Опубліковано: 25 січня 2010 Боюсь топикстартер обидится, но мое мнение - "сбит прицел". Я имею ввиду, что в первую очередь сам заказчик должен отличать "что такое хорошо, и что такое плохо". Вот тут люди высказываются, что что-то не так, каждый это приподносит по-своему. А я считаю, что просто небольшой корректировки будет мало. Надо идти в другом направлении. Посилання на коментар Поділитися на інших сайтах More sharing options...
zalstas Опубліковано: 31 січня 2010 Поділитись Опубліковано: 31 січня 2010 Один из вариантов этого проекта Посилання на коментар Поділитися на інших сайтах More sharing options...
Alex777-kh Опубліковано: 1 лютого 2010 Поділитись Опубліковано: 1 лютого 2010 А что с крышей??? Помагите разобраться!!! За трубы спасибо, согласен. По поводу санузла - согласен, но боюсь, что это площадь его уменьшит до безобразия Посмотрите здесь, подобная крыша... www.alfaplan.ru/catalog/item_514/ 1 Посилання на коментар Поділитися на інших сайтах More sharing options...
Рекомендовані повідомлення
Створіть акаунт або увійдіть у нього для коментування
Ви маєте бути користувачем, щоб залишити коментар
Створити акаунт
Зареєструйтеся для отримання акаунта. Це просто!
Зареєструвати акаунтУвійти
Вже зареєстровані? Увійдіть тут.
Увійти зараз