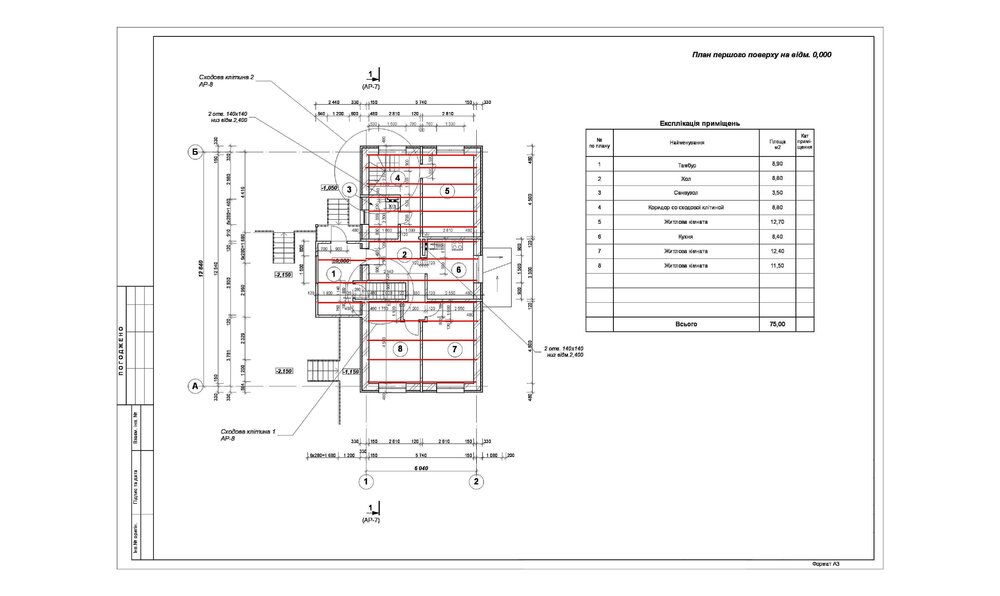
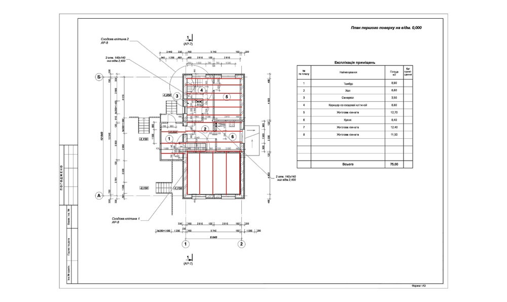
lavilong Опубліковано: 28 січня 2010 Поділитись Опубліковано: 28 січня 2010 Есть такой вот проект. Надо раскидать балки. Изначально вместо двух комнат планировалась гостинная. Перекрытие - дерево. Кровля - ЦПЧ. Ширина пролета - 0,7 - 0,8 м. Если что, поправьте. Но пролет получается около 6 метров. Есть предположение что под собственным весом и от нагрузки балки провиснут. свеху жилая мансарда.Решено было разделить гостинную на 2 комнаты, чтобы иметь дополнительную несущую стену, которая подпирала бы балки по середине. Или мои страхи беспочвенны и можно смело с 6 метрами пролета делать большую гостинную? Есть идея поступить следующим образом.. Кинуть балки перпендикулярно. что скажите?.. тогда пролет получается около 4,5 метров. Или это тоже слишком? Или есть какието интересные варианты? Крышу планирую делать ближе к осени.. так что актуален поиск мастеров. Посилання на коментар Поділитися на інших сайтах More sharing options...
lavilong Опубліковано: 28 січня 2010 Автор Поділитись Опубліковано: 28 січня 2010 Вот сама кровля.. можно сразу просчитать во что мне это выльется по деньгам по работе. .. S=200м.кв....примерно Посилання на коментар Поділитися на інших сайтах More sharing options...
Крышник Опубліковано: 28 січня 2010 Поділитись Опубліковано: 28 січня 2010 Есть такой вот проект. Надо раскидать балки. Изначально вместо двух комнат планировалась гостинная. Перекрытие - дерево. Кровля - ЦПЧ. Ширина пролета - 0,7 - 0,8 м. Если что, поправьте. Но пролет получается около 6 метров. Есть предположение что под собственным весом и от нагрузки балки провиснут. свеху жилая мансарда.Решено было разделить гостинную на 2 комнаты, чтобы иметь дополнительную несущую стену, которая подпирала бы балки по середине. Или есть какието интересные варианты? Крышу планирую делать ближе к осени.. так что актуален поиск мастеров. Посмотрите,здесь то,что вы хотели www.stroimdom.com.ua/forum/album.php?albumid=582&pictureid=5671 Посилання на коментар Поділитися на інших сайтах More sharing options...
lavilong Опубліковано: 28 січня 2010 Автор Поділитись Опубліковано: 28 січня 2010 упс.. вложение кровли провтыка.. ща исправлюсь.. Посилання на коментар Поділитися на інших сайтах More sharing options...
lavilong Опубліковано: 28 січня 2010 Автор Поділитись Опубліковано: 28 січня 2010 Посмотрите,здесь то,что вы хотели www.stroimdom.com.ua/forum/album.php?albumid=582&pictureid=5671 А можно поподробнее.. в моем случае 6 и 4,5 метров большой пролет?.. я так понял что лучше 2 маленькие комнаты чем одна большая гостинная?.. и можно ли балки ложить перпендикулярно? Посилання на коментар Поділитися на інших сайтах More sharing options...
lavilong Опубліковано: 28 січня 2010 Автор Поділитись Опубліковано: 28 січня 2010 и во что мне выльется метр квадратный такой крыши за работу? Посилання на коментар Поділитися на інших сайтах More sharing options...
lavilong Опубліковано: 28 січня 2010 Автор Поділитись Опубліковано: 28 січня 2010 Сегодня что, у всех кровельщиков выходной? День граненого стропила? Крышник с утра был и то ушол.. отпросился наверное по семейным.. Меня архитектор насилует.. требует проект утвердить.. Посилання на коментар Поділитися на інших сайтах More sharing options...
amarrak Опубліковано: 28 січня 2010 Поділитись Опубліковано: 28 січня 2010 На пролет 4.5 м с запасом подойдут балки 200х150 с шагом 0.6 м. На пролет 6 м подойдут балки 200х200 с шагом 0.5 м. Лучше укладывать 4.5 м. 1 Посилання на коментар Поділитися на інших сайтах More sharing options...
VillaDeLux (ex Акро) Опубліковано: 28 січня 2010 Поділитись Опубліковано: 28 січня 2010 lavilong, нужно балки рассматривать со стропилами в комплексе. Если есть возможность сделать ферму то это наилучший вариант. А "кабанов" затягивать не факт что не провиснут. Мы делали гостинную 6*8 пз опор,вот тут. Балки 150*50 шаг 800. НО! Балки жёстко завязаны со стропилами стойками и подкосами и составляют единое целое - ферму. Всё супержёстко! Тут то же пролёт 6 м и к стати, ЦПЧ лежит. 1 Посилання на коментар Поділитися на інших сайтах More sharing options...
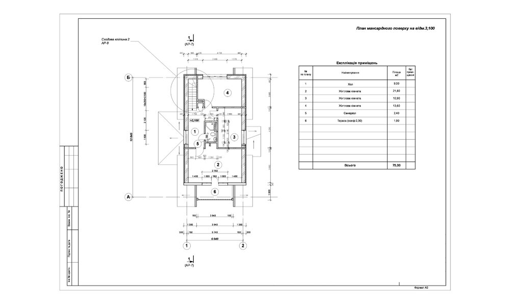
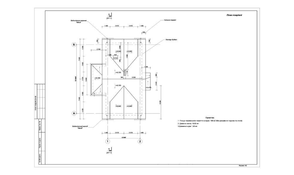
DESS Опубліковано: 28 січня 2010 Поділитись Опубліковано: 28 січня 2010 Есть такой вот проект. Надо раскидать балки. Изначально вместо двух комнат планировалась гостинная. Перекрытие - дерево. Кровля - ЦПЧ. Ширина пролета - 0,7 - 0,8 м. Если что, поправьте. Но пролет получается около 6 метров. Есть предположение что под собственным весом и от нагрузки балки провиснут. свеху жилая мансарда.Решено было разделить гостинную на 2 комнаты, чтобы иметь дополнительную несущую стену, которая подпирала бы балки по середине. Или мои страхи беспочвенны и можно смело с 6 метрами пролета делать большую гостинную? [ATTACH]39452[/ATTACH] Есть идея поступить следующим образом.. Кинуть балки перпендикулярно. что скажите?.. тогда пролет получается около 4,5 метров. Или это тоже слишком? [ATTACH]39454[/ATTACH] Или есть какието интересные варианты? Крышу планирую делать ближе к осени.. так что актуален поиск мастеров. При укладывании балок на пролёт в 4.5м они будут работать как своего рода затяжки , и конструкция будет жёстче.Чем хотите покрывать крышу?Если можно , покажите план мансарды.Ежели есть возможность обустройства ферм , то в Вашем случае это будет гуд. П.С. Кровельщики в будние дни утром работают. 1 Посилання на коментар Поділитися на інших сайтах More sharing options...
lavilong Опубліковано: 29 січня 2010 Автор Поділитись Опубліковано: 29 січня 2010 При укладывании балок на пролёт в 4.5м они будут работать как своего рода затяжки , и конструкция будет жёстче.Чем хотите покрывать крышу?Если можно , покажите план мансарды.Ежели есть возможность обустройства ферм , то в Вашем случае это будет гуд. П.С. Кровельщики в будние дни утром работают. Крышу планирую крыть ЦПЧ. план во вложении.. Посилання на коментар Поділитися на інших сайтах More sharing options...
DESS Опубліковано: 29 січня 2010 Поділитись Опубліковано: 29 січня 2010 Не нашёл на плане всех данных,например высоты стен(если они есть) и фронтонов.Может плохо искал(без иронии),но мне кажется , что крыша будет слабо контактировать с вопросными балками.Так что можно смело укладывать брусы на пролёт 4.50.На нашем доме стоят почти 5.00 - и ничего страшного. Посилання на коментар Поділитися на інших сайтах More sharing options...
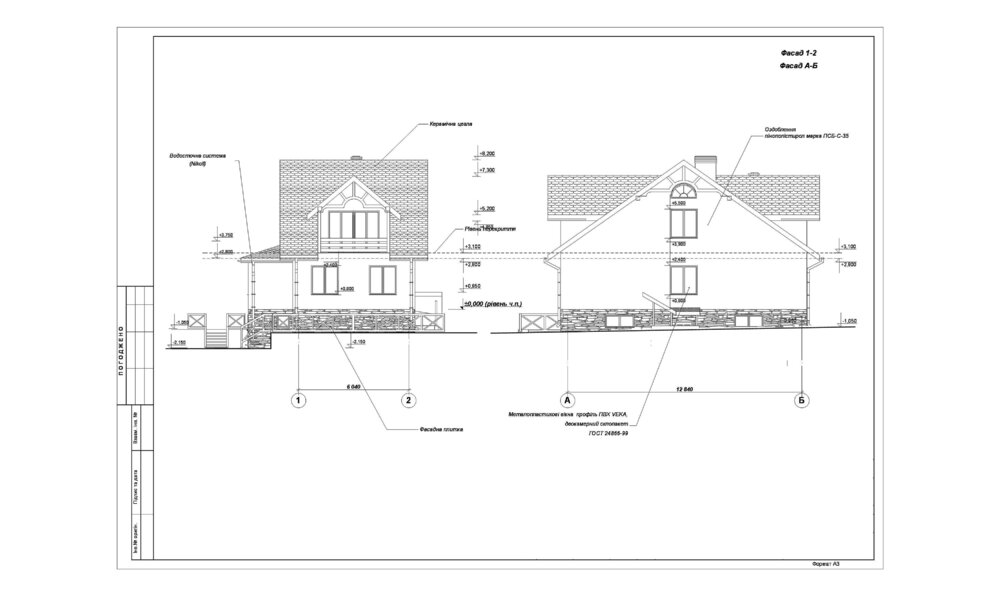
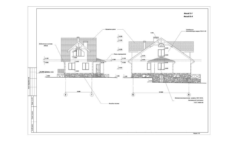
lavilong Опубліковано: 1 лютого 2010 Автор Поділитись Опубліковано: 1 лютого 2010 Не нашёл на плане всех данных,например высоты стен(если они есть) и фронтонов.Может плохо искал(без иронии),но мне кажется , что крыша будет слабо контактировать с вопросными балками.Так что можно смело укладывать брусы на пролёт 4.50.На нашем доме стоят почти 5.00 - и ничего страшного. Это сырая версия ароекта.. ща какраз подгоняем с архитектором.. с итоге он будет на 11-и листах, со всеми подробностями.. Скрепкой фасады. Там указаны все высоты.. Посилання на коментар Поділитися на інших сайтах More sharing options...
DESS Опубліковано: 1 лютого 2010 Поділитись Опубліковано: 1 лютого 2010 На мой взгляд,крыша будет довольно жёсткой,если стропилку сделать с умом .И можно обойтись без ферм.Будет план стропильной системы - выкладывайте - обсудим.По теме - балки кладите на пролёт 4.50. 1 Посилання на коментар Поділитися на інших сайтах More sharing options...
Рекомендовані повідомлення
Створіть акаунт або увійдіть у нього для коментування
Ви маєте бути користувачем, щоб залишити коментар
Створити акаунт
Зареєструйтеся для отримання акаунта. Це просто!
Зареєструвати акаунтУвійти
Вже зареєстровані? Увійдіть тут.
Увійти зараз