R-Aleksandr Опубліковано: 15 лютого 2010 Автор Поділитись Опубліковано: 15 лютого 2010 Лучше один раз прочитать, чем сто послушать, картина стала ясной Какие будут еще советы? Посилання на коментар Поділитися на інших сайтах More sharing options...
zalstas Опубліковано: 15 лютого 2010 Поділитись Опубліковано: 15 лютого 2010 Еще есть может быть смысл поменять чуть уклон конька .На данный момент много срезает задней части , а спереди высокий чердак .посмотрите на разрезе как оно получается. Посилання на коментар Поділитися на інших сайтах More sharing options...
R-Aleksandr Опубліковано: 15 лютого 2010 Автор Поділитись Опубліковано: 15 лютого 2010 Еще есть может быть смысл поменять чуть уклон конька .На данный момент много срезает задней части , а спереди высокий чердак .посмотрите на разрезе как оно получается. Я естественно смотрел. Начинается крыша на высоте 1,8 метра второго этажа. Самая верхняя точка мансардного - 4,5 метра. Угол крыши 30 градусов. Посилання на коментар Поділитися на інших сайтах More sharing options...
zalstas Опубліковано: 15 лютого 2010 Поділитись Опубліковано: 15 лютого 2010 Я естественно смотрел. Начинается крыша на высоте 1,8 метра второго этажа. Самая верхняя точка мансардного - 4,5 метра. Угол крыши 30 градусов. В принципе нормально должно быть. Осталось под полировать Посилання на коментар Поділитися на інших сайтах More sharing options...
R-Aleksandr Опубліковано: 15 лютого 2010 Автор Поділитись Опубліковано: 15 лютого 2010 В принципе нормально должно быть. Осталось под полировать Очень хочется услышать советы от спецов по экстерьеру. Вот, например, что я услышал от московских товарищей: "Понимаете, когда я говорила, что скошенные углы в данном случае - это некрасиво, я совсем не шутила. Ваш проект претендует на оригинальность, но это должна быть оригинальность в хорошем смысле. Сейчас все смешалось в кучу - углы, полоски, окна, крыша. Не понятно, что главное, форма не читается совсем. Если делать акцент на центральную часть - должно быть больше остекления, если на декор и полосочки - то окна должны отойти на второй план, но это вообще тупиковый путь. Чтобы хоть немного упростить себе задачу, решите, что Вы хотите подчеркнуть - горизонтали, вертикали, или общую форму, от этого и пляшите." Мне важно, чтобы все было прекрасно... и душа и одежда и мысли... Очень прошу откликнуться спецов по экстерьеру и не только с критикой. Давайте полезные советы! Посилання на коментар Поділитися на інших сайтах More sharing options...
ИНОЙ Опубліковано: 15 лютого 2010 Поділитись Опубліковано: 15 лютого 2010 Уклон 22гр. Третий этаж, а-ля чердак. Если он не нужен ,его вообще можно убрать. Окно на крышу должен быть выход, ну и свет на чардак. Посилання на коментар Поділитися на інших сайтах More sharing options...
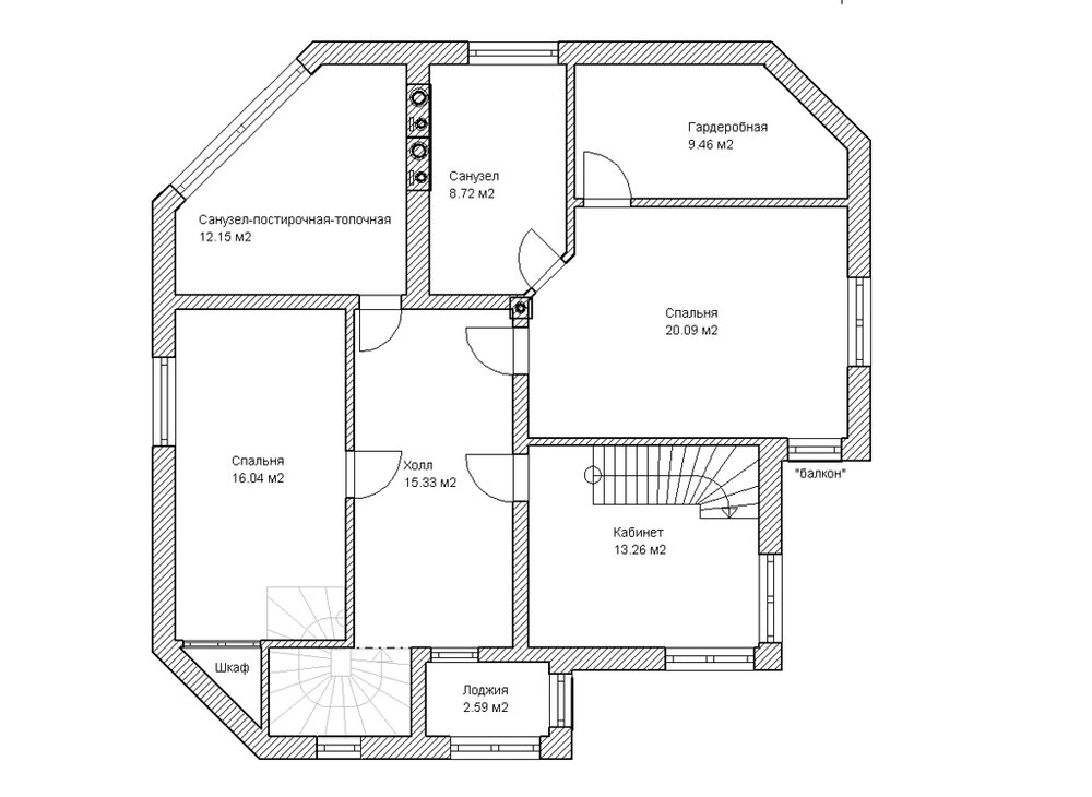
R-Aleksandr Опубліковано: 15 лютого 2010 Автор Поділитись Опубліковано: 15 лютого 2010 Уклон 22гр. Третий этаж, а-ля чердак. Если он не нужен ,его вообще можно убрать. У меня угол 30 град, считаю, что это лучше, чем 22. Третий этаж точно не нужен! Мой кабинетик над кабинетом второго этажа получился только благодаря выбранному углу крыши. Тамбур увидел. Покажите второй этажик Посилання на коментар Поділитися на інших сайтах More sharing options...
R-Aleksandr Опубліковано: 15 лютого 2010 Автор Поділитись Опубліковано: 15 лютого 2010 Уклон 22гр. Третий этаж, а-ля чердак. Если он не нужен ,его вообще можно убрать. Мне не понятна раскладка плит в вашем варианте с лестницей Посилання на коментар Поділитися на інших сайтах More sharing options...
ИНОЙ Опубліковано: 15 лютого 2010 Поділитись Опубліковано: 15 лютого 2010 Что 30гр, что 22гр принципильной разницы нет. При 22гр снег лучше сдуваеться. Плиты по толстым стенам, перед лестницей монолитный участок. Посилання на коментар Поділитися на інших сайтах More sharing options...
ИНОЙ Опубліковано: 15 лютого 2010 Поділитись Опубліковано: 15 лютого 2010 Вот раскладка плит.По углам плиты скошенные, делаються прямо на заводе. Посилання на коментар Поділитися на інших сайтах More sharing options...
R-Aleksandr Опубліковано: 16 лютого 2010 Автор Поділитись Опубліковано: 16 лютого 2010 Господа, нужен совет по кровле. Хочется услышать ваше мнение о типе покрытия кровли для моего проекта. Заранее благодарен. Посилання на коментар Поділитися на інших сайтах More sharing options...
ИНОЙ Опубліковано: 16 лютого 2010 Поділитись Опубліковано: 16 лютого 2010 Вот такой у меня получился дом по мотивам Вашего. Крыша металлочерепица. Посилання на коментар Поділитися на інших сайтах More sharing options...
zalstas Опубліковано: 16 лютого 2010 Поділитись Опубліковано: 16 лютого 2010 Господа, нужен совет по кровле. Хочется услышать ваше мнение о типе покрытия кровли для моего проекта. Заранее благодарен. Я думаю, металлочерепица вполне подойдет , углы все наружные , к битумной склоняюсь в том случае, когда сложная крыша с множеством внутренних углов . Посилання на коментар Поділитися на інших сайтах More sharing options...
R-Aleksandr Опубліковано: 16 лютого 2010 Автор Поділитись Опубліковано: 16 лютого 2010 Я думаю, металлочерепица вполне подойдет , углы все наружные , к битумной склоняюсь в том случае, когда сложная крыша с множеством внутренних углов . А как же шум от дождя? Я все же к битумке больше склоняюсь... да и металлочерепица подороже будет Посилання на коментар Поділитися на інших сайтах More sharing options...
R-Aleksandr Опубліковано: 16 лютого 2010 Автор Поділитись Опубліковано: 16 лютого 2010 Вот такой у меня получился дом по мотивам Вашего. Крыша металлочерепица. Понравилась крыша. Думаю себе слямзить Посилання на коментар Поділитися на інших сайтах More sharing options...
zalstas Опубліковано: 16 лютого 2010 Поділитись Опубліковано: 16 лютого 2010 А как же шум от дождя? Я все же к битумке больше склоняюсь... да и металлочерепица подороже будет Битумная тоже нормальный вариант, толь я думаю на оборот, будет чуть дороже . :D Посилання на коментар Поділитися на інших сайтах More sharing options...
ИНОЙ Опубліковано: 16 лютого 2010 Поділитись Опубліковано: 16 лютого 2010 Понравилась крыша. Думаю себе слямзить Очень рад. Свесы 50см. Крыша только металлочерепица. Стелсов из рубероида не бывает. 1 Посилання на коментар Поділитися на інших сайтах More sharing options...
R-Aleksandr Опубліковано: 18 лютого 2010 Автор Поділитись Опубліковано: 18 лютого 2010 Слегка обновленная версия. Обратите внимание на крышу и расположение сауны и топочной Посилання на коментар Поділитися на інших сайтах More sharing options...
Organic Architect Опубліковано: 18 лютого 2010 Поділитись Опубліковано: 18 лютого 2010 бросте...займитесь чем-то другим... 1 Посилання на коментар Поділитися на інших сайтах More sharing options...
R-Aleksandr Опубліковано: 19 лютого 2010 Автор Поділитись Опубліковано: 19 лютого 2010 бросте...займитесь чем-то другим... А вот умничать не надо. Мне от вас нужны только конструктивные советы. А голословные издевательства - оставьте своей жене Посилання на коментар Поділитися на інших сайтах More sharing options...
R-Aleksandr Опубліковано: 24 лютого 2010 Автор Поділитись Опубліковано: 24 лютого 2010 И вот надеюсь последний вариант... Хотя, кто знает.. Посилання на коментар Поділитися на інших сайтах More sharing options...
Stroim DOM Опубліковано: 25 лютого 2010 Поділитись Опубліковано: 25 лютого 2010 И вот надеюсь последний вариант... Хотя, кто знает.. Последнее фото дома, вид снаружи: Одноглазая свинка в треуголке задом наперед. Поменяйте вид окон или уберите 1 окно. Посилання на коментар Поділитися на інших сайтах More sharing options...
R-Aleksandr Опубліковано: 25 лютого 2010 Автор Поділитись Опубліковано: 25 лютого 2010 Последнее фото дома, вид снаружи: Одноглазая свинка в треуголке задом наперед. Поменяйте вид окон или уберите 1 окно. Ну тут у каждого свои ассоциации...И если это единственное ваше замечание - успех уже близок! Посилання на коментар Поділитися на інших сайтах More sharing options...
R-Aleksandr Опубліковано: 25 лютого 2010 Автор Поділитись Опубліковано: 25 лютого 2010 Надеюсь самая последняя версия Посилання на коментар Поділитися на інших сайтах More sharing options...
Stroim DOM Опубліковано: 26 лютого 2010 Поділитись Опубліковано: 26 лютого 2010 Так намного лучше 1 Посилання на коментар Поділитися на інших сайтах More sharing options...
Рекомендовані повідомлення
Створіть акаунт або увійдіть у нього для коментування
Ви маєте бути користувачем, щоб залишити коментар
Створити акаунт
Зареєструйтеся для отримання акаунта. Це просто!
Зареєструвати акаунтУвійти
Вже зареєстровані? Увійдіть тут.
Увійти зараз