Владимир74 Опубліковано: 16 червня 2010 Поділитись Опубліковано: 16 червня 2010 QUOTE=zak_den;510490]Удачи на лестницу бетон ручного приготовления, ну да шутите дальше Народ вы экономите не там где нужно! Чего там шутить, может еще скажете на заливку лестницы бетонный насос заказать?:D Конечно, бетон ручного приготовления, армирование тоже руками делали, и опалубку то же! Вот фото почти законченной лестницы, думаю, можно даже танцевать! 1 Посилання на коментар Поділитися на інших сайтах More sharing options...
AmateurFF Опубліковано: 16 червня 2010 Поділитись Опубліковано: 16 червня 2010 ...... Вот фото почти законченной лестницы, думаю, можно даже танцевать! [ATTACH]56845[/ATTACH] Симпатично! Молодцы! А промежуточными (оплубка, армирование, процесс заливки) фотками не поделитесь? Посилання на коментар Поділитися на інших сайтах More sharing options...
Владимир74 Опубліковано: 16 червня 2010 Поділитись Опубліковано: 16 червня 2010 Симпатично! Молодцы! А промежуточными (оплубка, армирование, процесс заливки) фотками не поделитесь? Вот что получилось после заливки! Армирование не выложу, нет фото, армировали арматурой 10 мм, опалубка - ОСП+доска, немного заштрабливались в стены по контуру лестницы и забуривались арматурой! Посилання на коментар Поділитися на інших сайтах More sharing options...
AmateurFF Опубліковано: 16 червня 2010 Поділитись Опубліковано: 16 червня 2010 Вот что получилось после заливки! Армирование не выложу, нет фото, армировали арматурой 10 мм, опалубка - ОСП+доска, немного заштрабливались в стены по контуру лестницы и забуривались арматурой! А заливали все за один день? И как достигали того, что бы бетон сверху не выпирал нижнюю ступеньку? Посилання на коментар Поділитися на інших сайтах More sharing options...
Владимир74 Опубліковано: 16 червня 2010 Поділитись Опубліковано: 16 червня 2010 А заливали все за один день? И как достигали того, что бы бетон сверху не выпирал нижнюю ступеньку? Один этаж (два лесничных марша и поворотную площадку) заливали за один день! Бетон не випирает, т.к. верх боковой ограничительной планки нижней ступени находится на уровне низа боковой ограничительной планки верхней ступени! С этим проблем нет! 1 Посилання на коментар Поділитися на інших сайтах More sharing options...
ol4ik Опубліковано: 28 липня 2010 Поділитись Опубліковано: 28 липня 2010 Подскажите пожалуйста. Собирались делать лестницу деревянную, но к сожалению по деньгам не тянем...Теперь хотим бетоную, но не предусмотрели под нее фундамент. Подскажите выдержит ли наша стяжка такую нагрузку как бетоная лестница? 1. глина 30см 2.жужалка 30см 3. песок 15см 4. пенопласт 5см 5.бетон армировочный 8см(армирование сетка 4ка, очко 10см), черновая стяжка. Посилання на коментар Поділитися на інших сайтах More sharing options...
Степаныч Опубліковано: 28 липня 2010 Поділитись Опубліковано: 28 липня 2010 Подскажите пожалуйста. Собирались делать лестницу деревянную, но к сожалению по деньгам не тянем...Теперь хотим бетоную, но не предусмотрели под нее фундамент. Подскажите выдержит ли наша стяжка такую нагрузку как бетоная лестница? 1. глина 30см 2.жужалка 30см 3. песок 15см 4. пенопласт 5см 5.бетон армировочный 8см(армирование сетка 4ка, очко 10см), черновая стяжка. В Донецкой ветке ,спрашивали?У вас есть такой,Менделеев,он может посчитать,подсказать. 1 Посилання на коментар Поділитися на інших сайтах More sharing options...
AmateurFF Опубліковано: 14 вересня 2010 Поділитись Опубліковано: 14 вересня 2010 В Донецкой ветке ,спрашивали?У вас есть такой,Менделеев,он может посчитать,подсказать. Ну вот, прогоняют с Днепропетровской ветки:), а тема думаю интересная всем. И почему-то я написал больше всех. Ладно буду продолжать в своей теме. Это я к тому, что приступил к изготовлению бетонной лестницы. Планирую выкладывать фотки всех этапов работ. Вот начало #268. 1 Посилання на коментар Поділитися на інших сайтах More sharing options...
Vadim V. Опубліковано: 15 вересня 2010 Автор Поділитись Опубліковано: 15 вересня 2010 Ну вот, прогоняют с Днепропетровской ветки:), а тема думаю интересная всем. И почему-то я написал больше всех. Ладно буду продолжать в своей теме. Это я к тому, что приступил к изготовлению бетонной лестницы. Планирую выкладывать фотки всех этапов работ. Вот начало #268. Шо!!, автор Я :D:beer: Посилання на коментар Поділитися на інших сайтах More sharing options...
AmateurFF Опубліковано: 15 вересня 2010 Поділитись Опубліковано: 15 вересня 2010 Шо!!, автор Я :D:beer: В каждой шутке есть доля шутки. Меня не прогоняли, пока. А ol4ik отправили в на консультацию к Менделееву, в Донецкую ветку.:) Посилання на коментар Поділитися на інших сайтах More sharing options...
ol4ik Опубліковано: 15 вересня 2010 Поділитись Опубліковано: 15 вересня 2010 А ol4ik отправили в на консультацию к Менделееву, в Донецкую ветку.:) И правильно сделали....Получила массу полезной инфы... 1 Посилання на коментар Поділитися на інших сайтах More sharing options...
AmateurFF Опубліковано: 15 вересня 2010 Поділитись Опубліковано: 15 вересня 2010 И правильно сделали....Получила массу полезной инфы... А инфой не поделитесь? Что-то я не нашел.. Посилання на коментар Поділитися на інших сайтах More sharing options...
Степаныч Опубліковано: 15 вересня 2010 Поділитись Опубліковано: 15 вересня 2010 Ну вот, прогоняют с Днепропетровской ветки:), а тема думаю интересная всем. И почему-то я написал больше всех. Ладно буду продолжать в своей теме. Это я к тому, что приступил к изготовлению бетонной лестницы. Планирую выкладывать фотки всех этапов работ. Вот начало #268. Никто,никого не прогоняет..Просто девушка живет в Донецке и местным проще сориинтировать по ценам. 2 Посилання на коментар Поділитися на інших сайтах More sharing options...
ol4ik Опубліковано: 15 вересня 2010 Поділитись Опубліковано: 15 вересня 2010 А инфой не поделитесь? Что-то я не нашел.. инфа в личке.... ЗЫ: Меня интерисовало можно ли на мою залитую стяжку лить бетонную лестницу. 1 Посилання на коментар Поділитися на інших сайтах More sharing options...
AmateurFF Опубліковано: 15 вересня 2010 Поділитись Опубліковано: 15 вересня 2010 Никто,никого не прогоняет..Просто девушка живет в Донецке и местным проще сориинтировать по ценам. Я пошутил, не обижайтесь. Посилання на коментар Поділитися на інших сайтах More sharing options...
AmateurFF Опубліковано: 4 жовтня 2010 Поділитись Опубліковано: 4 жовтня 2010 Продолжаю строительство бетонной лестницы. Пока до заливки еще далеко, но опалубку постепенно выстраиваем. Вот что имеем на сегодняшний день. Больше фоток с коментариями у меня в ветке. Посилання на коментар Поділитися на інших сайтах More sharing options...
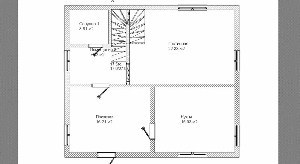
AmateurFF Опубліковано: 8 жовтня 2010 Поділитись Опубліковано: 8 жовтня 2010 Тут вот Игорь вопрос задал, интересный: ..... И вот смотрю на чертеж - может все-таки сделаете разворот симметричным? Будет гораздо удобнее... Ну придется сместиться вам по длине на 3см - оно ж роли не сыграет... Это по поводу чертежа в топике #58 Попробовал пересчитать. Получил 2 варианта. 1) Длина лестнице на входе 257 см; размер ступеньки 25,66/17,24; мин. высота до потолка в проеме - 186,5 см. Вот как выглядит: 2) Длина лестнице на входе 291 см; размер ступеньки 27,78/17,24; мин. высота до потолка в проеме - 170,5 см. Вот как выглядит: Сейчас - Длина лестнице на входе 275 см; размер ступеньки 26,78/17,24; мин. высота до потолка в проеме - 186,5 см. Кроме того справа от входа на лестницу расположена арка/(входная дверь) в зал и дальше на растоянии 125 см стена. Примерно вот так: Это растояние в 1 варианте станет 143 см, во втором 109 см. Т.е. для арки во 2-м варианте места будет маловато. Да и во втором варианте четвертая ступенька будет напротив потолка (проем расширить не получается) и соответственно растояние до потолка только 170,5 см. Конечно можно уменьшить толщину потолка в этом месте сантиметров на 10, не больше. Но все равно это маловато. Поэтому второй вариант наверно надо отбросить. Остается 1-й вариант и текущий. В первом варианте самым большим недостатком будет малая ширина проступи 25,66 см. Так как тут поступить? На каком варианте лучше остановиться - на текущем или первом? ПС. Времени у меня мало, можно сказать цейтнот. Посилання на коментар Поділитися на інших сайтах More sharing options...
AmateurFF Опубліковано: 8 жовтня 2010 Поділитись Опубліковано: 8 жовтня 2010 Еще один недостаток варианта 1. Короб надо будет переделывать, иначе толщина бетона в некоторых местах будет 6 см. А это уже критично. Посилання на коментар Поділитися на інших сайтах More sharing options...
AmateurFF Опубліковано: 9 жовтня 2010 Поділитись Опубліковано: 9 жовтня 2010 Вроде бы получилось. Вариант 3: Удлинил вход лестницы до 280,3 см и укоротил выход до 173,5 см. Получаем ступеньку 26,71/17,24. Вот так это выглядит. Немного получается перерасход бетона, так как короб переделывать не собираемся. Посилання на коментар Поділитися на інших сайтах More sharing options...
Игорь_OD Опубліковано: 9 жовтня 2010 Поділитись Опубліковано: 9 жовтня 2010 Одно замечание-предложение - закруглить 2-3 нижние ступеньки в сторону санузла, иначе простоянно будешь натыкаться на лестницу. 1 Посилання на коментар Поділитися на інших сайтах More sharing options...
AmateurFF Опубліковано: 9 жовтня 2010 Поділитись Опубліковано: 9 жовтня 2010 Одно замечание-предложение - закруглить 2-3 нижние ступеньки в сторону санузла, иначе простоянно будешь натыкаться на лестницу. Попробуем закруглить. Мысли такие были, только одну. Посилання на коментар Поділитися на інших сайтах More sharing options...
Игорь_OD Опубліковано: 9 жовтня 2010 Поділитись Опубліковано: 9 жовтня 2010 Попробуем закруглить. Мысли такие были, только одну. Проверено на практике Посилання на коментар Поділитися на інших сайтах More sharing options...
AmateurFF Опубліковано: 11 жовтня 2010 Поділитись Опубліковано: 11 жовтня 2010 Прорисовали варианты закругления первых 3-х ступенек. Пока не решили как лучше. В моей ветки есть новые фотки опалубки для лестницы. Посилання на коментар Поділитися на інших сайтах More sharing options...
Игорь_OD Опубліковано: 12 жовтня 2010 Поділитись Опубліковано: 12 жовтня 2010 Прорисовали варианты закругления первых 3-х ступенек. Пока не решили как лучше. ИМХО нужно первую ступеньку вынести за левый простенок, а вторую расширить на этот размер - чтобы слева заходить с первой на вторую, а со второй на третью, а не с первой на третью, как на рисунке Примерно так: 1 Посилання на коментар Поділитися на інших сайтах More sharing options...
AmateurFF Опубліковано: 12 жовтня 2010 Поділитись Опубліковано: 12 жовтня 2010 ИМХО нужно первую ступеньку вынести за левый простенок, а вторую расширить на этот размер - чтобы слева заходить с первой на вторую, а со второй на третью, а не с первой на третью, как на рисунке Примерно так: Большое спасибо! Вынос сделали, на толщину стены - 10 см. Пока еще первую ступеньку не залили полностью, только закрыли бетоном щели, что бы при заливке стен бетон сильно не выливался на первую ступеньку. Вот как мы планировали: А здесь немного видно где залили бетон. Подумаем, может быть переделаем. Посилання на коментар Поділитися на інших сайтах More sharing options...
Рекомендовані повідомлення
Створіть акаунт або увійдіть у нього для коментування
Ви маєте бути користувачем, щоб залишити коментар
Створити акаунт
Зареєструйтеся для отримання акаунта. Це просто!
Зареєструвати акаунтУвійти
Вже зареєстровані? Увійдіть тут.
Увійти зараз