lsi Опубліковано: 19 жовтня 2007 Поділитись Опубліковано: 19 жовтня 2007 Архитектор нарисовал несвязанный проект фундамента, то-есть там где будут ворота гаража нет фундамента под ними. Он говорит, что не нужно делать ленту фундамента под гаражными воротами, а потом залить вместе с полом дверной проем и вывести бетон на улицу. Прораб говорит что так правильно. А я вот сомневаюсь - не расползется ли такой фундамент современем. Посилання на коментар Поділитися на інших сайтах More sharing options...
Romka Опубліковано: 19 жовтня 2007 Поділитись Опубліковано: 19 жовтня 2007 я бы связал все-таки в единое целое, может не на той высоте и потоньше чем основная часть, но экономии там копейки на общем фоне, а выглядит чертеж реально стремно Посилання на коментар Поділитися на інших сайтах More sharing options...
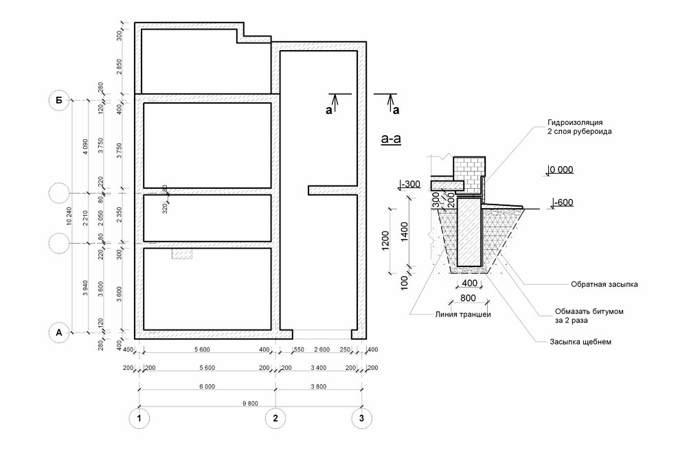
XamGelo Опубліковано: 22 жовтня 2007 Поділитись Опубліковано: 22 жовтня 2007 Мой прораб ( 40 лт опыта, на Таирова в Одессе каждый второй дом - его :-D ) чуть не дал мне по башке ( архитектор - я сам) за аналогичную конструкцию :-D Теооетически можнл так сделать если пол будет полностью армированый ( почти плитный те самый дорогой фундамент) По рисунку ( это рисунок, это не чертеж !!!) непонятно - это монолит или блочный. Кроме проемов есть еще вопрос по верхней части ( по рисунку) что там будет и почему стенки не стыкуются???? По проемам - дверной проход решается просто - я на блочном просто положил ФБСки чтобы была перевязка, если монолит = вообще можно творить что хочешь. По гаражному - все-таки надо связать Моя конструкция - подушка 500 мм, в месте въезда уменьшена до 300 и притоплена, те нижний ряд арматуры основного фундамента является верхним на въезде По верху - 2 швеллера, кажется 20х, забыл уже а сейчас все в бетоне. Из подушки выпущены везде прутики 8-ки арматуры, к ним и привязываем легкую сетку на которую льем стяжку в цоколеКстати - жестко полностью по кругу связывать ее нельзя ( стяжку с поясом) И я еще оставил места для дренажа - так на всякий случай, напрмер если водопровод прорвет а нас дома не будет... Посилання на коментар Поділитися на інших сайтах More sharing options...
Рекомендовані повідомлення
Створіть акаунт або увійдіть у нього для коментування
Ви маєте бути користувачем, щоб залишити коментар
Створити акаунт
Зареєструйтеся для отримання акаунта. Це просто!
Зареєструвати акаунтУвійти
Вже зареєстровані? Увійдіть тут.
Увійти зараз