milta2003 Опубліковано: 15 березня 2010 Поділитись Опубліковано: 15 березня 2010 (змінено) Привет участникам созидательного марафона! Внимая мудрым словам: «Лучше сообщать о том, что собираетесь делать, а не что сделали. Тогда можно услышать комментарии, а не сочувствия!»(S.A.Y. «Эгоист в Белогородке»), решился открыть свою темку для обсуждения. Итак, что я хочу и ПЛАНИРУЮ: Собираюсь строить САМ + подсобные работники + куратор. И, конечно же, надеюсь на ВАШЕ участие-поддержку с комментариями и компетентными советами. ФУНДАМЕНТ – ЦОКОЛЬНЫЙ ЭТАЖ. Со слов соседей, на глубине 2м белый плотный песок. Сойдёт снег - предстоит убедиться самому. Благо прежний хозяин участка вырыл котлован. - по периметру отлить бетонную, армированную ленту 300 х 800, затем три ряда ФБС-5, четвёртый ряд ФБС-4. Получившаяся полка - для фасадного материала. - по центру аналогичная лента с двумя колонами 300х300х2100(+ технологич шов укладки ФБС) связанных поверху между собой и стенами периметра ригелем 300х300. - До Нулевой отметки (600-800 от ур.зем.) отлить армопояс 200х300 связанный с балками часторебристого перекрытия. Основную арматуру в армокаркасах ленты, ригеля, колон, армопоясах думаю применить д12 АIII. ПЕРЕКРЫТИЯ - Часторебристое. Балки(тригоны), газобетонные блоки «%)» 150х400х600 в качестве утепления, звукоизоляции и несъемной опалубки , пролжить армосетку 100х100 (д5) и залить бетоном. СТЕНЫ - Газобетон. Несущие - «%)» 200х400х600 D500. Армирование д10 АIII. Армопояс между первым этажом и мансардой. Армопояс под мауэрлат. СТРОПИЛКА- Дерево + метал. КРОВЛЯ – «%)» ЦПЧ. ФАСАД – Цоколь, дюзы - камень. Стены - облицовочный кирпич. Мансардная часть – штукатурка + дерево (имитация фахверка). ОТОПЛЕНИЕ – Газ + Электрическое (Водонагреватель «%)» российский, с подводной лодки, наблюдал в Риге у товарища - впечатлило). Водяной пол + радиаторы. КАНАЛИЗАЦИЯ – Автономная. ЛАНДШАФТ - Фруктовые деревья. Патио-барбикюшница. Навес-гараж. Лужайка. Альпийская горка с ручейком. Бассейн. Всё это в порядке приоритетности по пути к светлому будущему…. А пока думаю - куда грунт от котлована? ОХРАНА – Ведомственная. Управляемые жалюзи + Кане Корсо. За основу-катализатор проекта ХОЧУ взять «Обитель ангелов» Дмитрия Шильникова («Эдна» В. Юрченко) Очень дом похож на «Теремок» -КУЛИБИНа- и история с забором соседа - один в один как у Шильникова. Бывает же такое… Приглашаю к сотрудничеству ПРОФИ 8-): - архитектора для адаптации-легализации проекта, - прораба-куратора - профильных мастеров инженеринга « внутрянки» - представителей продаж (куда ж без Вас);) Змінено 15 березня 2010 користувачем milta2003 1 Посилання на коментар Поділитися на інших сайтах More sharing options...
milta2003 Опубліковано: 15 березня 2010 Автор Поділитись Опубліковано: 15 березня 2010 Вот участок с планируемым пятном застройки. Правильно ли расположил? Как правильно на Ваш взгляд расположить мои пожелания из пункта «ЛАНДШАФТ»? Посилання на коментар Поділитися на інших сайтах More sharing options...
milta2003 Опубліковано: 15 березня 2010 Автор Поділитись Опубліковано: 15 березня 2010 А это мои пожелания в планировке (да простит меня автор за использование его опубликованного материала…) : 2 Посилання на коментар Поділитися на інших сайтах More sharing options...
Шульман Опубліковано: 15 березня 2010 Поділитись Опубліковано: 15 березня 2010 Не плохой проект "Аля обитель ангелов Шильникова" но правда немного отличается. Технология строительства мне нравится так как сам буду строить с подвалом из газоблоков только вот цоколь хочу заливать монолитом - по цене практически то же саме что и блоки а во всем другом только лутше, ну и без мансарды, сильно уж нагружают меня эти потолки косые. а так все нравится удачи, я так понял строится мы будем паралельно .... Посилання на коментар Поділитися на інших сайтах More sharing options...
milta2003 Опубліковано: 15 березня 2010 Автор Поділитись Опубліковано: 15 березня 2010 Схема перекрытий. Сечение, лестница. Вижу пока так… 1 Посилання на коментар Поділитися на інших сайтах More sharing options...
milta2003 Опубліковано: 15 березня 2010 Автор Поділитись Опубліковано: 15 березня 2010 А это моё пожелание к фасаду «Обители ангелов»… Посилання на коментар Поділитися на інших сайтах More sharing options...
milta2003 Опубліковано: 15 березня 2010 Автор Поділитись Опубліковано: 15 березня 2010 Оригинал в натуре! (заборчик на 2 фотке ну очень напоминает о истории –КУЛИБИНА- ….) Посилання на коментар Поділитися на інших сайтах More sharing options...
Teufel Опубліковано: 15 березня 2010 Поділитись Опубліковано: 15 березня 2010 Оригинал в натуре! (заборчик на 2 фотке ну очень напоминает о истории –КУЛИБИНА- ….) Автор этого проекта архитектор Дмитрий Шильников. Уважаемый milta2003, скажите пожалуйста, а Дмитрий знает что вы используете его проект??? Посилання на коментар Поділитися на інших сайтах More sharing options...
milta2003 Опубліковано: 16 березня 2010 Автор Поділитись Опубліковано: 16 березня 2010 Автор этого проекта архитектор Дмитрий Шильников. Уважаемый milta2003, скажите пожалуйста, а Дмитрий знает что вы используете его проект??? Вопрос резонный! Долго размышлял… %) 1-Проекта как такового у меня нет! Как же я тогда могу его использовать? 2-Есть опубликованный материал к которому есть доступ у всех! Здесь я выставил то, что хотел бы добавить изменить.(перекрытие и сечение, лестница – мои домыслы) 3-Дмитрий Ш. в своё время «катализировал» свой проект из проекта «Эдна» В. Юрченко. Для меня «Обитель ангелов» катализатор… и не скрываю этого (читайте предыдущие посты) 4- В ходе обсуждений и трансформаций, с родными архитекторами «на расстоянии вытянутой руки», думаю мой проект будет существенно отличаться от проекта Шильникова. И когда мы закончем ваять МОЁ видение СВОЕГО дома, вот тогда и встанет вопрос необходимости согласования с Автором и дальнейшем его ИСПОЛЬЗОВАНИИ.А пока это обсуждение работает для Дмитрия Шильникова как public relations, пиар - по нашему…. 5-На одной из веток форума я задал уже задал вопрос: «Кто-то уже реально обращался к Доктору? (В смысле к автору «Обители ангелов».) Меня интересует комплектация и лицензирование его проекта в нашей стране» . Ответа не получил! Здесь думаю кто-то откликницццца быстрее. Вы же отреагировали! У Вас есть опыт по адаптации-легализации российских проектов для Украины? Жду компетентных советов! Посилання на коментар Поділитися на інших сайтах More sharing options...
S.A.Y. Опубліковано: 16 березня 2010 Поділитись Опубліковано: 16 березня 2010 Как по-мне, использование какого-то проекта в качестве идеи вполне допустимо. Тем более, если проект будет существенно перерабатываться и от первоначального останутся только рожки да ножки (как обычно и бывает). Если обращаться к автору, то вполне можно нарваться на то, что придется согласовывать все, вплоть до расположения стаканчиков для зубных щеток. :D Я уверен, что домиков, подобных "Обители ангелов" расплодилось немерено. Можно просто отследить, как решались вопросы авторского права в этих случаях. 3 Посилання на коментар Поділитися на інших сайтах More sharing options...
Teufel Опубліковано: 16 березня 2010 Поділитись Опубліковано: 16 березня 2010 Если обращаться к автору, то вполне можно нарваться на то, что придется согласовывать все, вплоть до расположения стаканчиков для зубных щеток...... Могу сказать вам следующее: В архитектуре нет юридического преследования тех людей, которые пользуются прототипами и частично используют заимствованные чужие решения, потому как это идет только на пользу самой архитектуре, и дает толчок для развития новых направлений и стилей. Даже больше, В институтах архитекторов учат не стесняться и пользоваться прототипами, иначе как они еще поймут тонкости профессии. Но я говорил о том что фотографии проекта не могут быть использованы автором поста без согласования с автором самого проекта. И о каком пиаре идет речь?, Не думаю что Шильникову будет приятно наблюдать, как его проект становится жертвой эксперимента. Посилання на коментар Поділитися на інших сайтах More sharing options...
S.A.Y. Опубліковано: 16 березня 2010 Поділитись Опубліковано: 16 березня 2010 Могу сказать вам следующее: В архитектуре нет юридического преследования тех людей, которые пользуются прототипами и частично используют заимствованные чужие решения, потому как это идет только на пользу самой архитектуре, и дает толчок для развития новых направлений и стилей. Даже больше, В институтах архитекторов учат не стесняться и пользоваться прототипами, иначе как они еще поймут тонкости профессии. Но я говорил о том что фотографии проекта не могут быть использованы автором поста без согласования с автором самого проекта. И о каком пиаре идет речь?, Не думаю что Шильникову будет приятно наблюдать, как его проект становится жертвой эксперимента. И первая реплика в ветке: За основу-катализатор проекта ХОЧУ взять «Обитель ангелов» Дмитрия Шильникова («Эдна» В. Юрченко) Очень дом похож на «Теремок» -КУЛИБИНа- и история с забором соседа - один в один как у Шильникова. Бывает же такое… Подчеркнуто, выделено и жирным, и курсивом - мной. 1 Посилання на коментар Поділитися на інших сайтах More sharing options...
as1976as Опубліковано: 16 березня 2010 Поділитись Опубліковано: 16 березня 2010 Автор этого проекта архитектор Дмитрий Шильников. Уважаемый milta2003, скажите пожалуйста, а Дмитрий знает что вы используете его проект??? Уважаемый Teufel. А разве если человек в данной ситуации Андрей (создатель этой темы) взяв за основу проект Шильникова и переработав его под свои потребности внеся туда свои изменения и доработки,и в принципе создав новый проект нуждается в разрешениях и одобрениях Дмитрия Шильникова? Ведь в принципе создается новый проект просто в нем использованы идеи и мысли переработанные под свой вкус и потребности. Андрей а вам я советую не заморачиваться по поводу разрешений от Дмитрия Шильникова. А действительно создавать проект базируясь на исходниках этого дома,но внося ваши пожелания и изменения.Просто обратитесь к нормальному архитектору который переделает и адаптирует ваше детище к вашему участку.Удачи Вам.А как земляку так и вдвойне удачи и успехов. 1 Посилання на коментар Поділитися на інших сайтах More sharing options...
ДОКС Опубліковано: 16 березня 2010 Поділитись Опубліковано: 16 березня 2010 По теме: - желаю не распыляться и сразу определиться с конструкцией дома и с используемыми материалами; - выработать для себя стратегию самого строительства и по ходу создания проекта составлять план производства работ; - не забывайте о расходных материалах и инструменте. Первоисточник Вашего проекта в результате адаптации будет всего лишь -"первоисточником", поэтому постарайтесь внести нечто своё. Удачи! пы.сы. ..нужна будет помощь - обращайтесь... Посилання на коментар Поділитися на інших сайтах More sharing options...
Teufel Опубліковано: 16 березня 2010 Поділитись Опубліковано: 16 березня 2010 Уважаемый Teufel. А разве если человек в данной ситуации Андрей (создатель этой темы) взяв за основу проект Шильникова и переработав его под свои потребности внеся туда свои изменения и доработки,и в принципе создав новый проект нуждается в разрешениях и одобрениях Дмитрия Шильникова? Уважаемый as1976as! Выше, я уже изложил свою мысль по поводу сказанного мною ранее. Читайте вдумчиво. Единственное что хотел бы добавить, так это то, что в сети есть добрая традиция оставлять ссылку на сайт автора, когда используешь материал с его сайта, блога или поста. З.Ы. И ради бога, перестаньте воинственно воспринимать замечания, я ведь всего-навсего задал вопрос. 1 Посилання на коментар Поділитися на інших сайтах More sharing options...
Антошка Опубліковано: 16 березня 2010 Поділитись Опубліковано: 16 березня 2010 "Армопояс между первым этажом и мансардой." Я так понимаю, перекрытие между 1 этажом и мансардой будет "часторебристым". Тогда армопояс появится автоматически. Посилання на коментар Поділитися на інших сайтах More sharing options...
OlegArh Опубліковано: 16 березня 2010 Поділитись Опубліковано: 16 березня 2010 фотографии проекта не могут быть использованы автором поста без согласования с автором самого проекта.Не думаю что Шильникову будет приятно наблюдать, как его проект становится жертвой эксперимента. Извините, конечно, но где Вы увидели проект Шильникова? у Шильникова при входе находится котельная. В предлагаемом варианте - гардероб.... Подобные изменения есть основанием (и юридически тоже) для признания автором проекта именно milta2003. Фото с сайта Шильникова (кстати в свободном доступе) воспринимайте как "банер" Шильникова. И выходит, что, уже Шильников должен.... Посилання на коментар Поділитися на інших сайтах More sharing options...
Шульман Опубліковано: 16 березня 2010 Поділитись Опубліковано: 16 березня 2010 Как только топик стартер поменял пару стенок и размеров в проекте Шильникова это уже новый проект. Если обратится к нашему законодательству то нарушением авторских прав будет использования обекта авторских прав с целью получения прибыли или иных ценностей, а использование его для своих личных целей не есть нарушением авторских прав. Даная ситуация напоминает мне ситуацию с китайским автопромом - но китайцев ведб не наказывают же за плагиат!? Так что не партесь а идите до конца и реализуйте свою Обитель ангелов. Посилання на коментар Поділитися на інших сайтах More sharing options...
S.A.Y. Опубліковано: 16 березня 2010 Поділитись Опубліковано: 16 березня 2010 Свою версию Обители ;) ЗЫ. Кстати, многих попустит, если дать собственное название дому. И, наверное, это правильно: давать имя дому. 1 Посилання на коментар Поділитися на інших сайтах More sharing options...
milta2003 Опубліковано: 17 березня 2010 Автор Поділитись Опубліковано: 17 березня 2010 Свою версию Обители ;) ЗЫ. Кстати, многих попустит, если дать собственное название дому. И, наверное, это правильно: давать имя дому. Думаю в ходе вынашивания и рождения дома придёт и имя… Посмотрим, как вести себя будет, чтоб правильно, по характеру… Надеюсь имя дразнилкой не станет!8-) Посилання на коментар Поділитися на інших сайтах More sharing options...
Darkdwarf Опубліковано: 17 березня 2010 Поділитись Опубліковано: 17 березня 2010 Черт, сорри конечно за оффтоп, но мона вопрос - топикстартер, а Вы случаем не юрист??? ибо подход правильный, прочувствованный думаю каждым юристом, который разгребая кучу гиммора клиента, про себя материцца и грит, ну мля, а ДО того как делали, нельзя чтоль было спросить)))))))))))))))))))) Поэтому подход топикстартера мне по душе - сначала спросить, а потом делать, а не сделать, а потом спрашивать, е... а как исправить))))))))) по поводу использования фото проекта...и проекта для старта "своей идеи" - ну тут не все так просто... есть такая кака - как Бернская конвенция об охране литературных и художетсвенных произведений (распространяется на произведения архитектуры, планы, чертежы и др, связанное с архитектурой). так вот, статья 6 бис конвенции говорит о том, что автор (даже не взирая на то, что он уступил кому либо свои им-е права) - имеет право: - вимагати визнання свого авторства на твір; - протидіяти будь-якому перекрученню, спотворенню чи іншій зміні цього твору, а також будь-якому іншому посяганню на твір, здатному завдати шкоди честі або репутації автора. Вот теперь, в зависимоти от того, как читать этот пунктик, можно утверждать - что автор в любом случае может противодействовать изменению своего произведения (чертежей и т.п) или же, вторая точка зрения - автор может противодействовать лишь тогда, когда такие изменения будут причинять вред чести или деловой репутации автора.. т.е. вопросец такой, не однозначный... 3 Посилання на коментар Поділитися на інших сайтах More sharing options...
ДОКС Опубліковано: 17 березня 2010 Поділитись Опубліковано: 17 березня 2010 Вот теперь, в зависимоти от того, как читать этот пунктик, можно утверждать - что автор в любом случае может противодействовать изменению своего произведения (чертежей и т.п) или же, вторая точка зрения - автор может противодействовать лишь тогда, когда такие изменения будут причинять вред чести или деловой репутации автора.. т.е. вопросец такой, не однозначный... Если застройщик явно будет подчёркивать то, что он взял за основу проект "Такой-то №..." и при этом ничего не изменив возьмёт и построит тютя в тютю... то тады - ёй!... а если в проекте изменить: -материалы конструкционные и сам принцип строения; -материалы отделки; -планы помещений; -материалы и конструкцию кровли; -добавить подвал; - и т.д....... и в результате строение будет иметь общее с первоисточником только ЧАСТЬ контуров и не большие совпадения планов.... думаю, не реально даже Супер-Пупер Верховному Земному Суду обвинить Застройщика в плагиате и попытке заработать денюшкоф на интелектуальной собственности...... Посилання на коментар Поділитися на інших сайтах More sharing options...
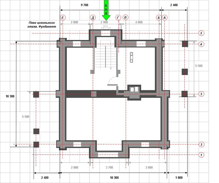
milta2003 Опубліковано: 17 березня 2010 Автор Поділитись Опубліковано: 17 березня 2010 ... вопросец такой, не однозначный... ...Уфффф!...%) Переложил этот вопрос на подкорочный уровень – знаю, решение найдётся!;) Ну а пока меня больше колбасит правильность конструктивных решений… Позвольте начать подрубрику «От А до Я !» И первые мои зарисовки-предположения (они же вопросы о правильности) Думаю так организовать фундамент – цоколь(технический этаж): Посилання на коментар Поділитися на інших сайтах More sharing options...
milta2003 Опубліковано: 17 березня 2010 Автор Поділитись Опубліковано: 17 березня 2010 "Армопояс между первым этажом и мансардой." Я так понимаю, перекрытие между 1 этажом и мансардой будет "часторебристым". Тогда армопояс появится автоматически. Да, я тоже так думаю - после армирования и заливки всей площади перекрытия образуется цельная плита - горизонтальный диск жёсткости, меня больше волнует вопрос достаточно ли при постройке из газобетона (D-500) этого? (рис. 1,2,3) Нет Гостов по несущим свойствам этого материала, нет многолетней истории строений из г.б., да и в экспериментах не очень хочется участвовать… Может всё-таки связать колонами все армопояса в единый каркас (рис.4) ??? Где тогда правльно расположить колоны? Посилання на коментар Поділитися на інших сайтах More sharing options...
S.A.Y. Опубліковано: 17 березня 2010 Поділитись Опубліковано: 17 березня 2010 (змінено) 1. Что подразумевается под часторебристым перекрытием? 2. Какое у нас основание и уровень грунтовых вод? ЗЫ. А аффтар неплохо иллюстрирует! Респект. Змінено 17 березня 2010 користувачем S.A.Y. 2 Посилання на коментар Поділитися на інших сайтах More sharing options...
Рекомендовані повідомлення
Створіть акаунт або увійдіть у нього для коментування
Ви маєте бути користувачем, щоб залишити коментар
Створити акаунт
Зареєструйтеся для отримання акаунта. Це просто!
Зареєструвати акаунтУвійти
Вже зареєстровані? Увійдіть тут.
Увійти зараз